賃貸アパート
リヴィエラの賃貸物件情報(1K/2階)
| 家賃 | 管理費等 | 敷金 | 礼金 | 間取り | 専有面積 |
|---|---|---|---|---|---|
| 3.5万円 | なし | なし | なし | 1K | 20.28m2 |
入居決定でお祝い金最大100,000円
Point
まずはお問い合わせ!
不動産会社は街のプロ、あなたに合った物件がきっと見つかります。
提供:(有)オリエンタルエステート(SUUMO経由)

詳細情報 リヴィエラ
物件紹介
リヴィエラはJR磐越東線赤井駅から徒歩15分にあるアパートです。
このお部屋は2階以上に位置しているので、通行人や周囲の住人からの視線が気になりにくく、防犯面でも安心です。
人気の南向きのお部屋。室内には多目的に利用できるロフトがあり、お部屋のアレンジも自在です。バス・トイレ別の仕様で、のんびりお風呂タイムも楽しめます。
このお部屋は2階以上に位置しているので、通行人や周囲の住人からの視線が気になりにくく、防犯面でも安心です。
人気の南向きのお部屋。室内には多目的に利用できるロフトがあり、お部屋のアレンジも自在です。バス・トイレ別の仕様で、のんびりお風呂タイムも楽しめます。
お金・契約の情報
※「-」と表示されているものは、実際は料金が発生するものもございます。詳細はお問い合わせください。
| 家賃 | 3.5万円 | 管理費・共益費 | なし |
|---|---|---|---|
| 敷金 | なし | 礼金 | なし |
| 入居決定でお祝い金最大100,000円 | |||
| 保証金 | - | 償却・敷引 | - |
| 住宅保険料 | - | 更新料 | - |
| 保証会社利用 | 必須 | 保証会社名 | - |
| 保証会社費用 | - | 保証会社備考 | 保証会社利用必 アーク賃貸保証、家賃合計の80パーセント |
| 契約形態 | - | 契約期間 | - |
| 入居・引渡期間 | 即時 | 現況 | - |
| 契約備考 | 1K 普通借家2年 損保【1.5万円2年】 バストイレ別、エアコン、クロゼット、室内洗濯置、南向き、即入居可、礼金不要、最上階、電気コンロ、駐車場1台無料、ロフト、電子ロック、敷地内ごみ置き場、プロパンガス | ||
部屋の情報
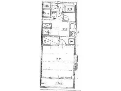
| 間取り | 1K | 専有面積 | 20.28m2 |
|---|---|---|---|
| 所在階 / 向き | 2階 / 南 | バルコニー面積 | - |
| 水道 / ガス | - | ||
| 設備 | バス・トイレ別、2階以上、エアコン、南向き、ロフトあり、洗濯機:室内 | ||
| 当社物件ID | 158711580 | ||
建物の情報
| 建物名 | リヴィエラ | ||
|---|---|---|---|
| 所在地 | 福島県いわき市平中平窪勝見沢 | ||
| 交通 | JR磐越東線 赤井駅 徒歩15分 | ||
| 階数 | 2階建 | 総戸数 | - |
| 築年月 | 1999年02月 / 築27年 | エレベーター | - |
| 駐車場 | 空有 付無料 | バイク置き場 | - |
| 駐輪場 | - | 管理人/管理会社 | - |
| 周辺環境 | その他 マルト平窪店(スーパー)まで927m その他 セブンイレブンいわき中平窪店(コンビニ)まで585m その他 クスリのアオキ平窪店(ドラッグストア)まで1340m その他 いわき市立平第四小学校(小学校)まで1079m その他 九品寺附属平窪幼稚園(幼稚園・保育園)まで912m その他 平窪郵便局(郵便局)まで1124m | ||
| 建物種別 | アパート | 建物構造 | 木造 |
この部屋の取扱い不動産会社
| 会社名 | (有)オリエンタルエステート(SUUMO経由) | ||
|---|---|---|---|
| 所在地 | 福島県いわき市植田町中央1-2-3 | 交通 | - |
| 営業時間 | 9:00~18:00 | 定休日 | 火曜日、祝日 |
| 免許番号 | 福島県知事2426 | 取引態様 | 仲介 |
| 不動産会社管理番号 | 100414547091 | 当社管理番号 | 89 |
| 所属団体 | (公社)全日本不動産協会福島県本部会員 | ||
| 公正取引協議会 | 東北地区不動産公正取引協議会加盟 | ||
| 取扱い物件情報 | 物件詳細へ | ||
※各種情報と現状に差異がある場合は、現状優先となります。問い合わせをすることで、より詳しい条件、情報を確認する事ができます。
提供:(有)オリエンタルエステート(SUUMO経由)
この物件が気になったら掲載期限まであと0日
リヴィエラに条件(家賃・エリア)が近い物件一覧
| 写真 | 家賃 管理費等 | 敷金 礼金 | 間取り 専有面積 | 築年数 | 最寄り駅 所在地 | キープ | 詳細 |
|---|---|---|---|---|---|---|---|
アパート グランディール・ヒロII(ワンルーム/1階) | |||||||
![]() | 4.6万円 3,500円 | なし なし | ワンルーム 32.97m2 | 築11年 | JR常磐線 いわき駅 徒歩26分 福島県いわき市平塩古川 | 詳細を見る | |
アパート ウィンディア26B(1LDK/1階) | |||||||
![]() | 5.4万円 3,000円 | 5.4万円 なし | 1LDK 40.28m2 | 築12年 | JR常磐線 湯本駅 徒歩42分 福島県いわき市常磐西郷町岩崎 | 詳細を見る | |
アパート ディアパレスB(2K/2階) | |||||||
![]() | 5.2万円 5,000円 | なし なし | 2K 42.2m2 | 築23年 | JR常磐線 草野駅(福島) 徒歩15分 福島県いわき市平下神谷御城 | 詳細を見る | |
アパート エクセレント・川田(2LDK/2階) | |||||||
![]() | 5.6万円 2,200円 | なし なし | 2LDK 63.87m2 | 築24年 | 福島県いわき市 | 詳細を見る | |
アパート メゾン・ド・マナ(1K/2階) | |||||||
![]() | 4万円 なし | なし なし | 1K 21m2 | 築32年 | JR磐越東線 いわき駅 徒歩48分 JR常磐線 いわき駅 徒歩48分 福島県いわき市平中山矢ノ倉 | 詳細を見る | |
アパート プレジール泉(1K/2階) | |||||||
![]() | 3.8万円 2,000円 | 3.8万円 なし | 1K 26.44m2 | 築35年 | 福島県いわき市泉町滝尻字加賀前 | 詳細を見る | |
アパート グリーンコート(3DK/2階) | |||||||
![]() | 4.3万円 2,000円 | なし なし | 3DK 46.28m2 | 築40年 | 福島県いわき市中岡町3丁目 | 詳細を見る | |
アパート 上原ハイツ(1K/1階) | |||||||
![]() | 2.8万円 2,000円 | なし なし | 1K 19.83m2 | 築35年 | 福島県いわき市鹿島町米田字殿作 | 詳細を見る | |







/105x80-f1-q70-wp1)
/105x80-f1-q70-wp1)
/105x80-f1-q70-wp1)