賃貸アパート
コンフォールモロエ Aの賃貸物件情報(1LDK/2階)
| 家賃 | 管理費等 | 敷金 | 礼金 | 間取り | 専有面積 |
|---|---|---|---|---|---|
| 6万円 | 5,000円 | 6万円 | 6万円 | 1LDK | 34.9m2 |
入居決定でお祝い金最大100,000円
- 保証金
- -
- 償却・敷引
- -
- 築年数
- 築3年
- 所在階
- 2階
- 向き
- 東
Point
エントランス部分オートロック、不在時でも荷物の受け取りが可能な宅配ボックス付きです。Wi-Fi対応インターネットも無料でご利用頂けます。
提供:(有)絹川不動産本店(SUUMO経由)

詳細情報 コンフォールモロエ A
物件紹介
コンフォールモロエ Aは北陸鉄道浅野川線三口駅から徒歩5分にあり、駅近で通勤通学に便利なアパートです。
このお部屋は2階以上に位置しているので、通行人や周囲の住人からの視線が気になりにくく、防犯面でも安心。建物のエントランスはオートロックがついており、インターホンにはTVモニタもついているため、相手の顔を確認してから来客対応することができます。
フローリングのお部屋なのでお掃除もラクラク。バス・トイレ別の仕様で、のんびりお風呂タイムも楽しめます。
通信設備面では、インターネットが無料で使えるので、月々の出費を抑えられるのも魅力です(別途工事等が必要な場合あり)。
共用部には宅配ボックスが設定されているので、不在の時にも荷物を受け取ることができます。
このお部屋は2階以上に位置しているので、通行人や周囲の住人からの視線が気になりにくく、防犯面でも安心。建物のエントランスはオートロックがついており、インターホンにはTVモニタもついているため、相手の顔を確認してから来客対応することができます。
フローリングのお部屋なのでお掃除もラクラク。バス・トイレ別の仕様で、のんびりお風呂タイムも楽しめます。
通信設備面では、インターネットが無料で使えるので、月々の出費を抑えられるのも魅力です(別途工事等が必要な場合あり)。
共用部には宅配ボックスが設定されているので、不在の時にも荷物を受け取ることができます。
お金・契約の情報
※「-」と表示されているものは、実際は料金が発生するものもございます。詳細はお問い合わせください。
| 家賃 | 6万円 | 管理費・共益費 | 5,000円 |
|---|---|---|---|
| 敷金 | 6万円 | 礼金 | 6万円 |
| 入居決定でお祝い金最大100,000円 | |||
| 保証金 | - | 償却・敷引 | - |
| 住宅保険料 | - | 更新料 | - |
| 保証会社利用 | 必須 | 保証会社名 | リクルートフォレントインシュア |
| 保証会社費用 | - | 保証会社備考 | オリコフォレントインシュア利用必 初回保証委託料:賃料等の50%。支払手数料:毎月、賃料等の1%。 |
| 契約形態 | - | 契約期間 | - |
| 入居・引渡期間 | - | 現況 | - |
| 契約備考 | 駐車場は敷地内で1台のみ可能です。駐車場2台目ご希望の方はご相談ください。 鍵交換希望の場合は別途見積り 1LDK 単身者可/二人入居可 損保【2万円2年】 バストイレ別、バルコニー、エアコン、フローリング、TVインターホン、オートロック、室内洗濯置、温水洗浄便座、洗面所独立、2口コンロ、宅配ボックス、光ファイバー、防犯カメラ、IHクッキングヒーター、保証人不要、全居室フローリング、ネット専用回線、ネット使用料不要、複層ガラス、駅徒歩5分以内、敷地内ごみ置き場、プロパンガス、洗面所にドア、室内物干機、全室照明付 入居日:'26年4月下旬 | ||
部屋の情報
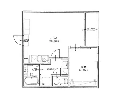
| 間取り | 1LDK | 専有面積 | 34.9m2 |
|---|---|---|---|
| 所在階 / 向き | 2階 / 東 | バルコニー面積 | 2m2 |
| 水道 / ガス | - | ||
| 設備 | バス・トイレ別、2階以上、オートロック、テレビドアホン、宅配ボックス、インターネット対応、エアコン、温水洗浄便座、バルコニー、フローリング、洗髪洗面化粧台、2口コンロ、コンロ:IH、インターネット使用料無料、洗濯機:室内 | ||
| 当社物件ID | 149116346 | ||
建物の情報
| 建物名 | コンフォールモロエ A | ||
|---|---|---|---|
| 所在地 | 石川県金沢市諸江町下丁 | ||
| 交通 | 北陸鉄道浅野川線 三口駅 徒歩5分 北陸鉄道浅野川線 割出駅 徒歩8分 北陸鉄道浅野川線 三ツ屋駅 徒歩14分 | ||
| 階数 | 3階建 | 総戸数 | - |
| 築年月 | 2024年02月 / 築3年 | エレベーター | - |
| 駐車場 | 空有 4400円 | バイク置き場 | - |
| 駐輪場 | - | 管理人/管理会社 | - |
| 周辺環境 | その他 業務スーパー諸江店(スーパー)まで1306m その他 アルプラフーズマーケット大河端(スーパー)まで1573m その他 ファミリーマート金沢問屋町二丁目店(コンビニ)まで251m その他 スギ薬局鞍月店(ドラッグストア)まで1177m その他 ウエルシア金沢直江店(ドラッグストア)まで1284m その他 金沢信用金庫問屋町支店(銀行)まで137m | ||
| 建物種別 | アパート | 建物構造 | 木造 |
この部屋の取扱い不動産会社
| 会社名 | (有)絹川不動産本店(SUUMO経由) | ||
|---|---|---|---|
| 所在地 | 石川県金沢市有松2-3-11 | 交通 | - |
| 営業時間 | 9:00~17:30 | 定休日 | 無 |
| 免許番号 | 石川県知事2301 | 取引態様 | 仲介 |
| 不動産会社管理番号 | 100360218742 | 当社管理番号 | 89 |
| 所属団体 | (公社)石川県宅地建物取引業協会会員 | ||
| 公正取引協議会 | 北陸不動産公正取引協議会加盟 | ||
| 取扱い物件情報 | 物件詳細へ | ||
※各種情報と現状に差異がある場合は、現状優先となります。問い合わせをすることで、より詳しい条件、情報を確認する事ができます。
提供:(有)絹川不動産本店(SUUMO経由)
この物件が気になったら掲載期限まであと8日
コンフォールモロエ Aに条件(家賃・エリア)が近い物件一覧
| 写真 | 家賃 管理費等 | 敷金 礼金 | 間取り 専有面積 | 築年数 | 最寄り駅 所在地 | キープ | 詳細 |
|---|---|---|---|---|---|---|---|
アパート サンコーポ(1LDK/2階) | |||||||
![]() | 4.2万円 3,000円 | なし なし | 1LDK 42.15m2 | 築41年 | 石川県金沢市新保本 | 詳細を見る | |
アパート レオパレスエスエスI(1K/1階) | |||||||
![]() | 4.1万円 4,500円 | なし なし | 1K 23.18m2 | 築19年 | 石川県金沢市上荒屋 | 詳細を見る | |
アパート ミストラル(1LDK/1階) | |||||||
![]() | 7.7万円 2,200円 | なし 7.7万円 | 1LDK 44.74m2 | 新築 | IRいしかわ鉄道 野々市駅(IR) 徒歩27分 石川県金沢市上荒屋 | 詳細を見る | |
マンション グランドパレス駅西(1LDK/2階) | |||||||
![]() | 8.6万円 1.1万円 | なし 8.6万円 | 1LDK 46.72m2 | 築17年 | 北陸鉄道浅野川線 七ツ屋駅 徒歩2分 IRいしかわ鉄道 金沢駅 徒歩6分 北陸鉄道浅野川線 北鉄金沢駅 徒歩8分 石川県金沢市北安江 | 詳細を見る | |
アパート WIT NINE(1LDK/3階) | |||||||
![]() | 7.4万円 6,000円 | なし 14.8万円 | 1LDK 39.44m2 | 築9年 | 石川県金沢市近岡町 | 詳細を見る | |
マンション けやき通レジデンス(1LDK/3階) | |||||||
![]() | 8.98万円 8,000円 | なし 18万円 | 1LDK 38.78m2 | 築3年 | IRいしかわ鉄道 金沢駅 徒歩19分 北陸鉄道浅野川線 上諸江駅 徒歩21分 北陸鉄道浅野川線 七ツ屋駅 徒歩22分 石川県金沢市西念 | 詳細を見る | |
アパート エステート2(1K/1階) | |||||||
![]() | 4万円 3,000円 | 8万円 なし | 1K 28.48m2 | 築33年 | 石川県金沢市北安江 | 詳細を見る | |








