賃貸マンション
ライトヒルズ駅北の賃貸物件情報(ワンルーム/3階)
| 家賃 | 管理費等 | 敷金 | 礼金 | 間取り | 専有面積 |
|---|---|---|---|---|---|
| 7.1万円 | なし | 14.2万円 | 7.1万円 | ワンルーム | 29.12m2 |
入居決定でお祝い金最大100,000円
Point
広島市でお探しならアパマンショップ新白島駅前店へ!!
提供:アパマンショップ広島駅新幹線口店

詳細情報 ライトヒルズ駅北
物件紹介
ライトヒルズ駅北はJR山陽本線広島駅から徒歩5分にあり、駅近で通勤通学に便利なマンションです。
このお部屋は2階以上に位置しているので、通行人や周囲の住人からの視線が気になりにくく、防犯面でも安心。建物のエントランスはオートロックがついており、インターホンにはTVモニタもついているため、相手の顔を確認してから来客対応することができます。
おしゃれなデザイナーズ物件!人気の角部屋で周囲の居住者の生活音も気になりにくく、また、フローリングのお部屋なのでお掃除もラクラク。キッチンはシステムキッチン仕様になっていますので、お料理好きの方にもぴったり。バス・トイレは別なので、のんびりお風呂タイムも楽しめるでしょう。また、雨の日でも浴室乾燥機を使えば、お洗濯も問題ありません。
通信設備面では、インターネットが無料で使えるので、月々の出費を抑えられるのも魅力です。また、BSアンテナ・CSアンテナもありますので、おうち時間も充実するでしょう(別途工事、BS・CSの契約料等が必要な場合あり)。
建物にはエレベーターがついているので、重い荷物があっても安心。共用部には宅配ボックスが設定されているので、不在の時にも荷物を受け取ることができます。
このお部屋は2階以上に位置しているので、通行人や周囲の住人からの視線が気になりにくく、防犯面でも安心。建物のエントランスはオートロックがついており、インターホンにはTVモニタもついているため、相手の顔を確認してから来客対応することができます。
おしゃれなデザイナーズ物件!人気の角部屋で周囲の居住者の生活音も気になりにくく、また、フローリングのお部屋なのでお掃除もラクラク。キッチンはシステムキッチン仕様になっていますので、お料理好きの方にもぴったり。バス・トイレは別なので、のんびりお風呂タイムも楽しめるでしょう。また、雨の日でも浴室乾燥機を使えば、お洗濯も問題ありません。
通信設備面では、インターネットが無料で使えるので、月々の出費を抑えられるのも魅力です。また、BSアンテナ・CSアンテナもありますので、おうち時間も充実するでしょう(別途工事、BS・CSの契約料等が必要な場合あり)。
建物にはエレベーターがついているので、重い荷物があっても安心。共用部には宅配ボックスが設定されているので、不在の時にも荷物を受け取ることができます。
お金・契約の情報
※「-」と表示されているものは、実際は料金が発生するものもございます。詳細はお問い合わせください。
| 家賃 | 7.1万円 | 管理費・共益費 | なし |
|---|---|---|---|
| 敷金 | 14.2万円 | 礼金 | 7.1万円 |
| 入居決定でお祝い金最大100,000円 | |||
| 保証金 | - | 償却・敷引 | - |
| 住宅保険料 | - | 更新料 | - |
| 保証会社利用 | 必須 | 保証会社名 | ジェイリース |
| 保証会社費用 | - | 保証会社備考 | 初回保証料月額賃料総額の75%、月額保証料880円(賃料振替手数料込)法人契約は応相談 |
| 契約形態 | - | 契約期間 | 2年 |
| 入居・引渡期間 | 相談 | 現況 | - |
部屋の情報
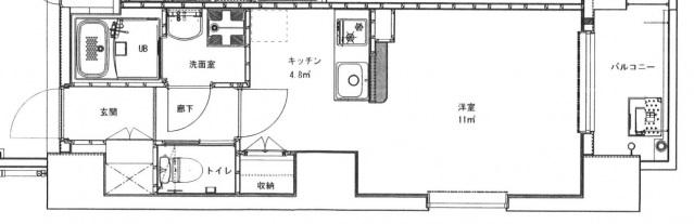
| 間取り | ワンルーム | 専有面積 | 29.12m2 |
|---|---|---|---|
| 所在階 / 向き | 3階 / 東 | バルコニー面積 | 3m2 |
| 水道 / ガス | ガス【都市】 | ||
| 設備 | バス・トイレ別、オートロック、テレビドアホン、宅配ボックス、システムキッチン、エレベーター、温水洗浄便座、角部屋、バルコニー、コンロ:ガス、CSアンテナ、BSアンテナ、インターネット使用料無料、洗濯機:室内 | ||
| 当社物件ID | 28416218 | ||
建物の情報
| 建物名 | ライトヒルズ駅北 | ||
|---|---|---|---|
| 所在地 | 広島県広島市東区光町2丁目 | ||
| 交通 | 可部線 広島駅 徒歩7分 | ||
| 階数 | 13階建 | 総戸数 | 33戸 |
| 築年月 | 2019年01月 / 築8年 | エレベーター | あり |
| 駐車場 | - | バイク置き場 | - |
| 駐輪場 | あり | 管理人/管理会社 | - |
| 周辺環境 | その他 マックスバリュエクスプレス広島駅北口店 徒歩4分(293m) その他 (株)広島銀行/曙支店 徒歩14分(1060m) その他 セブンイレブン 徒歩21分(1654m) その他 ファミリーマート 徒歩16分(1251m) その他 ショージ 徒歩22分(1719m) その他 コストコホールセール広島倉庫店 徒歩22分(1701m) その他 ナイスムラカミ東山店 徒歩20分(1563m) その他 ファミリーマート 徒歩22分(1700m) | ||
| 建物種別 | マンション | 建物構造 | RC(鉄筋コンクリート) |
この部屋の取扱い不動産会社
| 会社名 | アパマンショップ新白島駅前店 | ||
|---|---|---|---|
| 所在地 | 広島県広島市中区西白島町 3-9服部ビル1階 | 交通 | 山陽本線新白島から徒歩1分 |
| 営業時間 | 09:30〜18:30 | 定休日 | 水曜日 |
| 免許番号 | 広島県知事(10)5499 | 取引態様 | 仲介 |
| 不動産会社管理番号 | 80903470 | 当社管理番号 | 4 |
| 所属団体 | (公社)広島県宅地建物取引業協会 | ||
| 公正取引協議会 | 中国地区不動産公正取引協議会加盟 | ||
| 取扱い物件情報 | 物件詳細へ | ||
※各種情報と現状に差異がある場合は、現状優先となります。問い合わせをすることで、より詳しい条件、情報を確認する事ができます。
提供:アパマンショップ新白島駅前店
この物件が気になったら掲載期限まであと13日
ライトヒルズ駅北に条件(家賃・エリア)が近い物件一覧
| 写真 | 家賃 管理費等 | 敷金 礼金 | 間取り 専有面積 | 築年数 | 最寄り駅 所在地 | キープ | 詳細 |
|---|---|---|---|---|---|---|---|
タウンハウス メゾン・カトルリベー(3LDK) | |||||||
![]() | 7.8万円 なし | 23.4万円 7.8万円 | 3LDK 69.56m2 | 築39年 | 芸備線 矢賀駅 徒歩21分 呉線 天神川駅 徒歩30分 広島県広島市東区温品1丁目 | 詳細を見る | |
一戸建て 芸備線 上深川駅 徒歩30分 築38年(5DK) | |||||||
![]() | 5.5万円 なし | なし 5.5万円 | 5DK 87.07m2 | 築38年 | 芸備線 上深川駅 徒歩30分 広島県広島市東区福田8丁目 | 詳細を見る | |
一戸建て 広島県山県郡北広島町 築30年(3LDK) | |||||||
![]() | 6万円 なし | 18万円 6万円 | 3LDK 89.34m2 | 築30年 | 広島県山県郡北広島町中祖 | 詳細を見る | |
一戸建て 芸備線 矢賀駅 徒歩5分 築63年(3SLDK) | |||||||
![]() | 8万円 なし | 24万円 8万円 | 3SLDK 88.88m2 | 築63年 | 芸備線 矢賀駅 徒歩5分 山陽本線 天神川駅 徒歩21分 広島県広島市東区矢賀2丁目 | 詳細を見る | |
アパート RESIDENTIAL 戸坂駅前(1LDK/1階) | |||||||
![]() | 5万円 7,000円 | なし 5万円 | 1LDK 29.12m2 | 築3年 | 芸備線 戸坂駅 徒歩2分 アストラムライン 西原駅(広島) 徒歩28分 広島県広島市東区戸坂惣田1丁目 | 詳細を見る | |
一戸建て 芸備線 矢賀駅 徒歩20分 築57年(3DK) | |||||||
![]() | 7.3万円 なし | 21.9万円 なし | 3DK 56.3m2 | 築57年 | 芸備線 矢賀駅 徒歩20分 呉線 天神川駅 徒歩28分 広島県広島市東区中山西1丁目 | 詳細を見る | |






