賃貸一戸建て
常磐線 内原駅 徒歩4分 2階建 築7年の賃貸物件情報(2LDK)
| 家賃 | 管理費等 | 敷金 | 礼金 | 間取り | 専有面積 |
|---|---|---|---|---|---|
| 8万円 | なし | 8万円 | なし | 2LDK | 66.24m2 |
入居決定でお祝い金最大100,000円
Point
髪のセットが手早くできる洗面化粧台が設置されております。こちらの物件は閑静な住宅地にあります。
提供:ハウスコム関東株式会社 水戸駅前店

詳細情報 常磐線 内原駅 徒歩4分 2階建 築7年
物件紹介
常磐線内原駅から徒歩4分にあり、駅近で通勤通学に便利な一戸建てです。
このお部屋のインターホンにはTVモニタがついているため、相手の顔を確認してから来客対応することができます。
人気の南向き・フローリングのお部屋。角部屋でもあるため、周囲の居住者の生活音も気になりにくい場所です。キッチンはシステムキッチン仕様になっていますので、お料理好きの方にもぴったり。また、バス・トイレは別で、のんびりお風呂タイムも楽しめるでしょう。
ペット飼育の相談ができますので、あなたの大切な家族の一員も快適に暮らせるか、ぜひ確認してみてください。
コンビニまで徒歩51分の場所にあり、日用品や食料品のお買い物にも便利です。
このお部屋のインターホンにはTVモニタがついているため、相手の顔を確認してから来客対応することができます。
人気の南向き・フローリングのお部屋。角部屋でもあるため、周囲の居住者の生活音も気になりにくい場所です。キッチンはシステムキッチン仕様になっていますので、お料理好きの方にもぴったり。また、バス・トイレは別で、のんびりお風呂タイムも楽しめるでしょう。
ペット飼育の相談ができますので、あなたの大切な家族の一員も快適に暮らせるか、ぜひ確認してみてください。
コンビニまで徒歩51分の場所にあり、日用品や食料品のお買い物にも便利です。
お金・契約の情報
※「-」と表示されているものは、実際は料金が発生するものもございます。詳細はお問い合わせください。
| 家賃 | 8万円 | 管理費・共益費 | なし |
|---|---|---|---|
| 敷金 | 8万円 | 礼金 | なし |
| 入居決定でお祝い金最大100,000円 | |||
| 保証金 | - | 償却・敷引 | - |
| 住宅保険料 | 1円 | 更新料 | - |
| 保証会社利用 | 必須 | 保証会社名 | - |
| 保証会社費用 | - | 保証会社備考 | 初回保証料:賃料総額の50%(最低保証料あり) 更新保証料:10,000円/年 |
| 契約形態 | - | 契約期間 | 2年 |
| 入居・引渡期間 | 相談 | 現況 | - |
| 入居可能条件 | 事務所不可、2人入居可、楽器不可、ペット相談 | ||
| 契約備考 | 火災保険別途要加入 ペット飼育時敷金増額有り 月額(安心サポート 880円) 鍵交換費用:13200 その他設備/条件:室内洗濯機置き場、独立洗面台、クローゼット、シューズボックス、メゾネット | ||
部屋の情報
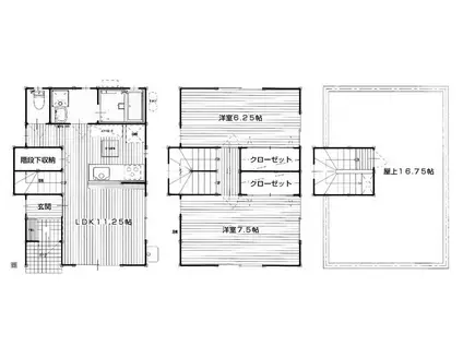
| 間取り | 2LDK | 専有面積 | 66.24m2 |
|---|---|---|---|
| 間取り詳細 | LDK(11.2帖)、洋室(7.5帖)、洋室(6.2帖) | ||
| 所在階 / 向き | 1階 / 南 | バルコニー面積 | - |
| 水道 / ガス | 水道【公営】 | ||
| 設備 | バス・トイレ別、テレビドアホン、追い焚き、システムキッチン、カウンターキッチン、エアコン、温水洗浄便座、角部屋、フローリング、床下収納、洗髪洗面化粧台、3口コンロ、コンロ:ガス、シャワー、給湯 | ||
| 当社物件ID | 30064979 | ||
建物の情報
| 建物名 | 常磐線 内原駅 徒歩4分 2階建 築7年 | ||
|---|---|---|---|
| 所在地 | 茨城県水戸市内原1丁目 | ||
| 交通 | 常磐線 内原駅 徒歩4分 常磐線 友部駅 徒歩67分 | ||
| 階数 | 2階建 | 総戸数 | 1戸 |
| 築年月 | 2019年05月 / 築7年 | エレベーター | - |
| 駐車場 | 空有 | バイク置き場 | - |
| 駐輪場 | - | 管理人/管理会社 | - |
| 周辺環境 | コンビニ 徒歩51分(4001m) その他 ドラッグストア その他 公園 その他 銀行 その他 * | ||
| 建物種別 | 一戸建て | 建物構造 | 木造 |
この部屋の取扱い不動産会社
| 会社名 | ハウスコム関東株式会社 水戸駅前店 | ||
|---|---|---|---|
| 所在地 | 茨城県水戸市1-3ステーションフロント水戸1階 | 交通 | - |
| 営業時間 | 10:00~18:00 | 定休日 | - |
| 免許番号 | 国土交通大臣(1)第10263号 | 取引態様 | 仲介 |
| 不動産会社管理番号 | HC2-5300285-1-0214 | 当社管理番号 | 468 |
| 所属団体 | 一般社団法人全国住宅産業協会/公益社団法人首都圏不動産公正取引協議会/公益財団法人日本賃貸住宅管理協会、 | ||
| 取扱い物件情報 | 物件詳細へ | ||
※各種情報と現状に差異がある場合は、現状優先となります。問い合わせをすることで、より詳しい条件、情報を確認する事ができます。
提供:ハウスコム関東株式会社 水戸駅前店
この物件が気になったら掲載期限まであと4日
常磐線 内原駅 徒歩4分 2階建 築7年に条件(家賃・エリア)が近い物件一覧
| 写真 | 家賃 管理費等 | 敷金 礼金 | 間取り 専有面積 | 築年数 | 最寄り駅 所在地 | キープ | 詳細 |
|---|---|---|---|---|---|---|---|
アパート パークフラッツ(2LDK/1階) | |||||||
![]() | 7.9万円 4,000円 | なし 7.9万円 | 2LDK 62.1m2 | 築21年 | JR常磐線 勝田駅 徒歩35分 茨城県ひたちなか市はしかべ | 詳細を見る | |
アパート ドルチェ・T(2LDK/2階) | |||||||
![]() | 6.25万円 3,500円 | なし 8.25万円 | 2LDK 57.32m2 | 築6年 | 茨城県ひたちなか市大字田彦 | 詳細を見る | |
アパート ROYAL WING E(2LDK/2階) | |||||||
![]() | 5.8万円 5,000円 | なし 2万円 | 2LDK 53.76m2 | 築22年 | JR水戸線 宍戸駅 徒歩62分 JR常磐線 岩間駅 徒歩84分 茨城県笠間市旭町 | 詳細を見る | |
アパート シャトーセレニテ(1LDK/2階) | |||||||
![]() | 7.8万円 なし | 7.8万円 7.8万円 | 1LDK 34.76m2 | 新築 | 常磐線 勝田駅 徒歩17分 茨城県ひたちなか市東大島2丁目 | 詳細を見る | |
アパート EARTH GARDEN Ⅱ(2LDK/2階) | |||||||
![]() | 6.5万円 3,000円 | 6.5万円 なし | 2LDK 54.56m2 | 築13年 | 常磐線 水戸駅 徒歩28分 茨城県水戸市千波町 | 詳細を見る | |
アパート サンプリズムII(1LDK/2階) | |||||||
![]() | 6.35万円 3,500円 | なし 9.35万円 | 1LDK 44.28m2 | 築2年 | JR常磐線 佐和駅 徒歩46分 JR常磐線 勝田駅 徒歩53分 ひたちなか海浜鉄道 金上駅 徒歩62分 茨城県ひたちなか市大字足崎 | 詳細を見る | |
マンション プレスト水戸中央(1K/6階) | |||||||
![]() | 7.1万円 5,000円 | なし なし | 1K 34.78m2 | 築7年 | JR常磐線 水戸駅 徒歩12分 JR常磐線 偕楽園駅 徒歩24分 JR水郡線 常陸青柳駅 徒歩34分 茨城県水戸市中央 | 詳細を見る | |
アパート ロイヤルタビコ(1LDK/1階) | |||||||
![]() | 6.3万円 2,800円 | なし 9.3万円 | 1LDK 50.05m2 | 築1年 | JR常磐線 勝田駅 徒歩28分 ひたちなか海浜鉄道 工機前駅 徒歩36分 JR常磐線 佐和駅 徒歩46分 茨城県ひたちなか市大字田彦 | 詳細を見る | |





/105x80-f1-q70-wp1)



