賃貸一戸建て
京阪電気鉄道京阪線 藤森駅 徒歩2分 2階建 築67年の賃貸物件情報(4LDK)
| 家賃 | 管理費等 | 敷金 | 礼金 | 間取り | 専有面積 |
|---|---|---|---|---|---|
| 15万円 | なし | 30万円 | なし | 4LDK | 87.89m2 |
入居決定でお祝い金最大100,000円
Point
2015年全面改装 大きな美宅の登場です。 京都市伏見区 深草エリアの貸家です。礼金、更新料ナシ。
提供:株式会社 京都ライフ 伏見桃山店(賃貸スモッカ経由)

詳細情報 京阪電気鉄道京阪線 藤森駅 徒歩2分 2階建 築67年
物件紹介
京阪電気鉄道京阪線藤森駅から徒歩2分にあり、駅近で通勤通学に便利な一戸建てです。
人気の南向き・フローリングのお部屋。角部屋でもあるため、周囲の居住者の生活音も気になりにくい場所です。室内にはウォークインクローゼットがありますので、たくさんの荷物も効率的に収納ができます。キッチンはシステムキッチン仕様になっていますので、お料理好きの方にもぴったり。また、バス・トイレは別で、のんびりお風呂タイムも楽しめるでしょう。
通信設備面では、インターネット接続が可能です。また、BSアンテナもありますので、おうち時間も充実するでしょう(別途工事、契約料が必要な場合あり)。
人気の南向き・フローリングのお部屋。角部屋でもあるため、周囲の居住者の生活音も気になりにくい場所です。室内にはウォークインクローゼットがありますので、たくさんの荷物も効率的に収納ができます。キッチンはシステムキッチン仕様になっていますので、お料理好きの方にもぴったり。また、バス・トイレは別で、のんびりお風呂タイムも楽しめるでしょう。
通信設備面では、インターネット接続が可能です。また、BSアンテナもありますので、おうち時間も充実するでしょう(別途工事、契約料が必要な場合あり)。
お金・契約の情報
※「-」と表示されているものは、実際は料金が発生するものもございます。詳細はお問い合わせください。
| 家賃 | 15万円 | 管理費・共益費 | なし |
|---|---|---|---|
| 敷金 | 30万円 | 礼金 | なし |
| 入居決定でお祝い金最大100,000円 | |||
| 保証金 | - | 償却・敷引 | - |
| 住宅保険料 | 住宅保険料あり | 更新料 | - |
| 契約形態 | - | 契約期間 | 2年 |
| 入居・引渡期間 | 即時 | 現況 | 空室 |
| 契約備考 | 嬉しい3点セパレートにウォークインクローゼット、追い焚き機能付浴室、システムキッチン、温水洗浄便座など充実の設備。TVホンでセキュリティも安心です。 ファイテック(消火剤):4,950円 アルコール殺菌・消毒:22,000円 更新料:無し 保証会社:利用必須 初回:月額賃料等の50%、月額:システム利用料330円、更新時:1万円/1年 その他設備/条件:コンロ2口以上、TVドアホン、即入居可 | ||
部屋の情報
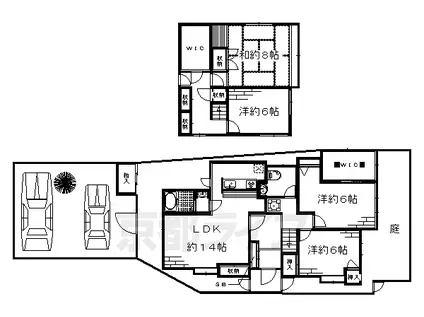
| 間取り | 4LDK | 専有面積 | 87.89m2 |
|---|---|---|---|
| 間取り詳細 | 洋室(6帖)、洋室(6帖)、洋室(6帖)、和室(8帖)、LDK(14帖) | ||
| 所在階 / 向き | 地下階 / 南 | バルコニー面積 | - |
| 水道 / ガス | ガス【都市】 | ||
| 設備 | バス・トイレ別、ウォークインクローゼット、追い焚き、インターネット対応、システムキッチン、カウンターキッチン、温水洗浄便座、南向き、角部屋、フローリング、床下収納、コンロ:ガス、BSアンテナ、専用庭、洗濯機:室内 | ||
| 当社物件ID | 160462218 | ||
建物の情報
| 建物名 | 京阪電気鉄道京阪線 藤森駅 徒歩2分 2階建 築67年 | ||
|---|---|---|---|
| 所在地 | 京都府京都市伏見区深草キトロ町 | ||
| 交通 | 京阪電気鉄道京阪線 藤森駅 徒歩2分 奈良線 JR藤森駅 徒歩19分 | ||
| 階数 | 2階建 | 総戸数 | - |
| 築年月 | 1960年01月 / 築67年 | エレベーター | - |
| 駐車場 | 空有 | バイク置き場 | あり |
| 駐輪場 | あり | 管理人/管理会社 | - |
| 建物種別 | 一戸建て | 建物構造 | 木造 |
この部屋の取扱い不動産会社
| 会社名 | 株式会社 京都ライフ 小倉店(賃貸スモッカ経由) | ||
|---|---|---|---|
| 所在地 | 宇治市小倉町神楽田21-5 | 交通 | - |
| 営業時間 | - | 定休日 | - |
| 免許番号 | 京都府知事(11)第6353号 | 取引態様 | 仲介 |
| 不動産会社管理番号 | kyotolife_68141-1-11 | 当社管理番号 | 463 |
| 所属団体 | 京都府宅地建物取引業協会\n公益社団法人近畿地区不動産公正取引協議会 | ||
| 公正取引協議会 | 全国宅地建物取引業保証協会 | ||
| 取扱い物件情報 | 物件詳細へ | ||
※各種情報と現状に差異がある場合は、現状優先となります。問い合わせをすることで、より詳しい条件、情報を確認する事ができます。
提供:株式会社 京都ライフ 小倉店(賃貸スモッカ経由)
この物件が気になったら掲載期限まであと6日
京阪電気鉄道京阪線 藤森駅 徒歩2分 2階建 築67年に条件(家賃・エリア)が近い物件一覧
| 写真 | 家賃 管理費等 | 敷金 礼金 | 間取り 専有面積 | 築年数 | 最寄り駅 所在地 | キープ | 詳細 |
|---|---|---|---|---|---|---|---|
アパート シャルールプラスⅡ(2LDK/1階) | |||||||
![]() | 9.3万円 9,000円 | なし 20万円 | 2LDK 54.67m2 | 築5年 | 地下鉄東西線 醍醐駅(京都) 徒歩11分 地下鉄東西線 石田駅(京都市営) 徒歩12分 JR奈良線 六地蔵駅(JR) 徒歩29分 京都府京都市伏見区醍醐南西裏町 | 詳細を見る | |
マンション ソフィア墨染駅前(2DK/3階) | |||||||
![]() | 9.9万円 7,000円 | 9.9万円 19.8万円 | 2DK 45.71m2 | 新築 | 京阪本線 墨染駅 徒歩2分 JR奈良線 JR藤森駅 徒歩12分 近鉄京都線 伏見駅(京都) 徒歩14分 京都府京都市伏見区墨染町 | 詳細を見る | |
アパート メゾン・カナール(3LDK/2階) | |||||||
![]() | 11.5万円 8,000円 | なし 20万円 | 3LDK 77.64m2 | 築12年 | 阪急電鉄京都線 西向日駅 徒歩40分 東海道本線 長岡京駅 徒歩47分 京都府京都市伏見区羽束師鴨川町 | 詳細を見る | |
マンション 京阪電気鉄道京阪線 中書島駅 徒歩7分 築9年(3LDK/6階) | |||||||
![]() | 15万円 なし | 15万円 30万円 | 3LDK 66.86m2 | 築9年 | 京阪電気鉄道京阪線 中書島駅 徒歩7分 京阪電気鉄道宇治線 観月橋駅 徒歩18分 京都府京都市伏見区横大路下三栖東ノ口 | 詳細を見る | |
一戸建て 近鉄京都線 大久保駅(京都) 徒歩27分 築48年(4LDK) | |||||||
![]() | 11万円 なし | 11万円 11万円 | 4LDK 77.83m2 | 築48年 | 近鉄京都線 大久保駅(京都) 徒歩27分 奈良線 新田駅(京都) 徒歩30分 京都府久世郡久御山町林宮ノ後 | 詳細を見る | |
マンション 京阪電気鉄道京阪線 中書島駅 徒歩30分 築1年(2LDK/3階) | |||||||
![]() | 12.5万円 9,000円 | 5万円 25万円 | 2LDK 62.77m2 | 築1年 | 京阪電気鉄道京阪線 中書島駅 徒歩30分 京阪電気鉄道京阪線 伏見桃山駅 徒歩37分 京都府京都市伏見区横大路柿ノ本町 | 詳細を見る | |
アパート 阪急電鉄京都線 西向日駅 徒歩30分 新築(3LDK/1階) | |||||||
![]() | 12.9万円 8,000円 | なし 12.9万円 | 3LDK 62.65m2 | 新築 | 阪急電鉄京都線 西向日駅 徒歩30分 東海道本線 長岡京駅 徒歩37分 京都府京都市伏見区羽束師菱川町 | 詳細を見る | |
アパート ウエスト HILL(1LDK/1階) | |||||||
![]() | 9.2万円 3,000円 | 3万円 15万円 | 1LDK 50m2 | 築35年 | 阪急電鉄京都線 西山天王山駅 徒歩10分 阪急電鉄京都線 長岡天神駅 徒歩18分 東海道本線 長岡京駅 徒歩27分 京都府長岡京市下海印寺東条 | 詳細を見る | |









