賃貸アパート
クレシア井尻の賃貸物件情報(1LDK/2階)
| 家賃 | 管理費等 | 敷金 | 礼金 | 間取り | 専有面積 |
|---|---|---|---|---|---|
| 7.9万円 | 3,000円 | なし | 7.9万円 | 1LDK | 43.68m2 |
入居決定でお祝い金最大100,000円
- 保証金
- -
- 償却・敷引
- -
- 築年数
- 新築
- 所在階
- 2階
- 向き
- -
Point
システムキッチン、インターネット無料、TVモニターホン、オートロック、浴室乾燥機、ウォシュレット、エアコン
提供:株式会社DR・エステート ドッとあーる賃貸井尻店(賃貸スモッカ経由)

詳細情報 クレシア井尻
物件紹介
クレシア井尻は西鉄天神大牟田線井尻駅から徒歩6分にあり、駅近で通勤通学に便利なアパートです。
このお部屋は2階以上に位置しているので、通行人や周囲の住人からの視線が気になりにくく、防犯面でも安心。建物のエントランスはオートロックがついており、インターホンにはTVモニタもついているため、相手の顔を確認してから来客対応することができます。
おしゃれなデザイナーズ物件!人気の角部屋で周囲の居住者の生活音も気になりにくく、また、フローリングのお部屋なのでお掃除もラクラク。キッチンはシステムキッチン仕様になっていますので、お料理好きの方にもぴったり。バス・トイレは別なので、のんびりお風呂タイムも楽しめるでしょう。また、雨の日でも浴室乾燥機を使えば、お洗濯も問題ありません。
通信設備面では、インターネットが無料で使えるので、月々の出費を抑えられるのも魅力です。また、CATVにも対応しているので、おうち時間も充実するでしょう(別途工事、CATVの契約料等が必要な場合あり)。
このお部屋は2階以上に位置しているので、通行人や周囲の住人からの視線が気になりにくく、防犯面でも安心。建物のエントランスはオートロックがついており、インターホンにはTVモニタもついているため、相手の顔を確認してから来客対応することができます。
おしゃれなデザイナーズ物件!人気の角部屋で周囲の居住者の生活音も気になりにくく、また、フローリングのお部屋なのでお掃除もラクラク。キッチンはシステムキッチン仕様になっていますので、お料理好きの方にもぴったり。バス・トイレは別なので、のんびりお風呂タイムも楽しめるでしょう。また、雨の日でも浴室乾燥機を使えば、お洗濯も問題ありません。
通信設備面では、インターネットが無料で使えるので、月々の出費を抑えられるのも魅力です。また、CATVにも対応しているので、おうち時間も充実するでしょう(別途工事、CATVの契約料等が必要な場合あり)。
お金・契約の情報
※「-」と表示されているものは、実際は料金が発生するものもございます。詳細はお問い合わせください。
| 家賃 | 7.9万円 | 管理費・共益費 | 3,000円 |
|---|---|---|---|
| 敷金 | なし | 礼金 | 7.9万円 |
| 入居決定でお祝い金最大100,000円 | |||
| 保証金 | - | 償却・敷引 | - |
| 住宅保険料 | 住宅保険料あり | 更新料 | - |
| 契約形態 | - | 契約期間 | 2年 |
| 入居・引渡期間 | 相談 | 現況 | 未完成 |
| 契約備考 | システムキッチン、インターネット無料、TVモニターホン、オートロック、浴室乾燥機、ウォシュレット、エアコン システムキッチン、インターネット無料、TVモニターホン、オートロック、浴室乾燥機、ウォシュレット、エアコン 消毒料:17,600円 インターネット接続料:5,500円 保証会社:利用必須 初回保証料:月額賃料総額の60%(下限30,000円) その他設備/条件:コンロ2口以上、独立洗面台、敷地内ゴミ置場 | ||
部屋の情報
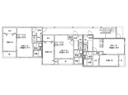
| 間取り | 1LDK | 専有面積 | 43.68m2 |
|---|---|---|---|
| 間取り詳細 | LDK(11.2帖)、洋室(5.5帖) | ||
| 所在階 / 向き | 2階 / - | バルコニー面積 | - |
| 水道 / ガス | - | ||
| 設備 | バス・トイレ別、2階以上、オートロック、浴室乾燥機、インターネット対応、システムキッチン、カウンターキッチン、エアコン、温水洗浄便座、バルコニー、フローリング、コンロ:ガス、デザイナーズ、洗濯機:室内 | ||
| 当社物件ID | 160232417 | ||
建物の情報
| 建物名 | クレシア井尻 | ||
|---|---|---|---|
| 所在地 | 福岡県福岡市南区井尻1丁目 | ||
| 交通 | 西鉄天神大牟田線 井尻駅 徒歩7分 鹿児島本線 笹原駅 徒歩13分 西鉄天神大牟田線 大橋駅(福岡) 徒歩23分 | ||
| 階数 | 3階建 | 総戸数 | - |
| 築年月 | 2026年05月 / 新築 | エレベーター | - |
| 駐車場 | - | バイク置き場 | - |
| 駐輪場 | あり | 管理人/管理会社 | - |
| 建物種別 | アパート | 建物構造 | 木造 |
この部屋の取扱い不動産会社
| 会社名 | 株式会社DR・エステート ドッとあーる賃貸井尻店(賃貸スモッカ経由) | ||
|---|---|---|---|
| 所在地 | 福岡市南区井尻3丁目10番12号政都ビル1F | 交通 | - |
| 営業時間 | - | 定休日 | - |
| 免許番号 | 福岡県知事免許(3)第17172号 | 取引態様 | 仲介 |
| 不動産会社管理番号 | dresuteto_010150001870613 | 当社管理番号 | 463 |
| 取扱い物件情報 | 物件詳細へ | ||
※各種情報と現状に差異がある場合は、現状優先となります。問い合わせをすることで、より詳しい条件、情報を確認する事ができます。
提供:株式会社DR・エステート ドッとあーる賃貸井尻店(賃貸スモッカ経由)
この物件が気になったら掲載期限まであと6日
クレシア井尻に条件(家賃・エリア)が近い物件一覧
| 写真 | 家賃 管理費等 | 敷金 礼金 | 間取り 専有面積 | 築年数 | 最寄り駅 所在地 | キープ | 詳細 |
|---|---|---|---|---|---|---|---|
アパート グレイス ケイ(1LDK/2階) | |||||||
![]() | 7.75万円 3,500円 | なし 7.75万円 | 1LDK 48.26m2 | 新築 | 西鉄天神大牟田線 雑餉隈駅 徒歩16分 西鉄天神大牟田線 桜並木駅 徒歩17分 西鉄天神大牟田線 井尻駅 徒歩38分 福岡県大野城市仲畑4丁目 | 詳細を見る | |
マンション サニーピア竹下(1K/2階) | |||||||
![]() | 4.8万円 3,000円 | なし なし | 1K 23.36m2 | 築38年 | 鹿児島本線 竹下駅 徒歩2分 西鉄天神大牟田線 大橋駅(福岡) 徒歩18分 西鉄天神大牟田線 井尻駅 徒歩31分 福岡県福岡市博多区竹下4丁目 | 詳細を見る | |
マンション 片縄ハイツ(3LDK/2階) | |||||||
![]() | 6.5万円 2,000円 | なし 13万円 | 3LDK 68m2 | 築36年 | JR博多南線 博多南駅 徒歩23分 西鉄天神大牟田線 井尻駅 徒歩70分 JR鹿児島本線 南福岡駅 徒歩71分 福岡県那珂川市 | 詳細を見る | |
マンション 西鉄天神大牟田線 井尻駅 徒歩16分 築43年(2LDK/5階) | |||||||
![]() | 7.2万円 3,000円 | なし なし | 2LDK 55m2 | 築43年 | 西鉄天神大牟田線 井尻駅 徒歩16分 鹿児島本線 南福岡駅 徒歩17分 鹿児島本線 笹原駅 徒歩18分 福岡県春日市日の出町6丁目 | 詳細を見る | |
マンション LIFEFIELD諸岡2(1LDK/6階) | |||||||
![]() | 8.1万円 4,000円 | なし なし | 1LDK 32.3m2 | 新築 | 鹿児島本線 笹原駅 徒歩8分 西鉄天神大牟田線 井尻駅 徒歩14分 鹿児島本線 南福岡駅 徒歩24分 福岡県福岡市博多区諸岡5丁目 | 詳細を見る | |
マンション 第二須玖ビル(1LDK/3階) | |||||||
![]() | 5万円 なし | なし 10万円 | 1LDK 43m2 | 築42年 | 西鉄天神大牟田線 井尻駅 徒歩13分 鹿児島本線 笹原駅 徒歩17分 鹿児島本線 南福岡駅 徒歩25分 福岡県春日市須玖北8丁目 | 詳細を見る | |
マンション ミツルマンション(1LDK/3階) | |||||||
![]() | 5.7万円 3,000円 | なし なし | 1LDK 44.82m2 | 築43年 | 博多南線 博多南駅 徒歩9分 鹿児島本線 春日駅(福岡) 徒歩49分 鹿児島本線 南福岡駅 徒歩50分 福岡県春日市 | 詳細を見る | |








