賃貸マンション
TWINマンション 東和の賃貸物件情報(2LDK/4階)
| 家賃 | 管理費等 | 敷金 | 礼金 | 間取り | 専有面積 |
|---|---|---|---|---|---|
| 8.5万円 | 5,000円 | 17万円 | 8.5万円 | 2LDK | 65.7m2 |
入居決定でお祝い金最大100,000円
- 保証金
- -
- 償却・敷引
- -
- 築年数
- 築27年
- 所在階
- 4階
- 向き
- 南
Point
オートロック,エレベーター,IHクッキングヒーター,独立洗面台
提供:(株)サンポー松本店(SUUMO経由)

詳細情報 TWINマンション 東和
物件紹介
TWINマンション 東和はJR篠ノ井線南松本駅から徒歩11分にあるマンションです。
このお部屋は2階以上に位置しているので、通行人や周囲の住人からの視線が気になりにくく、防犯面でも安心。建物のエントランスはオートロックがついており、インターホンにはTVモニタもついているため、相手の顔を確認してから来客対応することができます。
人気の南向きのお部屋。また、フローリングなのでお掃除もラクラク。キッチンはシステムキッチン仕様になっていますので、お料理好きの方にもぴったり。また、バス・トイレは別で、のんびりお風呂タイムも楽しめるでしょう。
建物にはエレベーターがついているので、重い荷物があっても安心。
このお部屋は2階以上に位置しているので、通行人や周囲の住人からの視線が気になりにくく、防犯面でも安心。建物のエントランスはオートロックがついており、インターホンにはTVモニタもついているため、相手の顔を確認してから来客対応することができます。
人気の南向きのお部屋。また、フローリングなのでお掃除もラクラク。キッチンはシステムキッチン仕様になっていますので、お料理好きの方にもぴったり。また、バス・トイレは別で、のんびりお風呂タイムも楽しめるでしょう。
建物にはエレベーターがついているので、重い荷物があっても安心。
お金・契約の情報
※「-」と表示されているものは、実際は料金が発生するものもございます。詳細はお問い合わせください。
| 家賃 | 8.5万円 | 管理費・共益費 | 5,000円 |
|---|---|---|---|
| 敷金 | 17万円 | 礼金 | 8.5万円 |
| 入居決定でお祝い金最大100,000円 | |||
| 保証金 | - | 償却・敷引 | - |
| 住宅保険料 | - | 更新料 | - |
| 保証会社利用 | 必須 | 保証会社名 | - |
| 保証会社費用 | - | 保証会社備考 | 保証会社利用必 個人契約は保証会社加入(初回保証料:月額総額の30%、月額保証料:500円、更新保証料1年毎1万円必要) |
| 契約形態 | - | 契約期間 | - |
| 入居・引渡期間 | - | 現況 | - |
| 契約備考 | 合計8.45万円(内訳:初回保証料28320円/簡易消火器6600円/消臭・除菌施工33000円/24時間安心サポート16500円) 2LDK 普通借家2年 損保【要】 バストイレ別、バルコニー、エアコン、フローリング、シャワー付洗面台、TVインターホン、オートロック、室内洗濯置、システムキッチン、南向き、温水洗浄便座、脱衣所、エレベーター、洗面所独立、押入、対面式キッチン、IHクッキングヒーター、照明付、全居室洋室、保証人不要、2沿線利用可、LDK15畳以上、敷金2ヶ月、3駅以上利用可、敷地内ごみ置き場、全居室6畳以上、礼金1ヶ月、IT重説対応物件 入居日:'26年1月下旬 | ||
部屋の情報
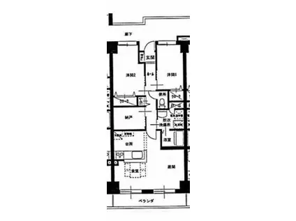
| 間取り | 2LDK | 専有面積 | 65.7m2 |
|---|---|---|---|
| 所在階 / 向き | 4階 / 南 | バルコニー面積 | - |
| 水道 / ガス | - | ||
| 設備 | バス・トイレ別、2階以上、オートロック、テレビドアホン、システムキッチン、エアコン、エレベーター、温水洗浄便座、南向き、バルコニー、フローリング、洗髪洗面化粧台、コンロ:IH、洗濯機:室内 | ||
| 当社物件ID | 160114569 | ||
建物の情報
| 建物名 | TWINマンション 東和 | ||
|---|---|---|---|
| 所在地 | 長野県松本市宮田 | ||
| 交通 | JR篠ノ井線 南松本駅 徒歩11分 JR篠ノ井線 平田駅(長野) 徒歩28分 松本電気鉄道 西松本駅 徒歩34分 | ||
| 階数 | 6階建 | 総戸数 | - |
| 築年月 | 1999年03月 / 築27年 | エレベーター | あり |
| 駐車場 | 空有 4400円 | バイク置き場 | - |
| 駐輪場 | - | 管理人/管理会社 | - |
| 周辺環境 | その他 松本市立開明小学校(小学校)まで533m その他 シネマライツ(その他)まで986m その他 アップルランドデリシア石芝店(スーパー)まで1028m その他 ローソン 松本平田東一丁目店(コンビニ)まで1181m | ||
| 建物種別 | マンション | 建物構造 | RC(鉄筋コンクリート) |
この部屋の取扱い不動産会社
| 会社名 | (株)サンポー松本店(SUUMO経由) | ||
|---|---|---|---|
| 所在地 | 長野県松本市大字島立 899-2 | 交通 | - |
| 営業時間 | 9:30~18:00 | 定休日 | 火曜日 |
| 免許番号 | 長野県知事614 | 取引態様 | 仲介 |
| 不動産会社管理番号 | 100480023056 | 当社管理番号 | 89 |
| 所属団体 | (公社)長野県宅地建物取引業協会会員 | ||
| 公正取引協議会 | (公社)首都圏不動産公正取引協議会加盟 | ||
| 取扱い物件情報 | 物件詳細へ | ||
※各種情報と現状に差異がある場合は、現状優先となります。問い合わせをすることで、より詳しい条件、情報を確認する事ができます。
提供:(株)サンポー松本店(SUUMO経由)
この物件が気になったら掲載期限まであと10日
TWINマンション 東和に条件(家賃・エリア)が近い物件一覧
| 写真 | 家賃 管理費等 | 敷金 礼金 | 間取り 専有面積 | 築年数 | 最寄り駅 所在地 | キープ | 詳細 |
|---|---|---|---|---|---|---|---|
アパート グリシーヌC棟(2DK/1階) | |||||||
![]() | 6.3万円 4,900円 | なし なし | 2DK 48.79m2 | 築23年 | JR篠ノ井線 南松本駅 徒歩11分 松本電気鉄道 西松本駅 徒歩24分 長野県松本市出川 | 詳細を見る | |
アパート ディアス並柳 A(3DK/1階) | |||||||
![]() | 6万円 3,900円 | なし なし | 3DK 56.96m2 | 築25年 | 長野県松本市並柳 | 詳細を見る | |
マンション アーツ本庄(1K/3階) | |||||||
![]() | 5.8万円 3,000円 | 11.6万円 なし | 1K 30.19m2 | 築40年 | 篠ノ井線 松本駅 徒歩8分 長野県松本市本庄1丁目 | 詳細を見る | |
アパート レザンベルジェ(1LDK/2階) | |||||||
![]() | 7.1万円 4,200円 | なし 7.1万円 | 1LDK 50.96m2 | 新築 | JR中央線 みどり湖駅 徒歩21分 JR篠ノ井線 塩尻駅 徒歩32分 JR篠ノ井線 広丘駅 徒歩71分 長野県塩尻市大字塩尻町 | 詳細を見る | |
アパート THREE(1LDK/3階) | |||||||
![]() | 8.1万円 7,000円 | なし 12.15万円 | 1LDK 40.31m2 | 築1年 | 篠ノ井線 平田駅(長野) 徒歩20分 長野県松本市寿中1丁目 | 詳細を見る | |
アパート TAKE‐G(1LDK/2階) | |||||||
![]() | 7.43万円 5,000円 | 7.43万円 3.72万円 | 1LDK 42.23m2 | 築1年 | JR中央線 下諏訪駅 徒歩30分 JR中央線 岡谷駅 徒歩37分 JR中央線 上諏訪駅 徒歩82分 長野県岡谷市長地権現町 | 詳細を見る | |
アパート シャルマンクレール(1LDK/1階) | |||||||
![]() | 5.9万円 3,500円 | なし 5.9万円 | 1LDK 31.92m2 | 築12年 | しなの鉄道 上田駅 徒歩32分 上田電鉄別所線 城下駅(長野) 徒歩45分 上田電鉄別所線 三好町駅 徒歩51分 長野県上田市上田 | 詳細を見る | |
アパート LUMIERE 33(2LDK/3階) | |||||||
![]() | 11.05万円 3,500円 | なし 11.05万円 | 2LDK 55.44m2 | 新築 | しなの鉄道 上田駅 徒歩10分 北陸新幹線 上田駅 徒歩11分 長野県上田市常田 | 詳細を見る | |



/105x80-f1-q70-wp1)

/105x80-f1-q70-wp1)


