賃貸マンション
フラシア新蒲田の賃貸物件情報(1K/1階)
| 家賃 | 管理費等 | 敷金 | 礼金 | 間取り | 専有面積 |
|---|---|---|---|---|---|
| 8.5万円 | 5,000円 | なし | 8.5万円 | 1K | 20m2 |
入居決定でお祝い金最大100,000円
Point
セキュリティ面は、TVインターホン・オートロックなどを備え付けているので安心して暮らせます。
提供:ハウスコム西東京株式会社 五反田店

詳細情報 フラシア新蒲田
物件紹介
フラシア新蒲田は東急多摩川線矢口渡駅から徒歩9分にあり、駅近で通勤通学に便利なマンションです。
建物のエントランスはオートロックがついており、インターホンにはTVモニタもついているため、相手の顔を確認してから来客対応することができます。
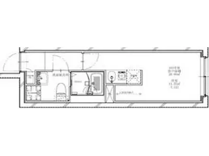
人気の角部屋で周囲の居住者の生活音も気になりにくく、また、フローリングのお部屋なのでお掃除もラクラク。キッチンはシステムキッチン仕様になっていますので、お料理好きの方にもぴったり。また、バス・トイレは別で、のんびりお風呂タイムも楽しめるでしょう。
通信設備面では、インターネットが無料で使えるので、月々の出費を抑えられるのも魅力です(別途工事等が必要な場合あり)。
共用部には宅配ボックスが設定されているので、不在の時にも荷物を受け取ることができます。
コンビニまで徒歩21分の場所にあり、日用品や食料品のお買い物にも便利です。
建物のエントランスはオートロックがついており、インターホンにはTVモニタもついているため、相手の顔を確認してから来客対応することができます。
人気の角部屋で周囲の居住者の生活音も気になりにくく、また、フローリングのお部屋なのでお掃除もラクラク。キッチンはシステムキッチン仕様になっていますので、お料理好きの方にもぴったり。また、バス・トイレは別で、のんびりお風呂タイムも楽しめるでしょう。
通信設備面では、インターネットが無料で使えるので、月々の出費を抑えられるのも魅力です(別途工事等が必要な場合あり)。
共用部には宅配ボックスが設定されているので、不在の時にも荷物を受け取ることができます。
コンビニまで徒歩21分の場所にあり、日用品や食料品のお買い物にも便利です。
お金・契約の情報
※「-」と表示されているものは、実際は料金が発生するものもございます。詳細はお問い合わせください。
| 家賃 | 8.5万円 | 管理費・共益費 | 5,000円 |
|---|---|---|---|
| 敷金 | なし | 礼金 | 8.5万円 |
| 入居決定でお祝い金最大100,000円 | |||
| 保証金 | - | 償却・敷引 | - |
| 住宅保険料 | 1円 | 更新料 | - |
| 保証会社利用 | 必須 | 保証会社名 | - |
| 保証会社費用 | - | 保証会社備考 | 【いえらぶ】初回保証料:月額総賃料の50%、以降毎年10,000円、毎月440円※口振手数料外国籍・生活保護の方初回保証料:月額総賃料の100%、以降毎年15,000円、毎月440円※口振手数料 |
| 契約形態 | - | 契約期間 | 2年 |
| 入居・引渡期間 | 2026年04月上旬 | 現況 | - |
| 契約備考 | 月額(24時間サポート(月) 1100円) その他設備/条件:室内洗濯機置き場、防犯カメラ、シューズボックス | ||
部屋の情報
| 間取り | 1K | 専有面積 | 20m2 |
|---|---|---|---|
| 間取り詳細 | 洋室(11.5帖) | ||
| 所在階 / 向き | 1階 / 東 | バルコニー面積 | - |
| 水道 / ガス | 水道【公営】、ガス【都市】 | ||
| 設備 | バス・トイレ別、オートロック、テレビドアホン、宅配ボックス、インターネット対応、システムキッチン、エアコン、温水洗浄便座、角部屋、フローリング、コンロ:IH、インターネット使用料無料、シャワー、給湯 | ||
| 当社物件ID | 160046676 | ||
建物の情報
| 建物名 | フラシア新蒲田 | ||
|---|---|---|---|
| 所在地 | 東京都大田区新蒲田2丁目 | ||
| 交通 | 東急多摩川線 矢口渡駅 徒歩9分 東急池上線 蓮沼駅 徒歩9分 | ||
| 階数 | 4階建 | 総戸数 | - |
| 築年月 | 2026年03月 / 新築(築1年) | エレベーター | - |
| 駐車場 | - | バイク置き場 | - |
| 駐輪場 | - | 管理人/管理会社 | - |
| 周辺環境 | コンビニ 徒歩21分(1647m) 販売店 徒歩10分(798m) その他 ドラッグストア その他 公園 その他 銀行 その他 * | ||
| 建物種別 | マンション | 建物構造 | RC(鉄筋コンクリート) |
この部屋の取扱い不動産会社
| 会社名 | ハウスコム西東京株式会社 大森店 | ||
|---|---|---|---|
| 所在地 | 東京都大田区2-41階 | 交通 | - |
| 営業時間 | 10:00~18:00 | 定休日 | 水曜定休 |
| 免許番号 | 東京都知事(1)第108225号 | 取引態様 | 仲介 |
| 不動産会社管理番号 | HC4-5288280-103-0220 | 当社管理番号 | 468 |
| 所属団体 | 、 | ||
| 取扱い物件情報 | 物件詳細へ | ||
※各種情報と現状に差異がある場合は、現状優先となります。問い合わせをすることで、より詳しい条件、情報を確認する事ができます。
提供:ハウスコム西東京株式会社 大森店
この物件が気になったら掲載期限まであと5日
フラシア新蒲田に条件(家賃・エリア)が近い物件一覧
| 写真 | 家賃 管理費等 | 敷金 礼金 | 間取り 専有面積 | 築年数 | 最寄り駅 所在地 | キープ | 詳細 |
|---|---|---|---|---|---|---|---|
マンション SEED JUST B-BASE COAST(1LDK/3階) | |||||||
![]() | 9.9万円 1.5万円 | 9.9万円 9.9万円 | 1LDK 25.41m2 | 築1年 | 東京モノレール羽田 昭和島駅 徒歩11分 京浜急行電鉄本線 梅屋敷駅(東京) 徒歩19分 東京都大田区大森南4丁目 | 詳細を見る | |
マンション ロフティ大森町(1DK/1階) | |||||||
![]() | 9.2万円 5,000円 | 9.2万円 9.2万円 | 1DK 28.31m2 | 築22年 | 京浜急行電鉄本線 大森町駅 徒歩7分 京浜急行電鉄本線 梅屋敷駅(東京) 徒歩12分 東京都大田区大森西5丁目 | 詳細を見る | |
アパート アートヒルズ大森中(ワンルーム/1階) | |||||||
![]() | 7万円 2,000円 | 7万円 7万円 | ワンルーム 15.45m2 | 築12年 | 京急本線 大森町駅 徒歩4分 京急本線 梅屋敷駅(東京) 徒歩8分 京急本線 平和島駅 徒歩15分 東京都大田区大森中 | 詳細を見る | |
マンション 京浜急行電鉄本線 梅屋敷駅(東京) 徒歩4分 築37年(ワンルーム/1階) | |||||||
![]() | 7.2万円 3,000円 | 7.2万円 7.2万円 | ワンルーム 17.74m2 | 築37年 | 京浜急行電鉄本線 梅屋敷駅(東京) 徒歩4分 京浜急行電鉄本線 大森町駅 徒歩12分 東京都大田区大森西6丁目 | 詳細を見る | |
マンション メゾン新広尾(1DK/2階) | |||||||
![]() | 9.4万円 5,000円 | 9.4万円 なし | 1DK 31.31m2 | 築24年 | 京浜急行電鉄本線 大森町駅 徒歩7分 京浜急行電鉄本線 梅屋敷駅(東京) 徒歩11分 東京都大田区大森中1丁目 | 詳細を見る | |
アパート シャノワール(2LDK/1階) | |||||||
![]() | 16万円 3,000円 | 16万円 16万円 | 2LDK 47.71m2 | 築3年 | 東急池上線 池上駅 徒歩5分 都営大江戸線 森下駅(東京) 徒歩6分 JR総武線 両国駅 徒歩8分 都営新宿線 浜町駅 徒歩11分 東急池上線 千鳥町駅 徒歩12分 東急多摩川線 武蔵新田駅 徒歩13分 東京都大田区池上 | 詳細を見る | |
マンション カーサ・ヴェルデ(1K/1階) | |||||||
![]() | 5.6万円 3,000円 | 5.6万円 5.6万円 | 1K 15.63m2 | 築37年 | JR京浜東北線 蒲田駅 徒歩14分 東急池上線 池上駅 徒歩16分 京急空港線 京急蒲田駅 徒歩24分 東京都大田区西蒲田 | 詳細を見る | |
マンション ルーブル亀戸天神前(1K/5階) | |||||||
![]() | 13.3万円 1.1万円 | なし 13.3万円 | 1K 25.48m2 | 築13年 | JR総武線 錦糸町駅 徒歩10分 東京メトロ半蔵門線 錦糸町駅 徒歩10分 JR総武線 亀戸駅 徒歩15分 東京都江東区亀戸 | 詳細を見る | |









