賃貸マンション
アドバンテージ天神橋の賃貸物件情報(3LDK/5階)
| 家賃 | 管理費等 | 敷金 | 礼金 | 間取り | 専有面積 |
|---|---|---|---|---|---|
| 19.8万円 | 1.8万円 | なし | 39.6万円 | 3LDK | 68.43m2 |
入居決定でお祝い金最大100,000円
- 保証金
- -
- 償却・敷引
- -
- 築年数
- 築21年
- 所在階
- 5階
- 向き
- 東
Point
◆2025年6月リフォーム済・フロアタイル張、クロス張替、畳表替え、襖張替、ハウスクリーニング等
提供:ひかりホーム(株)(SUUMO経由)

詳細情報 アドバンテージ天神橋
物件紹介
アドバンテージ天神橋は地下鉄谷町線天神橋筋六丁目駅から徒歩1分にあり、駅近で通勤通学に便利なマンションです。
このお部屋は2階以上に位置しているので、通行人や周囲の住人からの視線が気になりにくく、防犯面でも安心。建物のエントランスはオートロックがついており、インターホンにはTVモニタもついているため、相手の顔を確認してから来客対応することができます。
人気の南向きのお部屋。キッチンはシステムキッチン仕様になっていますので、お料理好きの方にもぴったり。バス・トイレは別なので、のんびりお風呂タイムも楽しめるでしょう。また、雨の日でも浴室乾燥機を使えば、お洗濯も問題ありません。
建物にはエレベーターがついているので、重い荷物があっても安心。共用部には宅配ボックスが設定されているので、不在の時にも荷物を受け取ることができます。
このお部屋は2階以上に位置しているので、通行人や周囲の住人からの視線が気になりにくく、防犯面でも安心。建物のエントランスはオートロックがついており、インターホンにはTVモニタもついているため、相手の顔を確認してから来客対応することができます。
人気の南向きのお部屋。キッチンはシステムキッチン仕様になっていますので、お料理好きの方にもぴったり。バス・トイレは別なので、のんびりお風呂タイムも楽しめるでしょう。また、雨の日でも浴室乾燥機を使えば、お洗濯も問題ありません。
建物にはエレベーターがついているので、重い荷物があっても安心。共用部には宅配ボックスが設定されているので、不在の時にも荷物を受け取ることができます。
お金・契約の情報
※「-」と表示されているものは、実際は料金が発生するものもございます。詳細はお問い合わせください。
| 家賃 | 19.8万円 | 管理費・共益費 | 1.8万円 |
|---|---|---|---|
| 敷金 | なし | 礼金 | 39.6万円 |
| 入居決定でお祝い金最大100,000円 | |||
| 保証金 | - | 償却・敷引 | - |
| 住宅保険料 | - | 更新料 | - |
| 契約形態 | 定期借家 | 契約期間 | 5年 |
| 入居・引渡期間 | 即時 | 現況 | - |
| 契約備考 | 巡回管理/※定期借家契約5年(更新可、中途解約可) ハウスクリーニング代:50000円(税別) 3LDK 定期借家5年 損保【要】 バストイレ別、TVインターホン、浴室乾燥機、オートロック、室内洗濯置、シューズボックス、システムキッチン、エレベーター、駐輪場、宅配ボックス、即入居可、3口以上コンロ、分譲賃貸、ルーフバルコニー、東南向き、LDK12畳以上、都市ガス | ||
部屋の情報
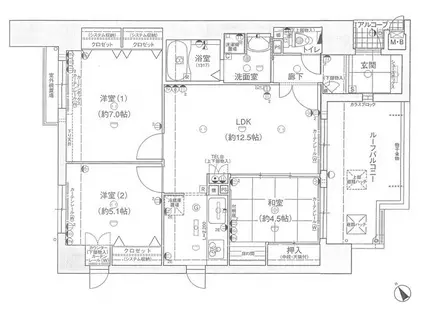
| 間取り | 3LDK | 専有面積 | 68.43m2 |
|---|---|---|---|
| 所在階 / 向き | 5階 / 東 | バルコニー面積 | 10m2 |
| 水道 / ガス | - | ||
| 設備 | バス・トイレ別、2階以上、オートロック、テレビドアホン、宅配ボックス、浴室乾燥機、システムキッチン、エレベーター、南向き、バルコニー、2口コンロ、洗濯機:室内 | ||
| 当社物件ID | 159146555 | ||
建物の情報
| 建物名 | アドバンテージ天神橋 | ||
|---|---|---|---|
| 所在地 | 大阪府大阪市北区天神橋 | ||
| 交通 | 地下鉄谷町線 天神橋筋六丁目駅 徒歩1分 JR大阪環状線 天満駅 徒歩9分 地下鉄堺筋線 扇町駅(大阪) 徒歩11分 | ||
| 階数 | 11階建 | 総戸数 | - |
| 築年月 | 2006年01月 / 築21年 | エレベーター | あり |
| 駐車場 | なし | バイク置き場 | - |
| 駐輪場 | あり | 管理人/管理会社 | - |
| 周辺環境 | その他 ぷららてんま(ショッピングセンター)まで495m その他 ダイコクドラッグ天神橋筋6丁目店(ドラッグストア)まで209m その他 ローソン国分寺1丁目店(コンビニ)まで123m その他 大阪天神橋六郵便局(郵便局)まで76m その他 社会医療法人協和会加納総合病院(病院)まで458m その他 阪急オアシス天六店(スーパー)まで289m | ||
| 建物種別 | マンション | 建物構造 | SRC(鉄骨鉄筋コンクリート) |
この部屋の取扱い不動産会社
| 会社名 | ひかりホーム(株)(SUUMO経由) | ||
|---|---|---|---|
| 所在地 | 大阪府大阪市平野区長吉六反4-2-56 | 交通 | - |
| 営業時間 | 10:00~18:00 | 定休日 | 不定休 |
| 免許番号 | 大阪府知事61409 | 取引態様 | 代理 |
| 不動産会社管理番号 | 100448481491 | 当社管理番号 | 89 |
| 所属団体 | (一社)大阪府宅地建物取引業協会会員 | ||
| 公正取引協議会 | (公社)近畿地区不動産公正取引協議会加盟 | ||
| 取扱い物件情報 | 物件詳細へ | ||
※各種情報と現状に差異がある場合は、現状優先となります。問い合わせをすることで、より詳しい条件、情報を確認する事ができます。
提供:ひかりホーム(株)(SUUMO経由)
この物件が気になったら掲載期限まであと2日
アドバンテージ天神橋に条件(家賃・エリア)が近い物件一覧
| 写真 | 家賃 管理費等 | 敷金 礼金 | 間取り 専有面積 | 築年数 | 最寄り駅 所在地 | キープ | 詳細 |
|---|---|---|---|---|---|---|---|
マンション スプランディッド梅田グランノース(3LDK/3階) | |||||||
| 25.3万円 1.5万円 | なし なし | 3LDK 63.63m2 | 築1年 | 大阪環状線 福島駅(JR西日本) 徒歩17分 阪急電鉄神戸線 中津駅(阪急) 徒歩17分 大阪環状線 大阪駅 徒歩22分 大阪府大阪市北区大淀中5丁目12-43 | 詳細を見る | ||
マンション 千里山東一番館(3LDK/2階) | |||||||
| 12万円 8,000円 | 5万円 28万円 | 3LDK 68.86m2 | 築30年 | 阪急電鉄千里線 千里山駅 徒歩12分 阪急電鉄千里線 関大前駅 徒歩18分 阪急電鉄千里線 豊津駅(大阪) 徒歩27分 大阪府吹田市千里山東4丁目11-1 | 詳細を見る | ||
マンション セントリヴィエ大阪梅田(2LDK/8階) | |||||||
| 19.4万円 1万円 | 5万円 なし | 2LDK 55.11m2 | 築1年 | 大阪市御堂筋線 中津駅(大阪メトロ) 徒歩9分 大阪市谷町線 中崎町駅 徒歩10分 阪急電鉄千里線 天神橋筋六丁目駅 徒歩12分 大阪府大阪市北区本庄西2丁目21-10 | 詳細を見る | ||
マンション GMTENJIMBASHI(1LDK/4階) | |||||||
| 12万円 1万円 | なし 26万円 | 1LDK 36.71m2 | 築1年 | 大阪市谷町線 天神橋筋六丁目駅 徒歩6分 大阪市堺筋線 天神橋筋六丁目駅 徒歩7分 大阪市谷町線 中崎町駅 徒歩15分 大阪府大阪市北区天神橋8丁目5-2 | 詳細を見る | ||
マンション リビエナ グラン 新梅田(2LDK/4階) | |||||||
| 15万円 8,000円 | 5万円 なし | 2LDK 52.45m2 | 新築 | 大阪市千日前線 野田阪神駅 徒歩15分 阪神電鉄本線 野田駅(阪神) 徒歩16分 大阪環状線 福島駅(JR西日本) 徒歩18分 大阪府大阪市北区大淀中5丁目14-168 | 詳細を見る | ||
マンション アルテーヌ浜寺元町(2LDK/3階) | |||||||
![]() | 14万円 1.2万円 | 2万円 29万円 | 2LDK 67m2 | 新築 | 南海電鉄南海本線 浜寺公園駅 徒歩12分 南海電鉄南海本線 諏訪ノ森駅 徒歩15分 南海電鉄南海本線 羽衣駅 徒歩19分 大阪府堺市西区浜寺元町3丁 | 詳細を見る | |
マンション LA DOUCEUR天満(1LDK/9階) | |||||||
| 13.9万円 1.5万円 | なし 15.4万円 | 1LDK 42.05m2 | 築6年 | 大阪環状線 桜ノ宮駅 徒歩8分 JR東西線 大阪天満宮駅 徒歩9分 大阪環状線 天満駅 徒歩10分 大阪府大阪市北区同心2丁目1-34 | 詳細を見る | ||
マンション プレジオ永和ASIAN(1LDK/15階) | |||||||
![]() | 12万円 2万円 | なし なし | 1LDK 42.55m2 | 築1年 | 近鉄難波・奈良線 河内永和駅 徒歩4分 大阪府東大阪市高井田元町2丁目 | 詳細を見る | |



