賃貸マンション
ザ・パークハビオ中野新橋の賃貸物件情報(1LDK/6階)
| 家賃 | 管理費等 | 敷金 | 礼金 | 間取り | 専有面積 |
|---|---|---|---|---|---|
| 17.3万円 | 1.5万円 | 17.3万円 | なし | 1LDK | 37.18m2 |
入居決定でお祝い金最大100,000円
- 保証金
- -
- 償却・敷引
- -
- 築年数
- 築5年
- 所在階
- 6階
- 向き
- 東
Point
室内設備は浴室乾燥機・洗面所独立などが揃っており、とても充実しています。
提供:三菱地所ハウスネット(株)首都圏リーシング部(SUUMO経由)

詳細情報 ザ・パークハビオ中野新橋
物件紹介
ザ・パークハビオ中野新橋は東京地下鉄方南支線中野新橋駅から徒歩1分にあり、駅近で通勤通学に便利なマンションです。
このお部屋は2階以上に位置しているので、通行人や周囲の住人からの視線が気になりにくく、防犯面でも安心。建物のエントランスはオートロックがついており、インターホンにはTVモニタもついているため、相手の顔を確認してから来客対応することができます。
こちらは楽器相談が可能な物件。楽器演奏をお考えの方はぜひ相談してみてください。人気の角部屋で周囲の居住者の生活音も気になりにくく、また、フローリングのお部屋なのでお掃除もラクラク。室内にはウォークインクローゼットがありますので、たくさんの荷物も効率的に収納ができます。キッチンはシステムキッチン仕様になっていますので、お料理好きの方にもぴったり。バス・トイレは別なので、のんびりお風呂タイムも楽しめるでしょう。また、雨の日でも浴室乾燥機を使えば、お洗濯も問題ありません。
通信設備面では、インターネットが無料で使えるので、月々の出費を抑えられるのも魅力です。また、BSアンテナ・CSアンテナがありCATVにも対応しているので、おうち時間も充実するでしょう(別途工事、BS・CS・CATVの契約料等が必要な場合あり)。
建物にはエレベーターがついているので、重い荷物があっても安心。共用部には宅配ボックスが設定されているので、不在の時にも荷物を受け取ることができます。また、ペット飼育の相談ができますので、あなたの大切な家族の一員も快適に暮らせるか、ぜひ確認してみてください。
コンビニまで徒歩2分の場所にあり、日用品や食料品のお買い物にも便利です。
このお部屋は2階以上に位置しているので、通行人や周囲の住人からの視線が気になりにくく、防犯面でも安心。建物のエントランスはオートロックがついており、インターホンにはTVモニタもついているため、相手の顔を確認してから来客対応することができます。
こちらは楽器相談が可能な物件。楽器演奏をお考えの方はぜひ相談してみてください。人気の角部屋で周囲の居住者の生活音も気になりにくく、また、フローリングのお部屋なのでお掃除もラクラク。室内にはウォークインクローゼットがありますので、たくさんの荷物も効率的に収納ができます。キッチンはシステムキッチン仕様になっていますので、お料理好きの方にもぴったり。バス・トイレは別なので、のんびりお風呂タイムも楽しめるでしょう。また、雨の日でも浴室乾燥機を使えば、お洗濯も問題ありません。
通信設備面では、インターネットが無料で使えるので、月々の出費を抑えられるのも魅力です。また、BSアンテナ・CSアンテナがありCATVにも対応しているので、おうち時間も充実するでしょう(別途工事、BS・CS・CATVの契約料等が必要な場合あり)。
建物にはエレベーターがついているので、重い荷物があっても安心。共用部には宅配ボックスが設定されているので、不在の時にも荷物を受け取ることができます。また、ペット飼育の相談ができますので、あなたの大切な家族の一員も快適に暮らせるか、ぜひ確認してみてください。
コンビニまで徒歩2分の場所にあり、日用品や食料品のお買い物にも便利です。
お金・契約の情報
※「-」と表示されているものは、実際は料金が発生するものもございます。詳細はお問い合わせください。
| 家賃 | 17.3万円 | 管理費・共益費 | 1.5万円 |
|---|---|---|---|
| 敷金 | 17.3万円 | 礼金 | なし |
| 入居決定でお祝い金最大100,000円 | |||
| 保証金 | - | 償却・敷引 | - |
| 住宅保険料 | 1円 | 更新料 | - |
| その他費用 | 24時間サポート:1.65万円 | ||
| 保証会社利用 | 必須 | 保証会社名 | SBIギャランティ |
| 保証会社費用 | - | 保証会社備考 | SBIギャランティ 初年度委託料:賃料等合計額の50% |
| 契約形態 | - | 契約期間 | 2年 |
| 入居・引渡期間 | 2026年01月 | 現況 | - |
| 入居可能条件 | 楽器可、ペット可 | ||
| 契約備考 | 1年未満解約時違約金有 駐輪場:無料 ペット(小型犬・猫2匹まで)飼育時敷金積み増し料金(償却)有り その他設備/条件:ごみ出し24時間OK、独立洗面台、防犯カメラ、クローゼット、シューズボックス | ||
部屋の情報
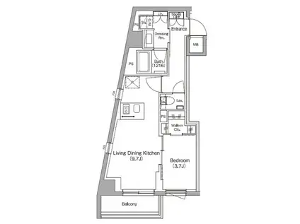
| 間取り | 1LDK | 専有面積 | 37.18m2 |
|---|---|---|---|
| 間取り詳細 | LDK(9.7帖)、洋室(3.7帖) | ||
| 所在階 / 向き | 6階 / 東 | バルコニー面積 | - |
| 水道 / ガス | - | ||
| 設備 | バス・トイレ別、オートロック、テレビドアホン、宅配ボックス、浴室乾燥機、ウォークインクローゼット、追い焚き、システムキッチン、カウンターキッチン、エアコン、エレベーター、温水洗浄便座、バルコニー、フローリング、2口コンロ、コンロ:ガス、CATV、CSアンテナ、BSアンテナ、インターネット使用料無料、シャワー、給湯、タイル張り | ||
| 当社物件ID | 76506020 | ||
建物の情報
| 建物名 | ザ・パークハビオ中野新橋 | ||
|---|---|---|---|
| 所在地 | 東京都中野区弥生町2丁目 | ||
| 交通 | 東京地下鉄方南支線 中野新橋駅 徒歩1分 東京地下鉄方南支線 中野富士見町駅 徒歩10分 | ||
| 階数 | 14階建 | 総戸数 | - |
| 築年月 | 2021年05月 / 築5年 | エレベーター | あり |
| 駐車場 | 空有 4.4万円/月 | バイク置き場 | - |
| 駐輪場 | あり | 管理人/管理会社 | - |
| 周辺環境 | コンビニ 徒歩2分(155m) 販売店 徒歩2分(157m) その他 ドラッグストア その他 公園 その他 銀行 その他 * | ||
| 建物種別 | マンション | 建物構造 | RC(鉄筋コンクリート) |
この部屋の取扱い不動産会社
| 会社名 | ハウスコム東東京株式会社 中野店 | ||
|---|---|---|---|
| 所在地 | 東京都中野区24-9ナカノサウステラ レジデンス棟1階 | 交通 | - |
| 営業時間 | 10:00~18:00 | 定休日 | - |
| 免許番号 | 東京都知事(1)第108283号 | 取引態様 | 仲介 |
| 不動産会社管理番号 | HC2-2352814-606-0174 | 当社管理番号 | 468 |
| 所属団体 | 、 | ||
| 取扱い物件情報 | 物件詳細へ | ||
※各種情報と現状に差異がある場合は、現状優先となります。問い合わせをすることで、より詳しい条件、情報を確認する事ができます。
提供:ハウスコム東東京株式会社 中野店
この物件が気になったら掲載期限まであと4日
ザ・パークハビオ中野新橋に条件(家賃・エリア)が近い物件一覧
| 写真 | 家賃 管理費等 | 敷金 礼金 | 間取り 専有面積 | 築年数 | 最寄り駅 所在地 | キープ | 詳細 |
|---|---|---|---|---|---|---|---|
マンション パインフラット(1DK/4階) | |||||||
![]() | 11.8万円 2,000円 | 11.8万円 11.8万円 | 1DK 36.59m2 | 築55年 | 京王線 笹塚駅 徒歩3分 京王新線 幡ケ谷駅 徒歩14分 小田急線 下北沢駅 徒歩16分 東京都渋谷区笹塚 | 詳細を見る | |
アパート 新日桜2号マンション(3DK/2階) | |||||||
![]() | 21.5万円 5,000円 | 21.5万円 なし | 3DK 52.5m2 | 築10年 | 都営大江戸線 東中野駅 徒歩8分 東京メトロ東西線 落合駅 徒歩10分 JR中央線 中野駅(東京) 徒歩15分 東京都中野区中野 | 詳細を見る | |
マンション パーフェクトルーム(ワンルーム/3階) | |||||||
![]() | 13万円 なし | 13万円 13万円 | ワンルーム 22.27m2 | 築61年 | 東急東横線 代官山駅 徒歩3分 JR山手線 恵比寿駅 徒歩10分 東急東横線 中目黒駅 徒歩11分 東京都渋谷区恵比寿西 | 詳細を見る | |
アパート DOLCE(1K/1階) | |||||||
![]() | 10.9万円 3,000円 | なし 10.9万円 | 1K 32.19m2 | 築2年 | 中央本線 荻窪駅 徒歩8分 中央本線 阿佐ケ谷駅 徒歩13分 東京都杉並区天沼2丁目 | 詳細を見る | |
マンション クレイノル ソレイユ新高円寺(1K/1階) | |||||||
![]() | 11.1万円 5,500円 | なし 11.1万円 | 1K 21.11m2 | 築9年 | 東京メトロ丸ノ内線 新高円寺駅 徒歩3分 JR中央線 高円寺駅 徒歩12分 東京メトロ丸ノ内線 東高円寺駅 徒歩12分 東京都杉並区高円寺南 | 詳細を見る | |
マンション プラウドフラット中野(1K/2階) | |||||||
![]() | 14.1万円 1.2万円 | 14.1万円 14.1万円 | 1K 25.23m2 | 築6年 | JR中央線 中野駅(東京) 徒歩6分 東京メトロ東西線 中野駅(東京) 徒歩6分 JR総武線 中野駅(東京) 徒歩7分 東京都中野区中野 | 詳細を見る | |
マンション SYMPHONY FLAT(1K/7階) | |||||||
![]() | 15.5万円 1万円 | 15.5万円 15.5万円 | 1K 36.18m2 | 築17年 | 中央本線 荻窪駅 徒歩4分 東京都杉並区天沼3丁目 | 詳細を見る | |








