賃貸マンション
ネオステージ四ツ池公園の賃貸物件情報(4LDK/7階)
| 家賃 | 管理費等 | 敷金 | 礼金 | 間取り | 専有面積 |
|---|---|---|---|---|---|
| 17万円 | なし | 34万円 | 17万円 | 4LDK | 104.49m2 |
入居決定でお祝い金最大100,000円
- 保証金
- -
- 償却・敷引
- -
- 築年数
- 築26年
- 所在階
- 7階
- 向き
- 南
Point
この物件のお風呂は追い炊き機能がついています。室内設備は洗面所独立・食器洗乾燥機など豊富に揃っており、過ごしやすいお部屋になっております。地震にも強いRC構造の住宅を、是非引っ越し時にご検討下さい。
提供:ドッとあ~る賃貸浜松高台店(株)ディーアール浜松(SUUMO経由)

詳細情報 ネオステージ四ツ池公園
物件紹介
ネオステージ四ツ池公園は遠州鉄道上島駅から徒歩14分にあるマンションです。
このお部屋は2階以上に位置しているので、通行人や周囲の住人からの視線が気になりにくく、防犯面でも安心です。
人気の南向きのお部屋。角部屋でもあるため、周囲の居住者の生活音も気になりにくい場所です。キッチンはシステムキッチン仕様になっていますので、お料理好きの方にもぴったり。バス・トイレは別なので、のんびりお風呂タイムも楽しめるでしょう。また、雨の日でも浴室乾燥機を使えば、お洗濯も問題ありません。
建物にはエレベーターがついているので、重い荷物があっても安心。共用部には宅配ボックスが設定されているので、不在の時にも荷物を受け取ることができます。
このお部屋は2階以上に位置しているので、通行人や周囲の住人からの視線が気になりにくく、防犯面でも安心です。
人気の南向きのお部屋。角部屋でもあるため、周囲の居住者の生活音も気になりにくい場所です。キッチンはシステムキッチン仕様になっていますので、お料理好きの方にもぴったり。バス・トイレは別なので、のんびりお風呂タイムも楽しめるでしょう。また、雨の日でも浴室乾燥機を使えば、お洗濯も問題ありません。
建物にはエレベーターがついているので、重い荷物があっても安心。共用部には宅配ボックスが設定されているので、不在の時にも荷物を受け取ることができます。
お金・契約の情報
※「-」と表示されているものは、実際は料金が発生するものもございます。詳細はお問い合わせください。
| 家賃 | 17万円 | 管理費・共益費 | なし |
|---|---|---|---|
| 敷金 | 34万円 | 礼金 | 17万円 |
| 入居決定でお祝い金最大100,000円 | |||
| 保証金 | - | 償却・敷引 | - |
| 住宅保険料 | - | 更新料 | - |
| 契約形態 | - | 契約期間 | - |
| 入居・引渡期間 | 即時 | 現況 | - |
| 契約備考 | 住吉バイパス沿い回転寿司スシローさん隣!元気いっぱいのスタッフがお部屋探しのサポートをします!!浜松市中区!まさに浜松市の中心にある高台店!物件情報は浜松市全域をカバー!! 更新料 16500円 サポート月額 月額1210円 4LDK 普通借家2年 損保【要】 バストイレ別、エアコン、ガスコンロ対応、シャワー付洗面台、浴室乾燥機、室内洗濯置、陽当り良好、システムキッチン、南向き、追焚機能浴室、角住戸、温水洗浄便座、脱衣所、エレベーター、洗面所独立、洗面化粧台、宅配ボックス、押入、即入居可、閑静な住宅地、最上階、3口以上コンロ、対面式キッチン、駐車場1台無料、分譲賃貸、保証人不要、食器洗乾燥機、眺望良好、LDK20畳以上、クロゼット2ヶ所、3面バルコニー、バス停徒歩3分以内、敷地内ごみ置き場、全居室6畳以上、都市ガス、初期費用カード決済可、通風良好 | ||
部屋の情報
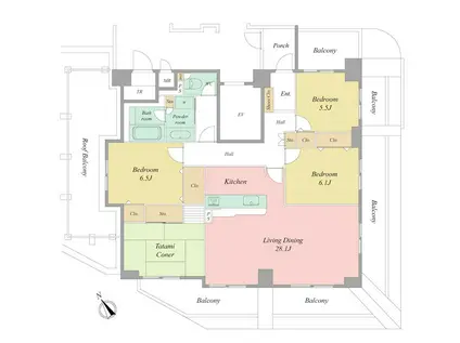
| 間取り | 4LDK | 専有面積 | 104.49m2 |
|---|---|---|---|
| 所在階 / 向き | 7階 / 南 | バルコニー面積 | - |
| 水道 / ガス | - | ||
| 設備 | バス・トイレ別、2階以上、宅配ボックス、浴室乾燥機、追い焚き、システムキッチン、エアコン、エレベーター、温水洗浄便座、南向き、角部屋、バルコニー、洗髪洗面化粧台、2口コンロ、コンロ:ガス、洗濯機:室内 | ||
| 当社物件ID | 159790827 | ||
建物の情報
| 建物名 | ネオステージ四ツ池公園 | ||
|---|---|---|---|
| 所在地 | 静岡県浜松市中央区上島 | ||
| 交通 | 遠州鉄道 上島駅 徒歩14分 遠州鉄道 曳馬駅 徒歩14分 遠州鉄道 自動車学校前駅 徒歩24分 | ||
| 階数 | 7階建 | 総戸数 | - |
| 築年月 | 2000年03月 / 築26年 | エレベーター | あり |
| 駐車場 | 空有 付無料 | バイク置き場 | - |
| 駐輪場 | - | 管理人/管理会社 | - |
| 周辺環境 | その他 上島幼稚園(幼稚園・保育園)まで844m その他 四ツ池ゴルフガーデン(その他)まで564m その他 つり具上州屋浜松店(その他)まで262m その他 カプサイメン浜松店(飲食店)まで876m その他 浜松城北工業高校(高校・高専)まで1681m その他 セブン-イレブン 浜松曳馬6丁目店(コンビニ)まで442m | ||
| 建物種別 | マンション | 建物構造 | RC(鉄筋コンクリート) |
この部屋の取扱い不動産会社
| 会社名 | ドッとあ~る賃貸浜松高台店(株)ディーアール浜松(SUUMO経由) | ||
|---|---|---|---|
| 所在地 | 静岡県浜松市中央区幸2-2-3 | 交通 | - |
| 営業時間 | 9:00~18:00 | 定休日 | 水曜日 |
| 免許番号 | 静岡県知事13486 | 取引態様 | 仲介 |
| 不動産会社管理番号 | 100470557398 | 当社管理番号 | 89 |
| 所属団体 | (公社)全日本不動産協会静岡県本部会員 | ||
| 公正取引協議会 | 東海不動産公正取引協議会加盟 | ||
| 取扱い物件情報 | 物件詳細へ | ||
※各種情報と現状に差異がある場合は、現状優先となります。問い合わせをすることで、より詳しい条件、情報を確認する事ができます。
提供:ドッとあ~る賃貸浜松高台店(株)ディーアール浜松(SUUMO経由)
この物件が気になったら掲載期限まであと10日
ネオステージ四ツ池公園に条件(家賃・エリア)が近い物件一覧
| 写真 | 家賃 管理費等 | 敷金 礼金 | 間取り 専有面積 | 築年数 | 最寄り駅 所在地 | キープ | 詳細 |
|---|---|---|---|---|---|---|---|
マンション ライフインサーラ(4LDK/9階) | |||||||
![]() | 15万円 なし | なし なし | 4LDK 91.19m2 | 築40年 | 東海道本線 浜松駅 徒歩5分 静岡県浜松市中央区砂山町 | 詳細を見る | |
マンション ブライトタウン上島A棟(4LDK/13階) | |||||||
![]() | 16.5万円 なし | 33万円 16.5万円 | 4LDK 95.41m2 | 築23年 | 遠州鉄道 上島駅 徒歩5分 静岡県浜松市中央区上島3丁目 | 詳細を見る | |
一戸建て 東海道本線 舞阪駅 徒歩2分 築1年(2LDK) | |||||||
![]() | 15万円 なし | 30万円 なし | 2LDK 92.68m2 | 築1年 | 東海道本線 舞阪駅 徒歩2分 静岡県浜松市中央区馬郡町 | 詳細を見る | |
マンション MALINO GARDEN(2LDK/3階) | |||||||
![]() | 13.9万円 9,000円 | なし 13.9万円 | 2LDK 59.9m2 | 築2年 | JR東海道本線 浜松駅 徒歩10分 静岡県浜松市中央区元魚町 | 詳細を見る | |
一戸建て 静岡県浜松市中央区 築22年(5LDK) | |||||||
![]() | 14万円 なし | 28万円 14万円 | 5LDK 170.17m2 | 築22年 | 静岡県浜松市中央区大平台2丁目 | 詳細を見る | |
マンション セントラルタワー(3LDK/13階) | |||||||
![]() | 16万円 なし | 32万円 16万円 | 3LDK 79.24m2 | 築26年 | 遠州鉄道 新浜松駅 徒歩7分 遠州鉄道 第一通り駅 徒歩8分 JR東海道本線 浜松駅 徒歩9分 静岡県浜松市中央区鍛冶町 | 詳細を見る | |
テラスハウス アイランドビレッジ(3LDK) | |||||||
![]() | 10.3万円 3,000円 | 10.3万円 なし | 3LDK 79.49m2 | 築26年 | 遠州鉄道 新浜松駅 徒歩20分 遠州鉄道 第一通り駅 徒歩21分 静岡県浜松市中央区鴨江4丁目 | 詳細を見る | |
マンション HEBEL MAISON SOCIA(2LDK/2階) | |||||||
![]() | 12.6万円 8,500円 | 12.6万円 12.6万円 | 2LDK 63.66m2 | 築2年 | 遠州鉄道 新浜松駅 徒歩15分 JR東海道本線 浜松駅 徒歩16分 遠州鉄道 第一通り駅 徒歩21分 静岡県浜松市中央区上浅田 | 詳細を見る | |








