賃貸アパート
第2明徳団地5号館の賃貸物件情報(1DK/2階)
| 家賃 | 管理費等 | 敷金 | 礼金 | 間取り | 専有面積 |
|---|---|---|---|---|---|
| 5万円 | 2,000円 | 5万円 | なし | 1DK | 28.76m2 |
入居決定でお祝い金最大100,000円
- 保証金
- -
- 償却・敷引
- -
- 築年数
- 築59年
- 所在階
- 2階
- 向き
- 南
Point
当物件は初期費用分割払い可(クレジットカード決済も可)/お客様のご希望に合わせた方法(店頭、オンライン等)で物件をご提案いたします。初期費用のお見積りや入居希望日のご相談もお気軽にお問い合わせください
提供:住まいの窓口 (株)アソシエ越谷駅前店(SUUMO経由)

詳細情報 第2明徳団地5号館
物件紹介
第2明徳団地5号館はJR武蔵野線南越谷駅から徒歩7分にあり、駅近で通勤通学に便利なアパートです。
このお部屋は2階以上に位置しているので、通行人や周囲の住人からの視線が気になりにくく、防犯面でも安心です。
人気の南向きのお部屋。角部屋でもあるため、周囲の居住者の生活音も気になりにくい場所です。バス・トイレ別の仕様で、のんびりお風呂タイムも楽しめます。
通信設備面では、インターネット接続が可能です(別途工事、契約料が必要な場合あり)。
このお部屋は2階以上に位置しているので、通行人や周囲の住人からの視線が気になりにくく、防犯面でも安心です。
人気の南向きのお部屋。角部屋でもあるため、周囲の居住者の生活音も気になりにくい場所です。バス・トイレ別の仕様で、のんびりお風呂タイムも楽しめます。
通信設備面では、インターネット接続が可能です(別途工事、契約料が必要な場合あり)。
お金・契約の情報
※「-」と表示されているものは、実際は料金が発生するものもございます。詳細はお問い合わせください。
| 家賃 | 5万円 | 管理費・共益費 | 2,000円 |
|---|---|---|---|
| 敷金 | 5万円 | 礼金 | なし |
| 入居決定でお祝い金最大100,000円 | |||
| 保証金 | - | 償却・敷引 | - |
| 住宅保険料 | - | 更新料 | - |
| 保証会社利用 | 必須 | 保証会社名 | - |
| 保証会社費用 | - | 保証会社備考 | 保証会社利用必 初回:賃料等の60%、継続:800円/月、口座引落し手数料:330円/月 |
| 契約形態 | - | 契約期間 | - |
| 入居・引渡期間 | 即時 | 現況 | - |
| 契約備考 | 獨協医科大学越谷病院まで837m/木村クリニックまで206m/火災保険 必須 20000円2年 入居人数により変更あり/口座引落し手数料330円月額/退去時室内清掃代38500円退去時エアコン清掃代11000円1年未満の解約で賃料1ヶ月相当分の違約金/鍵交換代借主負担 1DK 普通借家2年 損保【要】 バストイレ別、バルコニー、エアコン、ガスコンロ対応、室内洗濯置、南向き、角住戸、駐輪場、押入、光ファイバー、即入居可、礼金不要、2面採光、最上階、全居室収納、敷金1ヶ月、バイク置場、南西角住戸、2沿線利用可、床下収納、保証金不要、浴室に窓、雨戸、始発駅、3駅以上利用可、駅徒歩10分以内、上階無し、和室、プロパンガス、南面バルコニー、高速ネット対応、初期費用カード決済可 | ||
部屋の情報
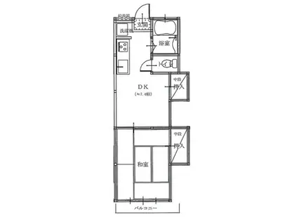
| 間取り | 1DK | 専有面積 | 28.76m2 |
|---|---|---|---|
| 所在階 / 向き | 2階 / 南 | バルコニー面積 | - |
| 水道 / ガス | - | ||
| 設備 | バス・トイレ別、2階以上、インターネット対応、エアコン、南向き、角部屋、バルコニー、床下収納、コンロ:ガス、洗濯機:室内 | ||
| 当社物件ID | 159270603 | ||
建物の情報
| 建物名 | 第2明徳団地5号館 | ||
|---|---|---|---|
| 所在地 | 埼玉県越谷市登戸町 | ||
| 交通 | JR武蔵野線 南越谷駅 徒歩8分 東武伊勢崎線 新越谷駅 徒歩9分 東武伊勢崎線 蒲生駅 徒歩18分 | ||
| 階数 | 2階建 | 総戸数 | - |
| 築年月 | 1968年02月 / 築59年 | エレベーター | - |
| 駐車場 | 近隣 558m7700円 | バイク置き場 | あり |
| 駐輪場 | あり | 管理人/管理会社 | - |
| 周辺環境 | その他 南越谷ラクーン(ショッピングセンター)まで390m その他 ジョイフーズ越谷登戸店(スーパー)まで310m その他 コンビニなんこし(コンビニ)まで163m その他 ウエルシア越谷登戸店(ドラッグストア)まで401m その他 ケーヨーデイツー 南越谷店(ホームセンター)まで628m その他 麺座でん(飲食店)まで424m | ||
| 建物種別 | アパート | 建物構造 | 木造 |
この部屋の取扱い不動産会社
| 会社名 | アエラス川口店 (株)アエラス.FR(SUUMO経由) | ||
|---|---|---|---|
| 所在地 | 埼玉県川口市栄町3-8-4 イソベビル 2階 | 交通 | - |
| 営業時間 | 10:00~19:00(時間外対応出来る場合有り) | 定休日 | 年中無休(年末年始などを除く) |
| 免許番号 | 国土交通大臣10206 | 取引態様 | 仲介 |
| 不動産会社管理番号 | 100486402856 | 当社管理番号 | 89 |
| 所属団体 | (公社)全日本不動産協会埼玉県本部会員 | ||
| 公正取引協議会 | (公社)首都圏不動産公正取引協議会加盟 | ||
| 取扱い物件情報 | 物件詳細へ | ||
※各種情報と現状に差異がある場合は、現状優先となります。問い合わせをすることで、より詳しい条件、情報を確認する事ができます。
提供:アエラス川口店 (株)アエラス.FR(SUUMO経由)
この物件が気になったら掲載期限まであと10日
第2明徳団地5号館に条件(家賃・エリア)が近い物件一覧
| 写真 | 家賃 管理費等 | 敷金 礼金 | 間取り 専有面積 | 築年数 | 最寄り駅 所在地 | キープ | 詳細 |
|---|---|---|---|---|---|---|---|
マンション ベルデュール(2DK/3階) | |||||||
![]() | 7.9万円 3,000円 | 7.9万円 なし | 2DK 46.17m2 | 築25年 | 埼玉高速鉄道 川口元郷駅 徒歩14分 東京メトロ南北線 赤羽岩淵駅 徒歩29分 埼玉県川口市領家 | 詳細を見る | |
マンション WILL DO 越谷(1K/6階) | |||||||
![]() | 7.3万円 5,000円 | 7.3万円 なし | 1K 21m2 | 築22年 | 東武伊勢崎線 越谷駅 徒歩4分 埼玉県越谷市弥生町 | 詳細を見る | |
アパート トリエールもとまち(2DK/2階) | |||||||
![]() | 6.2万円 3,000円 | 6.2万円 6.2万円 | 2DK 36.45m2 | 築40年 | JR京浜東北線 北浦和駅 徒歩4分 JR京浜東北線 与野駅 徒歩22分 JR京浜東北線 浦和駅 徒歩23分 埼玉県さいたま市浦和区元町 | 詳細を見る | |
アパート OKIコーポⅡ(1DK/2階) | |||||||
![]() | 4.8万円 2,000円 | 4.8万円 なし | 1DK 30.18m2 | 築34年 | JR川越線 西大宮駅 徒歩3分 JR川越線 指扇駅 徒歩23分 JR川越線 日進駅(埼玉) 徒歩37分 埼玉県さいたま市西区大字指扇 | 詳細を見る | |
マンション 志陽ハイツK&I(1DK/3階) | |||||||
![]() | 6.6万円 3,000円 | 6.6万円 6.6万円 | 1DK 26.8m2 | 築37年 | JR京浜東北線 西川口駅 徒歩17分 埼玉高速鉄道 南鳩ケ谷駅 徒歩33分 JR京浜東北線 川口駅 徒歩35分 埼玉県川口市西青木 | 詳細を見る | |
アパート ヒカルサさいたま宮原(1K/2階) | |||||||
![]() | 7.8万円 3,500円 | なし 7.8万円 | 1K 28.87m2 | 新築 | 埼玉県さいたま市北区吉野町 | 詳細を見る | |
アパート ハイツSAM(ワンルーム/2階) | |||||||
![]() | 4.3万円 1,000円 | 4.3万円 なし | ワンルーム 21.4m2 | 築61年 | 東武伊勢崎線 草加駅 徒歩6分 東武伊勢崎線 谷塚駅 徒歩18分 東武伊勢崎線 獨協大学前駅 徒歩29分 埼玉県草加市高砂 | 詳細を見る | |
アパート キャメル宮原13(1K/2階) | |||||||
![]() | 6.5万円 3,000円 | なし 6.5万円 | 1K 25.08m2 | 新築 | 埼玉新都市交通伊奈線 加茂宮駅 徒歩7分 JR高崎線 宮原駅 徒歩8分 埼玉新都市交通伊奈線 東宮原駅 徒歩10分 埼玉県さいたま市北区宮原町 | 詳細を見る | |








