賃貸マンション
メインステージ浅草橋駅前の賃貸物件情報(1K/2階)
| 家賃 | 管理費等 | 敷金 | 礼金 | 間取り | 専有面積 |
|---|---|---|---|---|---|
| 12万円 | 1.5万円 | 12万円 | 12万円 | 1K | 29.93m2 |
入居決定でお祝い金最大100,000円
- 保証金
- -
- 償却・敷引
- -
- 築年数
- 築21年
- 所在階
- 2階
- 向き
- 北東
Point
室内見学承ります・お客様のご都合に合わせてオンラインまたはお近くの店舗でご提案可・初期費用分割払い可・クレジットカード利用可・引越業者割引・初期費用のお見積や入居日のご相談もお気軽にお問合せください
提供:(株)リライフ高田馬場店(SUUMO経由)

詳細情報 メインステージ浅草橋駅前
物件紹介
メインステージ浅草橋駅前はJR総武線浅草橋駅から徒歩4分にあり、駅近で通勤通学に便利なマンションです。
このお部屋は2階以上に位置しているので、通行人や周囲の住人からの視線が気になりにくく、防犯面でも安心。建物のエントランスはオートロックがついており、インターホンにはTVモニタもついているため、相手の顔を確認してから来客対応することができます。
フローリングのお部屋なのでお掃除もラクラク。キッチンはシステムキッチン仕様になっていますので、お料理好きの方にもぴったり。バス・トイレは別なので、のんびりお風呂タイムも楽しめるでしょう。また、雨の日でも浴室乾燥機を使えば、お洗濯も問題ありません。
通信設備面では、インターネット接続が可能です(別途工事、契約料が必要な場合あり)。
建物にはエレベーターがついているので、重い荷物があっても安心。共用部には宅配ボックスが設定されているので、不在の時にも荷物を受け取ることができます。
このお部屋は2階以上に位置しているので、通行人や周囲の住人からの視線が気になりにくく、防犯面でも安心。建物のエントランスはオートロックがついており、インターホンにはTVモニタもついているため、相手の顔を確認してから来客対応することができます。
フローリングのお部屋なのでお掃除もラクラク。キッチンはシステムキッチン仕様になっていますので、お料理好きの方にもぴったり。バス・トイレは別なので、のんびりお風呂タイムも楽しめるでしょう。また、雨の日でも浴室乾燥機を使えば、お洗濯も問題ありません。
通信設備面では、インターネット接続が可能です(別途工事、契約料が必要な場合あり)。
建物にはエレベーターがついているので、重い荷物があっても安心。共用部には宅配ボックスが設定されているので、不在の時にも荷物を受け取ることができます。
お金・契約の情報
※「-」と表示されているものは、実際は料金が発生するものもございます。詳細はお問い合わせください。
| 家賃 | 12万円 | 管理費・共益費 | 1.5万円 |
|---|---|---|---|
| 敷金 | 12万円 | 礼金 | 12万円 |
| 入居決定でお祝い金最大100,000円 | |||
| 保証金 | - | 償却・敷引 | - |
| 住宅保険料 | - | 更新料 | - |
| 保証会社利用 | 必須 | 保証会社名 | - |
| 保証会社費用 | - | 保証会社備考 | 保証会社利用必 初回50%~ |
| 契約形態 | - | 契約期間 | - |
| 入居・引渡期間 | - | 現況 | - |
| 契約備考 | 当物件は全物件仲介料半額の「住まいのリライフ」で取り扱っております。リライフは首都圏23店舗のネットワークで豊富な物件情報をご提供いたします。当物件に類似した未公開物件のご提案も可能です。お気軽にお問い合わせください。 合計4.62万円(内訳:鍵交換代金2.97万円AMLクラブサポート(初回のみ)1.65万円) 室内清掃費用4.95万円家財保険+付帯サービス(月額)0.17万円 1K 損保【要】 バストイレ別、バルコニー、エアコン、ガスコンロ対応、クロゼット、フローリング、TVインターホン、浴室乾燥機、オートロック、室内洗濯置、シューズボックス、システムキッチン、温水洗浄便座、脱衣所、エレベーター、洗面所独立、2口コンロ、駐輪場、宅配ボックス、光ファイバー、防犯カメラ、分譲賃貸、保証人不要、ダブルロックキー、24時間換気システム、免震構造、耐震構造、3駅以上利用可、3沿線以上利用可、24時間ゴミ出し可、敷地内ごみ置き場、都市ガス、玄関収納、保証会社利用可、初期費用カード決済可 敷金積み増し【ペット飼育の場合敷金1ヶ月(総額)】 入居日:'26年6月下旬 | ||
部屋の情報
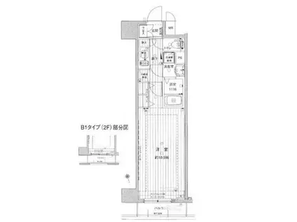
| 間取り | 1K | 専有面積 | 29.93m2 |
|---|---|---|---|
| 所在階 / 向き | 2階 / 北東 | バルコニー面積 | - |
| 水道 / ガス | - | ||
| 設備 | バス・トイレ別、2階以上、オートロック、テレビドアホン、宅配ボックス、浴室乾燥機、インターネット対応、システムキッチン、エアコン、エレベーター、温水洗浄便座、バルコニー、フローリング、洗髪洗面化粧台、2口コンロ、コンロ:ガス、洗濯機:室内 | ||
| 当社物件ID | 10764188 | ||
建物の情報
| 建物名 | メインステージ浅草橋駅前 | ||
|---|---|---|---|
| 所在地 | 東京都台東区柳橋 | ||
| 交通 | JR総武線 浅草橋駅 徒歩4分 都営浅草線 蔵前駅 徒歩8分 JR総武線快速 馬喰町駅 徒歩8分 | ||
| 階数 | 10階建 | 総戸数 | 44戸 |
| 築年月 | 2005年07月 / 築21年 | エレベーター | あり |
| 駐車場 | なし | バイク置き場 | - |
| 駐輪場 | あり | 管理人/管理会社 | - |
| 周辺環境 | その他 ココカラファイン浅草橋店(ドラッグストア)まで296m その他 リコス 柳橋2丁目店(スーパー)まで249m その他 スーパーカエデ・浅草橋店(スーパー)まで393m その他 ファミリーマート都営浅草橋駅前店(コンビニ)まで199m その他 セブンイレブン 台東柳橋2丁目店(コンビニ)まで222m その他 ポニークリーニング柳橋店(その他)まで132m | ||
| 建物種別 | マンション | 建物構造 | RC(鉄筋コンクリート) |
この部屋の取扱い不動産会社
| 会社名 | (株)リライフ本郷三丁目店(SUUMO経由) | ||
|---|---|---|---|
| 所在地 | 東京都文京区本郷2-40-18 本郷協同ビル3階 | 交通 | - |
| 営業時間 | 10:00~20:00 | 定休日 | 水曜日(祝日を除く) |
| 免許番号 | 国土交通大臣10792 | 取引態様 | 仲介 |
| 不動産会社管理番号 | 100493219117 | 当社管理番号 | 89 |
| 所属団体 | (公社)東京都宅地建物取引業協会会員 | ||
| 公正取引協議会 | (公社)首都圏不動産公正取引協議会加盟 | ||
| 取扱い物件情報 | 物件詳細へ | ||
※各種情報と現状に差異がある場合は、現状優先となります。問い合わせをすることで、より詳しい条件、情報を確認する事ができます。
提供:(株)リライフ本郷三丁目店(SUUMO経由)
この物件が気になったら掲載期限まであと11日
メインステージ浅草橋駅前に条件(家賃・エリア)が近い物件一覧
| 写真 | 家賃 管理費等 | 敷金 礼金 | 間取り 専有面積 | 築年数 | 最寄り駅 所在地 | キープ | 詳細 |
|---|---|---|---|---|---|---|---|
マンション インプルーブ両国(ワンルーム/5階) | |||||||
![]() | 8.5万円 1万円 | なし なし | ワンルーム 16.07m2 | 築41年 | JR総武線 両国駅 徒歩6分 都営新宿線 森下駅(東京) 徒歩8分 都営浅草線 東日本橋駅 徒歩16分 東京都墨田区両国 | 詳細を見る | |
マンション ドルチェ月島・弐番館(1K/10階) | |||||||
![]() | 12.8万円 1.1万円 | なし 12.8万円 | 1K 22.7m2 | 築23年 | 都営大江戸線 勝どき駅 徒歩4分 東京メトロ有楽町線 月島駅 徒歩6分 東京メトロ日比谷線 築地駅 徒歩20分 東京都中央区月島 | 詳細を見る | |
マンション プライムステイ築地(ワンルーム/4階) | |||||||
![]() | 8万円 1万円 | 8万円 8万円 | ワンルーム 17.28m2 | 築40年 | 東京地下鉄日比谷線 築地駅 徒歩3分 東京地下鉄有楽町線 新富町駅(東京) 徒歩6分 東京都大江戸線 築地市場駅 徒歩9分 東京都中央区築地3丁目 | 詳細を見る | |
マンション ローズコート日本橋茅場町(1SLDK/2階) | |||||||
![]() | 18万円 5,000円 | 18万円 18万円 | 1SLDK 45.32m2 | 築11年 | 東京メトロ日比谷線 茅場町駅 徒歩4分 東京メトロ日比谷線 八丁堀駅(東京) 徒歩5分 東京メトロ銀座線 日本橋駅(東京) 徒歩6分 東京都中央区日本橋茅場町 | 詳細を見る | |
マンション ガリシア日本橋水天宮II(ワンルーム/6階) | |||||||
![]() | 14.4万円 1.1万円 | なし 14.4万円 | ワンルーム 25.61m2 | 築10年 | 東京地下鉄半蔵門線 水天宮前駅 徒歩3分 東京地下鉄日比谷線 人形町駅 徒歩11分 東京地下鉄東西線 茅場町駅 徒歩13分 東京都中央区日本橋箱崎町 | 詳細を見る | |
マンション サンウッド東日本橋フラッツ(1LDK/3階) | |||||||
![]() | 18万円 9,000円 | 18万円 18万円 | 1LDK 39.93m2 | 築10年 | JR総武線快速 馬喰町駅 徒歩1分 都営浅草線 東日本橋駅 徒歩3分 都営新宿線 馬喰横山駅 徒歩3分 東京都中央区日本橋横山町 | 詳細を見る | |
マンション クレストコート本所吾妻橋ノース 本所吾妻橋ノース(1DK/8階) | |||||||
![]() | 15.7万円 1.2万円 | 15.7万円 なし | 1DK 25.42m2 | 築1年 | 東京都浅草線 本所吾妻橋駅 徒歩2分 東京地下鉄銀座線 浅草駅(東武・都営・メトロ) 徒歩9分 東武伊勢崎・大師線 とうきょうスカイツリー駅 徒歩10分 東京都墨田区吾妻橋2丁目 | 詳細を見る | |
マンション ラング・タワー京橋(1K/4階) | |||||||
![]() | 13.3万円 1.1万円 | なし 13.3万円 | 1K 20.8m2 | 築24年 | 東京メトロ銀座線 京橋駅(東京) 徒歩1分 都営浅草線 宝町駅 徒歩4分 東京メトロ有楽町線 銀座一丁目駅 徒歩8分 東京都中央区京橋 | 詳細を見る | |








