賃貸マンション
グランド・ガーラ川崎西口の賃貸物件情報(1K/15階)
| 家賃 | 管理費等 | 敷金 | 礼金 | 間取り | 専有面積 |
|---|---|---|---|---|---|
| 9万円 | 9,000円 | 9万円 | 18万円 | 1K | 20.21m2 |
入居決定でお祝い金最大100,000円
Point
収納はシューズボックス・クロゼットなどが備え付けられているので、衣類や日用品の収納に重宝します。セキュリティ面は、TVインターホン・オートロックなど充実しているので安心して生活できます。
提供:(株)FJネクスト(SUUMO経由)

詳細情報 グランド・ガーラ川崎西口
物件紹介
グランド・ガーラ川崎西口はJR京浜東北線川崎駅から徒歩10分にあり、駅近で通勤通学に便利なマンションです。
このお部屋は2階以上に位置しているので、通行人や周囲の住人からの視線が気になりにくく、防犯面でも安心。建物のエントランスはオートロックがついており、インターホンにはTVモニタもついているため、相手の顔を確認してから来客対応することができます。
フローリングのお部屋なのでお掃除もラクラク。キッチンはシステムキッチン仕様になっていますので、お料理好きの方にもぴったり。また、浴室乾燥機付きで、雨の日でもお洗濯は問題ありません。
通信設備面では、インターネットが無料で使えるので、月々の出費を抑えられるのも魅力です。また、BSアンテナ・CSアンテナがありCATVにも対応しているので、おうち時間も充実するでしょう(別途工事、BS・CS・CATVの契約料等が必要な場合あり)。
建物にはエレベーターがついているので、重い荷物があっても安心。共用部には宅配ボックスが設定されているので、不在の時にも荷物を受け取ることができます。
このお部屋は2階以上に位置しているので、通行人や周囲の住人からの視線が気になりにくく、防犯面でも安心。建物のエントランスはオートロックがついており、インターホンにはTVモニタもついているため、相手の顔を確認してから来客対応することができます。
フローリングのお部屋なのでお掃除もラクラク。キッチンはシステムキッチン仕様になっていますので、お料理好きの方にもぴったり。また、浴室乾燥機付きで、雨の日でもお洗濯は問題ありません。
通信設備面では、インターネットが無料で使えるので、月々の出費を抑えられるのも魅力です。また、BSアンテナ・CSアンテナがありCATVにも対応しているので、おうち時間も充実するでしょう(別途工事、BS・CS・CATVの契約料等が必要な場合あり)。
建物にはエレベーターがついているので、重い荷物があっても安心。共用部には宅配ボックスが設定されているので、不在の時にも荷物を受け取ることができます。
お金・契約の情報
※「-」と表示されているものは、実際は料金が発生するものもございます。詳細はお問い合わせください。
| 家賃 | 9万円 | 管理費・共益費 | 9,000円 |
|---|---|---|---|
| 敷金 | 9万円 | 礼金 | 18万円 |
| 入居決定でお祝い金最大100,000円 | |||
| 保証金 | - | 償却・敷引 | - |
| 住宅保険料 | - | 更新料 | - |
| 保証会社利用 | 必須 | 保証会社名 | - |
| 保証会社費用 | - | 保証会社備考 | 保証会社利用必 保証料:賃料等の0.5ヶ月分(最低保証料2万円)/月額保証料 賃料等の1.2% |
| 契約形態 | - | 契約期間 | - |
| 入居・引渡期間 | - | 現況 | - |
| 契約備考 | 通勤管理/約330店舗からなる大型ショッピングモールのラゾーナ川崎も徒歩圏内!近隣にスーパーやコンビニ、ドラッグストア等、生活環境も整っています! 合計6.23万円(内訳:(退去時)エアコンクリーニング費用/1台につき1.32万円火災保険(地震特約付き)2.6万円鍵交換代2.31万円) 更新料 新賃料1.00ヶ月分 室内清掃費用 38500円 1K 普通借家2年 損保【2万円2年】 バルコニー、エアコン、ガスコンロ対応、クロゼット、フローリング、TVインターホン、浴室乾燥機、オートロック、室内洗濯置、陽当り良好、シューズボックス、システムキッチン、温水洗浄便座、脱衣所、エレベーター、洗面所独立、洗面化粧台、2口コンロ、駐輪場、宅配ボックス、CATV、光ファイバー、外壁タイル張り、最上階、防犯カメラ、グリル付、保証人不要、24時間緊急通報システム、カードキー、CS、ネット専用回線、ネット使用料不要、眺望良好、24時間換気システム、人感照明センサー、エレベーター2基、始発駅、上階無し、24時間ゴミ出し可、風除室、敷地内ごみ置き場、当社管理物件、都市ガス、BS、LAN、年内入居可、年度内入居可、礼金2ヶ月、初期費用カード決済可、家賃カード決済可 入居日:'26年3月上旬 | ||
部屋の情報
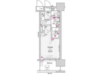
| 間取り | 1K | 専有面積 | 20.21m2 |
|---|---|---|---|
| 所在階 / 向き | 15階 / 西 | バルコニー面積 | 4m2 |
| 水道 / ガス | - | ||
| 設備 | 2階以上、オートロック、テレビドアホン、宅配ボックス、浴室乾燥機、インターネット対応、システムキッチン、エアコン、エレベーター、温水洗浄便座、バルコニー、フローリング、洗髪洗面化粧台、2口コンロ、コンロ:ガス、CATV、CSアンテナ、BSアンテナ、インターネット使用料無料、洗濯機:室内 | ||
| 当社物件ID | 23029347 | ||
建物の情報
| 建物名 | グランド・ガーラ川崎西口 | ||
|---|---|---|---|
| 所在地 | 神奈川県川崎市幸区南幸町 | ||
| 交通 | JR京浜東北線 川崎駅 徒歩10分 京急本線 京急川崎駅 徒歩13分 | ||
| 階数 | 15階建 | 総戸数 | 168戸 |
| 築年月 | 2016年09月 / 築10年 | エレベーター | あり |
| 駐車場 | 空有 21000円 | バイク置き場 | - |
| 駐輪場 | あり | 管理人/管理会社 | - |
| 周辺環境 | その他 公園(その他)まで282m その他 ラゾーナ川崎プラザ(ショッピングセンター)まで605m その他 いなげや川崎幸店(その他)まで196m その他 セイジョー(ドラッグストア)まで160m | ||
| 建物種別 | マンション | 建物構造 | RC(鉄筋コンクリート) |
この部屋の取扱い不動産会社
| 会社名 | (株)FJネクスト(SUUMO経由) | ||
|---|---|---|---|
| 所在地 | 東京都新宿区西新宿6-5-1 新宿アイランドタワー11階 | 交通 | - |
| 営業時間 | 10:00~19:00 | 定休日 | 年中無休 |
| 免許番号 | 国土交通大臣9976 | 取引態様 | 貸主 |
| 不動産会社管理番号 | 100486182882 | 当社管理番号 | 89 |
| 所属団体 | (公社)全日本不動産協会東京都本部会員 | ||
| 公正取引協議会 | (公社)首都圏不動産公正取引協議会加盟 | ||
| 取扱い物件情報 | 物件詳細へ | ||
※各種情報と現状に差異がある場合は、現状優先となります。問い合わせをすることで、より詳しい条件、情報を確認する事ができます。
提供:(株)FJネクスト(SUUMO経由)
この物件が気になったら掲載期限まであと10日
グランド・ガーラ川崎西口に条件(家賃・エリア)が近い物件一覧
| 写真 | 家賃 管理費等 | 敷金 礼金 | 間取り 専有面積 | 築年数 | 最寄り駅 所在地 | キープ | 詳細 |
|---|---|---|---|---|---|---|---|
マンション サニーウェル新川崎II(1LDK/1階) | |||||||
![]() | 12.6万円 4,000円 | 12.6万円 18.9万円 | 1LDK 41.31m2 | 築1年 | JR南武線 矢向駅 徒歩9分 JR南武線 鹿島田駅 徒歩12分 JR横須賀線 新川崎駅 徒歩12分 神奈川県川崎市幸区東小倉 | 詳細を見る | |
マンション エスポワール藤が丘(3LDK/1階) | |||||||
![]() | 10.6万円 4,000円 | 10.6万円 10.6万円 | 3LDK 65.56m2 | 築38年 | 東急田園都市線 藤が丘駅(神奈川) 徒歩9分 神奈川県横浜市青葉区千草台 | 詳細を見る | |
アパート 西根ハイツII(2DK/2階) | |||||||
![]() | 6万円 2,000円 | 6万円 なし | 2DK 37.3m2 | 築39年 | ブルーライン 舞岡駅 徒歩18分 神奈川県横浜市戸塚区舞岡町 | 詳細を見る | |
アパート FIORE(2LDK/1階) | |||||||
![]() | 13.4万円 5,000円 | 13.4万円 13.4万円 | 2LDK 51.77m2 | 築2年 | JR横浜線 長津田駅 徒歩15分 JR横浜線 十日市場駅(神奈川) 徒歩19分 東急田園都市線 田奈駅 徒歩19分 神奈川県横浜市緑区いぶき野 | 詳細を見る | |
アパート 西田ハイツ(2K/1階) | |||||||
![]() | 7万円 なし | 14万円 なし | 2K 35m2 | 築44年 | JR南武線 矢向駅 徒歩36分 JR横須賀線 新川崎駅 徒歩39分 神奈川県横浜市鶴見区駒岡 | 詳細を見る | |
アパート プレジール(1LDK/1階) | |||||||
![]() | 13.4万円 7,000円 | なし 26.8万円 | 1LDK 43.01m2 | 築9年 | 南武線 尻手駅 徒歩3分 神奈川県横浜市鶴見区矢向2丁目 | 詳細を見る | |
アパート アリビオ上大岡(ワンルーム/1階) | |||||||
![]() | 5.8万円 2,000円 | なし なし | ワンルーム 16.56m2 | 築8年 | 京急本線 上大岡駅 徒歩9分 ブルーライン 港南中央駅 徒歩15分 ブルーライン 上永谷駅 徒歩29分 神奈川県横浜市港南区大久保 | 詳細を見る | |
アパート アーヴェル三ツ沢下町(ワンルーム/2階) | |||||||
![]() | 6.2万円 3,000円 | なし なし | ワンルーム 14.61m2 | 築9年 | 横浜市ブルーライン 三ツ沢下町駅 徒歩3分 神奈川県横浜市神奈川区三ツ沢東町 | 詳細を見る | |








