賃貸マンション
グランド・ガーラ川崎西口の賃貸物件情報(1K/12階)
| 家賃 | 管理費等 | 敷金 | 礼金 | 間取り | 専有面積 |
|---|---|---|---|---|---|
| 8.75万円 | 9,000円 | 8.75万円 | 17.5万円 | 1K | 20.21m2 |
入居決定でお祝い金最大100,000円
- 保証金
- -
- 償却・敷引
- -
- 築年数
- 築10年
- 所在階
- 12階
- 向き
- 西
Point
【チャットで気軽にご相談可能】都心にアクセス良好でON/OFF充実♪女性も安心できるオートロック・こだわり設備のお部屋★日常生活に便利なロケーション★オンライン相談や現地待ち合わせなどもご相談下さい!
提供:(株)クレアスレント横浜店(SUUMO経由)

詳細情報 グランド・ガーラ川崎西口
物件紹介
グランド・ガーラ川崎西口はJR京浜東北線川崎駅から徒歩10分にあり、駅近で通勤通学に便利なマンションです。
このお部屋は2階以上に位置しているので、通行人や周囲の住人からの視線が気になりにくく、防犯面でも安心。建物のエントランスはオートロックがついており、インターホンにはTVモニタもついているため、相手の顔を確認してから来客対応することができます。
おしゃれなデザイナーズ物件!フローリングのお部屋なのでお掃除もラクラク。キッチンはシステムキッチン仕様になっていますので、お料理好きの方にもぴったり。バス・トイレは別なので、のんびりお風呂タイムも楽しめるでしょう。また、雨の日でも浴室乾燥機を使えば、お洗濯も問題ありません。
通信設備面では、インターネットが無料で使えるので、月々の出費を抑えられるのも魅力です。また、BSアンテナ・CSアンテナもありますので、おうち時間も充実するでしょう(別途工事、BS・CSの契約料等が必要な場合あり)。
建物にはエレベーターがついているので、重い荷物があっても安心。共用部には宅配ボックスが設定されているので、不在の時にも荷物を受け取ることができます。
このお部屋は2階以上に位置しているので、通行人や周囲の住人からの視線が気になりにくく、防犯面でも安心。建物のエントランスはオートロックがついており、インターホンにはTVモニタもついているため、相手の顔を確認してから来客対応することができます。
おしゃれなデザイナーズ物件!フローリングのお部屋なのでお掃除もラクラク。キッチンはシステムキッチン仕様になっていますので、お料理好きの方にもぴったり。バス・トイレは別なので、のんびりお風呂タイムも楽しめるでしょう。また、雨の日でも浴室乾燥機を使えば、お洗濯も問題ありません。
通信設備面では、インターネットが無料で使えるので、月々の出費を抑えられるのも魅力です。また、BSアンテナ・CSアンテナもありますので、おうち時間も充実するでしょう(別途工事、BS・CSの契約料等が必要な場合あり)。
建物にはエレベーターがついているので、重い荷物があっても安心。共用部には宅配ボックスが設定されているので、不在の時にも荷物を受け取ることができます。
お金・契約の情報
※「-」と表示されているものは、実際は料金が発生するものもございます。詳細はお問い合わせください。
| 家賃 | 8.75万円 | 管理費・共益費 | 9,000円 |
|---|---|---|---|
| 敷金 | 8.75万円 | 礼金 | 17.5万円 |
| 入居決定でお祝い金最大100,000円 | |||
| 保証金 | - | 償却・敷引 | - |
| 住宅保険料 | - | 更新料 | - |
| 保証会社利用 | 必須 | 保証会社名 | - |
| 保証会社費用 | - | 保証会社備考 | 保証会社利用必 賃料等の0.5ヶ月分(最低保証料2万円)/月額保証料1.2% |
| 契約形態 | - | 契約期間 | - |
| 入居・引渡期間 | - | 現況 | - |
| 契約備考 | ルームクリーニング費用38500円、保証会社利用必須、更新事務手数料13200円、エアコンクリーニング費用13200円※仕様・図面・写真等に相違があった場合は現況を優先します 合計2.31万円(内訳:鍵交換代2.31万円) 更新料 新賃料1.00ヶ月分 1K 普通借家2年 損保【3.3万円2年】 バストイレ別、バルコニー、エアコン、ガスコンロ対応、クロゼット、フローリング、TVインターホン、浴室乾燥機、オートロック、室内洗濯置、シューズボックス、システムキッチン、温水洗浄便座、脱衣所、エレベーター、洗面所独立、洗面化粧台、2口コンロ、駐輪場、宅配ボックス、防犯カメラ、分譲賃貸、グリル付、保証人不要、バイク置場、カードキー、デザイナーズ、CS、ネット専用回線、ネット使用料不要、24時間換気システム、人感照明センサー、エレベーター2基、3沿線以上利用可、24時間ゴミ出し可、敷地内ごみ置き場、都市ガス、BS、マルチメディアコンセント 入居日:'26年2月中旬 | ||
部屋の情報
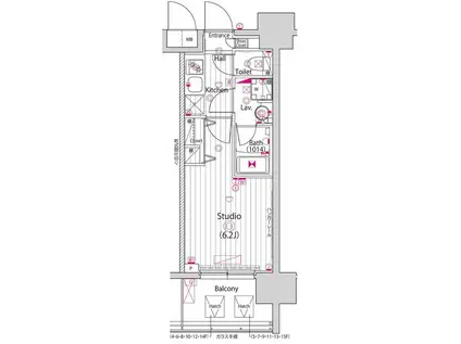
| 間取り | 1K | 専有面積 | 20.21m2 |
|---|---|---|---|
| 所在階 / 向き | 12階 / 西 | バルコニー面積 | - |
| 水道 / ガス | - | ||
| 設備 | バス・トイレ別、2階以上、オートロック、テレビドアホン、宅配ボックス、浴室乾燥機、インターネット対応、システムキッチン、エアコン、エレベーター、温水洗浄便座、バルコニー、フローリング、洗髪洗面化粧台、2口コンロ、コンロ:ガス、デザイナーズ、CSアンテナ、BSアンテナ、インターネット使用料無料、洗濯機:室内 | ||
| 当社物件ID | 21742274 | ||
建物の情報
| 建物名 | グランド・ガーラ川崎西口 | ||
|---|---|---|---|
| 所在地 | 神奈川県川崎市幸区南幸町 | ||
| 交通 | JR京浜東北線 川崎駅 徒歩10分 JR南武線 尻手駅 徒歩12分 京急本線 京急川崎駅 徒歩13分 | ||
| 階数 | 15階建 | 総戸数 | - |
| 築年月 | 2016年09月 / 築10年 | エレベーター | あり |
| 駐車場 | なし | バイク置き場 | あり |
| 駐輪場 | あり | 管理人/管理会社 | - |
| 周辺環境 | その他 吉野家 川崎西口店(飲食店)まで433m その他 まいばすけっと 川崎中幸町3丁目店(スーパー)まで270m その他 フレッシュフードストア 文化堂 川崎店(スーパー)まで314m その他 ラゾーナ川崎プラザ(ショッピングセンター)まで483m その他 ファミリーマート 川崎南幸町店(コンビニ)まで54m その他 ココカラファイン 南幸町店(ドラッグストア)まで103m | ||
| 建物種別 | マンション | 建物構造 | RC(鉄筋コンクリート) |
この部屋の取扱い不動産会社
| 会社名 | (株)クレアスレント横浜店(SUUMO経由) | ||
|---|---|---|---|
| 所在地 | 神奈川県横浜市神奈川区台町 17-1 マストビル7階 | 交通 | - |
| 営業時間 | 10時~19時 | 定休日 | 毎週水曜日・GW・夏季・年末年 |
| 免許番号 | 国土交通大臣10473 | 取引態様 | 仲介 |
| 不動産会社管理番号 | 100480568501 | 当社管理番号 | 89 |
| 所属団体 | (公社)東京都宅地建物取引業協会会員 | ||
| 公正取引協議会 | (公社)首都圏不動産公正取引協議会加盟 | ||
| 取扱い物件情報 | 物件詳細へ | ||
※各種情報と現状に差異がある場合は、現状優先となります。問い合わせをすることで、より詳しい条件、情報を確認する事ができます。
提供:(株)クレアスレント横浜店(SUUMO経由)
この物件が気になったら掲載期限まであと12日
グランド・ガーラ川崎西口に条件(家賃・エリア)が近い物件一覧
| 写真 | 家賃 管理費等 | 敷金 礼金 | 間取り 専有面積 | 築年数 | 最寄り駅 所在地 | キープ | 詳細 |
|---|---|---|---|---|---|---|---|
アパート レオパレス戸塚吉田町(1K/1階) | |||||||
![]() | 7.1万円 5,500円 | なし 7.1万円 | 1K 20.28m2 | 築17年 | 東海道本線 戸塚駅 徒歩17分 神奈川県横浜市戸塚区吉田町 | 詳細を見る | |
マンション IXO 笠間Ⅱ(1K/2階) | |||||||
![]() | 8.15万円 5,000円 | なし 8.15万円 | 1K 26.08m2 | 新築 | 神奈川県横浜市栄区笠間5丁目 | 詳細を見る | |
アパート レオパレスリブェール岩崎(1K/2階) | |||||||
![]() | 6.8万円 5,500円 | なし 6.8万円 | 1K 19.87m2 | 築24年 | 神奈川県横浜市栄区上郷町 | 詳細を見る | |
マンション シャルム協和(1LDK/8階) | |||||||
![]() | 10.4万円 8,000円 | 10.4万円 20.8万円 | 1LDK 38.88m2 | 築20年 | JR横浜線 新横浜駅 徒歩9分 ブルーライン 岸根公園駅 徒歩17分 JR横浜線 小机駅 徒歩17分 神奈川県横浜市港北区新横浜 | 詳細を見る | |
アパート ハーミットクラブハウス横浜駅西(1K/2階) | |||||||
![]() | 8.5万円 2,000円 | なし なし | 1K 27.57m2 | 築1年 | 横浜市ブルーライン 三ツ沢上町駅 徒歩19分 東急東横線 横浜駅 徒歩22分 神奈川県横浜市西区浅間台 | 詳細を見る | |
マンション ガーラ横濱関内グランドステージ(1K/8階) | |||||||
![]() | 7.85万円 9,000円 | 7.85万円 15.7万円 | 1K 21.75m2 | 築9年 | 京浜東北・根岸線 関内駅 徒歩5分 神奈川県横浜市中区不老町3丁目 | 詳細を見る | |
マンション ラフィスタ横浜蒔田II(1K/6階) | |||||||
![]() | 7.45万円 1.5万円 | なし 7.45万円 | 1K 21.46m2 | 築4年 | ブルーライン 蒔田駅 徒歩5分 京急本線 井土ケ谷駅 徒歩12分 神奈川県横浜市南区通町 | 詳細を見る | |



/105x80-f1-q70-wp1)




