賃貸マンション
青山第一マンションズの賃貸物件情報(3LDK/16階)
| 家賃 | 管理費等 | 敷金 | 礼金 | 間取り | 専有面積 |
|---|---|---|---|---|---|
| 155万円 | なし | 620万円 | なし | 3LDK | 205.59m2 |
入居決定でお祝い金最大100,000円
- 保証金
- -
- 償却・敷引
- -
- 築年数
- 築23年
- 所在階
- 16階
- 向き
- 南
Point
まずはお問い合わせ!
不動産会社は街のプロ、あなたに合った物件がきっと見つかります。
提供:(株)リアルビジョン青山支店(SUUMO経由)

詳細情報 青山第一マンションズ
物件紹介
青山第一マンションズは東京メトロ銀座線青山一丁目駅から徒歩3分にあり、駅近で通勤通学に便利なマンションです。
このお部屋は2階以上に位置しているので、通行人や周囲の住人からの視線が気になりにくく、防犯面でも安心。建物のエントランスはオートロックがついており、インターホンにはTVモニタもついているため、相手の顔を確認してから来客対応することができます。
おしゃれなデザイナーズ物件!また、楽器相談が可能な物件となっているので、楽器演奏をお考えの方はぜひ相談してみてください。人気の南向き・フローリングのお部屋。角部屋でもあるため、周囲の居住者の生活音も気になりにくい場所です。室内にはウォークインクローゼットがありますので、たくさんの荷物も効率的に収納ができます。キッチンはシステムキッチン仕様になっていますので、お料理好きの方にもぴったり。バス・トイレは別なので、のんびりお風呂タイムも楽しめるでしょう。また、雨の日でも浴室乾燥機を使えば、お洗濯も問題ありません。
通信設備面では、インターネットが無料で使えるので、月々の出費を抑えられるのも魅力です。また、BSアンテナ・CSアンテナがありCATVにも対応しているので、おうち時間も充実するでしょう(別途工事、BS・CS・CATVの契約料等が必要な場合あり)。
床暖房があり、冬も足元から暖かく快適に過ごすことができます。建物にはエレベーターがついているので、重い荷物があっても安心。共用部には宅配ボックスが設定されているので、不在の時にも荷物を受け取ることができます。
このお部屋は2階以上に位置しているので、通行人や周囲の住人からの視線が気になりにくく、防犯面でも安心。建物のエントランスはオートロックがついており、インターホンにはTVモニタもついているため、相手の顔を確認してから来客対応することができます。
おしゃれなデザイナーズ物件!また、楽器相談が可能な物件となっているので、楽器演奏をお考えの方はぜひ相談してみてください。人気の南向き・フローリングのお部屋。角部屋でもあるため、周囲の居住者の生活音も気になりにくい場所です。室内にはウォークインクローゼットがありますので、たくさんの荷物も効率的に収納ができます。キッチンはシステムキッチン仕様になっていますので、お料理好きの方にもぴったり。バス・トイレは別なので、のんびりお風呂タイムも楽しめるでしょう。また、雨の日でも浴室乾燥機を使えば、お洗濯も問題ありません。
通信設備面では、インターネットが無料で使えるので、月々の出費を抑えられるのも魅力です。また、BSアンテナ・CSアンテナがありCATVにも対応しているので、おうち時間も充実するでしょう(別途工事、BS・CS・CATVの契約料等が必要な場合あり)。
床暖房があり、冬も足元から暖かく快適に過ごすことができます。建物にはエレベーターがついているので、重い荷物があっても安心。共用部には宅配ボックスが設定されているので、不在の時にも荷物を受け取ることができます。
お金・契約の情報
※「-」と表示されているものは、実際は料金が発生するものもございます。詳細はお問い合わせください。
| 家賃 | 155万円 | 管理費・共益費 | なし |
|---|---|---|---|
| 敷金 | 620万円 | 礼金 | なし |
| 入居決定でお祝い金最大100,000円 | |||
| 保証金 | - | 償却・敷引 | - |
| 住宅保険料 | - | 更新料 | - |
| 保証会社利用 | 必須 | 保証会社名 | リクルートフォレントインシュア |
| 保証会社費用 | - | 保証会社備考 | オリコフォレントインシュア利用必 初回保証料:賃料の50%~ 継続保証料:1万円/年 |
| 契約形態 | 定期借家 | 契約期間 | 2年 |
| 入居・引渡期間 | 相談 | 現況 | - |
| 契約備考 | 常駐管理/仲介手数料無料 3LDK 定期借家2年 損保【要】 バストイレ別、バルコニー、クロゼット、オートロック、陽当り良好、システムキッチン、南向き、温水洗浄便座、洗面所独立、駐輪場、CATV、光ファイバー、3口以上コンロ、IHクッキングヒーター、24時間有人管理、ウォークインクロゼット、冷蔵庫、仲介手数料不要、ディンプルキー、洗濯機、ネット使用料不要、浄水器、眺望良好、エアコン全室、乾燥機、ディスポーザー、24時間換気システム、オーブンレンジ、フロントサービス、電子レンジ、エレベーター2基、耐震構造、外国製キッチン、3駅以上利用可、3沿線以上利用可、タワー型マンション、ゴミ回収サービス、24時間ゴミ出し可、敷地内ごみ置き場、来客用パーキング、セキュリティ会社加入済、LDK25畳以上、キッチン5畳以上、トイレ3ヶ所、高速ネット対応 | ||
部屋の情報
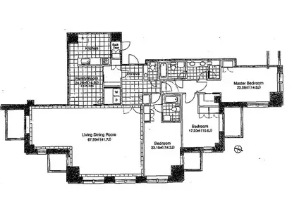
| 間取り | 3LDK | 専有面積 | 205.59m2 |
|---|---|---|---|
| 所在階 / 向き | 16階 / 南 | バルコニー面積 | - |
| 水道 / ガス | - | ||
| 設備 | バス・トイレ別、2階以上、オートロック、ウォークインクローゼット、インターネット対応、システムキッチン、エアコン、エレベーター、温水洗浄便座、南向き、バルコニー、洗髪洗面化粧台、タワーマンション、2口コンロ、コンロ:IH、CATV、インターネット使用料無料 | ||
| 当社物件ID | 30928424 | ||
建物の情報
| 建物名 | 青山第一マンションズ | ||
|---|---|---|---|
| 所在地 | 東京都港区赤坂 | ||
| 交通 | 東京メトロ銀座線 青山一丁目駅 徒歩3分 東京メトロ半蔵門線 青山一丁目駅 徒歩3分 都営大江戸線 青山一丁目駅 徒歩3分 | ||
| 階数 | 地下2地上22階建 | 総戸数 | - |
| 築年月 | 2003年08月 / 築23年 | エレベーター | あり |
| 駐車場 | 空有 49500円 | バイク置き場 | - |
| 駐輪場 | あり | 管理人/管理会社 | - |
| 周辺環境 | その他 AOYAMA TWINショッピングプラザ(ショッピングセンター)まで100m その他 まいばすけっと青山一丁目店(スーパー)まで200m その他 ファミリーマート青山外苑東通り店(コンビニ)まで100m その他 タリーズコーヒー青山一丁目店(飲食店)まで100m その他 医療法人財団順和会山王メディカルセンター(病院)まで150m その他 赤坂郵便局(郵便局)まで50m | ||
| 建物種別 | マンション | 建物構造 | SRC(鉄骨鉄筋コンクリート) |
この部屋の取扱い不動産会社
| 会社名 | (株)リロケーションハウス(SUUMO経由) | ||
|---|---|---|---|
| 所在地 | 東京都港区南青山5-15-14 南青山吉岡ビル1階 | 交通 | - |
| 営業時間 | AM10:00~PM7:00 | 定休日 | 年末年始 |
| 免許番号 | 東京都知事60886 | 取引態様 | 仲介 |
| 不動産会社管理番号 | 100165947493 | 当社管理番号 | 89 |
| 所属団体 | (公社)東京都宅地建物取引業協会会員 | ||
| 公正取引協議会 | (公社)首都圏不動産公正取引協議会加盟 | ||
| 取扱い物件情報 | 物件詳細へ | ||
※各種情報と現状に差異がある場合は、現状優先となります。問い合わせをすることで、より詳しい条件、情報を確認する事ができます。
提供:(株)リロケーションハウス(SUUMO経由)
この物件が気になったら掲載期限まであと5日
青山第一マンションズに条件(家賃・エリア)が近い物件一覧
| 写真 | 家賃 管理費等 | 敷金 礼金 | 間取り 専有面積 | 築年数 | 最寄り駅 所在地 | キープ | 詳細 |
|---|---|---|---|---|---|---|---|
マンション 麻布台ヒルズレジデンスB(2LDK/21階) | |||||||
![]() | 140万円 なし | 420万円 140万円 | 2LDK 95.45m2 | 築1年 | 東京メトロ南北線 六本木一丁目駅 徒歩2分 東京メトロ日比谷線 神谷町駅 徒歩8分 東京都港区麻布台 | 詳細を見る | |
マンション レジディア西麻布(4LDK/12階) | |||||||
![]() | 138.5万円 1.5万円 | 138.5万円 138.5万円 | 4LDK 166.06m2 | 築22年 | 東京メトロ日比谷線 六本木駅 徒歩9分 東京メトロ日比谷線 広尾駅 徒歩10分 東京メトロ南北線 麻布十番駅 徒歩18分 東京都港区西麻布 | 詳細を見る | |
マンション プライムメゾン御殿山ウエスト(3LDK/2階) | |||||||
![]() | 100万円 なし | 300万円 100万円 | 3LDK 126.77m2 | 築15年 | JR山手線 大崎駅 徒歩12分 JR山手線 五反田駅 徒歩14分 JR山手線 品川駅 徒歩15分 東京都品川区北品川 | 詳細を見る | |
マンション ブランズ千代田富士見(3LDK/12階) | |||||||
![]() | 120万円 5万円 | 120万円 120万円 | 3LDK 109.58m2 | 築1年 | 東京地下鉄東西線 九段下駅 徒歩5分 東京都千代田区富士見1丁目 | 詳細を見る | |
マンション クラッシィタワー新宿御苑(3LDK/27階) | |||||||
![]() | 110万円 3.5万円 | 110万円 110万円 | 3LDK 116.14m2 | 築2年 | 東京地下鉄丸ノ内線 新宿御苑前駅 徒歩6分 東京地下鉄丸ノ内線 四谷三丁目駅 徒歩8分 東京都新宿区四谷4丁目 | 詳細を見る | |
マンション 三田ガーデンヒルズ ノースヒル(2SLDK/13階) | |||||||
![]() | 123万円 なし | 123万円 123万円 | 2SLDK 95.25m2 | 築1年 | 東京メトロ南北線 麻布十番駅 徒歩5分 都営大江戸線 赤羽橋駅 徒歩6分 都営三田線 芝公園駅 徒歩10分 東京都港区三田 | 詳細を見る | |
マンション 三田ガーデンヒルズ(3LDK/1階) | |||||||
![]() | 180万円 なし | 360万円 なし | 3LDK 100.36m2 | 築1年 | 東京メトロ南北線 麻布十番駅 徒歩7分 都営大江戸線 赤羽橋駅 徒歩10分 都営三田線 芝公園駅 徒歩12分 東京都港区三田 | 詳細を見る | |




/105x80-f1-q70-wp1)


