賃貸マンション
フェニックス代田橋ノースの賃貸物件情報(1K/3階)
| 家賃 | 管理費等 | 敷金 | 礼金 | 間取り | 専有面積 |
|---|---|---|---|---|---|
| 7.9万円 | 6,000円 | 7.9万円 | 7.9万円 | 1K | 20.34m2 |
入居決定でお祝い金最大100,000円
- 保証金
- -
- 償却・敷引
- -
- 築年数
- 築19年
- 所在階
- 3階
- 向き
- 北東
Point
未公開写真や類似物件をホームページへ公開中♪弊社では内見動画など多く保管しております。現時点で候補にあがっている物件情報教えて頂ければ弊社が掲載していない物件もお調べさせて頂きます♪
提供:(株)TOB(SUUMO経由)

詳細情報 フェニックス代田橋ノース
物件紹介
フェニックス代田橋ノースは京王線代田橋駅から徒歩9分にあり、駅近で通勤通学に便利なマンションです。
このお部屋は2階以上に位置しているので、通行人や周囲の住人からの視線が気になりにくく、防犯面でも安心。建物のエントランスはオートロックがついており、インターホンにはTVモニタもついているため、相手の顔を確認してから来客対応することができます。
おしゃれなデザイナーズ物件!フローリングのお部屋なのでお掃除もラクラク。キッチンはシステムキッチン仕様になっていますので、お料理好きの方にもぴったり。バス・トイレは別なので、のんびりお風呂タイムも楽しめるでしょう。また、雨の日でも浴室乾燥機を使えば、お洗濯も問題ありません。
通信設備面では、インターネット接続が可能です。また、CATVにも対応しているので、おうち時間も充実するでしょう(別途工事、契約料が必要な場合あり)。
建物にはエレベーターがついているので、重い荷物があっても安心。共用部には宅配ボックスが設定されているので、不在の時にも荷物を受け取ることができます。
このお部屋は2階以上に位置しているので、通行人や周囲の住人からの視線が気になりにくく、防犯面でも安心。建物のエントランスはオートロックがついており、インターホンにはTVモニタもついているため、相手の顔を確認してから来客対応することができます。
おしゃれなデザイナーズ物件!フローリングのお部屋なのでお掃除もラクラク。キッチンはシステムキッチン仕様になっていますので、お料理好きの方にもぴったり。バス・トイレは別なので、のんびりお風呂タイムも楽しめるでしょう。また、雨の日でも浴室乾燥機を使えば、お洗濯も問題ありません。
通信設備面では、インターネット接続が可能です。また、CATVにも対応しているので、おうち時間も充実するでしょう(別途工事、契約料が必要な場合あり)。
建物にはエレベーターがついているので、重い荷物があっても安心。共用部には宅配ボックスが設定されているので、不在の時にも荷物を受け取ることができます。
お金・契約の情報
※「-」と表示されているものは、実際は料金が発生するものもございます。詳細はお問い合わせください。
| 家賃 | 7.9万円 | 管理費・共益費 | 6,000円 |
|---|---|---|---|
| 敷金 | 7.9万円 | 礼金 | 7.9万円 |
| 入居決定でお祝い金最大100,000円 | |||
| 保証金 | - | 償却・敷引 | - |
| 住宅保険料 | - | 更新料 | - |
| 保証会社利用 | 必須 | 保証会社名 | リクルートフォレントインシュア |
| 保証会社費用 | - | 保証会社備考 | オリコフォレントインシュア利用必 初回:月額総支払額の50% 月々:月額総支払額の1% |
| 契約形態 | 定期借家 | 契約期間 | 2年 |
| 入居・引渡期間 | 即時 | 現況 | - |
| 契約備考 | オンライン対応希望!現地待ち合わせ希望!費用を抑えて手続きをしたい!どんな事でもお問い合わせください♪♪お申込からご入居までの間も電気・ガス・インターネット開通・引越し業者の手配等多くの煩わしい手続きが必要です。お引越し準備の負担を軽減する為これらの手続きもサポート致しますのでご安心下さい。 合計2.75万円(内訳:鍵交換代2.75万円) 家財保険+付帯サービス(税込) 月額1735円 1K 定期借家2年 バストイレ別、バルコニー、エアコン、ガスコンロ対応、クロゼット、フローリング、TVインターホン、浴室乾燥機、オートロック、室内洗濯置、シューズボックス、システムキッチン、エレベーター、洗面化粧台、2口コンロ、駐輪場、宅配ボックス、CATV、光ファイバー、外壁タイル張り、即入居可、防犯カメラ、独立型キッチン、照明付、分譲賃貸、敷金1ヶ月、全居室フローリング、デザイナーズ、玄関ホール、2沿線利用可、ネット専用回線、ダブルロックキー、保証金不要、24時間換気システム、人感照明センサー、耐火構造、3駅以上利用可、駅徒歩10分以内、24時間ゴミ出し可、敷地内ごみ置き場、都市ガス、保証会社利用可、IT重説対応物件、初期費用カード決済可、通風良好 | ||
部屋の情報
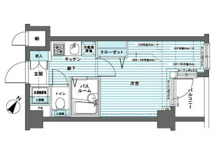
| 間取り | 1K | 専有面積 | 20.34m2 |
|---|---|---|---|
| 所在階 / 向き | 3階 / 北東 | バルコニー面積 | 2m2 |
| 水道 / ガス | - | ||
| 設備 | バス・トイレ別、2階以上、オートロック、テレビドアホン、宅配ボックス、浴室乾燥機、インターネット対応、システムキッチン、エアコン、エレベーター、バルコニー、フローリング、2口コンロ、コンロ:ガス、デザイナーズ、CATV、洗濯機:室内 | ||
| 当社物件ID | 159955508 | ||
建物の情報
| 建物名 | フェニックス代田橋ノース | ||
|---|---|---|---|
| 所在地 | 東京都杉並区方南 | ||
| 交通 | 京王線 代田橋駅 徒歩9分 東京メトロ丸ノ内線 方南町駅 徒歩12分 京王線 笹塚駅 徒歩12分 | ||
| 階数 | 8階建 | 総戸数 | - |
| 築年月 | 2007年04月 / 築19年 | エレベーター | あり |
| 駐車場 | なし | バイク置き場 | - |
| 駐輪場 | あり | 管理人/管理会社 | - |
| 周辺環境 | その他 ファミリーマート 朝日生命代田橋ビル店(コンビニ)まで202m その他 杉並和泉郵便局(郵便局)まで157m その他 高井戸警察署泉南交番(警察署・交番)まで138m その他 業務スーパー 笹塚店(スーパー)まで530m その他 マツモトキヨシ笹塚2丁目店(ドラッグストア)まで534m その他 スーパーTSUKASA(ツカサ) 杉並和泉店(スーパー)まで504m | ||
| 建物種別 | マンション | 建物構造 | RC(鉄筋コンクリート) |
この部屋の取扱い不動産会社
| 会社名 | (株)TOB(SUUMO経由) | ||
|---|---|---|---|
| 所在地 | 東京都世田谷区南烏山6-28-9 ピット千歳烏山201 | 交通 | - |
| 営業時間 | 9:00~18:00 | 定休日 | 営業時間外の対応も可。 |
| 免許番号 | 東京都知事106855 | 取引態様 | 仲介 |
| 不動産会社管理番号 | 100475234091 | 当社管理番号 | 89 |
| 所属団体 | (公社)全日本不動産協会東京都本部会員 | ||
| 公正取引協議会 | (公社)首都圏不動産公正取引協議会加盟 | ||
| 取扱い物件情報 | 物件詳細へ | ||
※各種情報と現状に差異がある場合は、現状優先となります。問い合わせをすることで、より詳しい条件、情報を確認する事ができます。
提供:(株)TOB(SUUMO経由)
この物件が気になったら掲載期限まであと10日
フェニックス代田橋ノースに条件(家賃・エリア)が近い物件一覧
| 写真 | 家賃 管理費等 | 敷金 礼金 | 間取り 専有面積 | 築年数 | 最寄り駅 所在地 | キープ | 詳細 |
|---|---|---|---|---|---|---|---|
マンション ジェノヴィア桜台グリーンウォール(1K/2階) | |||||||
![]() | 9.9万円 1.1万円 | なし 9.9万円 | 1K 21.56m2 | 築14年 | 西武池袋線 桜台駅(東京) 徒歩6分 西武有楽町線 新桜台駅 徒歩10分 東京メトロ副都心線 氷川台駅 徒歩14分 東京都練馬区桜台 | 詳細を見る | |
アパート ガーデンシティ上石神井B(1K/2階) | |||||||
![]() | 5万円 なし | なし なし | 1K 15m2 | 築35年 | 西武新宿線 上石神井駅 徒歩10分 西武新宿線 上井草駅 徒歩14分 西武池袋線 石神井公園駅 徒歩22分 東京都練馬区上石神井 | 詳細を見る | |
マンション パレステュディオ渋谷本町(1K/7階) | |||||||
![]() | 12.7万円 1.1万円 | なし 12.7万円 | 1K 25.65m2 | 築22年 | 都営大江戸線 西新宿五丁目駅 徒歩4分 京王新線 初台駅 徒歩12分 東京メトロ丸ノ内線 中野坂上駅 徒歩14分 東京都渋谷区本町 | 詳細を見る | |
マンション シティハイツ吉祥寺(1K/5階) | |||||||
![]() | 8.5万円 3,000円 | 8.5万円 8.5万円 | 1K 24.83m2 | 築35年 | JR中央線 吉祥寺駅 徒歩17分 東京都練馬区立野町 | 詳細を見る | |
マンション SYFORME KOMAZAWA-DAIGAKU(1K/10階) | |||||||
![]() | 10.7万円 8,000円 | 10.7万円 10.7万円 | 1K 27.4m2 | 築14年 | 東急田園都市線 駒沢大学駅 徒歩8分 東急田園都市線 桜新町駅 徒歩12分 東急世田谷線 世田谷駅 徒歩21分 東京都世田谷区駒沢 | 詳細を見る | |
マンション レーヴレジデンス中野坂上2(ワンルーム/2階) | |||||||
![]() | 12万円 1万円 | なし なし | ワンルーム 22.37m2 | 築4年 | 都営大江戸線 中野坂上駅 徒歩9分 東京メトロ丸ノ内線 新中野駅 徒歩13分 都営大江戸線 東中野駅 徒歩14分 東京都中野区中央 | 詳細を見る | |
マンション コルティーレ池尻(1K/3階) | |||||||
![]() | 9.4万円 3,000円 | 9.4万円 9.4万円 | 1K 26.47m2 | 築23年 | 東急田園都市線 池尻大橋駅 徒歩3分 東急田園都市線 三軒茶屋駅 徒歩15分 京王井の頭線 駒場東大前駅 徒歩17分 東京都世田谷区池尻 | 詳細を見る | |
アパート パストラル吉祥寺(1K/1階) | |||||||
![]() | 8.4万円 2,000円 | 8.4万円 8.4万円 | 1K 28.04m2 | 築21年 | JR中央線 三鷹駅 徒歩10分 JR中央線 吉祥寺駅 徒歩18分 京王井の頭線 井の頭公園駅 徒歩21分 東京都武蔵野市中町 | 詳細を見る | |









