賃貸マンション
フェニックス代田橋ノースの賃貸物件情報(1DK/4階)
| 家賃 | 管理費等 | 敷金 | 礼金 | 間取り | 専有面積 |
|---|---|---|---|---|---|
| 15.2万円 | 1.1万円 | なし | 15.2万円 | 1DK | 37.86m2 |
入居決定でお祝い金最大100,000円
- 保証金
- -
- 償却・敷引
- -
- 築年数
- 築19年
- 所在階
- 4階
- 向き
- 南西
Point
室内見学承ります・お客様のご都合に合わせてオンラインまたはお近くの店舗でご提案可・初期費用分割払い可・クレジットカード利用可・引越業者割引・初期費用のお見積や入居日のご相談もお気軽にお問合せください
提供:(株)リライフ渋谷店(SUUMO経由)

詳細情報 フェニックス代田橋ノース
物件紹介
フェニックス代田橋ノースは京王線代田橋駅から徒歩9分にあり、駅近で通勤通学に便利なマンションです。
このお部屋は2階以上に位置しているので、通行人や周囲の住人からの視線が気になりにくく、防犯面でも安心。建物のエントランスはオートロックがついており、インターホンにはTVモニタもついているため、相手の顔を確認してから来客対応することができます。
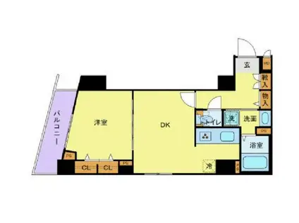
人気の南向き・フローリングのお部屋。角部屋でもあるため、周囲の居住者の生活音も気になりにくい場所です。キッチンはシステムキッチン仕様になっていますので、お料理好きの方にもぴったり。バス・トイレは別なので、のんびりお風呂タイムも楽しめるでしょう。また、雨の日でも浴室乾燥機を使えば、お洗濯も問題ありません。
通信設備面では、インターネットが無料で使えるので、月々の出費を抑えられるのも魅力です。また、BSアンテナ・CSアンテナがありCATVにも対応しているので、おうち時間も充実するでしょう(別途工事、BS・CS・CATVの契約料等が必要な場合あり)。
建物にはエレベーターがついているので、重い荷物があっても安心。共用部には宅配ボックスが設定されているので、不在の時にも荷物を受け取ることができます。
このお部屋は2階以上に位置しているので、通行人や周囲の住人からの視線が気になりにくく、防犯面でも安心。建物のエントランスはオートロックがついており、インターホンにはTVモニタもついているため、相手の顔を確認してから来客対応することができます。
人気の南向き・フローリングのお部屋。角部屋でもあるため、周囲の居住者の生活音も気になりにくい場所です。キッチンはシステムキッチン仕様になっていますので、お料理好きの方にもぴったり。バス・トイレは別なので、のんびりお風呂タイムも楽しめるでしょう。また、雨の日でも浴室乾燥機を使えば、お洗濯も問題ありません。
通信設備面では、インターネットが無料で使えるので、月々の出費を抑えられるのも魅力です。また、BSアンテナ・CSアンテナがありCATVにも対応しているので、おうち時間も充実するでしょう(別途工事、BS・CS・CATVの契約料等が必要な場合あり)。
建物にはエレベーターがついているので、重い荷物があっても安心。共用部には宅配ボックスが設定されているので、不在の時にも荷物を受け取ることができます。
お金・契約の情報
※「-」と表示されているものは、実際は料金が発生するものもございます。詳細はお問い合わせください。
| 家賃 | 15.2万円 | 管理費・共益費 | 1.1万円 |
|---|---|---|---|
| 敷金 | なし | 礼金 | 15.2万円 |
| 入居決定でお祝い金最大100,000円 | |||
| 保証金 | - | 償却・敷引 | - |
| 住宅保険料 | - | 更新料 | - |
| 保証会社利用 | 必須 | 保証会社名 | - |
| 保証会社費用 | - | 保証会社備考 | 保証会社利用必 総賃料100%~ |
| 契約形態 | 定期借家 | 契約期間 | 2年 |
| 入居・引渡期間 | - | 現況 | - |
| 契約備考 | 当物件は「住まいのリライフ」で取り扱っております。リライフは首都圏25店舗のネットワークで豊富な物件情報をお客様へご提供します。当物件に類似した未公開物件なども合わせてご提案可能です。お気軽にお問合せください。違約金有:1年未満解約時:月額総賃料1か月ランニング費用:リブクラブ(月額)、SBI少額短期保険(月額):3000円/その他費用:事務費用、退去時精算費用:2.75万円 合計8.25万円(内訳:鍵交換代金3.3万円事務手数料(初回のみ)2.2万円家具家電撤去費用(任意)(初回のみ)2.75万円) 室内清掃費用5.5万円住宅総合保険(月額)0.08万円リブリクラブ(月額)0.22万円賃料引落手数料(月額)0.033万円 1DK 二人入居可 定期借家2年 損保【要】 バストイレ別、バルコニー、エアコン、ガスコンロ対応、クロゼット、フローリング、シャワー付洗面台、TVインターホン、浴室乾燥機、オートロック、室内洗濯置、シューズボックス、システムキッチン、追焚機能浴室、角住戸、温水洗浄便座、脱衣所、エレベーター、洗面所独立、駐輪場、宅配ボックス、CATV、2面採光、BS・CS、3口以上コンロ、分譲賃貸、保証人不要、二人入居相談、全居室フローリング、2沿線利用可、ディンプルキー、ネット使用料不要、24時間換気システム、家電付、家具付、耐震構造、始発駅、3駅以上利用可、24時間ゴミ出し可、敷地内ごみ置き場、南西向き、都市ガス、玄関収納、LAN、保証会社利用可、初期費用カード決済可、通風良好 入居日:'26年2月中旬 | ||
部屋の情報
| 間取り | 1DK | 専有面積 | 37.86m2 |
|---|---|---|---|
| 所在階 / 向き | 4階 / 南西 | バルコニー面積 | 4m2 |
| 水道 / ガス | - | ||
| 設備 | バス・トイレ別、2階以上、オートロック、テレビドアホン、宅配ボックス、浴室乾燥機、追い焚き、インターネット対応、システムキッチン、エアコン、エレベーター、温水洗浄便座、南向き、角部屋、バルコニー、フローリング、洗髪洗面化粧台、2口コンロ、コンロ:ガス、CATV、CSアンテナ、BSアンテナ、インターネット使用料無料、洗濯機:室内 | ||
| 当社物件ID | 159922065 | ||
建物の情報
| 建物名 | フェニックス代田橋ノース | ||
|---|---|---|---|
| 所在地 | 東京都杉並区方南 | ||
| 交通 | 京王線 代田橋駅 徒歩9分 東京メトロ丸ノ内線 方南町駅 徒歩13分 京王線 笹塚駅 徒歩14分 | ||
| 階数 | 8階建 | 総戸数 | 68戸 |
| 築年月 | 2007年04月 / 築19年 | エレベーター | あり |
| 駐車場 | なし | バイク置き場 | - |
| 駐輪場 | あり | 管理人/管理会社 | - |
| 周辺環境 | その他 ココカラファイン ヘルスケアセイジョー代田橋北口店(ドラッグストア)まで555m その他 業務スーパー 笹塚店(スーパー)まで527m その他 肉のハナマサ 方南町店(スーパー)まで784m その他 ファミリーマート朝日生命代田橋ビル店(コンビニ)まで123m その他 セブンイレブン方南1丁目店(コンビニ)まで284m その他 (有)新洋舎(その他)まで508m | ||
| 建物種別 | マンション | 建物構造 | RC(鉄筋コンクリート) |
この部屋の取扱い不動産会社
| 会社名 | (株)リライフ荻窪店(SUUMO経由) | ||
|---|---|---|---|
| 所在地 | 東京都杉並区荻窪5-28-10 竹西ビル2階 | 交通 | - |
| 営業時間 | 10:00~20:00 | 定休日 | なし |
| 免許番号 | 国土交通大臣10792 | 取引態様 | 仲介 |
| 不動産会社管理番号 | 100446592780 | 当社管理番号 | 89 |
| 所属団体 | (公社)東京都宅地建物取引業協会会員 | ||
| 公正取引協議会 | (公社)首都圏不動産公正取引協議会加盟 | ||
| 取扱い物件情報 | 物件詳細へ | ||
※各種情報と現状に差異がある場合は、現状優先となります。問い合わせをすることで、より詳しい条件、情報を確認する事ができます。
提供:(株)リライフ荻窪店(SUUMO経由)
この物件が気になったら掲載期限まであと10日
フェニックス代田橋ノースに条件(家賃・エリア)が近い物件一覧
| 写真 | 家賃 管理費等 | 敷金 礼金 | 間取り 専有面積 | 築年数 | 最寄り駅 所在地 | キープ | 詳細 |
|---|---|---|---|---|---|---|---|
マンション LOTUS NAKANOSHINBASHI(2LDK/2階) | |||||||
![]() | 20.7万円 1.5万円 | 20.7万円 なし | 2LDK 40.45m2 | 築1年 | 東京地下鉄方南支線 中野新橋駅 徒歩7分 東京都中野区弥生町1丁目 | 詳細を見る | |
マンション クレスト成城(2DK/3階) | |||||||
![]() | 13.5万円 8,000円 | 13.5万円 13.5万円 | 2DK 55.95m2 | 築25年 | 小田急線 成城学園前駅 徒歩13分 小田急線 祖師ケ谷大蔵駅 徒歩18分 小田急線 喜多見駅 徒歩25分 東京都世田谷区成城 | 詳細を見る | |
マンション G.T.A. 中野坂上(2LDK/3階) | |||||||
![]() | 22.4万円 2万円 | なし なし | 2LDK 43.75m2 | 築1年 | 東京メトロ丸ノ内線 中野新橋駅 徒歩3分 東京メトロ丸ノ内線 中野坂上駅 徒歩10分 東京メトロ丸ノ内線 新中野駅 徒歩14分 東京都中野区本町 | 詳細を見る | |
マンション THE PREMIUM CUBE G 東中野(2K/4階) | |||||||
![]() | 14.1万円 1.5万円 | 14.1万円 14.1万円 | 2K 25.98m2 | 築3年 | 総武・中央緩行線 東中野駅 徒歩7分 東京都中野区東中野5丁目 | 詳細を見る | |
アパート ALFLAT高円寺(1SLDK/2階) | |||||||
![]() | 16.6万円 7,000円 | なし 33.2万円 | 1SLDK 50m2 | 築7年 | JR総武線 高円寺駅 徒歩7分 JR総武線 阿佐ケ谷駅 徒歩15分 東京メトロ丸ノ内線 新高円寺駅 徒歩17分 東京都杉並区高円寺北 | 詳細を見る | |
マンション ラサンテ広尾(1K/7階) | |||||||
![]() | 14.4万円 1万円 | 14.4万円 14.4万円 | 1K 20.02m2 | 築19年 | JR山手線 恵比寿駅 徒歩9分 東京メトロ日比谷線 広尾駅 徒歩9分 東急東横線 代官山駅 徒歩18分 東京都渋谷区広尾 | 詳細を見る | |
マンション フラット浜田山(2LDK/3階) | |||||||
![]() | 16.3万円 1万円 | 16.3万円 19.56万円 | 2LDK 55.49m2 | 築38年 | 京王井の頭線 西永福駅 徒歩4分 京王井の頭線 浜田山駅 徒歩9分 京王線 桜上水駅 徒歩20分 東京都杉並区浜田山 | 詳細を見る | |
マンション 朝日ラ・パリオ等々力台(2LDK/6階) | |||||||
![]() | 24万円 なし | 48万円 24万円 | 2LDK 59.02m2 | 築29年 | 東急大井町線 等々力駅 徒歩5分 東京都世田谷区等々力3丁目 | 詳細を見る | |

/105x80-f1-q70-wp1)






