賃貸マンション
長野県松本市 4階建 築40年の賃貸物件情報(4SLDK/1階)
| 家賃 | 管理費等 | 敷金 | 礼金 | 間取り | 専有面積 |
|---|---|---|---|---|---|
| 11.8万円 | 5,000円 | 23.6万円 | 11.8万円 | 4SLDK | 120.96m2 |
入居決定でお祝い金最大100,000円
- 保証金
- -
- 償却・敷引
- -
- 築年数
- 築40年
- 所在階
- 1階
- 向き
- 南
- 交通
- 所在地
- 長野県松本市桐
[地図を表示]
Point
ペットの飼育可能!(ネコちゃん2~3匹)広々とした開放的なリビングやバルコニーが魅力的♪インターネット無料・IH付キッチンなど設備も充実♪物置専用のお部屋付き・押入がひのきクローゼット仕様です☆
提供:ピタットハウス松本店(株)東邦不動産プラザ(SUUMO経由)

詳細情報 長野県松本市 4階建 築40年
物件紹介
このお部屋のインターホンにはTVモニタがついているため、相手の顔を確認してから来客対応することができます。
おしゃれなデザイナーズ物件!人気の南向きのお部屋。また、フローリングなのでお掃除もラクラク。キッチンはシステムキッチン仕様になっていますので、お料理好きの方にもぴったり。また、バス・トイレは別で、のんびりお風呂タイムも楽しめるでしょう。
通信設備面では、インターネットが無料で使えるので、月々の出費を抑えられるのも魅力です(別途工事等が必要な場合あり)。
共用部には宅配ボックスが設定されているので、不在の時にも荷物を受け取ることができます。また、ペット飼育の相談ができますので、あなたの大切な家族の一員も快適に暮らせるか、ぜひ確認してみてください。
おしゃれなデザイナーズ物件!人気の南向きのお部屋。また、フローリングなのでお掃除もラクラク。キッチンはシステムキッチン仕様になっていますので、お料理好きの方にもぴったり。また、バス・トイレは別で、のんびりお風呂タイムも楽しめるでしょう。
通信設備面では、インターネットが無料で使えるので、月々の出費を抑えられるのも魅力です(別途工事等が必要な場合あり)。
共用部には宅配ボックスが設定されているので、不在の時にも荷物を受け取ることができます。また、ペット飼育の相談ができますので、あなたの大切な家族の一員も快適に暮らせるか、ぜひ確認してみてください。
お金・契約の情報
※「-」と表示されているものは、実際は料金が発生するものもございます。詳細はお問い合わせください。
| 家賃 | 11.8万円 | 管理費・共益費 | 5,000円 |
|---|---|---|---|
| 敷金 | 23.6万円 | 礼金 | 11.8万円 |
| フリーレント | あり | ||
| 入居決定でお祝い金最大100,000円 | |||
| 保証金 | - | 償却・敷引 | - |
| 住宅保険料 | - | 更新料 | - |
| 保証会社利用 | 必須 | 保証会社名 | 日本セーフティー |
| 保証会社費用 | - | 保証会社備考 | 日本セーフティー利用必 初回保証料 賃料等総額50%(最低2万円) 継続保証料毎月800円+引落手数料毎月550円 |
| 契約形態 | - | 契約期間 | - |
| 入居・引渡期間 | 即時 | 現況 | - |
| 入居可能条件 | ペット相談 | ||
| 契約備考 | ※ゴミ町会加入必須・薪ストーブ(使用可・貸主免責)・洗濯機残置物※ソーラー(蓄電池・京セラ)※ペット飼育時 敷金プラス1ヶ月(2匹目より賃料プラス3,000円、3匹目プラス6,000円)※エアコン3台・断熱サッシ完備により快適な暮らしをサポートします♪ 合計1.98万円(内訳:24H緊急サポート1.98万円) 4SLDK ペット相談/フリーレント1ヶ月入居月日割り・翌月分サービス(家賃のみ) 損保【2万円2年】 バストイレ別、バルコニー、エアコン、クロゼット、フローリング、シャワー付洗面台、TVインターホン、室内洗濯置、システムキッチン、南向き、追焚機能浴室、温水洗浄便座、脱衣所、洗面所独立、2口コンロ、宅配ボックス、即入居可、ペット相談、IHクッキングヒーター、照明付、出窓、全居室洋室、駐車2台可、デザイナーズ、エアコン2台、ネット使用料不要、キッチンに窓、フリーレント、トランクルーム、複層ガラス、バス2路線、専有面積30坪以上、LDK12畳以上、プロパンガス、室内物干機、IT重説対応物件 | ||
部屋の情報
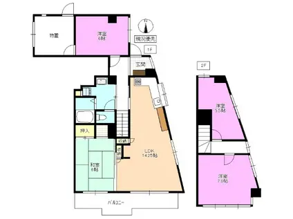
| 間取り | 4SLDK | 専有面積 | 120.96m2 |
|---|---|---|---|
| 所在階 / 向き | 1階 / 南 | バルコニー面積 | - |
| 水道 / ガス | - | ||
| 設備 | バス・トイレ別、テレビドアホン、宅配ボックス、追い焚き、インターネット対応、システムキッチン、エアコン、温水洗浄便座、南向き、バルコニー、フローリング、トランクルーム、洗髪洗面化粧台、2口コンロ、コンロ:IH、デザイナーズ、インターネット使用料無料、洗濯機:室内 | ||
| 当社物件ID | 158747198 | ||
建物の情報
| 建物名 | 長野県松本市 4階建 築40年 | ||
|---|---|---|---|
| 所在地 | 長野県松本市桐 | ||
| 交通 | - | ||
| 階数 | 4階建 | 総戸数 | 1戸 |
| 築年月 | 1987年02月 / 築40年 | エレベーター | - |
| 駐車場 | 空有 5000円 | バイク置き場 | - |
| 駐輪場 | - | 管理人/管理会社 | - |
| 周辺環境 | その他 デリシア桐店(スーパー)まで418m その他 信州大学医学部附属病院(病院)まで800m その他 国立信州大学教育学部附属松本中学校(中学校)まで623m その他 国立信州大学教育学部附属松本小学校(小学校)まで437m その他 松本市役所(役所)まで1810m その他 松本市桐保育園(幼稚園・保育園)まで120m | ||
| 建物種別 | マンション | 建物構造 | RC(鉄筋コンクリート) |
この部屋の取扱い不動産会社
| 会社名 | ピタットハウス松本店(株)東邦不動産プラザ(SUUMO経由) | ||
|---|---|---|---|
| 所在地 | 長野県松本市中央1-8-1 | 交通 | - |
| 営業時間 | 9:00~18:00 | 定休日 | 毎週水曜日(2.3月は無休) |
| 免許番号 | 長野県知事4521 | 取引態様 | 仲介 |
| 不動産会社管理番号 | 100434027688 | 当社管理番号 | 89 |
| 所属団体 | (公社)長野県宅地建物取引業協会会員 | ||
| 公正取引協議会 | (公社)首都圏不動産公正取引協議会加盟 | ||
| 取扱い物件情報 | 物件詳細へ | ||
※各種情報と現状に差異がある場合は、現状優先となります。問い合わせをすることで、より詳しい条件、情報を確認する事ができます。
提供:ピタットハウス松本店(株)東邦不動産プラザ(SUUMO経由)
この物件が気になったら掲載期限まであと10日
長野県松本市 4階建 築40年に条件(家賃・エリア)が近い物件一覧
| 写真 | 家賃 管理費等 | 敷金 礼金 | 間取り 専有面積 | 築年数 | 最寄り駅 所在地 | キープ | 詳細 |
|---|---|---|---|---|---|---|---|
アパート レオネクストSORA(1LDK/1階) | |||||||
![]() | 7.5万円 5,000円 | なし 7.5万円 | 1LDK 44.85m2 | 築18年 | 長野県松本市野溝西2丁目 | 詳細を見る | |
アパート モルゲンロート 光(2LDK/2階) | |||||||
![]() | 9.3万円 5,500円 | なし 18.6万円 | 2LDK 60.12m2 | 築9年 | JR篠ノ井線 平田駅(長野) 徒歩26分 JR篠ノ井線 南松本駅 徒歩27分 JR大糸線 松本駅 徒歩49分 長野県松本市野溝西 | 詳細を見る | |
アパート ブルーヒル(2LDK/1階) | |||||||
![]() | 7.4万円 3,900円 | なし 7万円 | 2LDK 50.78m2 | 築31年 | 長野県岡谷市長地権現町 | 詳細を見る | |
マンション ラトゥールTOWA(2LDK/3階) | |||||||
![]() | 8.3万円 3,000円 | 16.6万円 なし | 2LDK 66.18m2 | 築25年 | JR篠ノ井線 南松本駅 徒歩27分 JR大糸線 松本駅 徒歩31分 JR篠ノ井線 平田駅(長野) 徒歩45分 長野県松本市笹部 | 詳細を見る | |
マンション ファーニッシュドステイまつもと市民芸術館西(1DK/4階) | |||||||
![]() | 7.7万円 2,500円 | 11.55万円 なし | 1DK 30.52m2 | 築44年 | JR篠ノ井線 松本駅 徒歩9分 松本電気鉄道 松本駅 徒歩9分 JR大糸線 松本駅 徒歩9分 長野県松本市深志 | 詳細を見る | |
アパート リブハピネス B(2LDK/2階) | |||||||
![]() | 9.35万円 4,200円 | なし 9.35万円 | 2LDK 63.03m2 | 新築 | 篠ノ井線 村井駅 徒歩12分 長野県松本市村井町西2丁目 | 詳細を見る | |
アパート ヴィアソーレ(1LDK/3階) | |||||||
![]() | 7.7万円 4,900円 | なし 10万円 | 1LDK 48.56m2 | 築7年 | JR篠ノ井線 村井駅 徒歩16分 JR篠ノ井線 平田駅(長野) 徒歩30分 JR篠ノ井線 広丘駅 徒歩53分 長野県松本市小屋南 | 詳細を見る | |
マンション ファーニッシュド・ステイ松本市相澤病院東(2DK/4階) | |||||||
![]() | 9.7万円 2,500円 | 14.55万円 なし | 2DK 47.4m2 | 築28年 | JR篠ノ井線 松本駅 徒歩20分 長野県松本市埋橋 | 詳細を見る | |


/105x80-f1-q70-wp1)




/105x80-f1-q70-wp1)

