賃貸マンション
HJクラウンⅠの賃貸物件情報(2LDK/1階)
| 家賃 | 管理費等 | 敷金 | 礼金 | 間取り | 専有面積 |
|---|---|---|---|---|---|
| 30万円 | 1.5万円 | なし | なし | 2LDK | 44.77m2 |
入居決定でお祝い金最大100,000円
Point
まずはお問い合わせ!
不動産会社は街のプロ、あなたに合った物件がきっと見つかります。
提供:アパマンショップ下北沢店

詳細情報 HJクラウンⅠ
物件紹介
HJクラウンⅠは東京地下鉄銀座線外苑前駅から徒歩10分にあり、駅近で通勤通学に便利なマンションです。
建物のエントランスはオートロックがついており、インターホンにはTVモニタもついているため、相手の顔を確認してから来客対応することができます。
人気の角部屋で周囲の居住者の生活音も気になりにくく、また、フローリングのお部屋なのでお掃除もラクラク。キッチンはシステムキッチン仕様になっていますので、お料理好きの方にもぴったり。バス・トイレは別なので、のんびりお風呂タイムも楽しめるでしょう。また、雨の日でも浴室乾燥機を使えば、お洗濯も問題ありません。
通信設備面では、インターネットが無料で使えるので、月々の出費を抑えられるのも魅力です。また、BSアンテナ・CSアンテナもありますので、おうち時間も充実するでしょう(別途工事、BS・CSの契約料等が必要な場合あり)。
共用部には宅配ボックスが設定されているので、不在の時にも荷物を受け取ることができます。また、ペット飼育の相談ができますので、あなたの大切な家族の一員も快適に暮らせるか、ぜひ確認してみてください。
建物のエントランスはオートロックがついており、インターホンにはTVモニタもついているため、相手の顔を確認してから来客対応することができます。
人気の角部屋で周囲の居住者の生活音も気になりにくく、また、フローリングのお部屋なのでお掃除もラクラク。キッチンはシステムキッチン仕様になっていますので、お料理好きの方にもぴったり。バス・トイレは別なので、のんびりお風呂タイムも楽しめるでしょう。また、雨の日でも浴室乾燥機を使えば、お洗濯も問題ありません。
通信設備面では、インターネットが無料で使えるので、月々の出費を抑えられるのも魅力です。また、BSアンテナ・CSアンテナもありますので、おうち時間も充実するでしょう(別途工事、BS・CSの契約料等が必要な場合あり)。
共用部には宅配ボックスが設定されているので、不在の時にも荷物を受け取ることができます。また、ペット飼育の相談ができますので、あなたの大切な家族の一員も快適に暮らせるか、ぜひ確認してみてください。
お金・契約の情報
※「-」と表示されているものは、実際は料金が発生するものもございます。詳細はお問い合わせください。
| 家賃 | 30万円 | 管理費・共益費 | 1.5万円 |
|---|---|---|---|
| 敷金 | なし | 礼金 | なし |
| 入居決定でお祝い金最大100,000円 | |||
| 保証金 | - | 償却・敷引 | - |
| 住宅保険料 | 2万円(2年) | 更新料 | - |
| 保証会社利用 | 必須 | 保証会社名 | ジェイリース50% |
| 保証会社費用 | - | 保証会社備考 | 初回契約時:50%、更新時:10,000円、月額:550円、1年更新 |
| 契約形態 | - | 契約期間 | 2年 |
| 入居・引渡期間 | 相談 | 現況 | - |
| 入居可能条件 | 2人入居可、ペット可 | ||
| 契約備考 | 小型犬可 ●先行契約必須●学生可(契約名義人は就職している親族に限る)●法人契約:敷金1ヶ月(保証会社:ジェイリース100%)●短期解約違約金有:1 年未満年未満解約賃料1ヶ月相当額●エアコンクリーニング11,000円/台(退去時必須)●ペット可(小 Meiho Plus 24 1320円/ルームクリーニング代 66000円 | ||
部屋の情報
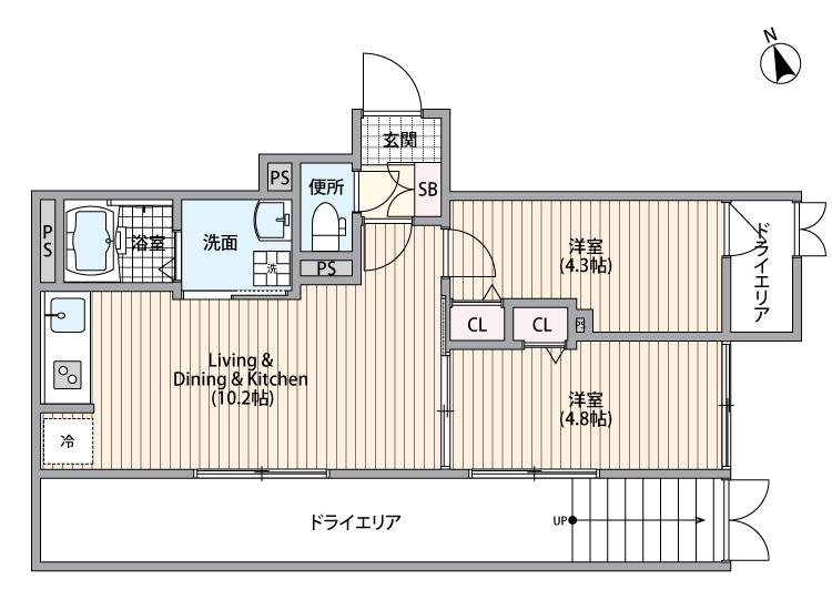
| 間取り | 2LDK | 専有面積 | 44.77m2 |
|---|---|---|---|
| 所在階 / 向き | 1階 / 北西 | バルコニー面積 | - |
| 水道 / ガス | - | ||
| 設備 | バス・トイレ別、テレビドアホン、浴室乾燥機、追い焚き、インターネット対応、システムキッチン、温水洗浄便座、フローリング、CSアンテナ、BSアンテナ、インターネット使用料無料、洗濯機:室内 | ||
| 当社物件ID | 159728674 | ||
建物の情報
| 建物名 | HJクラウンⅠ | ||
|---|---|---|---|
| 所在地 | 東京都渋谷区神宮前2丁目 | ||
| 交通 | 東京地下鉄銀座線 外苑前駅 徒歩11分 | ||
| 階数 | 3階建 | 総戸数 | 8戸 |
| 築年月 | 2025年12月 / 築1年 | エレベーター | - |
| 駐車場 | - | バイク置き場 | - |
| 駐輪場 | - | 管理人/管理会社 | - |
| 建物種別 | マンション | 建物構造 | RC(鉄筋コンクリート) |
この部屋の取扱い不動産会社
| 会社名 | アパマンショップ新高円寺店 | ||
|---|---|---|---|
| 所在地 | 東京都杉並区高円寺南3丁目 20−15ピクチャービル1F | 交通 | 東京地下鉄丸ノ内線新高円寺から徒歩1分 |
| 営業時間 | 10:00〜19:00(ご予約のお客様は時間相談下さい) | 定休日 | - |
| 免許番号 | 東京都知事(3)94206 | 取引態様 | 仲介 |
| 不動産会社管理番号 | 1000923416 | 当社管理番号 | 4 |
| 所属団体 | (公社)全日本不動産協会東京都本部 | ||
| 公正取引協議会 | (公社) 首都圏不動産公正取引協議会加盟 | ||
| 取扱い物件情報 | 物件詳細へ | ||
※各種情報と現状に差異がある場合は、現状優先となります。問い合わせをすることで、より詳しい条件、情報を確認する事ができます。
提供:アパマンショップ新高円寺店
この物件が気になったら掲載期限まであと13日
HJクラウンⅠに条件(家賃・エリア)が近い物件一覧
| 写真 | 家賃 管理費等 | 敷金 礼金 | 間取り 専有面積 | 築年数 | 最寄り駅 所在地 | キープ | 詳細 |
|---|---|---|---|---|---|---|---|
マンション オカバ世田谷深沢ヘーベルメゾン(3LDK/1階) | |||||||
![]() | 27.3万円 1万円 | 13.65万円 27.3万円 | 3LDK 71.28m2 | 築1年 | 東急大井町線 等々力駅 徒歩17分 東急大井町線 上野毛駅 徒歩21分 東急大井町線 尾山台駅 徒歩21分 東京都世田谷区深沢 | 詳細を見る | |
マンション 広尾3丁目ヘーベルハウス(3LDK/1階) | |||||||
![]() | 48万円 なし | 24万円 なし | 3LDK 80.66m2 | 築2年 | 東京地下鉄半蔵門線 表参道駅 徒歩13分 東京地下鉄日比谷線 広尾駅 徒歩14分 東京都渋谷区広尾3丁目 | 詳細を見る | |
マンション REVE RESIDENCE白金台(1LDK/1階) | |||||||
![]() | 20.8万円 1万円 | なし なし | 1LDK 40m2 | 築4年 | 都営浅草線 高輪台駅 徒歩8分 東京メトロ南北線 白金台駅 徒歩8分 JR山手線 五反田駅 徒歩12分 東京都品川区上大崎 | 詳細を見る | |
アパート 御殿山テラスⅡ(2LDK/1階) | |||||||
![]() | 22.5万円 3,000円 | 22.5万円 45万円 | 2LDK 57.6m2 | 築2年 | 山手線 大崎駅 徒歩8分 京浜急行電鉄本線 北品川駅 徒歩14分 東京都品川区北品川5丁目 | 詳細を見る | |
マンション レジディア南品川Ⅱ(2DK/8階) | |||||||
![]() | 21.8万円 2万円 | 21.8万円 21.8万円 | 2DK 41.9m2 | 築11年 | 京浜急行電鉄本線 新馬場駅 徒歩6分 東京都品川区南品川2丁目 | 詳細を見る | |
マンション オーキッドレジデンス戸越公園(2LDK/7階) | |||||||
![]() | 24万円 1.5万円 | 24万円 なし | 2LDK 42.43m2 | 築5年 | 東急大井町線 戸越公園駅 徒歩6分 都営浅草線 中延駅 徒歩7分 湘南新宿ライン宇須 西大井駅 徒歩9分 東京都品川区豊町 | 詳細を見る | |
マンション GRAN PASEO大森Ⅲ(2LDK/2階) | |||||||
![]() | 23.7万円 1.5万円 | なし なし | 2LDK 46.21m2 | 築2年 | 京浜急行電鉄本線 大森海岸駅 徒歩6分 東京都品川区南大井3丁目 | 詳細を見る | |
マンション イースタンホームズ六本木(1LDK/3階) | |||||||
![]() | 27万円 2万円 | 27万円 27万円 | 1LDK 53.44m2 | 築46年 | 東京地下鉄日比谷線 六本木駅 徒歩11分 東京地下鉄日比谷線 広尾駅 徒歩14分 東京地下鉄南北線 麻布十番駅 徒歩15分 東京都港区元麻布3丁目 | 詳細を見る | |









