賃貸マンション
アーバネックス戸越の賃貸物件情報(1K/4階)
| 家賃 | 管理費等 | 敷金 | 礼金 | 間取り | 専有面積 |
|---|---|---|---|---|---|
| 11.1万円 | 1万円 | 11.1万円 | 11.1万円 | 1K | 20.24m2 |
入居決定でお祝い金最大100,000円
- 保証金
- -
- 償却・敷引
- -
- 築年数
- 築7年
- 所在階
- 4階
- 向き
- 西
Point
【来店不要対応物件】LINE・Zoom等にて、チャット打合せ~オンライン内見~契約(IT重説)可能★契約金カード決済(一括・分割)可能★
提供:MINATO STYLE 上野店(株)3B ARROWS(SUUMO経由)

詳細情報 アーバネックス戸越
物件紹介
アーバネックス戸越は都営浅草線戸越駅から徒歩3分にあり、駅近で通勤通学に便利なマンションです。
このお部屋は2階以上に位置しているので、通行人や周囲の住人からの視線が気になりにくく、防犯面でも安心。建物のエントランスはオートロックがついており、インターホンにはTVモニタもついているため、相手の顔を確認してから来客対応することができます。
フローリングのお部屋なのでお掃除もラクラク。キッチンはシステムキッチン仕様になっていますので、お料理好きの方にもぴったり。バス・トイレは別なので、のんびりお風呂タイムも楽しめるでしょう。また、雨の日でも浴室乾燥機を使えば、お洗濯も問題ありません。
通信設備面では、インターネット接続が可能です。また、BSアンテナもありますので、おうち時間も充実するでしょう(別途工事、契約料が必要な場合あり)。
建物にはエレベーターがついているので、重い荷物があっても安心。共用部には宅配ボックスが設定されているので、不在の時にも荷物を受け取ることができます。
このお部屋は2階以上に位置しているので、通行人や周囲の住人からの視線が気になりにくく、防犯面でも安心。建物のエントランスはオートロックがついており、インターホンにはTVモニタもついているため、相手の顔を確認してから来客対応することができます。
フローリングのお部屋なのでお掃除もラクラク。キッチンはシステムキッチン仕様になっていますので、お料理好きの方にもぴったり。バス・トイレは別なので、のんびりお風呂タイムも楽しめるでしょう。また、雨の日でも浴室乾燥機を使えば、お洗濯も問題ありません。
通信設備面では、インターネット接続が可能です。また、BSアンテナもありますので、おうち時間も充実するでしょう(別途工事、契約料が必要な場合あり)。
建物にはエレベーターがついているので、重い荷物があっても安心。共用部には宅配ボックスが設定されているので、不在の時にも荷物を受け取ることができます。
お金・契約の情報
※「-」と表示されているものは、実際は料金が発生するものもございます。詳細はお問い合わせください。
| 家賃 | 11.1万円 | 管理費・共益費 | 1万円 |
|---|---|---|---|
| 敷金 | 11.1万円 | 礼金 | 11.1万円 |
| 入居決定でお祝い金最大100,000円 | |||
| 保証金 | - | 償却・敷引 | - |
| 住宅保険料 | - | 更新料 | - |
| 保証会社利用 | 必須 | 保証会社名 | - |
| 保証会社費用 | - | 保証会社備考 | 保証会社利用必 初回保証委託料50%(10000円/年) IRS |
| 契約形態 | - | 契約期間 | - |
| 入居・引渡期間 | 即時 | 現況 | - |
| 契約備考 | 巡回管理 合計3.52万円(内訳:鍵交換代3.52万円) 更新料 新賃料1.00ヶ月分 1K 普通借家2年 損保【1.9万円2年】 バストイレ別、バルコニー、エアコン、ガスコンロ対応、クロゼット、フローリング、TVインターホン、浴室乾燥機、オートロック、室内洗濯置、シューズボックス、システムキッチン、温水洗浄便座、脱衣所、エレベーター、洗面所独立、洗面化粧台、2口コンロ、宅配ボックス、外壁タイル張り、防犯カメラ、保証人不要、仲介手数料不要、敷金1ヶ月、24時間換気システム、24時間ゴミ出し可、敷地内ごみ置き場、都市ガス、年内入居可、年度内入居可、礼金1ヶ月 | ||
部屋の情報
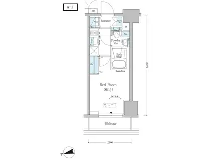
| 間取り | 1K | 専有面積 | 20.24m2 |
|---|---|---|---|
| 所在階 / 向き | 4階 / 西 | バルコニー面積 | - |
| 水道 / ガス | - | ||
| 設備 | バス・トイレ別、2階以上、オートロック、テレビドアホン、宅配ボックス、浴室乾燥機、システムキッチン、エアコン、エレベーター、温水洗浄便座、バルコニー、フローリング、洗髪洗面化粧台、2口コンロ、コンロ:ガス、洗濯機:室内 | ||
| 当社物件ID | 29430854 | ||
建物の情報
| 建物名 | アーバネックス戸越 | ||
|---|---|---|---|
| 所在地 | 東京都品川区戸越 | ||
| 交通 | 都営浅草線 戸越駅 徒歩3分 東急池上線 戸越銀座駅 徒歩7分 東急大井町線 戸越公園駅 徒歩8分 | ||
| 階数 | 11階建 | 総戸数 | - |
| 築年月 | 2019年02月 / 築7年 | エレベーター | あり |
| 駐車場 | 近隣 100m50000円 | バイク置き場 | - |
| 駐輪場 | - | 管理人/管理会社 | - |
| 周辺環境 | その他 東戸越保育園(幼稚園・保育園)まで268m その他 保育所ちびっこランド戸越園(幼稚園・保育園)まで304m その他 オーケー 戸越店(スーパー)まで315m その他 東中はなみずき公園(公園)まで429m その他 戸越薬局 本店(ドラッグストア)まで287m その他 荏原警察署 戸越交番(警察署・交番)まで60m | ||
| 建物種別 | マンション | 建物構造 | RC(鉄筋コンクリート) |
この部屋の取扱い不動産会社
| 会社名 | MINATO STYLE 銀座新橋店(株)3B ARROWS(SUUMO経由) | ||
|---|---|---|---|
| 所在地 | 東京都港区新橋2-16-1 ニュー新橋ビル9階 | 交通 | - |
| 営業時間 | 10:00~19:00 | 定休日 | 毎週水曜、第一第三火曜 |
| 免許番号 | 国土交通大臣10805 | 取引態様 | 仲介 |
| 不動産会社管理番号 | 100463607952 | 当社管理番号 | 89 |
| 所属団体 | (公社)全日本不動産協会東京都本部会員 | ||
| 公正取引協議会 | (公社)首都圏不動産公正取引協議会加盟 | ||
| 取扱い物件情報 | 物件詳細へ | ||
※各種情報と現状に差異がある場合は、現状優先となります。問い合わせをすることで、より詳しい条件、情報を確認する事ができます。
提供:MINATO STYLE 銀座新橋店(株)3B ARROWS(SUUMO経由)
この物件が気になったら掲載期限まであと10日
アーバネックス戸越に条件(家賃・エリア)が近い物件一覧
| 写真 | 家賃 管理費等 | 敷金 礼金 | 間取り 専有面積 | 築年数 | 最寄り駅 所在地 | キープ | 詳細 |
|---|---|---|---|---|---|---|---|
マンション グランドモンド羽田(1DK/5階) | |||||||
![]() | 11.5万円 5,800円 | なし 17.25万円 | 1DK 31.8m2 | 築4年 | 京浜急行電鉄本線 大森町駅 徒歩17分 東京都大田区大森東5丁目 | 詳細を見る | |
アパート M SONIA KUGAHARA(ワンルーム/1階) | |||||||
![]() | 9.1万円 3,000円 | 9.1万円 13.65万円 | ワンルーム 24.64m2 | 築1年 | 東急池上線 久が原駅 徒歩8分 東急池上線 御嶽山駅 徒歩9分 東京都大田区西嶺町 | 詳細を見る | |
マンション CONFORT(1LDK/2階) | |||||||
![]() | 12万円 3,000円 | 12万円 なし | 1LDK 34.43m2 | 築10年 | 京浜急行電鉄本線 雑色駅 徒歩7分 京浜急行電鉄空港線 糀谷駅 徒歩16分 東京都大田区東六郷1丁目 | 詳細を見る | |
マンション ステージグランデ蒲田(1K/2階) | |||||||
![]() | 9.2万円 5,000円 | なし 9.2万円 | 1K 22.55m2 | 築20年 | JR京浜東北線 蒲田駅 徒歩7分 東急池上線 蓮沼駅 徒歩7分 京急本線 雑色駅 徒歩22分 東京都大田区西蒲田 | 詳細を見る | |
マンション 第二ハイツ桐原(1K/2階) | |||||||
![]() | 6.7万円 2,000円 | 6.7万円 なし | 1K 18m2 | 築34年 | 東急大井町線 荏原町駅 徒歩4分 東急池上線 旗の台駅 徒歩9分 東急大井町線 旗の台駅 徒歩9分 東京都品川区中延 | 詳細を見る | |
マンション SEED JUST B-BASE Ⅱ(1LDK/4階) | |||||||
![]() | 9.9万円 1.5万円 | 9.9万円 9.9万円 | 1LDK 25.41m2 | 新築 | 東京モノレール羽田 昭和島駅 徒歩11分 京浜急行電鉄本線 梅屋敷駅(東京) 徒歩19分 東京都大田区大森南4丁目 | 詳細を見る | |
マンション 上池台コータスⅡ(2DK/1階) | |||||||
![]() | 12万円 1万円 | なし なし | 2DK 40.95m2 | 築30年 | 東京都浅草線 西馬込駅 徒歩12分 東急池上線 洗足池駅 徒歩17分 東急池上線 長原駅(東京) 徒歩18分 東京都大田区上池台5丁目 | 詳細を見る | |
アパート コーポなごみ(3DK/1階) | |||||||
![]() | 12万円 2,000円 | 12万円 12万円 | 3DK 70.8m2 | 築58年 | 東急池上線 千鳥町駅 徒歩14分 東急多摩川線 武蔵新田駅 徒歩19分 東京都浅草線 西馬込駅 徒歩19分 東京都大田区久が原5丁目 | 詳細を見る | |








