賃貸マンション
ベル・エポック21の賃貸物件情報(2SLDK/3階)
| 家賃 | 管理費等 | 敷金 | 礼金 | 間取り | 専有面積 |
|---|---|---|---|---|---|
| 7.5万円 | 5,000円 | 7.5万円 | なし | 2SLDK | 64.73m2 |
入居決定でお祝い金最大100,000円
Point
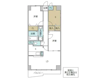
駐車場2台付きがうれしい。カウンターキッチンが解放的なリビングがポイントです。
提供:香陵住販(株)県庁南大通り支店(SUUMO経由)

詳細情報 ベル・エポック21
物件紹介
ベル・エポック21はJR常磐線水戸駅から徒歩60分にあるマンションです。
このお部屋は2階以上に位置しているので、通行人や周囲の住人からの視線が気になりにくく、防犯面でも安心。建物のエントランスはオートロックがついており、インターホンにはTVモニタもついているため、相手の顔を確認してから来客対応することができます。
人気の南向きのお部屋。キッチンはシステムキッチン仕様になっていますので、お料理好きの方にもぴったり。また、バス・トイレは別で、のんびりお風呂タイムも楽しめるでしょう。
通信設備面では、インターネットが無料で使えるので、月々の出費を抑えられるのも魅力です。また、BSアンテナもありますので、おうち時間も充実するでしょう(別途工事、BSの契約料等が必要な場合あり)。
建物にはエレベーターがついているので、重い荷物があっても安心。共用部には宅配ボックスが設定されているので、不在の時にも荷物を受け取ることができます。
このお部屋は2階以上に位置しているので、通行人や周囲の住人からの視線が気になりにくく、防犯面でも安心。建物のエントランスはオートロックがついており、インターホンにはTVモニタもついているため、相手の顔を確認してから来客対応することができます。
人気の南向きのお部屋。キッチンはシステムキッチン仕様になっていますので、お料理好きの方にもぴったり。また、バス・トイレは別で、のんびりお風呂タイムも楽しめるでしょう。
通信設備面では、インターネットが無料で使えるので、月々の出費を抑えられるのも魅力です。また、BSアンテナもありますので、おうち時間も充実するでしょう(別途工事、BSの契約料等が必要な場合あり)。
建物にはエレベーターがついているので、重い荷物があっても安心。共用部には宅配ボックスが設定されているので、不在の時にも荷物を受け取ることができます。
お金・契約の情報
※「-」と表示されているものは、実際は料金が発生するものもございます。詳細はお問い合わせください。
| 家賃 | 7.5万円 | 管理費・共益費 | 5,000円 |
|---|---|---|---|
| 敷金 | 7.5万円 | 礼金 | なし |
| 入居決定でお祝い金最大100,000円 | |||
| 保証金 | - | 償却・敷引 | - |
| 住宅保険料 | - | 更新料 | - |
| 契約形態 | - | 契約期間 | - |
| 入居・引渡期間 | 相談 | 現況 | - |
| 契約備考 | 山新グランステージまで1100m/ケーズデンキまで750m/KORYOサポート24:1,100円/月(加入必須) 鍵交換不可 室内消毒費:13,200円 消火剤:5,500円 保証会社加入必須(初回保証料:賃料総額の50%(下限20,000円)・年間保証料:10,000円/年・月額保証料:賃料総額の1%(下限330円)) ペット不可(ペット可の建物だった為、ペット飼育中の部屋有) 合計1.87万円(内訳:室内消毒費:1.32万円/消火剤:0.55万円) KORYOサポート24:1,100円 2SLDK 事務所利用不可 損保【2万円2年】 バストイレ別、バルコニー、エアコン、ガスコンロ対応、クロゼット、TVインターホン、オートロック、室内洗濯置、シューズボックス、システムキッチン、追焚機能浴室、エレベーター、洗面所独立、駐輪場、宅配ボックス、礼金不要、3口以上コンロ、対面式キッチン、駐車2台可、ネット使用料不要、駐車場2台無料、敷地内ごみ置き場、自走式駐車場、東南向き、当社管理物件、プロパンガス、BS | ||
部屋の情報
| 間取り | 2SLDK | 専有面積 | 64.73m2 |
|---|---|---|---|
| 所在階 / 向き | 3階 / 南東 | バルコニー面積 | - |
| 水道 / ガス | - | ||
| 設備 | バス・トイレ別、2階以上、オートロック、テレビドアホン、宅配ボックス、追い焚き、インターネット対応、システムキッチン、エアコン、エレベーター、南向き、バルコニー、洗髪洗面化粧台、2口コンロ、コンロ:ガス、BSアンテナ、インターネット使用料無料、洗濯機:室内 | ||
| 当社物件ID | 157166810 | ||
建物の情報
| 建物名 | ベル・エポック21 | ||
|---|---|---|---|
| 所在地 | 茨城県水戸市住吉町 | ||
| 交通 | JR常磐線 水戸駅 徒歩60分 | ||
| 階数 | 4階建 | 総戸数 | 18戸 |
| 築年月 | 2001年03月 / 築26年 | エレベーター | あり |
| 駐車場 | 空有 平置駐 | バイク置き場 | - |
| 駐輪場 | あり | 管理人/管理会社 | - |
| 周辺環境 | その他 吉沢小(小学校)まで1800m | ||
| 建物種別 | マンション | 建物構造 | RC(鉄筋コンクリート) |
この部屋の取扱い不動産会社
| 会社名 | 香陵住販(株)50号バイパス支店(SUUMO経由) | ||
|---|---|---|---|
| 所在地 | 茨城県水戸市笠原町 1251-3 | 交通 | - |
| 営業時間 | 9:30~18:00 | 定休日 | 水曜日 |
| 免許番号 | 国土交通大臣7026 | 取引態様 | 仲介 |
| 不動産会社管理番号 | 100498597892 | 当社管理番号 | 89 |
| 所属団体 | (公社)茨城県宅地建物取引業協会会員 | ||
| 公正取引協議会 | (公社)首都圏不動産公正取引協議会加盟 | ||
| 取扱い物件情報 | 物件詳細へ | ||
※各種情報と現状に差異がある場合は、現状優先となります。問い合わせをすることで、より詳しい条件、情報を確認する事ができます。
提供:香陵住販(株)50号バイパス支店(SUUMO経由)
この物件が気になったら掲載期限まであと10日
ベル・エポック21に条件(家賃・エリア)が近い物件一覧
| 写真 | 家賃 管理費等 | 敷金 礼金 | 間取り 専有面積 | 築年数 | 最寄り駅 所在地 | キープ | 詳細 |
|---|---|---|---|---|---|---|---|
アパート 水戸市笠原町アパート(1LDK/1階) | |||||||
![]() | 7.1万円 4,000円 | 7.1万円 なし | 1LDK 43.24m2 | 新築 | 常磐線 赤塚駅 徒歩104分 茨城県水戸市笠原町 | 詳細を見る | |
アパート レイクシティ御茶園 C棟(2LDK/2階) | |||||||
![]() | 7万円 4,000円 | なし なし | 2LDK 62.51m2 | 築16年 | 茨城県水戸市千波町 | 詳細を見る | |
アパート AGREABLE-U(1LDK/1階) | |||||||
![]() | 6万円 4,500円 | なし 3万円 | 1LDK 45.3m2 | 築11年 | ひたちなか海浜鉄道 中根駅 徒歩42分 常磐線 勝田駅 徒歩45分 茨城県ひたちなか市後野1丁目 | 詳細を見る | |
マンション フレイグランス笠原(2LDK/2階) | |||||||
![]() | 6.1万円 2,200円 | なし なし | 2LDK 55.08m2 | 築23年 | JR常磐線 偕楽園駅 徒歩48分 JR常磐線 水戸駅 徒歩51分 茨城県水戸市笠原町 | 詳細を見る | |
アパート クリークガーデンCDEF(2DK/1階) | |||||||
![]() | 4.8万円 4,000円 | なし なし | 2DK 50.47m2 | 築22年 | JR常磐線 友部駅 徒歩30分 茨城県笠間市鯉淵 | 詳細を見る | |
アパート シティハイムWING笠原(1LDK/1階) | |||||||
![]() | 5.5万円 4,000円 | なし 5.5万円 | 1LDK 33.75m2 | 築11年 | 茨城県水戸市笠原町 | 詳細を見る | |
アパート ノイツークンフトヴォーネン(2LDK/1階) | |||||||
![]() | 5.8万円 2,000円 | なし なし | 2LDK 51.85m2 | 築23年 | JR常磐線 水戸駅 徒歩65分 茨城県水戸市笠原町 | 詳細を見る | |
アパート LOHAS・オオアライⅡ(1K/2階) | |||||||
![]() | 4.9万円 2,000円 | 4.9万円 なし | 1K 29.75m2 | 築20年 | 鹿島臨海鉄道 大洗駅 徒歩3分 茨城県東茨城郡大洗町桜道 | 詳細を見る | |









