賃貸マンション
S-RESIDENCE神田AVANCE エスレジデンス神田アバンスの賃貸物件情報(1K/5階)
| 家賃 | 管理費等 | 敷金 | 礼金 | 間取り | 専有面積 |
|---|---|---|---|---|---|
| 14万円 | 1.4万円 | なし | 14万円 | 1K | 26.06m2 |
入居決定でお祝い金最大100,000円
- 保証金
- -
- 償却・敷引
- -
- 築年数
- 築5年
- 所在階
- 5階
- 向き
- -
Point
★システムキッチン・2口ガスコンロ★浴室乾燥機★温水洗浄便座★独立洗面台★室内洗濯機置場★エアコン★フローリング★TVモニター付ドアホン★オートロック★詳細はお気軽にお問い合わせください★
提供:(株)ユウキ・ホーム麻布十番網代公園店(SUUMO経由)

詳細情報 S-RESIDENCE神田AVANCE エスレジデンス神田アバンス
物件紹介
S-RESIDENCE神田AVANCE エスレジデンス神田アバンスは都営新宿線馬喰横山駅から徒歩4分にあり、駅近で通勤通学に便利なマンションです。
このお部屋は2階以上に位置しているので、通行人や周囲の住人からの視線が気になりにくく、防犯面でも安心。建物のエントランスはオートロックがついており、インターホンにはTVモニタもついているため、相手の顔を確認してから来客対応することができます。
フローリングのお部屋なのでお掃除もラクラク。キッチンはシステムキッチン仕様になっていますので、お料理好きの方にもぴったり。バス・トイレは別なので、のんびりお風呂タイムも楽しめるでしょう。また、雨の日でも浴室乾燥機を使えば、お洗濯も問題ありません。
通信設備面では、インターネットが無料で使えるので、月々の出費を抑えられるのも魅力です(別途工事等が必要な場合あり)。
建物にはエレベーターがついているので、重い荷物があっても安心。共用部には宅配ボックスが設定されているので、不在の時にも荷物を受け取ることができます。また、ペット飼育の相談ができますので、あなたの大切な家族の一員も快適に暮らせるか、ぜひ確認してみてください。
このお部屋は2階以上に位置しているので、通行人や周囲の住人からの視線が気になりにくく、防犯面でも安心。建物のエントランスはオートロックがついており、インターホンにはTVモニタもついているため、相手の顔を確認してから来客対応することができます。
フローリングのお部屋なのでお掃除もラクラク。キッチンはシステムキッチン仕様になっていますので、お料理好きの方にもぴったり。バス・トイレは別なので、のんびりお風呂タイムも楽しめるでしょう。また、雨の日でも浴室乾燥機を使えば、お洗濯も問題ありません。
通信設備面では、インターネットが無料で使えるので、月々の出費を抑えられるのも魅力です(別途工事等が必要な場合あり)。
建物にはエレベーターがついているので、重い荷物があっても安心。共用部には宅配ボックスが設定されているので、不在の時にも荷物を受け取ることができます。また、ペット飼育の相談ができますので、あなたの大切な家族の一員も快適に暮らせるか、ぜひ確認してみてください。
お金・契約の情報
※「-」と表示されているものは、実際は料金が発生するものもございます。詳細はお問い合わせください。
| 家賃 | 14万円 | 管理費・共益費 | 1.4万円 |
|---|---|---|---|
| 敷金 | なし | 礼金 | 14万円 |
| 入居決定でお祝い金最大100,000円 | |||
| 保証金 | - | 償却・敷引 | - |
| 住宅保険料 | - | 更新料 | - |
| 保証会社利用 | 必須 | 保証会社名 | - |
| 保証会社費用 | - | 保証会社備考 | 保証会社利用必 初回保証料:月額総賃料の50%・詳細はお問い合わせください。 |
| 契約形態 | - | 契約期間 | - |
| 入居・引渡期間 | 相談 | 現況 | - |
| 入居可能条件 | ペット相談 | ||
| 契約備考 | 巡回管理/1年未満解約時違約金あり:賃料+共益費1.5ヶ月分 ペット相談可※詳細要確認 エアコン清掃費:16500円/台 その他詳細はお問い合わせ下さい。 合計3.3万円(内訳:鍵交換代3.3万円) 室内清掃費用 49500円 口座振替手数料 月額330円 1K 単身者可/ペット相談 普通借家2年 損保【1.8万円2年】 バストイレ別、バルコニー、エアコン、ガスコンロ対応、クロゼット、フローリング、TVインターホン、浴室乾燥機、オートロック、室内洗濯置、シューズボックス、システムキッチン、温水洗浄便座、エレベーター、洗面所独立、洗面化粧台、2口コンロ、駐輪場、宅配ボックス、敷金不要、防犯カメラ、ペット相談、保証人不要、2沿線利用可、ディンプルキー、ネット使用料不要、ダブルロックキー、2駅利用可、3駅以上利用可、3沿線以上利用可、駅徒歩5分以内、駅徒歩10分以内、保証会社利用可 敷金積み増し【ペット飼育の場合敷金1ヶ月(総額)】 | ||
部屋の情報
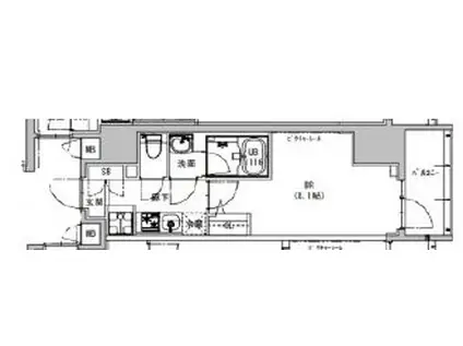
| 間取り | 1K | 専有面積 | 26.06m2 |
|---|---|---|---|
| 所在階 / 向き | 5階 / - | バルコニー面積 | - |
| 水道 / ガス | - | ||
| 設備 | バス・トイレ別、2階以上、オートロック、テレビドアホン、宅配ボックス、浴室乾燥機、インターネット対応、システムキッチン、エアコン、エレベーター、温水洗浄便座、バルコニー、フローリング、洗髪洗面化粧台、2口コンロ、コンロ:ガス、インターネット使用料無料、洗濯機:室内 | ||
| 当社物件ID | 160316512 | ||
建物の情報
| 建物名 | S-RESIDENCE神田AVANCE エスレジデンス神田アバンス | ||
|---|---|---|---|
| 所在地 | 東京都千代田区岩本町 | ||
| 交通 | 都営新宿線 馬喰横山駅 徒歩4分 JR総武線快速 馬喰町駅 徒歩4分 東京メトロ日比谷線 小伝馬町駅 徒歩5分 | ||
| 階数 | 14階建 | 総戸数 | - |
| 築年月 | 2021年10月 / 築5年 | エレベーター | あり |
| 駐車場 | なし | バイク置き場 | - |
| 駐輪場 | あり | 管理人/管理会社 | - |
| 周辺環境 | その他 セブンイレブン 千代田岩本町2丁目店(コンビニ)まで161m その他 どらっぐぱぱす小伝馬町店(ドラッグストア)まで266m その他 まいばすけっと 岩本町3丁目店(スーパー)まで356m | ||
| 建物種別 | マンション | 建物構造 | RC(鉄筋コンクリート) |
この部屋の取扱い不動産会社
| 会社名 | (株)ユウキ・ホーム麻布十番店(SUUMO経由) | ||
|---|---|---|---|
| 所在地 | 東京都港区麻布十番2-19-10 | 交通 | - |
| 営業時間 | AM9:30~PM9:30 | 定休日 | 無休 |
| 免許番号 | 東京都知事76214 | 取引態様 | 仲介 |
| 不動産会社管理番号 | 100485953184 | 当社管理番号 | 89 |
| 所属団体 | (公社)東京都宅地建物取引業協会会員 | ||
| 公正取引協議会 | (公社)首都圏不動産公正取引協議会加盟 | ||
| 取扱い物件情報 | 物件詳細へ | ||
※各種情報と現状に差異がある場合は、現状優先となります。問い合わせをすることで、より詳しい条件、情報を確認する事ができます。
提供:(株)ユウキ・ホーム麻布十番店(SUUMO経由)
この物件が気になったら掲載期限まであと11日
S-RESIDENCE神田AVANCE エスレジデンス神田アバンスに条件(家賃・エリア)が近い物件一覧
| 写真 | 家賃 管理費等 | 敷金 礼金 | 間取り 専有面積 | 築年数 | 最寄り駅 所在地 | キープ | 詳細 |
|---|---|---|---|---|---|---|---|
マンション ライオンズミレス蔵前(1DK/10階) | |||||||
![]() | 14万円 1万円 | 14万円 14万円 | 1DK 25.23m2 | 築4年 | 東京都大江戸線 蔵前駅 徒歩2分 東京都浅草線 浅草駅(東武・都営・メトロ) 徒歩6分 東京都台東区駒形1丁目 | 詳細を見る | |
マンション 後楽プレイス(1LDK/1階) | |||||||
![]() | 15.7万円 1.5万円 | なし なし | 1LDK 40.33m2 | 築1年 | 総武・中央緩行線 飯田橋駅 徒歩6分 東京地下鉄丸ノ内線 後楽園駅 徒歩8分 東京地下鉄東西線 神楽坂駅 徒歩15分 東京都文京区後楽2丁目 | 詳細を見る | |
マンション ベルファース神田神保町(1DK/8階) | |||||||
![]() | 17.7万円 1万円 | 17.7万円 なし | 1DK 25.05m2 | 築3年 | 東京地下鉄半蔵門線 神保町駅 徒歩4分 東京都三田線 神保町駅 徒歩4分 総武・中央緩行線 水道橋駅 徒歩8分 東京都千代田区神田神保町1丁目 | 詳細を見る | |
マンション TKD本郷(1K/3階) | |||||||
![]() | 12.4万円 6,000円 | 12.4万円 12.4万円 | 1K 24.18m2 | 築14年 | 東京地下鉄丸ノ内線 本郷三丁目駅 徒歩5分 総武・中央緩行線 御茶ノ水駅 徒歩8分 東京都文京区本郷2丁目 | 詳細を見る | |
マンション プラティーク鳥越(1DK/4階) | |||||||
![]() | 11.5万円 5,000円 | 11.5万円 11.5万円 | 1DK 33.85m2 | 築27年 | 都営大江戸線 新御徒町駅 徒歩5分 JR総武線 浅草橋駅 徒歩10分 東京メトロ日比谷線 仲御徒町駅 徒歩13分 東京都台東区鳥越 | 詳細を見る | |
マンション ライトテラス秋葉原(ワンルーム/4階) | |||||||
![]() | 11.6万円 2万円 | 11.6万円 11.6万円 | ワンルーム 25.13m2 | 築6年 | 東京地下鉄日比谷線 仲御徒町駅 徒歩7分 東京地下鉄銀座線 末広町駅(東京) 徒歩8分 東京地下鉄日比谷線 秋葉原駅 徒歩10分 東京都台東区台東2丁目 | 詳細を見る | |
マンション スペーシア秋葉原(1K/9階) | |||||||
![]() | 13.2万円 1.5万円 | なし なし | 1K 23.91m2 | 築20年 | 東京地下鉄銀座線 末広町駅(東京) 徒歩2分 山手線 秋葉原駅 徒歩5分 東京地下鉄千代田線 湯島駅 徒歩9分 東京都千代田区外神田4丁目 | 詳細を見る | |
マンション クラリティア浅草(1DK/5階) | |||||||
![]() | 14万円 1.5万円 | 14万円 なし | 1DK 25.46m2 | 築1年 | 東武伊勢崎・大師線 浅草駅(東武・都営・メトロ) 徒歩9分 東京都浅草線 浅草駅(東武・都営・メトロ) 徒歩10分 つくばエクスプレス 浅草駅(つくばEXP) 徒歩13分 東京都台東区浅草6丁目 | 詳細を見る | |








