賃貸アパート
ローゼンハイムB棟の賃貸物件情報(2DK/2階)
| 家賃 | 管理費等 | 敷金 | 礼金 | 間取り | 専有面積 |
|---|---|---|---|---|---|
| 4万円 | 1,000円 | 8万円 | なし | 2DK | 42m2 |
入居決定でお祝い金最大100,000円
Point
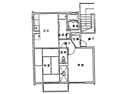
エアコン1台・独立洗面台・TVドアホン付き。キッチンにも窓がございます。
提供:池田理容不動産(有)(SUUMO経由)

詳細情報 ローゼンハイムB棟
物件紹介
ローゼンハイムB棟は高松琴平電鉄長尾線長尾駅から徒歩18分にあるアパートです。
このお部屋は2階以上に位置しているので、通行人や周囲の住人からの視線が気になりにくく、防犯面でも安心です。
人気の南向きのお部屋。バス・トイレ別の仕様で、のんびりお風呂タイムも楽しめます。
このお部屋は2階以上に位置しているので、通行人や周囲の住人からの視線が気になりにくく、防犯面でも安心です。
人気の南向きのお部屋。バス・トイレ別の仕様で、のんびりお風呂タイムも楽しめます。
お金・契約の情報
※「-」と表示されているものは、実際は料金が発生するものもございます。詳細はお問い合わせください。
| 家賃 | 4万円 | 管理費・共益費 | 1,000円 |
|---|---|---|---|
| 敷金 | 8万円 | 礼金 | なし |
| 入居決定でお祝い金最大100,000円 | |||
| 保証金 | - | 償却・敷引 | - |
| 住宅保険料 | - | 更新料 | - |
| 保証会社利用 | 必須 | 保証会社名 | 全保連 |
| 保証会社費用 | - | 保証会社備考 | 全保連利用必 契約時に月額賃料の50%が必要です。(1年毎に更新料が必要) |
| 契約形態 | - | 契約期間 | - |
| 入居・引渡期間 | 相談 | 現況 | - |
| 契約備考 | 合計3.3万円(内訳:鍵交換料) 2DK 単身者可/二人入居可 普通借家2年 損保【2.05万円2年】 バストイレ別、バルコニー、エアコン、室内洗濯置、シューズボックス、南向き、脱衣所、洗面所独立、駐輪場、礼金不要、キッチンに窓、敷金2ヶ月、敷地内ごみ置き場、プロパンガス、初期費用30万円以下 | ||
部屋の情報
| 間取り | 2DK | 専有面積 | 42m2 |
|---|---|---|---|
| 所在階 / 向き | 2階 / 南 | バルコニー面積 | - |
| 水道 / ガス | - | ||
| 設備 | バス・トイレ別、2階以上、エアコン、南向き、バルコニー、洗髪洗面化粧台、洗濯機:室内 | ||
| 当社物件ID | 159639140 | ||
建物の情報
| 建物名 | ローゼンハイムB棟 | ||
|---|---|---|---|
| 所在地 | 香川県さぬき市長尾東 | ||
| 交通 | 高松琴平電鉄長尾線 長尾駅(高松) 徒歩18分 | ||
| 階数 | 2階建 | 総戸数 | 8戸 |
| 築年月 | 1998年02月 / 築29年 | エレベーター | - |
| 駐車場 | 空有 2200円 | バイク置き場 | - |
| 駐輪場 | あり | 管理人/管理会社 | - |
| 周辺環境 | その他 さぬき市立長尾小学校(小学校)まで605m その他 ほっかほっか亭長尾店(飲食店)まで634m その他 ディスカウントドラッグコスモスさぬき長尾店(ドラッグストア)まで1183m その他 ファミリーマートさぬき長尾店(コンビニ)まで597m その他 マルナカ長尾店(スーパー)まで957m その他 長尾郵便局(郵便局)まで623m | ||
| 建物種別 | アパート | 建物構造 | 軽量鉄骨造 |
この部屋の取扱い不動産会社
| 会社名 | 池田理容不動産(有)(SUUMO経由) | ||
|---|---|---|---|
| 所在地 | 香川県さぬき市志度 1008 | 交通 | - |
| 営業時間 | 9時~18時(土、日、祝のみ17時迄) | 定休日 | 水曜日 |
| 免許番号 | 香川県知事3058 | 取引態様 | 仲介 |
| 不動産会社管理番号 | 100465356428 | 当社管理番号 | 89 |
| 所属団体 | (公社)香川県宅地建物取引業協会会員 | ||
| 公正取引協議会 | 四国地区不動産公正取引協議会加盟 | ||
| 取扱い物件情報 | 物件詳細へ | ||
※各種情報と現状に差異がある場合は、現状優先となります。問い合わせをすることで、より詳しい条件、情報を確認する事ができます。
提供:池田理容不動産(有)(SUUMO経由)
この物件が気になったら掲載期限まであと6日
ローゼンハイムB棟に条件(家賃・エリア)が近い物件一覧
| 写真 | 家賃 管理費等 | 敷金 礼金 | 間取り 専有面積 | 築年数 | 最寄り駅 所在地 | キープ | 詳細 |
|---|---|---|---|---|---|---|---|
マンション グランディール太田A(1K/2階) | |||||||
![]() | 4.2万円 3,300円 | なし なし | 1K 33.66m2 | 築23年 | 高松琴平電鉄琴平線 太田駅(高松) 徒歩18分 香川県高松市太田下町 | 詳細を見る | |
アパート ジュネスタウンC棟(3DK/2階) | |||||||
![]() | 4.3万円 3,500円 | なし なし | 3DK 56.14m2 | 築32年 | 高松琴平電鉄志度線 六万寺駅 徒歩7分 JR高徳線 八栗口駅 徒歩15分 高松琴平電鉄志度線 大町駅(高松) 徒歩17分 香川県高松市牟礼町牟礼 | 詳細を見る | |
アパート フラワーハイツ(1LDK/1階) | |||||||
![]() | 4.5万円 5,000円 | なし なし | 1LDK 41.89m2 | 築29年 | 高松琴平電鉄長尾線 元山駅(高松) 徒歩18分 高松琴平電鉄長尾線 木太東口駅 徒歩23分 高松琴平電鉄長尾線 水田駅 徒歩24分 香川県高松市林町 | 詳細を見る | |
マンション アルファレガロ中央町(1K/2階) | |||||||
![]() | 6.2万円 7,000円 | なし なし | 1K 38.6m2 | 築18年 | JR高徳線 栗林公園北口駅 徒歩7分 高松琴平電鉄琴平線 瓦町駅 徒歩12分 JR高徳線 栗林駅 徒歩19分 香川県高松市中央町 | 詳細を見る | |
アパート フォブールKT(3DK/2階) | |||||||
![]() | 5万円 3,000円 | なし なし | 3DK 58.7m2 | 築33年 | 高徳線 木太町駅 徒歩22分 高松琴平電鉄志度線 潟元駅 徒歩26分 高松琴平電鉄志度線 春日川駅 徒歩26分 香川県高松市春日町 | 詳細を見る | |
マンション ストーンレイク子の浜C棟(2LDK/4階) | |||||||
![]() | 6.1万円 なし | 12.2万円 12.2万円 | 2LDK 61.38m2 | 築31年 | 高松琴平電鉄志度線 潟元駅 徒歩8分 高松琴平電鉄志度線 春日川駅 徒歩20分 香川県高松市屋島西町 | 詳細を見る | |
アパート エスポワールA(1K/1階) | |||||||
![]() | 5.25万円 4,100円 | なし 8.3万円 | 1K 35m2 | 築3年 | 高松琴平電鉄長尾線 元山駅(高松) 徒歩30分 高松琴平電鉄長尾線 水田駅 徒歩30分 高松琴平電鉄長尾線 木太東口駅 徒歩38分 香川県高松市六条町 | 詳細を見る | |
アパート シャーメゾン B棟(2LDK/2階) | |||||||
![]() | 5.1万円 4,000円 | なし 5万円 | 2LDK 52.54m2 | 築26年 | 高松琴平電鉄長尾線 池戸駅 徒歩16分 高松琴平電鉄長尾線 農学部前駅 徒歩19分 高松琴平電鉄長尾線 高田駅(高松) 徒歩22分 香川県高松市亀田南町 | 詳細を見る | |









