賃貸マンション
AXAS西馬込ASYLCOURTの賃貸物件情報(1K/2階)
| 家賃 | 管理費等 | 敷金 | 礼金 | 間取り | 専有面積 |
|---|---|---|---|---|---|
| 8.6万円 | 1万円 | 8.6万円 | 8.6万円 | 1K | 25.47m2 |
入居決定でお祝い金最大100,000円
Point
まずはお問い合わせ!
不動産会社は街のプロ、あなたに合った物件がきっと見つかります。
提供:(株)暮らすティ蒲田東口店(SUUMO経由)

詳細情報 AXAS西馬込ASYLCOURT
物件紹介
AXAS西馬込ASYLCOURTは東京都浅草線西馬込駅から徒歩7分にあり、駅近で通勤通学に便利なマンションです。
このお部屋は2階以上に位置しているので、通行人や周囲の住人からの視線が気になりにくく、防犯面でも安心。建物のエントランスはオートロックがついており、インターホンにはTVモニタもついているため、相手の顔を確認してから来客対応することができます。
フローリングのお部屋なのでお掃除もラクラク。室内には人気のウォークインクローゼットがありますので、たくさんの荷物も効率的に収納ができます。キッチンはシステムキッチン仕様になっていますので、お料理好きの方にもぴったり。バス・トイレは別なので、のんびりお風呂タイムも楽しめるでしょう。また、雨の日でも浴室乾燥機を使えば、お洗濯も問題ありません。
通信設備面では、インターネット接続が可能です。また、BSアンテナ・CSアンテナもありますので、おうち時間も充実するでしょう(別途工事、契約料が必要な場合あり)。
建物にはエレベーターがついているので、重い荷物があっても安心。共用部には宅配ボックスが設定されているので、不在の時にも荷物を受け取ることができます。また、ペット飼育の相談ができますので、あなたの大切な家族の一員も快適に暮らせるか、ぜひ確認してみてください。
このお部屋は2階以上に位置しているので、通行人や周囲の住人からの視線が気になりにくく、防犯面でも安心。建物のエントランスはオートロックがついており、インターホンにはTVモニタもついているため、相手の顔を確認してから来客対応することができます。
フローリングのお部屋なのでお掃除もラクラク。室内には人気のウォークインクローゼットがありますので、たくさんの荷物も効率的に収納ができます。キッチンはシステムキッチン仕様になっていますので、お料理好きの方にもぴったり。バス・トイレは別なので、のんびりお風呂タイムも楽しめるでしょう。また、雨の日でも浴室乾燥機を使えば、お洗濯も問題ありません。
通信設備面では、インターネット接続が可能です。また、BSアンテナ・CSアンテナもありますので、おうち時間も充実するでしょう(別途工事、契約料が必要な場合あり)。
建物にはエレベーターがついているので、重い荷物があっても安心。共用部には宅配ボックスが設定されているので、不在の時にも荷物を受け取ることができます。また、ペット飼育の相談ができますので、あなたの大切な家族の一員も快適に暮らせるか、ぜひ確認してみてください。
お金・契約の情報
※「-」と表示されているものは、実際は料金が発生するものもございます。詳細はお問い合わせください。
| 家賃 | 8.6万円 | 管理費・共益費 | 1万円 |
|---|---|---|---|
| 敷金 | 8.6万円 | 礼金 | 8.6万円 |
| 入居決定でお祝い金最大100,000円 | |||
| 保証金 | - | 償却・敷引 | - |
| 住宅保険料 | 1円 | 更新料 | - |
| その他費用 | 24時間サポート(くらしーど):1.65万円、5500円: | ||
| 保証会社利用 | 必須 | 保証会社名 | - |
| 保証会社費用 | - | 保証会社備考 | 初回保証委託料:総賃料40%〜 継続保証料:月or年 |
| 契約形態 | - | 契約期間 | 2年 |
| 入居・引渡期間 | 2026年03月中旬 | 現況 | - |
| 入居可能条件 | 2人入居可、ペット可 | ||
| 契約備考 | 鍵交換費用:22000 その他設備/条件:室内洗濯機置き場、ごみ出し24時間OK、防犯カメラ、クローゼット、シューズボックス | ||
部屋の情報
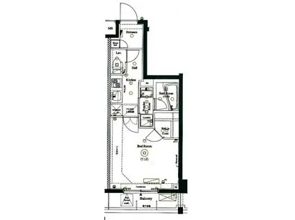
| 間取り | 1K | 専有面積 | 25.47m2 |
|---|---|---|---|
| 間取り詳細 | 洋室(7.1帖) | ||
| 所在階 / 向き | 2階 / 東 | バルコニー面積 | 3m2 |
| 水道 / ガス | ガス【都市】 | ||
| 設備 | バス・トイレ別、オートロック、テレビドアホン、宅配ボックス、浴室乾燥機、インターネット対応、システムキッチン、エアコン、エレベーター、バルコニー、フローリング、CSアンテナ、BSアンテナ、給湯 | ||
| 当社物件ID | 120422845 | ||
建物の情報
| 建物名 | AXAS西馬込ASYLCOURT | ||
|---|---|---|---|
| 所在地 | 東京都大田区西馬込1丁目 | ||
| 交通 | 東京都浅草線 西馬込駅 徒歩7分 東京都浅草線 馬込駅 徒歩15分 | ||
| 階数 | 地下2地上4階建 | 総戸数 | - |
| 築年月 | 2015年08月 / 築11年 | エレベーター | あり |
| 駐車場 | - | バイク置き場 | - |
| 駐輪場 | - | 管理人/管理会社 | - |
| 周辺環境 | その他 ドラッグストア その他 公園 その他 銀行 その他 * | ||
| 建物種別 | マンション | 建物構造 | RC(鉄筋コンクリート) |
この部屋の取扱い不動産会社
| 会社名 | ハウスコム西東京株式会社 蒲田店 | ||
|---|---|---|---|
| 所在地 | 東京都大田区5-8コパンビル1階 | 交通 | - |
| 営業時間 | 10:00~18:00 | 定休日 | - |
| 免許番号 | 東京都知事(1)第108225号 | 取引態様 | 仲介 |
| 不動産会社管理番号 | HC4-5332212-402-0099 | 当社管理番号 | 468 |
| 所属団体 | 、 | ||
| 取扱い物件情報 | 物件詳細へ | ||
※各種情報と現状に差異がある場合は、現状優先となります。問い合わせをすることで、より詳しい条件、情報を確認する事ができます。
提供:ハウスコム西東京株式会社 蒲田店
この物件が気になったら掲載期限まであと4日
AXAS西馬込ASYLCOURTに条件(家賃・エリア)が近い物件一覧
| 写真 | 家賃 管理費等 | 敷金 礼金 | 間取り 専有面積 | 築年数 | 最寄り駅 所在地 | キープ | 詳細 |
|---|---|---|---|---|---|---|---|
マンション カペラⅡ(1K/3階) | |||||||
![]() | 8.7万円 5,000円 | 8.7万円 8.7万円 | 1K 18.75m2 | 築24年 | 東急池上線 戸越銀座駅 徒歩5分 東京都浅草線 戸越駅 徒歩7分 東急目黒線 武蔵小山駅 徒歩11分 東京都品川区荏原2丁目 | 詳細を見る | |
マンション SEED JUST B-BASE Ⅱ(1LDK/2階) | |||||||
![]() | 8.8万円 1.5万円 | 8.8万円 8.8万円 | 1LDK 23.07m2 | 新築 | 東京モノレール羽田 昭和島駅 徒歩11分 京浜急行電鉄本線 梅屋敷駅(東京) 徒歩19分 東京都大田区大森南4丁目 | 詳細を見る | |
アパート SEED SAVE PETIRASU Ⅲ(1LDK/2階) | |||||||
![]() | 11.5万円 1万円 | 23万円 11.5万円 | 1LDK 30.55m2 | 新築 | 東京モノレール羽田 昭和島駅 徒歩12分 京浜急行電鉄本線 大森町駅 徒歩18分 東京都大田区大森東5丁目 | 詳細を見る | |
マンション TSK蒲田フラワーマンション(2DK/6階) | |||||||
![]() | 13万円 8,000円 | 13万円 13万円 | 2DK 40.88m2 | 築47年 | 京浜東北・根岸線 蒲田駅 徒歩12分 京浜急行電鉄本線 梅屋敷駅(東京) 徒歩12分 東京都大田区蒲田1丁目 | 詳細を見る | |
マンション レガリス清澄白河ブロッサム(1K/8階) | |||||||
![]() | 12万円 1万円 | 12万円 12万円 | 1K 25.63m2 | 築11年 | 東京地下鉄半蔵門線 清澄白河駅 徒歩4分 東京地下鉄東西線 門前仲町駅 徒歩8分 東京都大江戸線 門前仲町駅 徒歩8分 東京都江東区清澄2丁目 | 詳細を見る | |
マンション ドミール清澄(1K/1階) | |||||||
![]() | 8.5万円 なし | 8.5万円 8.5万円 | 1K 20.65m2 | 築28年 | 東京メトロ半蔵門線 清澄白河駅 徒歩6分 都営大江戸線 清澄白河駅 徒歩7分 都営新宿線 菊川駅(東京) 徒歩12分 東京都江東区三好 | 詳細を見る | |
マンション ルーブル仲六郷壱番館(1DK/8階) | |||||||
![]() | 11.6万円 9,000円 | なし 11.6万円 | 1DK 30.32m2 | 築12年 | 京急本線 六郷土手駅 徒歩2分 東京都大田区仲六郷 | 詳細を見る | |







