賃貸マンション
プレサンスSAKAEフロントの賃貸物件情報(1K/3階)
| 家賃 | 管理費等 | 敷金 | 礼金 | 間取り | 専有面積 |
|---|---|---|---|---|---|
| 5.886万円 | 7,140円 | なし | 6.6万円 | 1K | 21.63m2 |
入居決定でお祝い金最大100,000円
- 保証金
- -
- 償却・敷引
- -
- 築年数
- 築6年
- 所在階
- 3階
- 向き
- 西
Point
賃料を10万円以下に抑えたい方におすすめです。毎日テレビ鑑賞を楽しみたい方はこちらのBS/CS対応の物件はいかがでしょうか。相談内容はお部屋の事から入居日時までなんでも承ります。1Kなのでキッチンも快適。楽しくお料理もできる満足の物件です。この物件はバルコニー付きで、用途に合わせて活用できます。駐輪
提供:アパマンショップ金山店

詳細情報 プレサンスSAKAEフロント
物件紹介
プレサンスSAKAEフロントは名古屋市名城線矢場町駅から徒歩3分にあり、駅近で通勤通学に便利なマンションです。
このお部屋は2階以上に位置しているので、通行人や周囲の住人からの視線が気になりにくく、防犯面でも安心。建物のエントランスはオートロックがついており、インターホンにはTVモニタもついているため、相手の顔を確認してから来客対応することができます。
おしゃれなデザイナーズ物件!フローリングのお部屋なのでお掃除もラクラク。キッチンはシステムキッチン仕様になっていますので、お料理好きの方にもぴったり。バス・トイレは別なので、のんびりお風呂タイムも楽しめるでしょう。また、雨の日でも浴室乾燥機を使えば、お洗濯も問題ありません。
通信設備面では、インターネットが無料で使えるので、月々の出費を抑えられるのも魅力です。また、BSアンテナ・CSアンテナがありCATVにも対応しているので、おうち時間も充実するでしょう(別途工事、BS・CS・CATVの契約料等が必要な場合あり)。
建物にはエレベーターがついているので、重い荷物があっても安心。共用部には宅配ボックスが設定されているので、不在の時にも荷物を受け取ることができます。
このお部屋は2階以上に位置しているので、通行人や周囲の住人からの視線が気になりにくく、防犯面でも安心。建物のエントランスはオートロックがついており、インターホンにはTVモニタもついているため、相手の顔を確認してから来客対応することができます。
おしゃれなデザイナーズ物件!フローリングのお部屋なのでお掃除もラクラク。キッチンはシステムキッチン仕様になっていますので、お料理好きの方にもぴったり。バス・トイレは別なので、のんびりお風呂タイムも楽しめるでしょう。また、雨の日でも浴室乾燥機を使えば、お洗濯も問題ありません。
通信設備面では、インターネットが無料で使えるので、月々の出費を抑えられるのも魅力です。また、BSアンテナ・CSアンテナがありCATVにも対応しているので、おうち時間も充実するでしょう(別途工事、BS・CS・CATVの契約料等が必要な場合あり)。
建物にはエレベーターがついているので、重い荷物があっても安心。共用部には宅配ボックスが設定されているので、不在の時にも荷物を受け取ることができます。
お金・契約の情報
※「-」と表示されているものは、実際は料金が発生するものもございます。詳細はお問い合わせください。
| 家賃 | 5.886万円 | 管理費・共益費 | 7,140円 |
|---|---|---|---|
| 敷金 | なし | 礼金 | 6.6万円 |
| 入居決定でお祝い金最大100,000円 | |||
| 保証金 | - | 償却・敷引 | - |
| 住宅保険料 | 住宅保険料あり | 更新料 | - |
| 契約形態 | - | 契約期間 | 2年 |
| 入居・引渡期間 | 相談 | 現況 | 居住中 |
| 契約備考 | 新居のお住まいの日にちはどうぞご相談してくださいね。ワンルームとはちがった素敵なキッチンがあるお住まいです。エレベーターがある物件です。地上14階建ての物件をご紹介。マンションタイプのお部屋です。素敵なシステムキッチンが付いておりますので、今までの調理の煩わしさから解放されます。室内設備は洗面所独立・浴室乾燥機など豊富に揃っており、過ごしやすいお部屋になっております。共用部には宅配ボックス・ゴミ出し24時間OKなどが備わっておりとても充実しています。収納はクロゼット・シューズボックス・全居室収納など豊富なので、広々と空間を利用することも可能です。セキュリティ面は、オートロック・TVインターホンなど充実しているので安心して生活できます。気になるイチオシ物件情報:「プレサンスSAKAEフロント」。 更新料:11,000円 保証会社:利用必須 初回保証委託料総賃料の50%・月次保証料総賃料の1.5%プレサンスギャランティ株式会社初回保証料:月額総合計の50%(駐輪・バイク・駐車場も含む)最低保証料は20,000円/更新料:月額総合計費用の1.5%・日本セーフティー・全保連初回保証料:月額総合計の50%(駐輪・バイク・駐車場も含む)最低保証料は20,000円/更新料:年10,000円/引き落とし手数料:日本セーフティー440円・全保連330円 その他設備/条件:IT重説 対応物件、防犯カメラ、分譲賃貸、コンロ2口以上、独立洗面台、TVドアホン、エアコン複数、敷地内ゴミ置場 | ||
部屋の情報
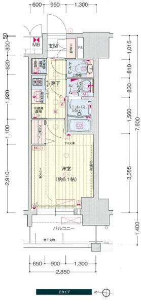
| 間取り | 1K | 専有面積 | 21.63m2 |
|---|---|---|---|
| 間取り詳細 | 洋室(6.1帖) | ||
| 所在階 / 向き | 3階 / 西 | バルコニー面積 | - |
| 水道 / ガス | ガス【都市】 | ||
| 設備 | バス・トイレ別、2階以上、オートロック、宅配ボックス、浴室乾燥機、インターネット対応、システムキッチン、エアコン、エレベーター、温水洗浄便座、バルコニー、フローリング、コンロ:ガス、デザイナーズ、CSアンテナ、BSアンテナ、洗濯機:室内、タイル張り | ||
| 当社物件ID | 41215401 | ||
建物の情報
| 建物名 | プレサンスSAKAEフロント | ||
|---|---|---|---|
| 所在地 | 愛知県名古屋市中区栄5丁目 | ||
| 交通 | 名古屋市名城線 矢場町駅 徒歩5分 名古屋市東山線 栄駅(名古屋) 徒歩11分 名古屋市鶴舞線 上前津駅 徒歩16分 | ||
| 階数 | 14階建 | 総戸数 | - |
| 築年月 | 2020年07月 / 築6年 | エレベーター | あり |
| 駐車場 | 空無 | バイク置き場 | あり |
| 駐輪場 | あり | 管理人/管理会社 | - |
| 建物種別 | マンション | 建物構造 | RC(鉄筋コンクリート) |
この部屋の取扱い不動産会社
| 会社名 | 株式会社Nタウン不動産 Ntown栄店(賃貸スモッカ経由) | ||
|---|---|---|---|
| 所在地 | 愛知県名古屋市中区錦3-14-22 ミヤキビル2G | 交通 | - |
| 営業時間 | - | 定休日 | - |
| 免許番号 | 愛知県知事免許(1)第24292号 | 取引態様 | 仲介 |
| 不動産会社管理番号 | ntown_146350000393131 | 当社管理番号 | 463 |
| 所属団体 | (公社)全国宅地建物取引業協会連合会\n(公社)愛知県宅地建物取引業協会\n東海不動産公正取引協議会 | ||
| 公正取引協議会 | (公社)全国宅地建物取引業保証協会 | ||
| 取扱い物件情報 | 物件詳細へ | ||
※各種情報と現状に差異がある場合は、現状優先となります。問い合わせをすることで、より詳しい条件、情報を確認する事ができます。
提供:株式会社Nタウン不動産 Ntown栄店(賃貸スモッカ経由)
この物件が気になったら掲載期限まであと7日
プレサンスSAKAEフロントに条件(家賃・エリア)が近い物件一覧
| 写真 | 家賃 管理費等 | 敷金 礼金 | 間取り 専有面積 | 築年数 | 最寄り駅 所在地 | キープ | 詳細 |
|---|---|---|---|---|---|---|---|
マンション 千種アヴァンギャルドプレイス(1K/11階) | |||||||
![]() | 7.6万円 7,000円 | なし なし | 1K 30.48m2 | 築9年 | 名古屋市鶴舞線 鶴舞駅 徒歩9分 愛知県名古屋市中区新栄2丁目 | 詳細を見る | |
マンション レジデンス名古屋千代田(1K/3階) | |||||||
![]() | 5.6万円 7,000円 | なし なし | 1K 24.42m2 | 築20年 | 地下鉄名城線 矢場町駅 徒歩6分 地下鉄鶴舞線 鶴舞駅 徒歩12分 愛知県名古屋市中区千代田 | 詳細を見る | |
マンション プレサンスSAKAE白川公園(ワンルーム/5階) | |||||||
![]() | 5.264万円 9,360円 | なし なし | ワンルーム 20.95m2 | 築18年 | 名古屋市鶴舞線 大須観音駅 徒歩4分 名古屋市名城線 矢場町駅 徒歩13分 名古屋市鶴舞線 上前津駅 徒歩14分 愛知県名古屋市中区大須2丁目 | 詳細を見る | |
アパート ハーモニーテラス栄イースト(1K/2階) | |||||||
![]() | 5.95万円 4,000円 | なし 5.95万円 | 1K 21.34m2 | 築9年 | 地下鉄東山線 新栄町駅(愛知) 徒歩10分 JR中央本線 鶴舞駅 徒歩12分 地下鉄名城線 矢場町駅 徒歩13分 愛知県名古屋市中区新栄 | 詳細を見る | |
マンション エスリード大須プレシア(1K/15階) | |||||||
![]() | 6.21万円 8,000円 | なし なし | 1K 25.88m2 | 築4年 | 地下鉄鶴舞線 大須観音駅 徒歩4分 地下鉄鶴舞線 上前津駅 徒歩13分 地下鉄名城線 上前津駅 徒歩13分 愛知県名古屋市中区大須 | 詳細を見る | |
マンション プレサンス上前津プレス(1K/11階) | |||||||
![]() | 6.256万円 9,440円 | なし なし | 1K 25.52m2 | 築7年 | 名古屋市名城線 上前津駅 徒歩7分 名古屋市鶴舞線 上前津駅 徒歩7分 名古屋市名城線 東別院駅 徒歩9分 愛知県名古屋市中区富士見町 | 詳細を見る | |
マンション SOU大須(1K/7階) | |||||||
![]() | 8.2万円 7,000円 | なし 8.2万円 | 1K 34.59m2 | 築4年 | 地下鉄鶴舞線 大須観音駅 徒歩3分 地下鉄名城線 上前津駅 徒歩8分 地下鉄名城線 矢場町駅 徒歩19分 愛知県名古屋市中区松原 | 詳細を見る | |
マンション プレサンスジェネ新栄町駅前 葵(1DK/3階) | |||||||
![]() | 6.829万円 7,710円 | なし なし | 1DK 25.11m2 | 築5年 | 名古屋市東山線 新栄町駅(愛知) 徒歩1分 名古屋市桜通線 高岳駅 徒歩12分 名古屋市桜通線 車道駅 徒歩15分 愛知県名古屋市中区葵1丁目 | 詳細を見る | |








