賃貸マンション
辻村屋ビルの賃貸物件情報(3LDK/7階)
| 家賃 | 管理費等 | 敷金 | 礼金 | 間取り | 専有面積 |
|---|---|---|---|---|---|
| 45万円 | なし | 90万円 | なし | 3LDK | 108.96m2 |
入居決定でお祝い金最大100,000円
- 保証金
- -
- 償却・敷引
- -
- 築年数
- 築17年
- 所在階
- 7階
- 向き
- -
Point
現地待ち合わせでのご案内可能!/LINE等オンラインでのご相談・ご内見も可能<LINE公式アカウント @456woffb>/【クレジット決済可能】
提供:(株)クレドハウジング 本店(SUUMO経由)

詳細情報 辻村屋ビル
物件紹介
辻村屋ビルは都営新宿線住吉駅から徒歩7分にあり、駅近で通勤通学に便利なマンションです。
このお部屋は2階以上に位置しているので、通行人や周囲の住人からの視線が気になりにくく、防犯面でも安心。建物のエントランスはオートロックがついており、インターホンにはTVモニタもついているため、相手の顔を確認してから来客対応することができます。
人気の角部屋で周囲の居住者の生活音も気になりにくく、また、フローリングのお部屋なのでお掃除もラクラク。室内にはウォークインクローゼットがありますので、たくさんの荷物も効率的に収納ができます。キッチンはシステムキッチン仕様になっていますので、お料理好きの方にもぴったり。バス・トイレは別なので、のんびりお風呂タイムも楽しめるでしょう。また、雨の日でも浴室乾燥機を使えば、お洗濯も問題ありません。
通信設備面では、インターネット接続が可能です。また、CATVにも対応しているので、おうち時間も充実するでしょう(別途工事、契約料が必要な場合あり)。
床暖房があり、冬も足元から暖かく快適に過ごすことができます。建物にはエレベーターがついているので、重い荷物があっても安心。共用部には宅配ボックスが設定されているので、不在の時にも荷物を受け取ることができます。
このお部屋は2階以上に位置しているので、通行人や周囲の住人からの視線が気になりにくく、防犯面でも安心。建物のエントランスはオートロックがついており、インターホンにはTVモニタもついているため、相手の顔を確認してから来客対応することができます。
人気の角部屋で周囲の居住者の生活音も気になりにくく、また、フローリングのお部屋なのでお掃除もラクラク。室内にはウォークインクローゼットがありますので、たくさんの荷物も効率的に収納ができます。キッチンはシステムキッチン仕様になっていますので、お料理好きの方にもぴったり。バス・トイレは別なので、のんびりお風呂タイムも楽しめるでしょう。また、雨の日でも浴室乾燥機を使えば、お洗濯も問題ありません。
通信設備面では、インターネット接続が可能です。また、CATVにも対応しているので、おうち時間も充実するでしょう(別途工事、契約料が必要な場合あり)。
床暖房があり、冬も足元から暖かく快適に過ごすことができます。建物にはエレベーターがついているので、重い荷物があっても安心。共用部には宅配ボックスが設定されているので、不在の時にも荷物を受け取ることができます。
お金・契約の情報
※「-」と表示されているものは、実際は料金が発生するものもございます。詳細はお問い合わせください。
| 家賃 | 45万円 | 管理費・共益費 | なし |
|---|---|---|---|
| 敷金 | 90万円 | 礼金 | なし |
| 入居決定でお祝い金最大100,000円 | |||
| 保証金 | - | 償却・敷引 | - |
| 住宅保険料 | - | 更新料 | - |
| 保証会社利用 | 必須 | 保証会社名 | - |
| 保証会社費用 | - | 保証会社備考 | 保証会社利用必 初回:総賃料50%/年:10000円/口座振替手数料:330円 |
| 契約形態 | 定期借家 | 契約期間 | 2年 |
| 入居・引渡期間 | - | 現況 | - |
| 契約備考 | 巡回管理/【再契約可能】再契約料:新賃料1ヶ月分/ 合計5.06万円(内訳:鍵交換:38500円/安心サポート:12100円) 3LDK 定期借家2年 損保【2万円2年】 バストイレ別、バルコニー、エアコン、クロゼット、フローリング、TVインターホン、浴室乾燥機、オートロック、室内洗濯置、陽当り良好、シューズボックス、システムキッチン、追焚機能浴室、角住戸、温水洗浄便座、エレベーター、洗面所独立、駐輪場、宅配ボックス、CATV、光ファイバー、礼金不要、最上階、3口以上コンロ、対面式キッチン、防犯カメラ、駐車場1台無料、オートバス、グリル付、ウォークインクロゼット、保証人不要、CATVインターネット、バイク置場、全居室フローリング、ガスレンジ付、ディンプルキー、ネット専用回線、床暖房、眺望良好、エアコン全室、トイレ2ヶ所、3駅以上利用可、敷地内ごみ置き場、平面駐車場、ガスオーブン、都市ガス、洗面2ボウル、L字型バルコニー、ダウンライト、高速ネット対応、IT重説対応物件、初期費用カード決済可 入居日:'26年1月中旬 | ||
部屋の情報
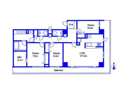
| 間取り | 3LDK | 専有面積 | 108.96m2 |
|---|---|---|---|
| 所在階 / 向き | 7階 / - | バルコニー面積 | - |
| 水道 / ガス | - | ||
| 設備 | バス・トイレ別、2階以上、オートロック、テレビドアホン、宅配ボックス、浴室乾燥機、ウォークインクローゼット、追い焚き、インターネット対応、システムキッチン、エアコン、エレベーター、温水洗浄便座、角部屋、バルコニー、フローリング、洗髪洗面化粧台、床暖房、2口コンロ、コンロ:ガス、CATV、洗濯機:室内 | ||
| 当社物件ID | 158418272 | ||
建物の情報
| 建物名 | 辻村屋ビル | ||
|---|---|---|---|
| 所在地 | 東京都墨田区江東橋 | ||
| 交通 | 都営新宿線 住吉駅(東京) 徒歩7分 都営新宿線 菊川駅(東京) 徒歩8分 JR総武線 錦糸町駅 徒歩12分 | ||
| 階数 | 7階建 | 総戸数 | - |
| 築年月 | 2009年06月 / 築17年 | エレベーター | あり |
| 駐車場 | 空有 付無料 | バイク置き場 | あり |
| 駐輪場 | あり | 管理人/管理会社 | - |
| 周辺環境 | その他 オーケー住吉店(スーパー)まで100m その他 セブンイレブン墨田江東橋5丁目店(コンビニ)まで90m その他 ローソン墨田江東橋五丁目店(コンビニ)まで150m その他 錦糸町PARCO(ショッピングセンター)まで1150m その他 錦糸町テルミナ(ショッピングセンター)まで1000m その他 錦糸町マルイ(ショッピングセンター)まで900m | ||
| 建物種別 | マンション | 建物構造 | RC(鉄筋コンクリート) |
この部屋の取扱い不動産会社
| 会社名 | (株)クレドハウジング 本店(SUUMO経由) | ||
|---|---|---|---|
| 所在地 | 千葉県市川市新田2-14-7-1階 | 交通 | - |
| 営業時間 | 10:00~19:00 | 定休日 | 毎週水曜日/第1・第3火曜日 |
| 免許番号 | 千葉県知事18515 | 取引態様 | 仲介 |
| 不動産会社管理番号 | 100480263846 | 当社管理番号 | 89 |
| 所属団体 | (公社)全日本不動産協会千葉県本部会員 | ||
| 公正取引協議会 | (公社)首都圏不動産公正取引協議会加盟 | ||
| 取扱い物件情報 | 物件詳細へ | ||
※各種情報と現状に差異がある場合は、現状優先となります。問い合わせをすることで、より詳しい条件、情報を確認する事ができます。
提供:(株)クレドハウジング 本店(SUUMO経由)
この物件が気になったら掲載期限まであと9日
辻村屋ビルに条件(家賃・エリア)が近い物件一覧
| 写真 | 家賃 管理費等 | 敷金 礼金 | 間取り 専有面積 | 築年数 | 最寄り駅 所在地 | キープ | 詳細 |
|---|---|---|---|---|---|---|---|
アパート サンジョイアゼロ(2SLDK/7階) | |||||||
![]() | 29.4万円 1.1万円 | なし 29.4万円 | 2SLDK 74.39m2 | 築1年 | 東京地下鉄東西線 葛西駅 徒歩5分 東京地下鉄東西線 西葛西駅 徒歩14分 東京都江戸川区中葛西5丁目 | 詳細を見る | |
マンション PARK AXIS 豊洲(2LDK/9階) | |||||||
![]() | 32.9万円 1万円 | 32.9万円 32.9万円 | 2LDK 69.74m2 | 築18年 | 東京メトロ有楽町線 豊洲駅 徒歩8分 新交通ゆりかもめ 豊洲駅 徒歩9分 東京メトロ有楽町線 月島駅 徒歩16分 東京都江東区豊洲 | 詳細を見る | |
マンション ルフォンプログレ上野稲荷町(2LDK/14階) | |||||||
![]() | 28.2万円 2万円 | 28.2万円 なし | 2LDK 50.8m2 | 築4年 | 東京メトロ銀座線 稲荷町駅(東京) 徒歩5分 つくばエクスプレス 新御徒町駅 徒歩6分 JR山手線 上野駅 徒歩12分 東京都台東区元浅草 | 詳細を見る | |
マンション クラリティア浅草橋(2LDK/14階) | |||||||
![]() | 27.5万円 2万円 | 27.5万円 なし | 2LDK 51.38m2 | 築1年 | JR総武線 浅草橋駅 徒歩4分 JR山手線 秋葉原駅 徒歩8分 都営浅草線 蔵前駅 徒歩15分 東京都台東区浅草橋 | 詳細を見る | |
マンション パークタワー勝どきサウス(1LDK/27階) | |||||||
![]() | 27万円 なし | 27万円 27万円 | 1LDK 40.1m2 | 築3年 | 都営大江戸線 勝どき駅 徒歩2分 東京都中央区勝どき | 詳細を見る | |
マンション BRILLIA IST 東雲キャナルコート(3LDK/14階) | |||||||
![]() | 48.4万円 1.6万円 | 48.4万円 なし | 3LDK 101.75m2 | 築21年 | 東京メトロ有楽町線 辰巳駅 徒歩13分 りんかい線 東雲駅(東京) 徒歩13分 東京メトロ有楽町線 豊洲駅 徒歩13分 東京都江東区東雲 | 詳細を見る | |
マンション エスティメゾン銀座(1LDK/7階) | |||||||
![]() | 27.2万円 2万円 | なし なし | 1LDK 46.76m2 | 築21年 | 東京メトロ日比谷線 東銀座駅 徒歩1分 東京メトロ銀座線 銀座駅 徒歩4分 JR山手線 有楽町駅 徒歩8分 東京都中央区銀座 | 詳細を見る | |
アパート MFPRコート日本橋馬喰町(3DK/6階) | |||||||
![]() | 28.6万円 2万円 | 28.6万円 28.6万円 | 3DK 52.73m2 | 築2年 | JR総武線快速 馬喰町駅 徒歩2分 都営新宿線 馬喰横山駅 徒歩2分 都営浅草線 東日本橋駅 徒歩4分 東京都中央区日本橋馬喰町 | 詳細を見る | |









