賃貸マンション
エルファーロ駒沢公園IIの賃貸物件情報(1DK/3階)
| 家賃 | 管理費等 | 敷金 | 礼金 | 間取り | 専有面積 |
|---|---|---|---|---|---|
| 11.4万円 | 8,000円 | なし | なし | 1DK | 25.62m2 |
入居決定でお祝い金最大100,000円
- 保証金
- -
- 償却・敷引
- -
- 築年数
- 築3年
- 所在階
- 3階
- 向き
- 西
Point
スタッフ一同、お客様のご来店をこころよりお待ちしております!
提供:(株)リライフ高田馬場店(SUUMO経由)

詳細情報 エルファーロ駒沢公園II
物件紹介
エルファーロ駒沢公園IIは東急田園都市線駒沢大学駅から徒歩16分にあるマンションです。
このお部屋は2階以上に位置しているので、通行人や周囲の住人からの視線が気になりにくく、防犯面でも安心。建物のエントランスはオートロックがついており、インターホンにはTVモニタもついているため、相手の顔を確認してから来客対応することができます。
人気の角部屋で周囲の居住者の生活音も気になりにくく、また、フローリングのお部屋なのでお掃除もラクラク。キッチンはシステムキッチン仕様になっていますので、お料理好きの方にもぴったり。バス・トイレは別なので、のんびりお風呂タイムも楽しめるでしょう。また、雨の日でも浴室乾燥機を使えば、お洗濯も問題ありません。
通信設備面では、インターネットが無料で使えるので、月々の出費を抑えられるのも魅力です。また、BSアンテナ・CSアンテナがありCATVにも対応しているので、おうち時間も充実するでしょう(別途工事、BS・CS・CATVの契約料等が必要な場合あり)。
共用部には宅配ボックスが設定されているので、不在の時にも荷物を受け取ることができます。また、ペット飼育の相談ができますので、あなたの大切な家族の一員も快適に暮らせるか、ぜひ確認してみてください。
このお部屋は2階以上に位置しているので、通行人や周囲の住人からの視線が気になりにくく、防犯面でも安心。建物のエントランスはオートロックがついており、インターホンにはTVモニタもついているため、相手の顔を確認してから来客対応することができます。
人気の角部屋で周囲の居住者の生活音も気になりにくく、また、フローリングのお部屋なのでお掃除もラクラク。キッチンはシステムキッチン仕様になっていますので、お料理好きの方にもぴったり。バス・トイレは別なので、のんびりお風呂タイムも楽しめるでしょう。また、雨の日でも浴室乾燥機を使えば、お洗濯も問題ありません。
通信設備面では、インターネットが無料で使えるので、月々の出費を抑えられるのも魅力です。また、BSアンテナ・CSアンテナがありCATVにも対応しているので、おうち時間も充実するでしょう(別途工事、BS・CS・CATVの契約料等が必要な場合あり)。
共用部には宅配ボックスが設定されているので、不在の時にも荷物を受け取ることができます。また、ペット飼育の相談ができますので、あなたの大切な家族の一員も快適に暮らせるか、ぜひ確認してみてください。
お金・契約の情報
※「-」と表示されているものは、実際は料金が発生するものもございます。詳細はお問い合わせください。
| 家賃 | 11.4万円 | 管理費・共益費 | 8,000円 |
|---|---|---|---|
| 敷金 | なし | 礼金 | なし |
| 入居決定でお祝い金最大100,000円 | |||
| 保証金 | - | 償却・敷引 | - |
| 住宅保険料 | - | 更新料 | - |
| 保証会社利用 | 必須 | 保証会社名 | - |
| 保証会社費用 | - | 保証会社備考 | 保証会社利用必 【ルームID】月額総賃料の50%/月次保証料、月額総賃料の1.5%/1年毎10 000円 ●エポスグローバルプラン利用時:月額総賃料の100% 月額総賃料の2% |
| 契約形態 | - | 契約期間 | - |
| 入居・引渡期間 | 相談 | 現況 | - |
| 入居可能条件 | ペット相談 | ||
| 契約備考 | ★敷金礼金ゼロゼロ★★小型犬・猫計1匹迄飼育相談可★■短期解約違約金:1年未満1カ月■ペット飼育に関して体長50cm未満・体重10キロ未満に収まる種類※仕様・図面・写真等に相違があった場合は現況を優先します。 合計5.5万円(内訳:プレミアデスク(税込/2年)1.65万円鍵交換代3.85万円) 更新料 新賃料1.00ヶ月分 室内清掃費用 71500円 1DK ペット相談/事務所利用不可 損保【2万円2年】 バストイレ別、エアコン、ガスコンロ対応、クロゼット、フローリング、TVインターホン、浴室乾燥機、オートロック、室内洗濯置、シューズボックス、システムキッチン、温水洗浄便座、脱衣所、洗面所独立、洗面化粧台、2口コンロ、宅配ボックス、CATV、防犯カメラ、ペット相談、保証人不要、二人入居相談、CS、ネット使用料不要、24時間換気システム、2駅利用可、敷地内ごみ置き場、都市ガス、洗面所にドア、BS、保証会社利用可、IT重説対応物件、初期費用カード決済可 | ||
部屋の情報
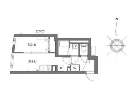
| 間取り | 1DK | 専有面積 | 25.62m2 |
|---|---|---|---|
| 所在階 / 向き | 3階 / 西 | バルコニー面積 | - |
| 水道 / ガス | - | ||
| 設備 | バス・トイレ別、2階以上、オートロック、テレビドアホン、宅配ボックス、浴室乾燥機、インターネット対応、システムキッチン、エアコン、温水洗浄便座、フローリング、洗髪洗面化粧台、2口コンロ、コンロ:ガス、CATV、CSアンテナ、BSアンテナ、インターネット使用料無料、洗濯機:室内 | ||
| 当社物件ID | 135516681 | ||
建物の情報
| 建物名 | エルファーロ駒沢公園II | ||
|---|---|---|---|
| 所在地 | 東京都世田谷区駒沢 | ||
| 交通 | 東急田園都市線 駒沢大学駅 徒歩21分 東急田園都市線 桜新町駅 徒歩22分 東急大井町線 等々力駅 徒歩25分 | ||
| 階数 | 5階建 | 総戸数 | 14戸 |
| 築年月 | 2023年07月 / 築3年 | エレベーター | - |
| 駐車場 | なし | バイク置き場 | - |
| 駐輪場 | - | 管理人/管理会社 | - |
| 周辺環境 | その他 駒沢オリンピック公園(公園)まで405m その他 西友駒沢店(スーパー)まで877m その他 ドラッグストア マツモトキヨシ深沢不動前店(ドラッグストア)まで543m その他 ココカラファイン駒沢大学駅前店(コンビニ)まで1402m その他 国立病院機構東京医療センター(病院)まで1266m | ||
| 建物種別 | マンション | 建物構造 | RC(鉄筋コンクリート) |
この部屋の取扱い不動産会社
| 会社名 | いい部屋ネット大東建託リーシング(株)池袋東口店(SUUMO経由) | ||
|---|---|---|---|
| 所在地 | 東京都豊島区南池袋1-21-7 イー・パートナーズ池袋駅前ビル 8階 | 交通 | - |
| 営業時間 | 10:00~12:30・13:30~18:00 | 定休日 | 水曜日 |
| 免許番号 | 国土交通大臣9120 | 取引態様 | 仲介 |
| 不動産会社管理番号 | 100471960825 | 当社管理番号 | 89 |
| 所属団体 | (公財)日本賃貸住宅管理協会会員 | ||
| 公正取引協議会 | (公社)首都圏不動産公正取引協議会加盟 | ||
| 取扱い物件情報 | 物件詳細へ | ||
※各種情報と現状に差異がある場合は、現状優先となります。問い合わせをすることで、より詳しい条件、情報を確認する事ができます。
提供:いい部屋ネット大東建託リーシング(株)池袋東口店(SUUMO経由)
この物件が気になったら掲載期限まであと10日
エルファーロ駒沢公園IIに条件(家賃・エリア)が近い物件一覧
| 写真 | 家賃 管理費等 | 敷金 礼金 | 間取り 専有面積 | 築年数 | 最寄り駅 所在地 | キープ | 詳細 |
|---|---|---|---|---|---|---|---|
マンション 菊鮨ビル(1K/3階) | |||||||
![]() | 8.2万円 3,000円 | 8.2万円 8.2万円 | 1K 22m2 | 築42年 | JR京浜東北線 蒲田駅 徒歩9分 京急本線 京急蒲田駅 徒歩10分 京急本線 梅屋敷駅(東京) 徒歩12分 東京都大田区蒲田 | 詳細を見る | |
マンション NORUM VIENTO(1LDK/3階) | |||||||
![]() | 14.5万円 3,000円 | 14.5万円 14.5万円 | 1LDK 40.27m2 | 築18年 | JR京浜東北線 蒲田駅 徒歩12分 東急池上線 蓮沼駅 徒歩16分 京急本線 京急蒲田駅 徒歩22分 東京都大田区西蒲田 | 詳細を見る | |
マンション RJRプレシア千鳥(1K/2階) | |||||||
![]() | 9.7万円 1万円 | 9.7万円 9.7万円 | 1K 25.46m2 | 築2年 | 東急多摩川線 武蔵新田駅 徒歩5分 東急池上線 千鳥町駅 徒歩10分 東急多摩川線 矢口渡駅 徒歩12分 東京都大田区千鳥 | 詳細を見る | |
マンション ジェノヴィア蒲田3スカイガーデン(1K/5階) | |||||||
![]() | 11.6万円 1.5万円 | なし なし | 1K 25.4m2 | 築5年 | 京浜急行電鉄本線 京急蒲田駅 徒歩6分 京浜急行電鉄空港線 糀谷駅 徒歩10分 京浜東北・根岸線 蒲田駅 徒歩15分 東京都大田区南蒲田2丁目 | 詳細を見る | |
アパート M SONIA KUGAHARA(ワンルーム/1階) | |||||||
![]() | 9.1万円 3,000円 | 9.1万円 13.65万円 | ワンルーム 24.64m2 | 築1年 | 東急池上線 久が原駅 徒歩8分 東急池上線 御嶽山駅 徒歩9分 東急多摩川線 鵜の木駅 徒歩13分 東京都大田区西嶺町 | 詳細を見る | |
アパート SEED SAVE PETIRASU Ⅲ(1DK/1階) | |||||||
![]() | 8.5万円 1万円 | 17万円 8.5万円 | 1DK 25.36m2 | 新築 | 東京モノレール羽田 昭和島駅 徒歩12分 京浜急行電鉄本線 大森町駅 徒歩18分 東京都大田区大森東5丁目 | 詳細を見る | |
マンション LA MAISON EPICA(1DK/2階) | |||||||
![]() | 10.9万円 5,000円 | 10.9万円 なし | 1DK 33.06m2 | 築18年 | 京浜東北・根岸線 蒲田駅 徒歩9分 京浜急行電鉄本線 京急蒲田駅 徒歩12分 東京都大田区蒲田1丁目 | 詳細を見る | |
マンション SEED JUST B-BASE II(1LDK/1階) | |||||||
![]() | 9.9万円 1.5万円 | 9.9万円 9.9万円 | 1LDK 25.41m2 | 新築 | 東京モノレール羽田 昭和島駅 徒歩11分 京浜急行電鉄本線 梅屋敷駅(東京) 徒歩19分 東京都大田区大森南4丁目 | 詳細を見る | |








