賃貸アパート
フェリス辰巳台の賃貸物件情報(2DK/4階)
| 家賃 | 管理費等 | 敷金 | 礼金 | 間取り | 専有面積 |
|---|---|---|---|---|---|
| 6万円 | 5,000円 | 12万円 | なし | 2DK | 39.7m2 |
入居決定でお祝い金最大100,000円
- 保証金
- -
- 償却・敷引
- -
- 築年数
- 築33年
- 所在階
- 4階
- 向き
- -
Point
忙しい朝でも鏡を見ながらサッと身支度を整えられる独立洗面台を採用しています。オートロック機能があるので来訪者は基本的に玄関先まで来ることがなく安心して生活できます。こちらの物件は現在空家です。
提供:ホームメイトFC五井駅前店(株)クレアトゥール(SUUMO経由)

詳細情報 フェリス辰巳台
物件紹介
フェリス辰巳台は京成千原線ちはら台駅から徒歩50分にあるアパートです。
このお部屋は2階以上に位置しているので、通行人や周囲の住人からの視線が気になりにくく、防犯面でも安心。建物のエントランスはオートロックがついており、インターホンにはTVモニタもついているため、相手の顔を確認してから来客対応することができます。
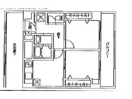
フローリングのお部屋なのでお掃除もラクラク。キッチンはシステムキッチン仕様になっていますので、お料理好きの方にもぴったり。また、バス・トイレは別で、のんびりお風呂タイムも楽しめるでしょう。
共用部には宅配ボックスが設定されているので、不在の時にも荷物を受け取ることができます。また、ペット飼育の相談ができますので、あなたの大切な家族の一員も快適に暮らせるか、ぜひ確認してみてください。
このお部屋は2階以上に位置しているので、通行人や周囲の住人からの視線が気になりにくく、防犯面でも安心。建物のエントランスはオートロックがついており、インターホンにはTVモニタもついているため、相手の顔を確認してから来客対応することができます。
フローリングのお部屋なのでお掃除もラクラク。キッチンはシステムキッチン仕様になっていますので、お料理好きの方にもぴったり。また、バス・トイレは別で、のんびりお風呂タイムも楽しめるでしょう。
共用部には宅配ボックスが設定されているので、不在の時にも荷物を受け取ることができます。また、ペット飼育の相談ができますので、あなたの大切な家族の一員も快適に暮らせるか、ぜひ確認してみてください。
お金・契約の情報
※「-」と表示されているものは、実際は料金が発生するものもございます。詳細はお問い合わせください。
| 家賃 | 6万円 | 管理費・共益費 | 5,000円 |
|---|---|---|---|
| 敷金 | 12万円 | 礼金 | なし |
| フリーレント | あり | ||
| 入居決定でお祝い金最大100,000円 | |||
| 保証金 | - | 償却・敷引 | - |
| 住宅保険料 | - | 更新料 | - |
| 保証会社利用 | 必須 | 保証会社名 | - |
| 保証会社費用 | - | 保証会社備考 | 保証会社利用必 その他 |
| 契約形態 | - | 契約期間 | - |
| 入居・引渡期間 | - | 現況 | - |
| 入居可能条件 | ペット相談 | ||
| 契約備考 | 更新料 新賃料1.00ヶ月分 2DK 二人入居可/子供可/ペット相談/フリーレント1ヶ月 普通借家2年 損保【要】 バストイレ別、バルコニー、エアコン、ガスコンロ対応、フローリング、TVインターホン、オートロック、室内洗濯置、シューズボックス、システムキッチン、温水洗浄便座、脱衣所、洗面所独立、2口コンロ、駐輪場、宅配ボックス、礼金不要、防犯カメラ、ペット相談、駐車2台可、フリーレント、敷金2ヶ月、クロゼット2ヶ所、敷地内ごみ置き場、都市ガス、年内入居可、年度内入居可 敷金積み増し【ペット飼育の場合敷金3ヶ月(総額)】 入居日:'26年3月下旬 | ||
部屋の情報
| 間取り | 2DK | 専有面積 | 39.7m2 |
|---|---|---|---|
| 所在階 / 向き | 4階 / - | バルコニー面積 | - |
| 水道 / ガス | - | ||
| 設備 | バス・トイレ別、2階以上、オートロック、テレビドアホン、宅配ボックス、システムキッチン、エアコン、温水洗浄便座、バルコニー、フローリング、洗髪洗面化粧台、2口コンロ、コンロ:ガス、洗濯機:室内 | ||
| 当社物件ID | 160266297 | ||
建物の情報
| 建物名 | フェリス辰巳台 | ||
|---|---|---|---|
| 所在地 | 千葉県市原市辰巳台西 | ||
| 交通 | 京成千原線 ちはら台駅 徒歩50分 JR内房線 八幡宿駅 徒歩51分 京成千原線 おゆみ野駅 徒歩55分 | ||
| 階数 | 5階建 | 総戸数 | - |
| 築年月 | 1993年10月 / 築33年 | エレベーター | - |
| 駐車場 | 空有 付無料 | バイク置き場 | - |
| 駐輪場 | あり | 管理人/管理会社 | - |
| 周辺環境 | その他 デニーズ市原辰巳台店(飲食店)まで392m その他 SENDO(せんどう) 辰巳台店(スーパー)まで334m その他 セブンイレブン 市原辰巳台西1丁目店(コンビニ)まで551m その他 ウエルシア市原辰巳台店(ドラッグストア)まで506m その他 千葉銀行辰巳台支店(銀行)まで575m | ||
| 建物種別 | アパート | 建物構造 | RC(鉄筋コンクリート) |
この部屋の取扱い不動産会社
| 会社名 | ホームメイトFC五井駅前店(株)クレアトゥール(SUUMO経由) | ||
|---|---|---|---|
| 所在地 | 千葉県市原市五井中央西1-21-1 | 交通 | - |
| 営業時間 | 9:45~18:45 | 定休日 | 水曜日 |
| 免許番号 | 千葉県知事16469 | 取引態様 | 仲介 |
| 不動産会社管理番号 | 100484477164 | 当社管理番号 | 89 |
| 所属団体 | (公社)全日本不動産協会千葉県本部会員 | ||
| 公正取引協議会 | (公社)首都圏不動産公正取引協議会加盟 | ||
| 取扱い物件情報 | 物件詳細へ | ||
※各種情報と現状に差異がある場合は、現状優先となります。問い合わせをすることで、より詳しい条件、情報を確認する事ができます。
提供:ホームメイトFC五井駅前店(株)クレアトゥール(SUUMO経由)
この物件が気になったら掲載期限まであと10日
フェリス辰巳台に条件(家賃・エリア)が近い物件一覧
| 写真 | 家賃 管理費等 | 敷金 礼金 | 間取り 専有面積 | 築年数 | 最寄り駅 所在地 | キープ | 詳細 |
|---|---|---|---|---|---|---|---|
マンション グランドパレス西千葉(1K/4階) | |||||||
![]() | 5万円 6,000円 | 5万円 5万円 | 1K 22m2 | 築39年 | 京成電鉄千葉線 みどり台駅 徒歩5分 総武・中央緩行線 西千葉駅 徒歩10分 千葉県千葉市稲毛区弥生町 | 詳細を見る | |
アパート ガーデンコート仁戸名(1K/1階) | |||||||
![]() | 3.9万円 3,000円 | なし なし | 1K 16m2 | 築14年 | 京成電鉄千原線 大森台駅 徒歩14分 千葉県千葉市中央区仁戸名町 | 詳細を見る | |
アパート ジーメゾン千葉村田町エベッラ(1LDK/1階) | |||||||
![]() | 8.1万円 5,000円 | なし なし | 1LDK 40.01m2 | 新築 | 内房線 浜野駅 徒歩3分 千葉県千葉市中央区村田町 | 詳細を見る | |
アパート アルバーダ(2LDK/2階) | |||||||
![]() | 6.3万円 3,500円 | なし 6.3万円 | 2LDK 58.64m2 | 築5年 | 千葉県市原市椎津 | 詳細を見る | |
アパート 富士美ハイツ(1K/2階) | |||||||
![]() | 3.7万円 3,000円 | なし なし | 1K 23.18m2 | 築29年 | 京成千原線 大森台駅 徒歩19分 JR京葉線 蘇我駅 徒歩22分 京成千原線 千葉寺駅 徒歩32分 千葉県千葉市中央区大巌寺町 | 詳細を見る | |
アパート ガルデ寒川(1LDK/1階) | |||||||
![]() | 8.3万円 4,000円 | 8.3万円 なし | 1LDK 37.96m2 | 築1年 | JR内房線 本千葉駅 徒歩13分 京成千原線 千葉寺駅 徒歩21分 JR京葉線 蘇我駅 徒歩29分 千葉県千葉市中央区寒川町 | 詳細を見る | |
アパート ROBOT HOME 新検見川Ⅴ(1K/2階) | |||||||
![]() | 5.8万円 3,000円 | なし 5.8万円 | 1K 20.57m2 | 新築 | 京成電鉄千葉線 検見川駅 徒歩8分 千葉県千葉市花見川区検見川町2丁目 | 詳細を見る | |
アパート サラブレッドエクセル木更津(1K/2階) | |||||||
![]() | 5.3万円 3,500円 | なし 5.3万円 | 1K 26.08m2 | 築6年 | 千葉県木更津市金田東 | 詳細を見る | |




/105x80-f1-q70-wp1)



/105x80-f1-q70-wp1)
