賃貸マンション
ライオンズプラザ町屋の賃貸物件情報(2LDK/5階)
| 家賃 | 管理費等 | 敷金 | 礼金 | 間取り | 専有面積 |
|---|---|---|---|---|---|
| 13.8万円 | 1.2万円 | 13.8万円 | 13.8万円 | 2LDK | 63.14m2 |
入居決定でお祝い金最大100,000円
- 保証金
- -
- 償却・敷引
- -
- 築年数
- 築37年
- 所在階
- 5階
- 向き
- 南東
Point
オンラインにて申込みから契約までのお手続きも可能です。入居日が合わずにお悩みの方、契約金のお見積もりや室内写真のご要望などお気軽にお問い合わせください。初期費用の分割払いも承ります。
提供:(株)部屋市場浅草雷門店(SUUMO経由)

詳細情報 ライオンズプラザ町屋
物件紹介
ライオンズプラザ町屋は東京メトロ千代田線町屋駅から徒歩5分にあり、駅近で通勤通学に便利なマンションです。
このお部屋は2階以上に位置しているので通行人や周囲の住人からの視線が気になりにくく、建物のエントランスはオートロックがついているので防犯性が高くなっています。
人気の南向きのお部屋。また、フローリングなのでお掃除もラクラク。キッチンはシステムキッチン仕様になっていますので、お料理好きの方にもぴったり。また、バス・トイレは別で、のんびりお風呂タイムも楽しめるでしょう。
通信設備面では、インターネット接続が可能です。また、BSアンテナ・CSアンテナがありCATVにも対応しているので、おうち時間も充実するでしょう(別途工事、契約料が必要な場合あり)。
建物にはエレベーターがついているので、重い荷物があっても安心。共用部には宅配ボックスが設定されているので、不在の時にも荷物を受け取ることができます。
このお部屋は2階以上に位置しているので通行人や周囲の住人からの視線が気になりにくく、建物のエントランスはオートロックがついているので防犯性が高くなっています。
人気の南向きのお部屋。また、フローリングなのでお掃除もラクラク。キッチンはシステムキッチン仕様になっていますので、お料理好きの方にもぴったり。また、バス・トイレは別で、のんびりお風呂タイムも楽しめるでしょう。
通信設備面では、インターネット接続が可能です。また、BSアンテナ・CSアンテナがありCATVにも対応しているので、おうち時間も充実するでしょう(別途工事、契約料が必要な場合あり)。
建物にはエレベーターがついているので、重い荷物があっても安心。共用部には宅配ボックスが設定されているので、不在の時にも荷物を受け取ることができます。
お金・契約の情報
※「-」と表示されているものは、実際は料金が発生するものもございます。詳細はお問い合わせください。
| 家賃 | 13.8万円 | 管理費・共益費 | 1.2万円 |
|---|---|---|---|
| 敷金 | 13.8万円 | 礼金 | 13.8万円 |
| 入居決定でお祝い金最大100,000円 | |||
| 保証金 | - | 償却・敷引 | - |
| 住宅保険料 | - | 更新料 | - |
| 契約形態 | - | 契約期間 | - |
| 入居・引渡期間 | - | 現況 | - |
| 契約備考 | 初期費用の分割・クレジットカード決済可能です!お気軽にご相談下さい。退去時クリーニング代実費精算となります。 合計2.31万円(内訳:文書作成費0.33万円鍵交換代1.98万円) 更新料 新賃料1.00ヶ月分 2LDK 普通借家2年 損保【2万円2年】 バストイレ別、ガスコンロ対応、フローリング、シャワー付洗面台、室内洗濯置、シューズボックス、システムキッチン、脱衣所、エレベーター、洗面所独立、洗面化粧台、宅配ボックス、押入、光ファイバー、外壁タイル張り、対面式キッチン、分譲賃貸、グリル付、振分、2沿線利用可、LDK15畳以上、ネット専用回線、保証金不要、2駅利用可、3駅以上利用可、駅徒歩5分以内、駅徒歩10分以内、都市ガス、洗面所にドア、初期費用カード決済可 入居日:'26年5月下旬 | ||
部屋の情報
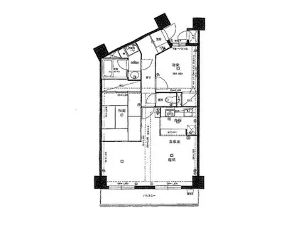
| 間取り | 2LDK | 専有面積 | 63.14m2 |
|---|---|---|---|
| 所在階 / 向き | 5階 / 南東 | バルコニー面積 | 7m2 |
| 水道 / ガス | - | ||
| 設備 | バス・トイレ別、2階以上、宅配ボックス、インターネット対応、システムキッチン、エレベーター、南向き、バルコニー、フローリング、洗髪洗面化粧台、コンロ:ガス、洗濯機:室内 | ||
| 当社物件ID | 322993 | ||
建物の情報
| 建物名 | ライオンズプラザ町屋 | ||
|---|---|---|---|
| 所在地 | 東京都荒川区町屋 | ||
| 交通 | 東京メトロ千代田線 町屋駅 徒歩5分 京成本線 町屋駅 徒歩6分 京成本線 新三河島駅 徒歩18分 | ||
| 階数 | 9階建 | 総戸数 | - |
| 築年月 | 1990年02月 / 築37年 | エレベーター | あり |
| 駐車場 | なし | バイク置き場 | - |
| 駐輪場 | - | 管理人/管理会社 | - |
| 周辺環境 | その他 町屋駅(その他)まで461m その他 町屋〔京成線〕(その他)まで598m その他 町屋駅前駅(その他)まで665m その他 グルメシティ町屋店(スーパー)まで575m その他 グルメシティ 町屋店(スーパー)まで631m その他 ファミリーマート 町屋二丁目店(コンビニ)まで365m | ||
| 建物種別 | マンション | 建物構造 | SRC(鉄骨鉄筋コンクリート) |
この部屋の取扱い不動産会社
| 会社名 | (株)アクセス上野店(SUUMO経由) | ||
|---|---|---|---|
| 所在地 | 東京都台東区上野6-7-16 古谷ビル3階 | 交通 | - |
| 営業時間 | 10:00~19:00 | 定休日 | 毎週水曜日(祝日の場合は営業) |
| 免許番号 | 東京都知事94469 | 取引態様 | 仲介 |
| 不動産会社管理番号 | 100495581524 | 当社管理番号 | 89 |
| 所属団体 | (公社)東京都宅地建物取引業協会会員 | ||
| 公正取引協議会 | (公社)首都圏不動産公正取引協議会加盟 | ||
| 取扱い物件情報 | 物件詳細へ | ||
※各種情報と現状に差異がある場合は、現状優先となります。問い合わせをすることで、より詳しい条件、情報を確認する事ができます。
提供:(株)アクセス上野店(SUUMO経由)
この物件が気になったら掲載期限まであと11日
ライオンズプラザ町屋に条件(家賃・エリア)が近い物件一覧
| 写真 | 家賃 管理費等 | 敷金 礼金 | 間取り 専有面積 | 築年数 | 最寄り駅 所在地 | キープ | 詳細 |
|---|---|---|---|---|---|---|---|
マンション スカイコートヌーベル入谷第2(1K/5階) | |||||||
![]() | 8.95万円 7,500円 | 8.95万円 8.95万円 | 1K 25.5m2 | 築19年 | 東京地下鉄日比谷線 三ノ輪駅 徒歩6分 東京都荒川線 三ノ輪橋駅 徒歩12分 山手線 鶯谷駅 徒歩14分 東京都台東区下谷3丁目 | 詳細を見る | |
マンション メゾン・ド・ヴィレ駒形(1K/5階) | |||||||
![]() | 11.5万円 7,000円 | なし 11.5万円 | 1K 30.34m2 | 築30年 | 東京都浅草線 浅草駅(東武・都営・メトロ) 徒歩5分 東京都大江戸線 蔵前駅 徒歩5分 東京地下鉄銀座線 田原町駅(東京) 徒歩7分 東京都台東区駒形1丁目 | 詳細を見る | |
マンション シルバープラザ白山(ワンルーム/9階) | |||||||
![]() | 10.4万円 1.2万円 | 10.4万円 10.4万円 | ワンルーム 26.88m2 | 築41年 | 東京都三田線 春日駅(東京) 徒歩6分 東京都大江戸線 春日駅(東京) 徒歩6分 東京都三田線 白山駅(東京) 徒歩7分 東京都文京区白山1丁目 | 詳細を見る | |
マンション KDXレジデンス御徒町(1K/4階) | |||||||
![]() | 11.5万円 6,000円 | 11.5万円 11.5万円 | 1K 23.88m2 | 築22年 | 東京地下鉄日比谷線 仲御徒町駅 徒歩3分 山手線 御徒町駅 徒歩6分 京浜東北・根岸線 御徒町駅 徒歩6分 東京都台東区台東2丁目 | 詳細を見る | |
マンション ステュディオ入江(1K/2階) | |||||||
![]() | 9.3万円 6,000円 | なし なし | 1K 29.82m2 | 築21年 | 東京都新宿線 菊川駅(東京) 徒歩3分 総武・中央緩行線 錦糸町駅 徒歩12分 東京都大江戸線 森下駅(東京) 徒歩12分 東京都墨田区立川4丁目 | 詳細を見る | |
マンション ヴェルト湯島(1K/9階) | |||||||
![]() | 9.6万円 9,000円 | 9.6万円 9.6万円 | 1K 21.58m2 | 築22年 | 東京地下鉄千代田線 湯島駅 徒歩1分 東京地下鉄銀座線 上野広小路駅 徒歩5分 山手線 御徒町駅 徒歩8分 東京都文京区湯島3丁目 | 詳細を見る | |
マンション プレセダンヒルズ三ノ輪(1K/6階) | |||||||
![]() | 8.55万円 1万円 | なし 8.55万円 | 1K 25.92m2 | 築10年 | 東京地下鉄日比谷線 三ノ輪駅 徒歩7分 東京地下鉄日比谷線 入谷駅(東京) 徒歩10分 東京都荒川線 三ノ輪橋駅 徒歩11分 東京都台東区竜泉3丁目 | 詳細を見る | |
マンション プレサンスブルーム浅草ノース(1K/3階) | |||||||
![]() | 10.6万円 2万円 | なし なし | 1K 25.96m2 | 築4年 | つくばエクスプレス 浅草駅(つくばEXP) 徒歩7分 東京地下鉄日比谷線 入谷駅(東京) 徒歩13分 東京地下鉄銀座線 浅草駅(東武・都営・メトロ) 徒歩16分 東京都台東区浅草4丁目 | 詳細を見る | |








