賃貸マンション
アーブルヴィレッジの賃貸物件情報(3LDK/4階)
| 家賃 | 管理費等 | 敷金 | 礼金 | 間取り | 専有面積 |
|---|---|---|---|---|---|
| 11万円 | 5,000円 | なし | 33万円 | 3LDK | 68.15m2 |
入居決定でお祝い金最大100,000円
- 保証金
- -
- 償却・敷引
- -
- 築年数
- 築29年
- 所在階
- 4階
- 向き
- 南
Point
JR高槻駅徒歩8分の3LDKマンション!人気の芥川小学校区!便利な宅配BOX・エレベーター完備!安心のTVモニターホン付き!室内洗濯機置場・独立洗面化粧台・追い炊き機能付き!南向きバルコニー
提供:ユニヴ・ライフ(株)高槻店(SUUMO経由)

詳細情報 アーブルヴィレッジ
物件紹介
アーブルヴィレッジはJR東海道本線高槻駅から徒歩8分にあり、駅近で通勤通学に便利なマンションです。
このお部屋は2階以上に位置しているので、通行人や周囲の住人からの視線が気になりにくく、防犯面でも安心。インターホンにはTVモニタもついているため、相手の顔を確認してから来客対応することができます。
人気の南向きのお部屋。また、フローリングなのでお掃除もラクラク。バス・トイレ別の仕様で、のんびりお風呂タイムも楽しめます。
通信設備面では、インターネットが無料で使えるので、月々の出費を抑えられるのも魅力です。また、CATVにも対応しているので、おうち時間も充実するでしょう(別途工事、CATVの契約料等が必要な場合あり)。
建物にはエレベーターがついているので、重い荷物があっても安心。共用部には宅配ボックスが設定されているので、不在の時にも荷物を受け取ることができます。
このお部屋は2階以上に位置しているので、通行人や周囲の住人からの視線が気になりにくく、防犯面でも安心。インターホンにはTVモニタもついているため、相手の顔を確認してから来客対応することができます。
人気の南向きのお部屋。また、フローリングなのでお掃除もラクラク。バス・トイレ別の仕様で、のんびりお風呂タイムも楽しめます。
通信設備面では、インターネットが無料で使えるので、月々の出費を抑えられるのも魅力です。また、CATVにも対応しているので、おうち時間も充実するでしょう(別途工事、CATVの契約料等が必要な場合あり)。
建物にはエレベーターがついているので、重い荷物があっても安心。共用部には宅配ボックスが設定されているので、不在の時にも荷物を受け取ることができます。
お金・契約の情報
※「-」と表示されているものは、実際は料金が発生するものもございます。詳細はお問い合わせください。
| 家賃 | 11万円 | 管理費・共益費 | 5,000円 |
|---|---|---|---|
| 敷金 | なし | 礼金 | 33万円 |
| 入居決定でお祝い金最大100,000円 | |||
| 保証金 | - | 償却・敷引 | - |
| 住宅保険料 | - | 更新料 | - |
| 契約形態 | - | 契約期間 | - |
| 入居・引渡期間 | 相談 | 現況 | - |
| 契約備考 | ★ユニヴライフ高槻店は、JR高槻駅前西口北側にございます。ご希望物件のご提案から現地へのご案内(リモート内見)、ご契約まで、業務に精通したスタッフがきめ細かく対応いたします。何なりとご相談くださいませ。★ユニヴライフ高槻店は、仲介手数料0円です♪(賃貸・住居・個人契約の場合) 3LDK 単身者可/二人入居可/子供可 普通借家1年 損保【要】 バストイレ別、バルコニー、ガスコンロ対応、クロゼット、フローリング、TVインターホン、室内洗濯置、陽当り良好、南向き、追焚機能浴室、温水洗浄便座、脱衣所、エレベーター、洗面所独立、洗面化粧台、駐輪場、宅配ボックス、押入、CATV、外壁タイル張り、閑静な住宅地、敷金不要、防犯カメラ、仲介手数料不要、CATVインターネット、バイク置場、2沿線利用可、駅まで平坦、ネット使用料不要、眺望良好、保証金不要、平坦地、一部フローリング、クロゼット3ヶ所、始発駅、3駅以上利用可、駅前、大型タウン内、駅徒歩10分以内、敷地内ごみ置き場、当社管理物件、和室、都市ガス、洗面所にドア、南面バルコニー、IT重説対応物件、通風良好 | ||
部屋の情報
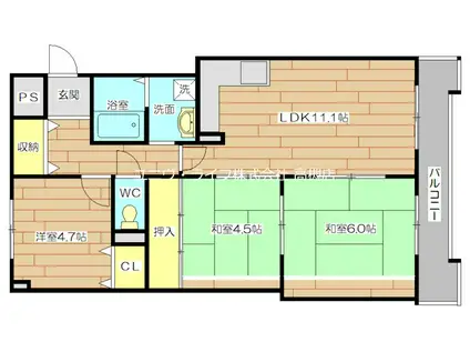
| 間取り | 3LDK | 専有面積 | 68.15m2 |
|---|---|---|---|
| 所在階 / 向き | 4階 / 南 | バルコニー面積 | - |
| 水道 / ガス | - | ||
| 設備 | バス・トイレ別、2階以上、テレビドアホン、宅配ボックス、追い焚き、インターネット対応、エレベーター、温水洗浄便座、南向き、バルコニー、フローリング、洗髪洗面化粧台、コンロ:ガス、CATV、インターネット使用料無料、洗濯機:室内 | ||
| 当社物件ID | 160545695 | ||
建物の情報
| 建物名 | アーブルヴィレッジ | ||
|---|---|---|---|
| 所在地 | 大阪府高槻市真上町 | ||
| 交通 | JR東海道本線 高槻駅 徒歩8分 阪急京都線 高槻市駅 徒歩19分 JR東海道本線 摂津富田駅 徒歩41分 | ||
| 階数 | 6階建 | 総戸数 | 22戸 |
| 築年月 | 1997年12月 / 築29年 | エレベーター | あり |
| 駐車場 | なし | バイク置き場 | あり |
| 駐輪場 | あり | 管理人/管理会社 | - |
| 周辺環境 | その他 ケアーズドラッグ 芥川店(ドラッグストア)まで471m その他 ACT AMORE(アクトアモーレ)(ショッピングセンター)まで553m その他 高槻市立芥川幼稚園(幼稚園・保育園)まで118m その他 平和堂アル・プラザ高槻店(スーパー)まで478m その他 セブンイレブン 高槻天神町1丁目店(コンビニ)まで447m その他 ホームセンターコーナン 高槻城西店(ホームセンター)まで1821m | ||
| 建物種別 | マンション | 建物構造 | RC(鉄筋コンクリート) |
この部屋の取扱い不動産会社
| 会社名 | ユニヴ・ライフ(株)高槻店(SUUMO経由) | ||
|---|---|---|---|
| 所在地 | 大阪府高槻市芥川町1-2 アクトアモーレA-106 | 交通 | - |
| 営業時間 | AM9:30~PM6:30 | 定休日 | 無休(夏季・年末年始除く) |
| 免許番号 | 大阪府知事45855 | 取引態様 | 貸主 |
| 不動産会社管理番号 | 100492983768 | 当社管理番号 | 89 |
| 所属団体 | (一社)大阪府宅地建物取引業協会会員 | ||
| 公正取引協議会 | (公社)近畿地区不動産公正取引協議会加盟 | ||
| 取扱い物件情報 | 物件詳細へ | ||
※各種情報と現状に差異がある場合は、現状優先となります。問い合わせをすることで、より詳しい条件、情報を確認する事ができます。
提供:ユニヴ・ライフ(株)高槻店(SUUMO経由)
この物件が気になったら掲載期限まであと11日
アーブルヴィレッジに条件(家賃・エリア)が近い物件一覧
| 写真 | 家賃 管理費等 | 敷金 礼金 | 間取り 専有面積 | 築年数 | 最寄り駅 所在地 | キープ | 詳細 |
|---|---|---|---|---|---|---|---|
マンション オークハウス(2LDK/2階) | |||||||
![]() | 8.3万円 5,000円 | 5万円 25万円 | 2LDK 50.73m2 | 築29年 | 阪急京都線 高槻市駅 徒歩16分 JR東海道本線 摂津富田駅 徒歩31分 阪急京都線 総持寺駅 徒歩45分 大阪府高槻市城西町 | 詳細を見る | |
アパート 牧野阪アパート(1LDK/2階) | |||||||
![]() | 7.4万円 5,000円 | なし 7.4万円 | 1LDK 29.81m2 | 新築 | 京阪本線 牧野駅 徒歩8分 京阪本線 御殿山駅 徒歩25分 京阪本線 枚方市駅 徒歩46分 大阪府枚方市牧野阪 | 詳細を見る | |
アパート メディオいばらき(1K/1階) | |||||||
| 8.3万円 7,000円 | なし 8.3万円 | 1K 32.99m2 | 築13年 | 阪急電鉄京都線 茨木市駅 徒歩7分 東海道本線 茨木駅 徒歩19分 阪急電鉄京都線 総持寺駅 徒歩21分 大阪府茨木市舟木町9-3 | 詳細を見る | ||
マンション 京阪電気鉄道京阪線 樟葉駅 徒歩23分 築29年(3LDK/3階) | |||||||
![]() | 8万円 9,000円 | なし 20万円 | 3LDK 65.58m2 | 築29年 | 京阪電気鉄道京阪線 樟葉駅 徒歩23分 京阪電気鉄道京阪線 牧野駅 徒歩28分 大阪府枚方市東船橋1丁目 | 詳細を見る | |
アパート D-RESIDENCE下田部B(2LDK/3階) | |||||||
| 15万円 6,500円 | なし 15万円 | 2LDK 61.63m2 | 築1年 | 東海道本線 高槻駅 徒歩24分 阪急電鉄京都線 高槻市駅 徒歩25分 東海道本線 摂津富田駅 徒歩37分 大阪府高槻市下田部町1丁目26-30 | 詳細を見る | ||
マンション ザ・ガーデンスイートⅠ(ワンルーム/3階) | |||||||
| 8.3万円 8,000円 | 10万円 23万円 | ワンルーム 30.82m2 | 築10年 | 東海道本線 高槻駅 徒歩10分 阪急電鉄京都線 高槻市駅 徒歩18分 東海道本線 摂津富田駅 徒歩33分 大阪府高槻市芥川町4丁目6-23 | 詳細を見る | ||




