賃貸マンション
ルーブル武蔵新城弐番館の賃貸物件情報(1K/5階)
| 家賃 | 管理費等 | 敷金 | 礼金 | 間取り | 専有面積 |
|---|---|---|---|---|---|
| 8.64万円 | 1.16万円 | なし | 8.64万円 | 1K | 21.46m2 |
入居決定でお祝い金最大100,000円
Point
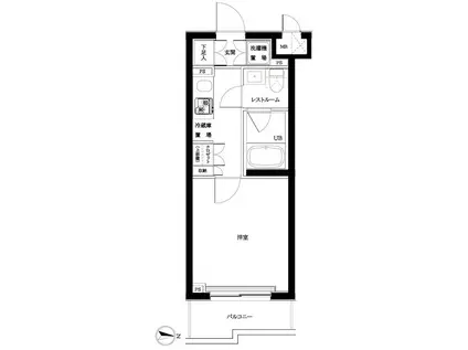
収納はシューズボックス・クロゼットなどが備え付けられているので、衣類や日用品の収納に重宝します。
提供:センチュリー21(株)トーコー開発(SUUMO経由)

詳細情報 ルーブル武蔵新城弐番館
物件紹介
ルーブル武蔵新城弐番館はJR南武線武蔵新城駅から徒歩8分にあり、駅近で通勤通学に便利なマンションです。
このお部屋は2階以上に位置しているので、通行人や周囲の住人からの視線が気になりにくく、防犯面でも安心。建物のエントランスはオートロックがついており、インターホンにはTVモニタもついているため、相手の顔を確認してから来客対応することができます。
フローリングのお部屋なのでお掃除もラクラク。キッチンはシステムキッチン仕様になっていますので、お料理好きの方にもぴったり。バス・トイレは別なので、のんびりお風呂タイムも楽しめるでしょう。また、雨の日でも浴室乾燥機を使えば、お洗濯も問題ありません。
通信設備面では、インターネット接続が可能です。また、BSアンテナ・CSアンテナもありますので、おうち時間も充実するでしょう(別途工事、契約料が必要な場合あり)。
建物にはエレベーターがついているので、重い荷物があっても安心。共用部には宅配ボックスが設定されているので、不在の時にも荷物を受け取ることができます。
このお部屋は2階以上に位置しているので、通行人や周囲の住人からの視線が気になりにくく、防犯面でも安心。建物のエントランスはオートロックがついており、インターホンにはTVモニタもついているため、相手の顔を確認してから来客対応することができます。
フローリングのお部屋なのでお掃除もラクラク。キッチンはシステムキッチン仕様になっていますので、お料理好きの方にもぴったり。バス・トイレは別なので、のんびりお風呂タイムも楽しめるでしょう。また、雨の日でも浴室乾燥機を使えば、お洗濯も問題ありません。
通信設備面では、インターネット接続が可能です。また、BSアンテナ・CSアンテナもありますので、おうち時間も充実するでしょう(別途工事、契約料が必要な場合あり)。
建物にはエレベーターがついているので、重い荷物があっても安心。共用部には宅配ボックスが設定されているので、不在の時にも荷物を受け取ることができます。
お金・契約の情報
※「-」と表示されているものは、実際は料金が発生するものもございます。詳細はお問い合わせください。
| 家賃 | 8.64万円 | 管理費・共益費 | 1.16万円 |
|---|---|---|---|
| 敷金 | なし | 礼金 | 8.64万円 |
| 入居決定でお祝い金最大100,000円 | |||
| 保証金 | - | 償却・敷引 | - |
| 住宅保険料 | 1円 | 更新料 | - |
| その他費用 | TFDclub:1.7万円 | ||
| 保証会社利用 | 必須 | 保証会社名 | - |
| 保証会社費用 | - | 保証会社備考 | 初回保証料30%(家賃+管理費)年間保証料10,000円 ※学生初回保証料9,000円 |
| 契約形態 | - | 契約期間 | 2年 |
| 入居・引渡期間 | 相談 | 現況 | - |
| 契約備考 | 鍵交換代 16500円 初期:TFDclub 17000円 保証会社利用必須 初回保証料30%(家賃管理費)年間保証料10000円 学生初回保証料9000円 駐輪場:有料 鍵交換費用:16500 その他設備/条件:室内洗濯機置き場、ごみ出し24時間OK、独立洗面台、クローゼット、シューズボックス、照明器具付き、分譲賃貸 | ||
部屋の情報
| 間取り | 1K | 専有面積 | 21.46m2 |
|---|---|---|---|
| 所在階 / 向き | 5階 / 東 | バルコニー面積 | - |
| 水道 / ガス | 水道【公営】、ガス【都市】 | ||
| 設備 | バス・トイレ別、オートロック、テレビドアホン、宅配ボックス、浴室乾燥機、光ファイバー対応、システムキッチン、エアコン、エレベーター、温水洗浄便座、バルコニー、フローリング、洗髪洗面化粧台、2口コンロ、コンロ:ガス、シャワー、給湯、タイル張り | ||
| 当社物件ID | 159899095 | ||
建物の情報
| 建物名 | ルーブル武蔵新城弐番館 | ||
|---|---|---|---|
| 所在地 | 神奈川県川崎市高津区末長4丁目 | ||
| 交通 | 南武線 武蔵新城駅 徒歩9分 | ||
| 階数 | 5階建 | 総戸数 | - |
| 築年月 | 2016年11月 / 築10年 | エレベーター | あり |
| 駐車場 | - | バイク置き場 | - |
| 駐輪場 | あり | 管理人/管理会社 | - |
| 周辺環境 | 販売店 徒歩6分(438m) その他 ドラッグストア その他 公園 その他 銀行 その他 * | ||
| 建物種別 | マンション | 建物構造 | RC(鉄筋コンクリート) |
この部屋の取扱い不動産会社
| 会社名 | ハウスコム東神奈川株式会社 青葉台店 | ||
|---|---|---|---|
| 所在地 | 神奈川県横浜市青葉区6-13ケントロンビル3階 | 交通 | - |
| 営業時間 | 10:00~18:00 | 定休日 | 水曜定休 |
| 免許番号 | 神奈川県知事(1)第31769号 | 取引態様 | 仲介 |
| 不動産会社管理番号 | HC2-4590625-517-0124 | 当社管理番号 | 468 |
| 所属団体 | 、 | ||
| 取扱い物件情報 | 物件詳細へ | ||
※各種情報と現状に差異がある場合は、現状優先となります。問い合わせをすることで、より詳しい条件、情報を確認する事ができます。
提供:ハウスコム東神奈川株式会社 青葉台店
この物件が気になったら掲載期限まであと5日
ルーブル武蔵新城弐番館に条件(家賃・エリア)が近い物件一覧
| 写真 | 家賃 管理費等 | 敷金 礼金 | 間取り 専有面積 | 築年数 | 最寄り駅 所在地 | キープ | 詳細 |
|---|---|---|---|---|---|---|---|
アパート BELLEFORET菊名Ⅳ(ワンルーム/1階) | |||||||
![]() | 7.6万円 3,000円 | なし なし | ワンルーム 23.31m2 | 築5年 | 東急東横線 妙蓮寺駅 徒歩10分 神奈川県横浜市港北区菊名3丁目 | 詳細を見る | |
アパート マリンハイツII(1K/1階) | |||||||
![]() | 5.2万円 2,000円 | 5.2万円 5.2万円 | 1K 20.28m2 | 築39年 | JR横須賀線 東戸塚駅 徒歩10分 神奈川県横浜市戸塚区品濃町 | 詳細を見る | |
マンション ブルームシティ(1K/5階) | |||||||
![]() | 5.5万円 3,000円 | 5.5万円 5.5万円 | 1K 16.7m2 | 築22年 | JR横浜線 大口駅 徒歩1分 京急本線 子安駅 徒歩14分 JR京浜東北線 新子安駅 徒歩17分 神奈川県横浜市神奈川区大口通 | 詳細を見る | |
アパート 山本荘(2K/2階) | |||||||
![]() | 5.8万円 なし | なし 5.8万円 | 2K 34.94m2 | 築48年 | 京急本線 上大岡駅 徒歩4分 神奈川県横浜市港南区上大岡東 | 詳細を見る | |
アパート レオパレスサンヴィレッジ18(1K/2階) | |||||||
![]() | 8.6万円 5,500円 | なし 8.6万円 | 1K 19.87m2 | 築18年 | 横浜市グリーンL 日吉本町駅 徒歩7分 神奈川県横浜市港北区日吉本町5丁目 | 詳細を見る | |
マンション サニーコート壱番館(3LDK/1階) | |||||||
![]() | 11.5万円 4,500円 | なし 11.5万円 | 3LDK 66.48m2 | 築27年 | 横浜線 中山駅(神奈川) 徒歩12分 神奈川県横浜市緑区三保町 | 詳細を見る | |
アパート フロンティア A(3DK/2階) | |||||||
![]() | 7.1万円 なし | なし なし | 3DK 52.84m2 | 築33年 | 相鉄本線 鶴ケ峰駅 徒歩27分 神奈川県横浜市旭区市沢町 | 詳細を見る | |
アパート ビエンタ溝の口(1K/3階) | |||||||
![]() | 9.5万円 2,000円 | なし 9.5万円 | 1K 22.11m2 | 築1年 | 東急田園都市線 溝の口駅 徒歩2分 JR南武線 武蔵溝ノ口駅 徒歩2分 東急大井町線 溝の口駅 徒歩2分 神奈川県川崎市高津区溝口 | 詳細を見る | |

/105x80-f1-q70-wp1)






