賃貸マンション
クオリタス南大井の賃貸物件情報(1K/5階)
| 家賃 | 管理費等 | 敷金 | 礼金 | 間取り | 専有面積 |
|---|---|---|---|---|---|
| 9.7万円 | 1.5万円 | なし | 4.85万円 | 1K | 20.2m2 |
入居決定でお祝い金最大100,000円
Point
セキュリティ面は、オートロック・TVインターホンなど充実しているので安心して生活できます。
提供:ハウスコム西東京株式会社 大岡山店

詳細情報 クオリタス南大井
物件紹介
クオリタス南大井は京浜急行電鉄本線大森海岸駅から徒歩8分にあり、駅近で通勤通学に便利なマンションです。
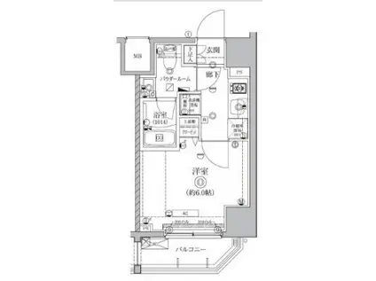
このお部屋は2階以上に位置しているので、通行人や周囲の住人からの視線が気になりにくく、防犯面でも安心。建物のエントランスはオートロックがついており、インターホンにはTVモニタもついているため、相手の顔を確認してから来客対応することができます。
人気の角部屋で周囲の居住者の生活音も気になりにくく、また、フローリングのお部屋なのでお掃除もラクラク。キッチンはシステムキッチン仕様になっていますので、お料理好きの方にもぴったり。バス・トイレは別なので、のんびりお風呂タイムも楽しめるでしょう。また、雨の日でも浴室乾燥機を使えば、お洗濯も問題ありません。
通信設備面では、インターネットが無料で使えるので、月々の出費を抑えられるのも魅力です。また、BSアンテナ・CSアンテナもありますので、おうち時間も充実するでしょう(別途工事、BS・CSの契約料等が必要な場合あり)。
建物にはエレベーターがついているので、重い荷物があっても安心。共用部には宅配ボックスが設定されているので、不在の時にも荷物を受け取ることができます。また、ペット飼育の相談ができますので、あなたの大切な家族の一員も快適に暮らせるか、ぜひ確認してみてください。
このお部屋は2階以上に位置しているので、通行人や周囲の住人からの視線が気になりにくく、防犯面でも安心。建物のエントランスはオートロックがついており、インターホンにはTVモニタもついているため、相手の顔を確認してから来客対応することができます。
人気の角部屋で周囲の居住者の生活音も気になりにくく、また、フローリングのお部屋なのでお掃除もラクラク。キッチンはシステムキッチン仕様になっていますので、お料理好きの方にもぴったり。バス・トイレは別なので、のんびりお風呂タイムも楽しめるでしょう。また、雨の日でも浴室乾燥機を使えば、お洗濯も問題ありません。
通信設備面では、インターネットが無料で使えるので、月々の出費を抑えられるのも魅力です。また、BSアンテナ・CSアンテナもありますので、おうち時間も充実するでしょう(別途工事、BS・CSの契約料等が必要な場合あり)。
建物にはエレベーターがついているので、重い荷物があっても安心。共用部には宅配ボックスが設定されているので、不在の時にも荷物を受け取ることができます。また、ペット飼育の相談ができますので、あなたの大切な家族の一員も快適に暮らせるか、ぜひ確認してみてください。
お金・契約の情報
※「-」と表示されているものは、実際は料金が発生するものもございます。詳細はお問い合わせください。
| 家賃 | 9.7万円 | 管理費・共益費 | 1.5万円 |
|---|---|---|---|
| 敷金 | なし | 礼金 | 4.85万円 |
| 入居決定でお祝い金最大100,000円 | |||
| 保証金 | - | 償却・敷引 | - |
| 住宅保険料 | 1円 | 更新料 | - |
| 保証会社利用 | 必須 | 保証会社名 | - |
| 保証会社費用 | - | 保証会社備考 | 初回保証委託料:総賃料30% |
| 契約形態 | - | 契約期間 | 2年 |
| 入居・引渡期間 | 相談 | 現況 | - |
| 入居可能条件 | ペット相談 | ||
| 契約備考 | 短期解約違約金 1年未満2ヶ月、1年以上2年未満1ヶ月 鍵交換費用:22000 その他設備/条件:室内洗濯機置き場、独立洗面台、クローゼット、シューズボックス | ||
部屋の情報
| 間取り | 1K | 専有面積 | 20.2m2 |
|---|---|---|---|
| 間取り詳細 | 洋室(6帖) | ||
| 所在階 / 向き | 5階 / 北 | バルコニー面積 | - |
| 水道 / ガス | 水道【公営】、ガス【都市】 | ||
| 設備 | バス・トイレ別、オートロック、テレビドアホン、宅配ボックス、浴室乾燥機、インターネット対応、システムキッチン、エアコン、エレベーター、温水洗浄便座、角部屋、バルコニー、フローリング、2口コンロ、コンロ:ガス、CSアンテナ、BSアンテナ、インターネット使用料無料、シャワー | ||
| 当社物件ID | 150742784 | ||
建物の情報
| 建物名 | クオリタス南大井 | ||
|---|---|---|---|
| 所在地 | 東京都品川区南大井2丁目 | ||
| 交通 | 京浜急行電鉄本線 大森海岸駅 徒歩8分 京浜東北・根岸線 大森駅(東京) 徒歩13分 | ||
| 階数 | 12階建 | 総戸数 | - |
| 築年月 | 2022年01月 / 築4年 | エレベーター | あり |
| 駐車場 | なし | バイク置き場 | あり |
| 駐輪場 | あり | 管理人/管理会社 | - |
| 周辺環境 | その他 ドラッグストア その他 公園 その他 銀行 その他 * | ||
| 建物種別 | マンション | 建物構造 | RC(鉄筋コンクリート) |
この部屋の取扱い不動産会社
| 会社名 | ハウスコム西東京株式会社 大井町店 | ||
|---|---|---|---|
| 所在地 | 東京都品川区2-19 | 交通 | - |
| 営業時間 | 10:00~18:00 | 定休日 | 水曜定休 |
| 免許番号 | 東京都知事(1)第108225号 | 取引態様 | 仲介 |
| 不動産会社管理番号 | HC2-4057421-501-0268 | 当社管理番号 | 468 |
| 所属団体 | 、 | ||
| 取扱い物件情報 | 物件詳細へ | ||
※各種情報と現状に差異がある場合は、現状優先となります。問い合わせをすることで、より詳しい条件、情報を確認する事ができます。
提供:ハウスコム西東京株式会社 大井町店
この物件が気になったら掲載期限まであと4日
クオリタス南大井に条件(家賃・エリア)が近い物件一覧
| 写真 | 家賃 管理費等 | 敷金 礼金 | 間取り 専有面積 | 築年数 | 最寄り駅 所在地 | キープ | 詳細 |
|---|---|---|---|---|---|---|---|
マンション カリスタ池上(ワンルーム/3階) | |||||||
![]() | 9.2万円 5,000円 | 9.2万円 9.2万円 | ワンルーム 36.97m2 | 築21年 | 東急多摩川線 矢口渡駅 徒歩7分 東急多摩川線 武蔵新田駅 徒歩8分 東急池上線 池上駅 徒歩14分 東京都大田区池上 | 詳細を見る | |
マンション GRAN BROS KASAI(1K/3階) | |||||||
![]() | 9.6万円 5,000円 | 9.6万円 9.6万円 | 1K 33.74m2 | 築18年 | 京浜急行電鉄本線 大森町駅 徒歩2分 京浜急行電鉄本線 梅屋敷駅(東京) 徒歩8分 東京都大田区大森西5丁目 | 詳細を見る | |
マンション ルーブル木場(1K/5階) | |||||||
![]() | 11.9万円 1.1万円 | なし 11.9万円 | 1K 26.37m2 | 築2年 | 東京メトロ東西線 木場駅 徒歩7分 都営大江戸線 門前仲町駅 徒歩18分 JR京葉線 潮見駅 徒歩24分 東京都江東区木場 | 詳細を見る | |
マンション MAXIVBASIC亀戸(1K/1階) | |||||||
![]() | 8.25万円 1万円 | なし 8.25万円 | 1K 23.52m2 | 築6年 | 東武亀戸線 亀戸水神駅 徒歩9分 都営新宿線 大島駅(東京) 徒歩10分 JR総武線 亀戸駅 徒歩11分 東京都江東区亀戸 | 詳細を見る | |
マンション ZOOM東陽町(1K/15階) | |||||||
![]() | 12万円 1万円 | 12万円 12万円 | 1K 30.22m2 | 築10年 | 東京地下鉄東西線 東陽町駅 徒歩5分 東京都江東区東陽3丁目 | 詳細を見る | |
マンション ハイツACT(1K/2階) | |||||||
![]() | 7.3万円 3,000円 | 7.3万円 10.95万円 | 1K 20.56m2 | 築29年 | 京浜東北・根岸線 蒲田駅 徒歩11分 京浜急行電鉄本線 梅屋敷駅(東京) 徒歩13分 東京都大田区蒲田1丁目 | 詳細を見る | |
マンション SEED JUST B-BASE Ⅱ(1LDK/1階) | |||||||
![]() | 9.9万円 1.5万円 | 9.9万円 9.9万円 | 1LDK 25.41m2 | 新築 | 東京モノレール羽田 昭和島駅 徒歩11分 京浜急行電鉄本線 梅屋敷駅(東京) 徒歩19分 東京都大田区大森南4丁目 | 詳細を見る | |
マンション SUN RESIDENCE(1K/4階) | |||||||
![]() | 9.5万円 7,000円 | なし 14.25万円 | 1K 26.02m2 | 築10年 | 京急空港線 穴守稲荷駅 徒歩5分 京急空港線 大鳥居駅 徒歩9分 京急空港線 天空橋駅 徒歩13分 東京都大田区羽田 | 詳細を見る | |









