賃貸マンション
GENOVIA阪東橋IISKYGARDENの賃貸物件情報(1K/11階)
| 家賃 | 管理費等 | 敷金 | 礼金 | 間取り | 専有面積 |
|---|---|---|---|---|---|
| 7.9万円 | 1万円 | なし | なし | 1K | 22m2 |
入居決定でお祝い金最大100,000円
- 保証金
- -
- 償却・敷引
- -
- 築年数
- 築3年
- 所在階
- 11階
- 向き
- 北東
Point
★23区中心に直営130店舗以上★市場に流通するほぼ全ての物件がご紹介可能★他社様がネット掲載している物件情報もお気軽にお問合せ下さい★スムーズ・安心・納得をお約束致します★
提供:(株)LIFIX関内店(SUUMO経由)

詳細情報 GENOVIA阪東橋IISKYGARDEN
物件紹介
GENOVIA阪東橋IISKYGARDENはブルーライン阪東橋駅から徒歩8分にあり、駅近で通勤通学に便利なマンションです。
このお部屋は2階以上に位置しているので、通行人や周囲の住人からの視線が気になりにくく、防犯面でも安心。建物のエントランスはオートロックがついており、インターホンにはTVモニタもついているため、相手の顔を確認してから来客対応することができます。
人気の角部屋で周囲の居住者の生活音も気になりにくく、また、フローリングのお部屋なのでお掃除もラクラク。キッチンはシステムキッチン仕様になっていますので、お料理好きの方にもぴったり。バス・トイレは別なので、のんびりお風呂タイムも楽しめるでしょう。また、雨の日でも浴室乾燥機を使えば、お洗濯も問題ありません。
通信設備面では、インターネットが無料で使えるので、月々の出費を抑えられるのも魅力です。また、BSアンテナ・CSアンテナもありますので、おうち時間も充実するでしょう(別途工事、BS・CSの契約料等が必要な場合あり)。
建物にはエレベーターがついているので、重い荷物があっても安心。共用部には宅配ボックスが設定されているので、不在の時にも荷物を受け取ることができます。また、ペット飼育の相談ができますので、あなたの大切な家族の一員も快適に暮らせるか、ぜひ確認してみてください。
このお部屋は2階以上に位置しているので、通行人や周囲の住人からの視線が気になりにくく、防犯面でも安心。建物のエントランスはオートロックがついており、インターホンにはTVモニタもついているため、相手の顔を確認してから来客対応することができます。
人気の角部屋で周囲の居住者の生活音も気になりにくく、また、フローリングのお部屋なのでお掃除もラクラク。キッチンはシステムキッチン仕様になっていますので、お料理好きの方にもぴったり。バス・トイレは別なので、のんびりお風呂タイムも楽しめるでしょう。また、雨の日でも浴室乾燥機を使えば、お洗濯も問題ありません。
通信設備面では、インターネットが無料で使えるので、月々の出費を抑えられるのも魅力です。また、BSアンテナ・CSアンテナもありますので、おうち時間も充実するでしょう(別途工事、BS・CSの契約料等が必要な場合あり)。
建物にはエレベーターがついているので、重い荷物があっても安心。共用部には宅配ボックスが設定されているので、不在の時にも荷物を受け取ることができます。また、ペット飼育の相談ができますので、あなたの大切な家族の一員も快適に暮らせるか、ぜひ確認してみてください。
お金・契約の情報
※「-」と表示されているものは、実際は料金が発生するものもございます。詳細はお問い合わせください。
| 家賃 | 7.9万円 | 管理費・共益費 | 1万円 |
|---|---|---|---|
| 敷金 | なし | 礼金 | なし |
| 入居決定でお祝い金最大100,000円 | |||
| 保証金 | - | 償却・敷引 | - |
| 住宅保険料 | - | 更新料 | - |
| 保証会社利用 | 必須 | 保証会社名 | - |
| 保証会社費用 | - | 保証会社備考 | 保証会社利用必 一番手「RBI」初回保証料:40%(ペット飼育時60%) 外国籍:100%+外国籍サポート年間10,800円 (※審査により変更有・要確認) 外国籍家賃:クレカQR決済可(既存の保証料+2%/ |
| 契約形態 | - | 契約期間 | - |
| 入居・引渡期間 | - | 現況 | - |
| 入居可能条件 | ペット相談 | ||
| 契約備考 | 横浜市ブルーライン吉野町駅徒歩16分/巡回管理/★仲介手数料のクレジット決済歓迎★タウンハウジングは周辺環境まで詳しくご案内豊富な物件情報で楽しいお部屋探しを!街の案内人~賃貸物件・お部屋探しはタウンハウジングへ!ご質問・諸条件のご相談などお気軽にお問合せ下さい!★オンライン内見・相談対応可能です♪★年間賃貸仲介件数ランキング全国4位★仲介件数年間7万件の信頼と実績がございます。首都圏を中心に直営130店舗以上★ 合計3.85万円(内訳:室内清掃費用:38500円) 更新料新賃料(ヶ月):1.00ヶ月 1K 学生希望/二人入居可/ペット相談/ルームシェア相談 普通借家2年 損保【要】 バストイレ別、エアコン、ガスコンロ対応、クロゼット、フローリング、TVインターホン、浴室乾燥機、オートロック、室内洗濯置、シューズボックス、システムキッチン、角住戸、温水洗浄便座、エレベーター、洗面所独立、2口コンロ、駐輪場、宅配ボックス、礼金不要、最上階、敷金不要、防犯カメラ、ペット相談、全居室収納、保証人不要、二人入居相談、バイク置場、ネット使用料不要、保証金不要、ルームシェア相談、セキュリティ会社加入済、都市ガス、敷金・礼金不要 入居日:'26年3月上旬 | ||
部屋の情報
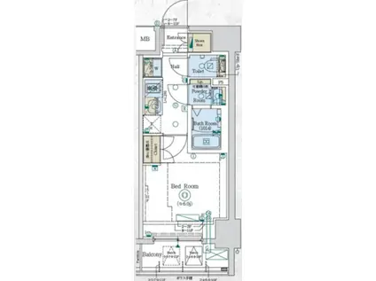
| 間取り | 1K | 専有面積 | 22m2 |
|---|---|---|---|
| 所在階 / 向き | 11階 / 北東 | バルコニー面積 | 3m2 |
| 水道 / ガス | - | ||
| 設備 | バス・トイレ別、2階以上、オートロック、テレビドアホン、宅配ボックス、浴室乾燥機、インターネット対応、システムキッチン、エアコン、エレベーター、温水洗浄便座、角部屋、バルコニー、フローリング、洗髪洗面化粧台、2口コンロ、コンロ:ガス、インターネット使用料無料、洗濯機:室内 | ||
| 当社物件ID | 130474089 | ||
建物の情報
| 建物名 | GENOVIA阪東橋IISKYGARDEN | ||
|---|---|---|---|
| 所在地 | 神奈川県横浜市南区万世町 | ||
| 交通 | ブルーライン 阪東橋駅 徒歩8分 ブルーライン 伊勢佐木長者町駅 徒歩10分 京急本線 黄金町駅 徒歩13分 | ||
| 階数 | 11階建 | 総戸数 | 172戸 |
| 築年月 | 2023年03月 / 築3年 | エレベーター | あり |
| 駐車場 | なし | バイク置き場 | あり |
| 駐輪場 | あり | 管理人/管理会社 | - |
| 周辺環境 | その他 ローソン真金町店(コンビニ)まで170m その他 まいばすけっと横浜浦舟町店(スーパー)まで200m その他 ドラッグセイムス横浜橋店(ドラッグストア)まで180m その他 ★★セブンイレブン(コンビニ)まで270m その他 まいばすけっと(スーパー)まで270m | ||
| 建物種別 | マンション | 建物構造 | RC(鉄筋コンクリート) |
この部屋の取扱い不動産会社
| 会社名 | (株)タウンハウジング神奈川 上大岡店(SUUMO経由) | ||
|---|---|---|---|
| 所在地 | 神奈川県横浜市港南区上大岡西1-18-5 ミオカ104 | 交通 | - |
| 営業時間 | AM10:00~PM7:00 | 定休日 | 水曜日 |
| 免許番号 | 国土交通大臣9928 | 取引態様 | 仲介 |
| 不動産会社管理番号 | 100474864455 | 当社管理番号 | 89 |
| 所属団体 | (公社)神奈川県宅地建物取引業協会会員 | ||
| 公正取引協議会 | (公社)首都圏不動産公正取引協議会加盟 | ||
| 取扱い物件情報 | 物件詳細へ | ||
※各種情報と現状に差異がある場合は、現状優先となります。問い合わせをすることで、より詳しい条件、情報を確認する事ができます。
提供:(株)タウンハウジング神奈川 上大岡店(SUUMO経由)
この物件が気になったら掲載期限まであと10日
GENOVIA阪東橋IISKYGARDENに条件(家賃・エリア)が近い物件一覧
| 写真 | 家賃 管理費等 | 敷金 礼金 | 間取り 専有面積 | 築年数 | 最寄り駅 所在地 | キープ | 詳細 |
|---|---|---|---|---|---|---|---|
マンション アンジュ(1K/2階) | |||||||
![]() | 8万円 5,000円 | なし 8万円 | 1K 21.11m2 | 築10年 | 小田急江ノ島線 大和駅(神奈川) 徒歩4分 相鉄本線 大和駅(神奈川) 徒歩4分 相鉄本線 相模大塚駅 徒歩23分 神奈川県大和市中央 | 詳細を見る | |
アパート SAZANAMI TSUJIDO(1LDK/2階) | |||||||
![]() | 9.6万円 3,000円 | 9.6万円 4.8万円 | 1LDK 31.06m2 | 築1年 | JR東海道本線 辻堂駅 徒歩7分 JR東海道本線 藤沢駅 徒歩48分 神奈川県藤沢市辻堂元町 | 詳細を見る | |
マンション グリフィン横浜サザンフォート(1K/3階) | |||||||
![]() | 7.1万円 6,000円 | なし 7.1万円 | 1K 22.04m2 | 築19年 | 京急本線 井土ケ谷駅 徒歩7分 ブルーライン 蒔田駅 徒歩17分 神奈川県横浜市南区南太田 | 詳細を見る | |
マンション 西山マンション(1K/2階) | |||||||
![]() | 6.6万円 3,000円 | 6.6万円 なし | 1K 17.25m2 | 築37年 | 東急東横線 元住吉駅 徒歩7分 JR南武線 平間駅 徒歩17分 JR南武線 向河原駅 徒歩22分 神奈川県川崎市中原区木月住吉町 | 詳細を見る | |
アパート ティーエム古市場2(ワンルーム/1階) | |||||||
![]() | 5.2万円 6,000円 | なし なし | ワンルーム 10.1m2 | 築8年 | JR南武線 鹿島田駅 徒歩10分 JR横須賀線 新川崎駅 徒歩16分 JR南武線 平間駅 徒歩19分 神奈川県川崎市幸区古市場 | 詳細を見る | |
マンション ベルシード横濱吉野町マキシヴ(1K/3階) | |||||||
![]() | 6.6万円 1.5万円 | なし 6.6万円 | 1K 20.3m2 | 築7年 | ブルーライン 吉野町駅 徒歩4分 ブルーライン 阪東橋駅 徒歩9分 京急本線 南太田駅 徒歩11分 神奈川県横浜市南区高砂町 | 詳細を見る | |
アパート プロスペリテ(ワンルーム/2階) | |||||||
![]() | 7.2万円 5,000円 | なし なし | ワンルーム 16m2 | 築7年 | JR南武線 平間駅 徒歩4分 JR横須賀線 新川崎駅 徒歩15分 JR南武線 鹿島田駅 徒歩15分 神奈川県川崎市中原区田尻町 | 詳細を見る | |
マンション GENOVIA二子新地(1K/2階) | |||||||
![]() | 12.3万円 1万円 | なし なし | 1K 25.35m2 | 築1年 | 東急田園都市線 二子新地駅 徒歩5分 東急田園都市線 高津駅(神奈川) 徒歩11分 神奈川県川崎市高津区瀬田 | 詳細を見る | |








