賃貸アパート
フジパレス遠里小野ノースの賃貸物件情報(1K/1階)
| 家賃 | 管理費等 | 敷金 | 礼金 | 間取り | 専有面積 |
|---|---|---|---|---|---|
| 5.55万円 | 4,900円 | なし | 6万円 | 1K | 27.03m2 |
入居決定でお祝い金最大100,000円
Point
天王寺駅前店では初期費用クレジットカードで支払い出来ます!
提供:リロの賃貸 堺北花田店ウィルハウス(株)(SUUMO経由)

詳細情報 フジパレス遠里小野ノース
物件紹介
フジパレス遠里小野ノースは南海電鉄高野線我孫子前駅から徒歩8分にあり、駅近で通勤通学に便利なアパートです。
建物のエントランスはオートロックがついており、インターホンにはTVモニタもついているため、相手の顔を確認してから来客対応することができます。
人気の角部屋で周囲の居住者の生活音も気になりにくく、また、フローリングのお部屋なのでお掃除もラクラク。室内にはウォークインクローゼットがありますので、たくさんの荷物も効率的に収納ができます。キッチンはシステムキッチン仕様になっていますので、お料理好きの方にもぴったり。バス・トイレは別なので、のんびりお風呂タイムも楽しめるでしょう。また、雨の日でも浴室乾燥機を使えば、お洗濯も問題ありません。
通信設備面では、インターネットが無料で使えるので、月々の出費を抑えられるのも魅力です。また、BSアンテナ・CSアンテナがありCATVにも対応しているので、おうち時間も充実するでしょう(別途工事、BS・CS・CATVの契約料等が必要な場合あり)。
共用部には宅配ボックスが設定されているので、不在の時にも荷物を受け取ることができます。
建物のエントランスはオートロックがついており、インターホンにはTVモニタもついているため、相手の顔を確認してから来客対応することができます。
人気の角部屋で周囲の居住者の生活音も気になりにくく、また、フローリングのお部屋なのでお掃除もラクラク。室内にはウォークインクローゼットがありますので、たくさんの荷物も効率的に収納ができます。キッチンはシステムキッチン仕様になっていますので、お料理好きの方にもぴったり。バス・トイレは別なので、のんびりお風呂タイムも楽しめるでしょう。また、雨の日でも浴室乾燥機を使えば、お洗濯も問題ありません。
通信設備面では、インターネットが無料で使えるので、月々の出費を抑えられるのも魅力です。また、BSアンテナ・CSアンテナがありCATVにも対応しているので、おうち時間も充実するでしょう(別途工事、BS・CS・CATVの契約料等が必要な場合あり)。
共用部には宅配ボックスが設定されているので、不在の時にも荷物を受け取ることができます。
お金・契約の情報
※「-」と表示されているものは、実際は料金が発生するものもございます。詳細はお問い合わせください。
| 家賃 | 5.55万円 | 管理費・共益費 | 4,900円 |
|---|---|---|---|
| 敷金 | なし | 礼金 | 6万円 |
| 入居決定でお祝い金最大100,000円 | |||
| 保証金 | - | 償却・敷引 | - |
| 住宅保険料 | 1.5万円(2年) | 更新料 | - |
| 保証会社利用 | 必須 | 保証会社名 | - |
| 保証会社費用 | - | 保証会社備考 | 【初回】総賃料50% 【月額】総賃料1% |
| 契約形態 | - | 契約期間 | 1年 |
| 入居・引渡期間 | 2026年03月中旬 | 現況 | - |
| 契約備考 | 鍵交換代 11000円/クリーニング代 33000円 | ||
部屋の情報
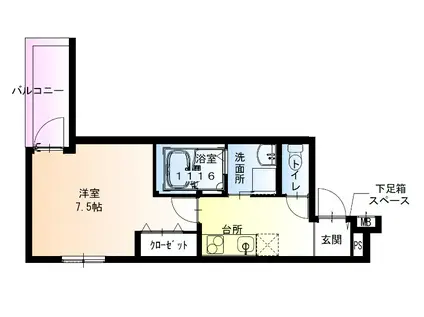
| 間取り | 1K | 専有面積 | 27.03m2 |
|---|---|---|---|
| 間取り詳細 | 洋室(7.5帖) | ||
| 所在階 / 向き | 1階 / 西 | バルコニー面積 | - |
| 水道 / ガス | ガス【都市】 | ||
| 設備 | バス・トイレ別、オートロック、テレビドアホン、宅配ボックス、浴室乾燥機、インターネット対応、システムキッチン、温水洗浄便座、角部屋、バルコニー、フローリング、コンロ:IH、CATV、インターネット使用料無料、シャワー、給湯、冷房、洗濯機:室内、閑静な住宅街 | ||
| 当社物件ID | 160179754 | ||
建物の情報
| 建物名 | フジパレス遠里小野ノース | ||
|---|---|---|---|
| 所在地 | 大阪府大阪市住吉区遠里小野6丁目 | ||
| 交通 | 阪和線 杉本町駅 徒歩13分 | ||
| 階数 | 3階建 | 総戸数 | - |
| 築年月 | 2026年03月 / 新築 | エレベーター | - |
| 駐車場 | - | バイク置き場 | - |
| 駐輪場 | あり | 管理人/管理会社 | - |
| 周辺環境 | 小学校 山之内小学校 徒歩8分(617m) 病院 おりおの病院 徒歩8分(639m) その他 おりおの南公園 徒歩5分(325m) その他 サンドラッグ 徒歩5分(348m) その他 ファミリーマート 徒歩5分(339m) その他 住吉山之内郵便局 徒歩6分(459m) その他 スーパーナショナルおりおの店 徒歩7分(528m) その他 スーパーナショナル杉本店 徒歩10分(794m) | ||
| 建物種別 | アパート | 建物構造 | 木造 |
この部屋の取扱い不動産会社
| 会社名 | アパマンショップ天王寺駅前店 | ||
|---|---|---|---|
| 所在地 | 大阪府大阪市天王寺区堀越町 16-6 | 交通 | 大阪環状線天王寺から徒歩1分 |
| 営業時間 | 10:00〜18:30(年中無休(年末年始を除く)) | 定休日 | - |
| 免許番号 | 大阪府知事(8)34549 | 取引態様 | 仲介 |
| 不動産会社管理番号 | 111552671 | 当社管理番号 | 4 |
| 所属団体 | (一社)大阪府宅地建物取引業協会 | ||
| 公正取引協議会 | (公社) 近畿地区不動産公正取引協議会加盟 | ||
| 取扱い物件情報 | 物件詳細へ | ||
※各種情報と現状に差異がある場合は、現状優先となります。問い合わせをすることで、より詳しい条件、情報を確認する事ができます。
提供:アパマンショップ天王寺駅前店
この物件が気になったら掲載期限まであと11日
フジパレス遠里小野ノースに条件(家賃・エリア)が近い物件一覧
| 写真 | 家賃 管理費等 | 敷金 礼金 | 間取り 専有面積 | 築年数 | 最寄り駅 所在地 | キープ | 詳細 |
|---|---|---|---|---|---|---|---|
マンション エミネンス辻本Ⅱ(3LDK/4階) | |||||||
| 8万円 7,000円 | なし 20万円 | 3LDK 68.32m2 | 築33年 | 阪急電鉄千里線 南千里駅 徒歩23分 阪急電鉄千里線 千里山駅 徒歩30分 大阪モノレール本線 山田駅(大阪) 徒歩32分 大阪府吹田市五月が丘北22-8 | 詳細を見る | ||
アパート フジパレス花園中央公園南番館(1LDK/2階) | |||||||
![]() | 6.25万円 4,500円 | なし 10万円 | 1LDK 35.64m2 | 新築 | 近鉄難波・奈良線 東花園駅 徒歩6分 近鉄難波・奈良線 河内花園駅 徒歩14分 近鉄難波・奈良線 瓢箪山駅(大阪) 徒歩24分 大阪府東大阪市吉田6丁目 | 詳細を見る | |
マンション 第2福井マンション(1K/1階) | |||||||
| 4.5万円 5,000円 | なし なし | 1K 24m2 | 築36年 | 北大阪急行南北線 緑地公園駅 徒歩5分 阪急電鉄千里線 千里山駅 徒歩17分 阪急電鉄千里線 関大前駅 徒歩22分 大阪府吹田市春日1丁目1-14 | 詳細を見る | ||
アパート 阪和線 津久野駅 徒歩11分 築24年(1K/2階) | |||||||
![]() | 3.9万円 6,500円 | なし なし | 1K 21.65m2 | 築24年 | 阪和線 津久野駅 徒歩11分 阪和線 上野芝駅 徒歩16分 阪和線 鳳駅 徒歩28分 大阪府堺市西区神野町3丁 | 詳細を見る | |
アパート EXハイツ東新町Ⅲ(1K/2階) | |||||||
![]() | 5.5万円 5,000円 | なし 5.5万円 | 1K 26.12m2 | 築4年 | 近鉄南大阪線 布忍駅 徒歩3分 近鉄南大阪線 高見ノ里駅 徒歩10分 近鉄南大阪線 河内天美駅 徒歩19分 大阪府松原市東新町2丁目 | 詳細を見る | |
アパート リアン 鳳(1LDK/3階) | |||||||
![]() | 8.1万円 4,100円 | なし 12万円 | 1LDK 40m2 | 築7年 | 阪和線 東羽衣駅 徒歩10分 南海電鉄南海本線 羽衣駅 徒歩11分 阪和線 鳳駅 徒歩12分 大阪府堺市西区鳳中町10丁 | 詳細を見る | |
マンション レオパレスサンシャイン浜寺(1K/2階) | |||||||
![]() | 5.5万円 7,000円 | なし 5.5万円 | 1K 19.87m2 | 築22年 | 南海電鉄南海本線 浜寺公園駅 徒歩14分 阪和線 鳳駅 徒歩18分 南海電鉄南海本線 羽衣駅 徒歩22分 大阪府堺市西区浜寺元町4丁 | 詳細を見る | |






