賃貸マンション
代々木ニューハイツの賃貸物件情報(3LDK/2階)
| 家賃 | 管理費等 | 敷金 | 礼金 | 間取り | 専有面積 |
|---|---|---|---|---|---|
| 19.5万円 | 1万円 | 19.5万円 | 19.5万円 | 3LDK | 62.54m2 |
入居決定でお祝い金最大100,000円
Point
渋谷区エリアでの住まいなら、住み心地も快適な「代々木ニューハイツ」はいかがでしょうか。化粧品やスタイリング剤などをまとめて出し入れして、サッと身支度を整えられる独立洗面台が付いております。賃料は19.
提供:(株)日鉄コミュニティ(SUUMO経由)

詳細情報 代々木ニューハイツ
物件紹介
代々木ニューハイツは小田急線南新宿駅から徒歩4分にあり、駅近で通勤通学に便利なマンションです。
このお部屋は2階以上に位置しているので、通行人や周囲の住人からの視線が気になりにくく、防犯面でも安心です。
人気の南向きのお部屋。また、フローリングなのでお掃除もラクラク。キッチンはシステムキッチン仕様になっていますので、お料理好きの方にもぴったり。また、バス・トイレは別で、のんびりお風呂タイムも楽しめるでしょう。
通信設備面ではBSアンテナがありCATVにも対応しているので、おうち時間も充実するでしょう(別途工事、契約料が必要な場合あり)。
建物にはエレベーターがついているので、重い荷物があっても安心。
このお部屋は2階以上に位置しているので、通行人や周囲の住人からの視線が気になりにくく、防犯面でも安心です。
人気の南向きのお部屋。また、フローリングなのでお掃除もラクラク。キッチンはシステムキッチン仕様になっていますので、お料理好きの方にもぴったり。また、バス・トイレは別で、のんびりお風呂タイムも楽しめるでしょう。
通信設備面ではBSアンテナがありCATVにも対応しているので、おうち時間も充実するでしょう(別途工事、契約料が必要な場合あり)。
建物にはエレベーターがついているので、重い荷物があっても安心。
お金・契約の情報
※「-」と表示されているものは、実際は料金が発生するものもございます。詳細はお問い合わせください。
| 家賃 | 19.5万円 | 管理費・共益費 | 1万円 |
|---|---|---|---|
| 敷金 | 19.5万円 | 礼金 | 19.5万円 |
| 入居決定でお祝い金最大100,000円 | |||
| 保証金 | - | 償却・敷引 | - |
| 住宅保険料 | - | 更新料 | - |
| 保証会社利用 | 必須 | 保証会社名 | - |
| 保証会社費用 | - | 保証会社備考 | 保証会社利用必 初回のみ月額総支払額の50% 月々1 300円 口座振替330円(税込) エルズサポートの保証プラン:LACTii-Gift50を選択ください。 駆けつけ+家財保険付帯となります。 |
| 契約形態 | - | 契約期間 | - |
| 入居・引渡期間 | - | 現況 | - |
| 契約備考 | 通勤管理 更新料 賃料1.00ヶ月分 3LDK 普通借家2年 損保【要】 エアコン、ガスコンロ対応、室内洗濯置、エレベーター、洗面所独立、都市ガス、BS、年度内入居可 入居日:'26年2月上旬 | ||
部屋の情報
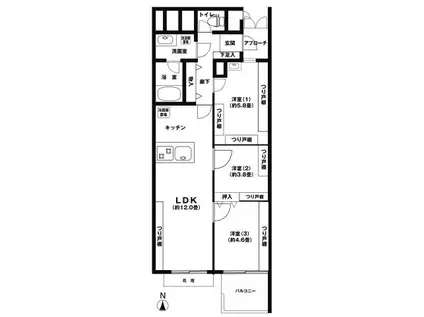
| 間取り | 3LDK | 専有面積 | 62.54m2 |
|---|---|---|---|
| 所在階 / 向き | 2階 / - | バルコニー面積 | 3m2 |
| 水道 / ガス | - | ||
| 設備 | 2階以上、エアコン、エレベーター、バルコニー、洗髪洗面化粧台、コンロ:ガス、BSアンテナ、洗濯機:室内 | ||
| 当社物件ID | 27458276 | ||
建物の情報
| 建物名 | 代々木ニューハイツ | ||
|---|---|---|---|
| 所在地 | 東京都渋谷区代々木 | ||
| 交通 | 小田急線 南新宿駅 徒歩4分 JR山手線 代々木駅 徒歩7分 JR中央線 新宿駅 徒歩10分 | ||
| 階数 | 5階建 | 総戸数 | - |
| 築年月 | 1977年10月 / 築49年 | エレベーター | あり |
| 駐車場 | なし | バイク置き場 | - |
| 駐輪場 | - | 管理人/管理会社 | - |
| 建物種別 | マンション | 建物構造 | RC(鉄筋コンクリート) |
この部屋の取扱い不動産会社
| 会社名 | (株)日鉄コミュニティ(SUUMO経由) | ||
|---|---|---|---|
| 所在地 | 東京都品川区南大井6-26-3 大森ベルポートD館7階 | 交通 | - |
| 営業時間 | 9:00~17:30 | 定休日 | 土日祝日 |
| 免許番号 | 国土交通大臣5982 | 取引態様 | 仲介 |
| 不動産会社管理番号 | 100479877048 | 当社管理番号 | 89 |
| 所属団体 | (公社)東京都宅地建物取引業協会会員 | ||
| 公正取引協議会 | (公社)首都圏不動産公正取引協議会加盟 | ||
| 取扱い物件情報 | 物件詳細へ | ||
※各種情報と現状に差異がある場合は、現状優先となります。問い合わせをすることで、より詳しい条件、情報を確認する事ができます。
提供:(株)日鉄コミュニティ(SUUMO経由)
この物件が気になったら掲載期限まであと11日
代々木ニューハイツに条件(家賃・エリア)が近い物件一覧
| 写真 | 家賃 管理費等 | 敷金 礼金 | 間取り 専有面積 | 築年数 | 最寄り駅 所在地 | キープ | 詳細 |
|---|---|---|---|---|---|---|---|
マンション ザ・パークハビオ代々木初台(1K/8階) | |||||||
![]() | 12.9万円 1万円 | 12.9万円 12.9万円 | 1K 24.95m2 | 築5年 | 小田急線 代々木八幡駅 徒歩9分 京王新線 初台駅 徒歩9分 東京メトロ千代田線 代々木公園駅 徒歩10分 東京都渋谷区初台 | 詳細を見る | |
マンション GAGA(1DK/3階) | |||||||
![]() | 13.8万円 6,000円 | 13.8万円 27.6万円 | 1DK 34.79m2 | 築16年 | 中央本線 西荻窪駅 徒歩3分 東京都杉並区西荻北3丁目 | 詳細を見る | |
マンション NOBEL中落合(2LDK/1階) | |||||||
![]() | 25.2万円 1万円 | 25.2万円 50.4万円 | 2LDK 54.94m2 | 新築 | 西武新宿線 下落合駅(東京) 徒歩10分 西武池袋線 椎名町駅 徒歩10分 東京都新宿区中落合 | 詳細を見る | |
マンション 白金ザ・スカイ イースト(ワンルーム/14階) | |||||||
![]() | 18万円 1万円 | 18万円 18万円 | ワンルーム 24.78m2 | 築4年 | 東京メトロ南北線 白金高輪駅 徒歩3分 東京メトロ南北線 麻布十番駅 徒歩11分 京急本線 泉岳寺駅 徒歩18分 東京都港区白金 | 詳細を見る | |
アパート へーベルメゾン中央5丁目北棟(2LDK/1階) | |||||||
![]() | 22.7万円 1万円 | 22.7万円 34.05万円 | 2LDK 55.37m2 | 新築 | 東京地下鉄丸ノ内線 新中野駅 徒歩6分 東京都中野区中央5丁目 | 詳細を見る | |
マンション ラティエラ品川西大井(1DK/4階) | |||||||
![]() | 15.8万円 1万円 | 15.8万円 なし | 1DK 27.8m2 | 築2年 | 横須賀線 西大井駅 徒歩5分 東京都品川区西大井2丁目 | 詳細を見る | |
マンション ハイツ池の上(2DK/3階) | |||||||
![]() | 13万円 なし | 13万円 13万円 | 2DK 41.66m2 | 築61年 | 京王電鉄井の頭線 池ノ上駅 徒歩10分 東京都世田谷区代沢1丁目 | 詳細を見る | |








