賃貸マンション
秀和狸穴レジデンスの賃貸物件情報(ワンルーム/1階)
| 家賃 | 管理費等 | 敷金 | 礼金 | 間取り | 専有面積 |
|---|---|---|---|---|---|
| 24万円 | 1万円 | 24万円 | なし | ワンルーム | 52.49m2 |
入居決定でお祝い金最大100,000円
- 保証金
- -
- 償却・敷引
- -
- 築年数
- 築58年
- 所在階
- 1階
- 向き
- 南西
Point
★Googleクチコミ高評価多数いただいております◆創業90年の実績◆管理物件多数!!審査・条件交渉もお任せください★まずはお問い合わせ下さい★
提供:(株)ランドワーク不動産(SUUMO経由)

詳細情報 秀和狸穴レジデンス
物件紹介
秀和狸穴レジデンスは東京メトロ南北線六本木一丁目駅から徒歩8分にあり、駅近で通勤通学に便利なマンションです。
建物のエントランスはオートロックがついており、防犯性が高くなっています。
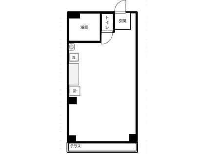
人気の南向きのお部屋。また、フローリングなのでお掃除もラクラク。キッチンはシステムキッチン仕様になっていますので、お料理好きの方にもぴったり。また、バス・トイレは別で、のんびりお風呂タイムも楽しめるでしょう。
通信設備面では、インターネット接続が可能です。また、BSアンテナがありCATVにも対応しているので、おうち時間も充実するでしょう(別途工事、契約料が必要な場合あり)。
建物にはエレベーターがついているので、重い荷物があっても安心。
建物のエントランスはオートロックがついており、防犯性が高くなっています。
人気の南向きのお部屋。また、フローリングなのでお掃除もラクラク。キッチンはシステムキッチン仕様になっていますので、お料理好きの方にもぴったり。また、バス・トイレは別で、のんびりお風呂タイムも楽しめるでしょう。
通信設備面では、インターネット接続が可能です。また、BSアンテナがありCATVにも対応しているので、おうち時間も充実するでしょう(別途工事、契約料が必要な場合あり)。
建物にはエレベーターがついているので、重い荷物があっても安心。
お金・契約の情報
※「-」と表示されているものは、実際は料金が発生するものもございます。詳細はお問い合わせください。
| 家賃 | 24万円 | 管理費・共益費 | 1万円 |
|---|---|---|---|
| 敷金 | 24万円 | 礼金 | なし |
| 入居決定でお祝い金最大100,000円 | |||
| 保証金 | - | 償却・敷引 | - |
| 住宅保険料 | - | 更新料 | - |
| 保証会社利用 | 必須 | 保証会社名 | - |
| 保証会社費用 | - | 保証会社備考 | 保証会社利用必 ナップ賃貸保証 初回保証料60%~100% 収納代行手数料別途毎月330円 |
| 契約形態 | 定期借家 | 契約期間 | 2年 |
| 入居・引渡期間 | - | 現況 | - |
| 契約備考 | 合計3.52万円(内訳:鍵交換代35200円) くらしーど24月額880円/月 ワンルーム 定期借家2年 損保【2万円2年】 バストイレ別、エアコン、ガスコンロ対応、フローリング、オートロック、室内洗濯置、システムキッチン、温水洗浄便座、洗面所独立、駐輪場、CATV、防犯カメラ、分譲賃貸、バイク置場、全居室フローリング、ネット専用回線、3駅以上利用可、3沿線以上利用可、都市ガス、保証会社利用可 入居日:'26年3月上旬 | ||
部屋の情報
| 間取り | ワンルーム | 専有面積 | 52.49m2 |
|---|---|---|---|
| 所在階 / 向き | 1階 / 南西 | バルコニー面積 | - |
| 水道 / ガス | - | ||
| 設備 | バス・トイレ別、オートロック、インターネット対応、システムキッチン、エアコン、温水洗浄便座、南向き、フローリング、洗髪洗面化粧台、コンロ:ガス、CATV、洗濯機:室内 | ||
| 当社物件ID | 160324796 | ||
建物の情報
| 建物名 | 秀和狸穴レジデンス | ||
|---|---|---|---|
| 所在地 | 東京都港区麻布台 | ||
| 交通 | 東京メトロ南北線 六本木一丁目駅 徒歩8分 都営大江戸線 麻布十番駅 徒歩9分 東京メトロ日比谷線 神谷町駅 徒歩11分 | ||
| 階数 | 8階建 | 総戸数 | - |
| 築年月 | 1968年08月 / 築58年 | エレベーター | - |
| 駐車場 | なし | バイク置き場 | あり |
| 駐輪場 | あり | 管理人/管理会社 | - |
| 建物種別 | マンション | 建物構造 | RC(鉄筋コンクリート) |
この部屋の取扱い不動産会社
| 会社名 | (株)ランドワーク不動産(SUUMO経由) | ||
|---|---|---|---|
| 所在地 | 東京都品川区東五反田3-17-16 ネオハイツ・ヴェルビュ島津山 | 交通 | - |
| 営業時間 | 9:00-17:00 | 定休日 | - |
| 免許番号 | 東京都知事2014 | 取引態様 | 仲介 |
| 不動産会社管理番号 | 100486128747 | 当社管理番号 | 89 |
| 所属団体 | (公社)東京都宅地建物取引業協会会員 | ||
| 公正取引協議会 | (公社)首都圏不動産公正取引協議会加盟 | ||
| 取扱い物件情報 | 物件詳細へ | ||
※各種情報と現状に差異がある場合は、現状優先となります。問い合わせをすることで、より詳しい条件、情報を確認する事ができます。
提供:(株)ランドワーク不動産(SUUMO経由)
この物件が気になったら掲載期限まであと11日
秀和狸穴レジデンスに条件(家賃・エリア)が近い物件一覧
| 写真 | 家賃 管理費等 | 敷金 礼金 | 間取り 専有面積 | 築年数 | 最寄り駅 所在地 | キープ | 詳細 |
|---|---|---|---|---|---|---|---|
マンション パークアクシス亀戸(1LDK/2階) | |||||||
![]() | 15.9万円 8,000円 | 15.9万円 15.9万円 | 1LDK 35.03m2 | 築18年 | 総武・中央緩行線 亀戸駅 徒歩6分 東京都江東区亀戸1丁目 | 詳細を見る | |
マンション オーキッドレジデンス戸越公園(2LDK/7階) | |||||||
![]() | 24万円 1.5万円 | 24万円 なし | 2LDK 42.43m2 | 築5年 | 東急大井町線 戸越公園駅 徒歩6分 都営浅草線 中延駅 徒歩7分 湘南新宿ライン宇須 西大井駅 徒歩9分 東京都品川区豊町 | 詳細を見る | |
マンション 渡辺マンション(3SLDK/4階) | |||||||
![]() | 25万円 1万円 | 25万円 50万円 | 3SLDK 86.12m2 | 築48年 | 東急目黒線 西小山駅 徒歩6分 東急目黒線 洗足駅 徒歩11分 東京都品川区荏原7丁目 | 詳細を見る | |
マンション あやめガーデン(2K/12階) | |||||||
![]() | 17.5万円 1万円 | 17.5万円 17.5万円 | 2K 42.26m2 | 築12年 | 東京メトロ日比谷線 築地駅 徒歩1分 東京メトロ有楽町線 新富町駅(東京) 徒歩6分 東京メトロ日比谷線 東銀座駅 徒歩6分 東京都中央区築地 | 詳細を見る | |
マンション ザ・ライオンズフォーシア外神田(1DK/5階) | |||||||
![]() | 19.1万円 1.5万円 | 19.1万円 なし | 1DK 33.49m2 | 築1年 | 東京地下鉄銀座線 末広町駅(東京) 徒歩3分 総武・中央緩行線 秋葉原駅 徒歩9分 中央本線 御茶ノ水駅 徒歩10分 東京都千代田区外神田3丁目 | 詳細を見る | |
マンション コスモリード月島(1LDK/8階) | |||||||
![]() | 16.3万円 7,000円 | なし 16.3万円 | 1LDK 34.75m2 | 築21年 | 東京メトロ有楽町線 月島駅 徒歩3分 都営大江戸線 月島駅 徒歩3分 JR京葉線 越中島駅 徒歩13分 東京都中央区佃 | 詳細を見る | |
マンション パークフロント代々木(1LDK/2階) | |||||||
![]() | 20.8万円 7,000円 | 20.8万円 31.2万円 | 1LDK 42.66m2 | 築7年 | 小田急線 代々木八幡駅 徒歩4分 東京メトロ千代田線 代々木公園駅 徒歩4分 東京都渋谷区代々木 | 詳細を見る | |








