賃貸マンション
阪急電鉄京都線 西山天王山駅 徒歩9分 4階建 築54年の賃貸物件情報(2K/4階)
| 家賃 | 管理費等 | 敷金 | 礼金 | 間取り | 専有面積 |
|---|---|---|---|---|---|
| 5.3万円 | 3,000円 | 5万円 | 10万円 | 2K | 34.02m2 |
入居決定でお祝い金最大100,000円
Point
環境良し 長岡京市 賃貸 2口ガスコンロ設置可 駐車場あり
提供:株式会社 京都ライフ 桂店(賃貸スモッカ経由)

詳細情報 阪急電鉄京都線 西山天王山駅 徒歩9分 4階建 築54年
物件紹介
阪急電鉄京都線西山天王山駅から徒歩9分にあり、駅近で通勤通学に便利なマンションです。
このお部屋は2階以上に位置しているので、通行人や周囲の住人からの視線が気になりにくく、防犯面でも安心です。
人気の南向き・フローリングのお部屋。角部屋でもあるため、周囲の居住者の生活音も気になりにくい場所です。バス・トイレ別の仕様で、のんびりお風呂タイムも楽しめます。
通信設備面では、インターネット接続が可能です。また、BSアンテナもありますので、おうち時間も充実するでしょう(別途工事、契約料が必要な場合あり)。
このお部屋は2階以上に位置しているので、通行人や周囲の住人からの視線が気になりにくく、防犯面でも安心です。
人気の南向き・フローリングのお部屋。角部屋でもあるため、周囲の居住者の生活音も気になりにくい場所です。バス・トイレ別の仕様で、のんびりお風呂タイムも楽しめます。
通信設備面では、インターネット接続が可能です。また、BSアンテナもありますので、おうち時間も充実するでしょう(別途工事、契約料が必要な場合あり)。
お金・契約の情報
※「-」と表示されているものは、実際は料金が発生するものもございます。詳細はお問い合わせください。
| 家賃 | 5.3万円 | 管理費・共益費 | 3,000円 |
|---|---|---|---|
| 敷金 | 5万円 | 礼金 | 10万円 |
| 入居決定でお祝い金最大100,000円 | |||
| 保証金 | - | 償却・敷引 | - |
| 住宅保険料 | 住宅保険料あり | 更新料 | - |
| 契約形態 | - | 契約期間 | 2年 |
| 入居・引渡期間 | 即時 | 現況 | 空室 |
| 契約備考 | 長岡京市の南向きベランダで日当たり良好賃貸物件ですよ。大きな通りから入ったところにあるので喧騒さを感じさせませんよ。コンビニまでは歩いて6分。生協(コープ)までは歩いて4分でついちゃいます TSUTAYA徒歩4分、小学校徒歩4分。長岡第四小学校区です お気軽に京都ライフまでお問い合わせ下さい。 更新料:1ヶ月 その他設備/条件:最上階の物件、即入居可 | ||
部屋の情報
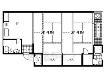
| 間取り | 2K | 専有面積 | 34.02m2 |
|---|---|---|---|
| 間取り詳細 | 和室(6帖)、和室(6帖)、K(3帖) | ||
| 所在階 / 向き | 4階 / 南 | バルコニー面積 | - |
| 水道 / ガス | ガス【都市】 | ||
| 設備 | バス・トイレ別、2階以上、インターネット対応、南向き、角部屋、バルコニー、フローリング、BSアンテナ | ||
| 当社物件ID | 146845460 | ||
建物の情報
| 建物名 | 阪急電鉄京都線 西山天王山駅 徒歩9分 4階建 築54年 | ||
|---|---|---|---|
| 所在地 | 京都府長岡京市友岡1丁目 | ||
| 交通 | 阪急電鉄京都線 西山天王山駅 徒歩9分 東海道本線 長岡京駅 徒歩15分 | ||
| 階数 | 4階建 | 総戸数 | - |
| 築年月 | 1972年04月 / 築54年 | エレベーター | - |
| 駐車場 | - | バイク置き場 | - |
| 駐輪場 | あり | 管理人/管理会社 | - |
| 建物種別 | マンション | 建物構造 | 鉄骨造 |
この部屋の取扱い不動産会社
| 会社名 | 株式会社 京都ライフ 桂店(賃貸スモッカ経由) | ||
|---|---|---|---|
| 所在地 | 京都市西京区桂野里町50番地 | 交通 | - |
| 営業時間 | - | 定休日 | - |
| 免許番号 | 京都府知事(11)第6353号 | 取引態様 | 仲介 |
| 不動産会社管理番号 | kyotolife_05487-1-501-06 | 当社管理番号 | 463 |
| 所属団体 | 京都府宅地建物取引業協会\n公益社団法人近畿地区不動産公正取引協議会 | ||
| 公正取引協議会 | 全国宅地建物取引業保証協会 | ||
| 取扱い物件情報 | 物件詳細へ | ||
※各種情報と現状に差異がある場合は、現状優先となります。問い合わせをすることで、より詳しい条件、情報を確認する事ができます。
提供:株式会社 京都ライフ 桂店(賃貸スモッカ経由)
この物件が気になったら掲載期限まであと6日
阪急電鉄京都線 西山天王山駅 徒歩9分 4階建 築54年に条件(家賃・エリア)が近い物件一覧
| 写真 | 家賃 管理費等 | 敷金 礼金 | 間取り 専有面積 | 築年数 | 最寄り駅 所在地 | キープ | 詳細 |
|---|---|---|---|---|---|---|---|
アパート ビラージュ満月(1DK/1階) | |||||||
![]() | 5.2万円 3,000円 | なし なし | 1DK 27.08m2 | 築32年 | 阪急電鉄京都線 西京極駅 徒歩15分 京都府京都市右京区梅津南広町 | 詳細を見る | |
アパート 京都府京都市伏見区 築27年(1K/2階) | |||||||
![]() | 4.2万円 4,000円 | なし なし | 1K 20.37m2 | 築27年 | 京都府京都市伏見区羽束師菱川町 | 詳細を見る | |
マンション 阪急電鉄京都線 大宮駅(京都) 徒歩5分 築41年(1DK/2階) | |||||||
![]() | 4.6万円 3,000円 | 4.6万円 なし | 1DK 22m2 | 築41年 | 阪急電鉄京都線 大宮駅(京都) 徒歩5分 京都市烏丸線 四条駅(京都市営) 徒歩15分 京都府京都市下京区坊門町 | 詳細を見る | |
マンション 京都市東西線 太秦天神川駅 徒歩12分 築18年(1K/9階) | |||||||
![]() | 5.7万円 1万円 | なし なし | 1K 24.3m2 | 築18年 | 京都市東西線 太秦天神川駅 徒歩12分 阪急電鉄京都線 西院駅(阪急) 徒歩19分 京都府京都市右京区梅津南広町 | 詳細を見る | |
アパート 山陰本線 丹波口駅 徒歩9分 築33年(1K/1階) | |||||||
![]() | 4.3万円 4,000円 | 4.3万円 なし | 1K 18.2m2 | 築33年 | 山陰本線 丹波口駅 徒歩9分 阪急電鉄京都線 西院駅(阪急) 徒歩19分 京都府京都市下京区西七条西八反田町 | 詳細を見る | |
マンション 京都市烏丸線 五条駅(京都市営) 徒歩4分 築25年(1K/5階) | |||||||
![]() | 6.9万円 1.1万円 | なし 6.9万円 | 1K 19.05m2 | 築25年 | 京都市烏丸線 五条駅(京都市営) 徒歩4分 京都市烏丸線 四条駅(京都市営) 徒歩7分 京都府京都市下京区材木町通室町東入ル玉津島町 | 詳細を見る | |
マンション 叡山電鉄 元田中駅 徒歩4分 築47年(ワンルーム/2階) | |||||||
![]() | 4.2万円 5,000円 | 4.2万円 4.2万円 | ワンルーム 17m2 | 築47年 | 叡山電鉄 元田中駅 徒歩4分 京阪電気鉄道鴨東線 出町柳駅 徒歩15分 京都府京都市左京区田中上大久保町 | 詳細を見る | |
アパート 京都市烏丸線 今出川駅 徒歩6分 築30年(1K/1階) | |||||||
![]() | 5.4万円 3,000円 | 3万円 8万円 | 1K 24.24m2 | 築30年 | 京都市烏丸線 今出川駅 徒歩6分 京阪電気鉄道鴨東線 出町柳駅 徒歩21分 京都府京都市上京区西無車小路町 | 詳細を見る | |









