賃貸マンション
メゾン フローレの賃貸物件情報(1LDK/1階)
| 家賃 | 管理費等 | 敷金 | 礼金 | 間取り | 専有面積 |
|---|---|---|---|---|---|
| 12.5万円 | 5,000円 | 12.5万円 | 25万円 | 1LDK | 40.24m2 |
入居決定でお祝い金最大100,000円
- 保証金
- -
- 償却・敷引
- -
- 築年数
- 築14年
- 所在階
- 1階
- 向き
- 南東
Point
【物件番号:A877】お電話でお問い合わせ頂けますと、より迅速なご対応が可能です(^^)☆LINE対応・オンライン接客もご対応しています♪(アシスト三軒茶屋店 03(3419)8806)
提供:(株)アシスト旗の台店(SUUMO経由)

詳細情報 メゾン フローレ
物件紹介
メゾン フローレは東急大井町線戸越公園駅から徒歩5分にあり、駅近で通勤通学に便利なマンションです。
このお部屋のインターホンにはTVモニタがついているため、相手の顔を確認してから来客対応することができます。
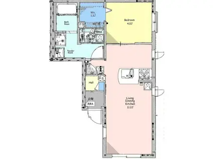
人気の南向き・フローリングのお部屋。角部屋でもあるため、周囲の居住者の生活音も気になりにくい場所です。室内にはウォークインクローゼットがありますので、たくさんの荷物も効率的に収納ができます。キッチンはシステムキッチン仕様になっていますので、お料理好きの方にもぴったり。バス・トイレは別なので、のんびりお風呂タイムも楽しめるでしょう。また、雨の日でも浴室乾燥機を使えば、お洗濯も問題ありません。
通信設備面では、インターネットが無料で使えるので、月々の出費を抑えられるのも魅力です。また、BSアンテナがありCATVにも対応しているので、おうち時間も充実するでしょう(別途工事、BS・CATVの契約料等が必要な場合あり)。
このお部屋のインターホンにはTVモニタがついているため、相手の顔を確認してから来客対応することができます。
人気の南向き・フローリングのお部屋。角部屋でもあるため、周囲の居住者の生活音も気になりにくい場所です。室内にはウォークインクローゼットがありますので、たくさんの荷物も効率的に収納ができます。キッチンはシステムキッチン仕様になっていますので、お料理好きの方にもぴったり。バス・トイレは別なので、のんびりお風呂タイムも楽しめるでしょう。また、雨の日でも浴室乾燥機を使えば、お洗濯も問題ありません。
通信設備面では、インターネットが無料で使えるので、月々の出費を抑えられるのも魅力です。また、BSアンテナがありCATVにも対応しているので、おうち時間も充実するでしょう(別途工事、BS・CATVの契約料等が必要な場合あり)。
お金・契約の情報
※「-」と表示されているものは、実際は料金が発生するものもございます。詳細はお問い合わせください。
| 家賃 | 12.5万円 | 管理費・共益費 | 5,000円 |
|---|---|---|---|
| 敷金 | 12.5万円 | 礼金 | 25万円 |
| 入居決定でお祝い金最大100,000円 | |||
| 保証金 | - | 償却・敷引 | - |
| 住宅保険料 | - | 更新料 | - |
| 保証会社利用 | 必須 | 保証会社名 | - |
| 保証会社費用 | - | 保証会社備考 | 保証会社利用必 MyConcierサポート 初回保証料:総家賃の50%(更新時2万円) |
| 契約形態 | - | 契約期間 | - |
| 入居・引渡期間 | - | 現況 | - |
| 契約備考 | 横須賀線 西大井駅駅徒歩8分/その他、新着情報も合わせてご紹介ご案内させて頂きます♪♪ (03<3419>8806)まで、お気軽にお問い合わせ下さい(^ー^) 合計5.21万円(内訳:MyConcier CLUB会費1.8万円鍵交換代3.41万円) 更新料 新賃料1.00ヶ月分 室内清掃費用 71500円 1LDK 二人入居可 普通借家2年 損保【要】 バストイレ別、バルコニー、エアコン、ガスコンロ対応、クロゼット、フローリング、シャワー付洗面台、TVインターホン、浴室乾燥機、室内洗濯置、陽当り良好、シューズボックス、システムキッチン、追焚機能浴室、角住戸、温水洗浄便座、脱衣所、洗面所独立、洗面化粧台、CATV、光ファイバー、閑静な住宅地、2面採光、3口以上コンロ、対面式キッチン、オートバス、グリル付、全居室洋室、ウォークインクロゼット、敷金1ヶ月、二人入居相談、防犯シャッター、全居室フローリング、ネット使用料不要、クロゼット3ヶ所、耐火構造、耐震構造、2駅利用可、3駅以上利用可、3沿線以上利用可、駅徒歩5分以内、駅徒歩10分以内、敷地内ごみ置き場、都市ガス、BS、初期費用カード決済可、通風良好 入居日:'26年2月下旬 | ||
部屋の情報
| 間取り | 1LDK | 専有面積 | 40.24m2 |
|---|---|---|---|
| 所在階 / 向き | 1階 / 南東 | バルコニー面積 | - |
| 水道 / ガス | - | ||
| 設備 | バス・トイレ別、テレビドアホン、浴室乾燥機、ウォークインクローゼット、追い焚き、インターネット対応、システムキッチン、エアコン、温水洗浄便座、南向き、角部屋、バルコニー、フローリング、洗髪洗面化粧台、2口コンロ、コンロ:ガス、CATV、BSアンテナ、インターネット使用料無料、洗濯機:室内 | ||
| 当社物件ID | 160242125 | ||
建物の情報
| 建物名 | メゾン フローレ | ||
|---|---|---|---|
| 所在地 | 東京都品川区豊町 | ||
| 交通 | 東急大井町線 戸越公園駅 徒歩5分 都営浅草線 中延駅 徒歩7分 JR横須賀線 西大井駅 徒歩8分 | ||
| 階数 | 2階建 | 総戸数 | - |
| 築年月 | 2012年05月 / 築14年 | エレベーター | - |
| 駐車場 | なし | バイク置き場 | - |
| 駐輪場 | - | 管理人/管理会社 | - |
| 周辺環境 | その他 東急大井町線 中延駅(その他)まで831m | ||
| 建物種別 | マンション | 建物構造 | 鉄骨造 |
この部屋の取扱い不動産会社
| 会社名 | (株)アシスト三軒茶屋店(SUUMO経由) | ||
|---|---|---|---|
| 所在地 | 東京都世田谷区三軒茶屋1-36-6 | 交通 | - |
| 営業時間 | AM10:00~PM19:00 | 定休日 | 第二・四火曜日・毎週水曜日 |
| 免許番号 | 東京都知事71068 | 取引態様 | 仲介 |
| 不動産会社管理番号 | 100483612063 | 当社管理番号 | 89 |
| 所属団体 | (公社)全日本不動産協会東京都本部会員 | ||
| 公正取引協議会 | (公社)首都圏不動産公正取引協議会加盟 | ||
| 取扱い物件情報 | 物件詳細へ | ||
※各種情報と現状に差異がある場合は、現状優先となります。問い合わせをすることで、より詳しい条件、情報を確認する事ができます。
提供:(株)アシスト三軒茶屋店(SUUMO経由)
この物件が気になったら掲載期限まであと11日
メゾン フローレに条件(家賃・エリア)が近い物件一覧
| 写真 | 家賃 管理費等 | 敷金 礼金 | 間取り 専有面積 | 築年数 | 最寄り駅 所在地 | キープ | 詳細 |
|---|---|---|---|---|---|---|---|
アパート タカマルハイム(1LDK/1階) | |||||||
![]() | 11.1万円 3,000円 | 11.1万円 22.2万円 | 1LDK 34m2 | 築11年 | 東急多摩川線 武蔵新田駅 徒歩8分 東急多摩川線 下丸子駅 徒歩9分 東京都大田区下丸子2丁目 | 詳細を見る | |
アパート セレスティア下丸子(2LDK/2階) | |||||||
![]() | 18.9万円 6,000円 | なし 37.8万円 | 2LDK 48.93m2 | 新築 | 東急多摩川線 武蔵新田駅 徒歩7分 東急多摩川線 下丸子駅 徒歩8分 東急池上線 千鳥町駅 徒歩12分 東京都大田区下丸子 | 詳細を見る | |
アパート SEED SAVE PETIRASU Ⅲ(2DK/2階) | |||||||
![]() | 12万円 1万円 | 24万円 12万円 | 2DK 35.83m2 | 新築 | 東京モノレール羽田 昭和島駅 徒歩12分 京浜急行電鉄本線 大森町駅 徒歩18分 東京都大田区大森東5丁目 | 詳細を見る | |
アパート CASA PLACIDA (1K/1階) | |||||||
![]() | 9.1万円 3,000円 | 9.1万円 9.1万円 | 1K 27.28m2 | 築14年 | 京浜東北・根岸線 蒲田駅 徒歩6分 京浜急行電鉄本線 京急蒲田駅 徒歩12分 東京都大田区蒲田1丁目 | 詳細を見る | |
マンション SEED JUST B-BASE Ⅱ(1LDK/4階) | |||||||
![]() | 8.8万円 1.5万円 | 8.8万円 8.8万円 | 1LDK 23.07m2 | 新築 | 東京モノレール羽田 昭和島駅 徒歩11分 京浜急行電鉄本線 梅屋敷駅(東京) 徒歩19分 東京都大田区大森南4丁目 | 詳細を見る | |
アパート ウィング古屋(1K/2階) | |||||||
![]() | 12万円 2,000円 | 12万円 12万円 | 1K 35m2 | 築38年 | 東急大井町線 旗の台駅 徒歩3分 都営浅草線 中延駅 徒歩11分 東急目黒線 西小山駅 徒歩18分 東京都品川区旗の台 | 詳細を見る | |
マンション エクセルピア大森町(2DK/2階) | |||||||
![]() | 11.5万円 2,000円 | 23万円 なし | 2DK 40.64m2 | 築45年 | 京浜急行電鉄本線 大森町駅 徒歩6分 東京都大田区大森西3丁目 | 詳細を見る | |








