賃貸アパート
リーブルファイン三郷高州 2号棟の賃貸物件情報(1LDK/2階)
| 家賃 | 管理費等 | 敷金 | 礼金 | 間取り | 専有面積 |
|---|---|---|---|---|---|
| 7.6万円 | 4,000円 | なし | なし | 1LDK | 45.13m2 |
入居決定でお祝い金最大100,000円
- 保証金
- -
- 償却・敷引
- -
- 築年数
- 築3年
- 所在階
- 2階
- 向き
- 西
Point
新築、3口システムキッチン、TVモニターフォン
提供:ピタットハウス三郷中央店(株)One(SUUMO経由)

詳細情報 リーブルファイン三郷高州 2号棟
物件紹介
リーブルファイン三郷高州 2号棟はJR常磐線金町駅から徒歩37分にあるアパートです。
このお部屋は2階以上に位置しているので、通行人や周囲の住人からの視線が気になりにくく、防犯面でも安心。インターホンにはTVモニタもついているため、相手の顔を確認してから来客対応することができます。
フローリングのお部屋なのでお掃除もラクラク。キッチンはシステムキッチン仕様になっていますので、お料理好きの方にもぴったり。また、バス・トイレは別で、のんびりお風呂タイムも楽しめるでしょう。
このお部屋は2階以上に位置しているので、通行人や周囲の住人からの視線が気になりにくく、防犯面でも安心。インターホンにはTVモニタもついているため、相手の顔を確認してから来客対応することができます。
フローリングのお部屋なのでお掃除もラクラク。キッチンはシステムキッチン仕様になっていますので、お料理好きの方にもぴったり。また、バス・トイレは別で、のんびりお風呂タイムも楽しめるでしょう。
お金・契約の情報
※「-」と表示されているものは、実際は料金が発生するものもございます。詳細はお問い合わせください。
| 家賃 | 7.6万円 | 管理費・共益費 | 4,000円 |
|---|---|---|---|
| 敷金 | なし | 礼金 | なし |
| フリーレント | あり | ||
| 入居決定でお祝い金最大100,000円 | |||
| 保証金 | - | 償却・敷引 | - |
| 住宅保険料 | - | 更新料 | - |
| 保証会社利用 | 必須 | 保証会社名 | 全保連 |
| 保証会社費用 | - | 保証会社備考 | 全保連利用必 初回総賃料の50%、以降1年毎13,000円 |
| 契約形態 | - | 契約期間 | - |
| 入居・引渡期間 | - | 現況 | - |
| 契約備考 | 巡回管理/※1年未満の解約は賃料2ヶ月分がかかります。三郷市、八潮市、吉川市、その他エリアのお部屋探しの際は、ご相談ください。新築、初期費用を抑えたい方、いろいろご相談下さいませ。お問い合わせ、ご来店お待ちしております。 合計7.4万円(内訳:ルームクリーニング費7.4万円) 1LDK 単身者可/二人入居可 損保【1.6万円2年】 バストイレ別、エアコン、クロゼット、フローリング、TVインターホン、室内洗濯置、シューズボックス、システムキッチン、追焚機能浴室、洗面所独立、洗面化粧台、礼金不要、閑静な住宅地、最上階、敷金不要、3口以上コンロ、対面式キッチン、フリーレント、築3年以内、3沿線以上利用可、敷地内ごみ置き場、敷金・礼金不要、保証会社利用可、IT重説対応物件、LGBTフレンドリー 入居日:'26年3月中旬 | ||
部屋の情報
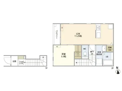
| 間取り | 1LDK | 専有面積 | 45.13m2 |
|---|---|---|---|
| 所在階 / 向き | 2階 / 西 | バルコニー面積 | - |
| 水道 / ガス | - | ||
| 設備 | バス・トイレ別、2階以上、テレビドアホン、追い焚き、システムキッチン、エアコン、フローリング、洗髪洗面化粧台、2口コンロ、洗濯機:室内 | ||
| 当社物件ID | 146952693 | ||
建物の情報
| 建物名 | リーブルファイン三郷高州 2号棟 | ||
|---|---|---|---|
| 所在地 | 埼玉県三郷市高州 | ||
| 交通 | JR常磐線 金町駅 徒歩37分 JR常磐線 松戸駅 徒歩47分 つくばエクスプレス 三郷中央駅 徒歩55分 | ||
| 階数 | 2階建 | 総戸数 | 6戸 |
| 築年月 | 2023年11月 / 築3年 | エレベーター | - |
| 駐車場 | なし 平置駐 | バイク置き場 | - |
| 駐輪場 | - | 管理人/管理会社 | - |
| 周辺環境 | その他 三郷高州郵便局(郵便局)まで1032m その他 亀有信用金庫高州支店(銀行)まで985m その他 三郷市役所(役所)まで5206m その他 特定医療法人財団健和会みさと健和病院(病院)まで1444m その他 コモディイイダ三郷店(スーパー)まで909m その他 セブンイレブン三郷公園前店(コンビニ)まで399m | ||
| 建物種別 | アパート | 建物構造 | 木造 |
この部屋の取扱い不動産会社
| 会社名 | ピタットハウス亀有店(株)One(SUUMO経由) | ||
|---|---|---|---|
| 所在地 | 東京都葛飾区亀有3-31-4 | 交通 | - |
| 営業時間 | 10:00~18:00 | 定休日 | 水曜日 |
| 免許番号 | 国土交通大臣10247 | 取引態様 | 仲介 |
| 不動産会社管理番号 | 100489103160 | 当社管理番号 | 89 |
| 所属団体 | (公社)全日本不動産協会埼玉県本部会員 | ||
| 公正取引協議会 | (公社)首都圏不動産公正取引協議会加盟 | ||
| 取扱い物件情報 | 物件詳細へ | ||
※各種情報と現状に差異がある場合は、現状優先となります。問い合わせをすることで、より詳しい条件、情報を確認する事ができます。
提供:ピタットハウス亀有店(株)One(SUUMO経由)
この物件が気になったら掲載期限まであと12日
リーブルファイン三郷高州 2号棟に条件(家賃・エリア)が近い物件一覧
| 写真 | 家賃 管理費等 | 敷金 礼金 | 間取り 専有面積 | 築年数 | 最寄り駅 所在地 | キープ | 詳細 |
|---|---|---|---|---|---|---|---|
マンション 東武伊勢崎線 谷塚駅 徒歩13分 築21年(1K/1階) | |||||||
![]() | 4.9万円 7,000円 | なし 4.9万円 | 1K 19.87m2 | 築21年 | 東武伊勢崎線 谷塚駅 徒歩13分 東武伊勢崎線 草加駅 徒歩28分 埼玉県草加市谷塚仲町 | 詳細を見る | |
マンション スペリオルクラブ(ワンルーム/11階) | |||||||
![]() | 8.5万円 1.2万円 | 8.5万円 なし | ワンルーム 27.99m2 | 築20年 | JR常磐線 松戸駅 徒歩5分 京成松戸線 上本郷駅 徒歩29分 JR常磐線 北松戸駅 徒歩31分 千葉県松戸市松戸 | 詳細を見る | |
マンション ピラタスXII(1LDK/2階) | |||||||
![]() | 9.3万円 7,000円 | なし 15万円 | 1LDK 49.18m2 | 築15年 | JR武蔵野線 吉川美南駅 徒歩6分 埼玉県吉川市美南 | 詳細を見る | |
アパート ベルレージュ エム(1K/3階) | |||||||
![]() | 7.5万円 6,000円 | なし 7.5万円 | 1K 29.17m2 | 築13年 | 東武伊勢崎線 草加駅 徒歩19分 東武伊勢崎線 獨協大学前駅 徒歩22分 埼玉県草加市西町 | 詳細を見る | |
マンション プラティーク・キューヴ(1K/3階) | |||||||
![]() | 5.8万円 9,000円 | 5.8万円 5.8万円 | 1K 21.9m2 | 築18年 | 東武伊勢崎線 草加駅 徒歩2分 東武伊勢崎線 谷塚駅 徒歩24分 東武伊勢崎線 獨協大学前駅 徒歩25分 埼玉県草加市氷川町 | 詳細を見る | |
マンション AZEST金町(1K/3階) | |||||||
![]() | 7.2万円 1.5万円 | なし 7.2万円 | 1K 20.54m2 | 築3年 | JR常磐線 金町駅 徒歩10分 京成金町線 京成金町駅 徒歩12分 京成金町線 柴又駅 徒歩22分 東京都葛飾区金町 | 詳細を見る | |
アパート 草加市氷川町PJIV A(1LDK/3階) | |||||||
![]() | 11.1万円 5,000円 | なし 22.2万円 | 1LDK 40.13m2 | 新築 | 東武伊勢崎線 草加駅 徒歩9分 東武伊勢崎線 谷塚駅 徒歩23分 埼玉県草加市氷川町 | 詳細を見る | |
アパート コーポニシキ(2DK/1階) | |||||||
![]() | 7.2万円 なし | 7.2万円 7.2万円 | 2DK 39.69m2 | 築30年 | JR常磐線 金町駅 徒歩16分 京成金町線 京成金町駅 徒歩16分 京成金町線 柴又駅 徒歩37分 東京都葛飾区東水元 | 詳細を見る | |









