賃貸マンション
プロパレス上町台ヴェラージュの賃貸物件情報(2LDK/2階)
| 家賃 | 管理費等 | 敷金 | 礼金 | 間取り | 専有面積 |
|---|---|---|---|---|---|
| 14万円 | 1万円 | 15万円 | 30万円 | 2LDK | 53.25m2 |
入居決定でお祝い金最大100,000円
- 保証金
- -
- 償却・敷引
- -
- 築年数
- 築22年
- 所在階
- 2階
- 向き
- 南
Point
まずはお問い合わせ!
不動産会社は街のプロ、あなたに合った物件がきっと見つかります。
提供:アスモ不動産(株)天満橋店(SUUMO経由)

詳細情報 プロパレス上町台ヴェラージュ
物件紹介
プロパレス上町台ヴェラージュは地下鉄谷町線谷町九丁目駅から徒歩6分にあり、駅近で通勤通学に便利なマンションです。
このお部屋は2階以上に位置しているので、通行人や周囲の住人からの視線が気になりにくく、防犯面でも安心。建物のエントランスはオートロックがついており、インターホンにはTVモニタもついているため、相手の顔を確認してから来客対応することができます。
おしゃれなデザイナーズ物件!人気の南向き・フローリングのお部屋。角部屋でもあるため、周囲の居住者の生活音も気になりにくい場所です。室内にはウォークインクローゼットがありますので、たくさんの荷物も効率的に収納ができます。キッチンはシステムキッチン仕様になっていますので、お料理好きの方にもぴったり。バス・トイレは別なので、のんびりお風呂タイムも楽しめるでしょう。また、雨の日でも浴室乾燥機を使えば、お洗濯も問題ありません。
通信設備面ではBSアンテナ・CSアンテナがあり、CATVにも対応しているので、おうち時間も充実するでしょう(別途工事、契約料が必要な場合あり)。
建物にはエレベーターがついているので、重い荷物があっても安心。共用部には宅配ボックスが設定されているので、不在の時にも荷物を受け取ることができます。
このお部屋は2階以上に位置しているので、通行人や周囲の住人からの視線が気になりにくく、防犯面でも安心。建物のエントランスはオートロックがついており、インターホンにはTVモニタもついているため、相手の顔を確認してから来客対応することができます。
おしゃれなデザイナーズ物件!人気の南向き・フローリングのお部屋。角部屋でもあるため、周囲の居住者の生活音も気になりにくい場所です。室内にはウォークインクローゼットがありますので、たくさんの荷物も効率的に収納ができます。キッチンはシステムキッチン仕様になっていますので、お料理好きの方にもぴったり。バス・トイレは別なので、のんびりお風呂タイムも楽しめるでしょう。また、雨の日でも浴室乾燥機を使えば、お洗濯も問題ありません。
通信設備面ではBSアンテナ・CSアンテナがあり、CATVにも対応しているので、おうち時間も充実するでしょう(別途工事、契約料が必要な場合あり)。
建物にはエレベーターがついているので、重い荷物があっても安心。共用部には宅配ボックスが設定されているので、不在の時にも荷物を受け取ることができます。
お金・契約の情報
※「-」と表示されているものは、実際は料金が発生するものもございます。詳細はお問い合わせください。
| 家賃 | 14万円 | 管理費・共益費 | 1万円 |
|---|---|---|---|
| 敷金 | 15万円 | 礼金 | 30万円 |
| 入居決定でお祝い金最大100,000円 | |||
| 保証金 | - | 償却・敷引 | - |
| 住宅保険料 | - | 更新料 | - |
| 保証会社利用 | 必須 | 保証会社名 | - |
| 保証会社費用 | - | 保証会社備考 | 保証会社利用必 法人契約ご希望の際は06-6947-5128までお電話ください。 |
| 契約形態 | 定期借家 | 契約期間 | 2年 |
| 入居・引渡期間 | 相談 | 現況 | - |
| 契約備考 | 巡回管理/ご案内は現地でのお待ち合わせも可能です。また当店ではオンラインでのご内見も可能です。お気軽にお問合せくださいませ。アスモ不動産TEL 2LDK 二人入居可/子供可 定期借家2年 損保【要】 バストイレ別、バルコニー、エアコン、ガスコンロ対応、フローリング、シャワー付洗面台、TVインターホン、浴室乾燥機、オートロック、室内洗濯置、シューズボックス、システムキッチン、南向き、追焚機能浴室、角住戸、温水洗浄便座、脱衣所、エレベーター、洗面所独立、洗面化粧台、駐輪場、宅配ボックス、CATV、外壁タイル張り、閑静な住宅地、BS・CS、3口以上コンロ、防犯カメラ、独立型キッチン、分譲賃貸、オートバス、グリル付、全居室洋室、振分、ウォークインクロゼット、バイク置場、24時間緊急通報システム、全居室フローリング、デザイナーズ、2沿線利用可、ディンプルキー、ダブルロックキー、保証金不要、バリアフリー、24時間換気システム、南面2室、フラットフロア、耐震構造、2駅利用可、3駅以上利用可、3沿線以上利用可、駅徒歩10分以内、24時間ゴミ出し可、敷地内ごみ置き場、都市ガス、洗面所にドア、三面鏡付洗面化粧台、南面バルコニー、IT重説対応物件、初期費用カード決済可 | ||
部屋の情報
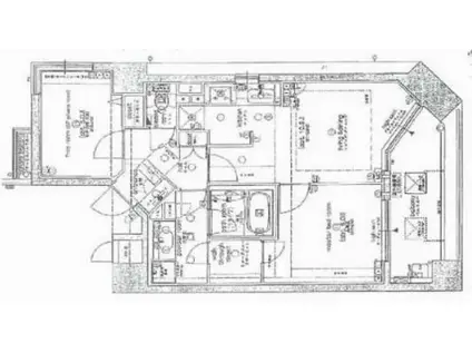
| 間取り | 2LDK | 専有面積 | 53.25m2 |
|---|---|---|---|
| 所在階 / 向き | 2階 / 南 | バルコニー面積 | - |
| 水道 / ガス | - | ||
| 設備 | バス・トイレ別、2階以上、オートロック、テレビドアホン、宅配ボックス、浴室乾燥機、ウォークインクローゼット、追い焚き、システムキッチン、エアコン、エレベーター、温水洗浄便座、南向き、角部屋、バルコニー、フローリング、洗髪洗面化粧台、2口コンロ、コンロ:ガス、デザイナーズ、CATV、CSアンテナ、BSアンテナ、洗濯機:室内 | ||
| 当社物件ID | 158398384 | ||
建物の情報
| 建物名 | プロパレス上町台ヴェラージュ | ||
|---|---|---|---|
| 所在地 | 大阪府大阪市中央区上汐 | ||
| 交通 | 地下鉄谷町線 谷町九丁目駅 徒歩6分 地下鉄長堀鶴見緑地線 谷町六丁目駅 徒歩8分 近鉄奈良線 大阪上本町駅 徒歩9分 | ||
| 階数 | 9階建 | 総戸数 | 23戸 |
| 築年月 | 2005年03月 / 築22年 | エレベーター | あり |
| 駐車場 | 近隣 100m25000円 | バイク置き場 | あり |
| 駐輪場 | あり | 管理人/管理会社 | - |
| 周辺環境 | その他 近鉄百貨店 上本町店(その他)まで771m その他 阪急オアシス 上本町店(スーパー)まで308m その他 ファミリーマート 谷町七丁目店(コンビニ)まで399m その他 セリア上本町ユフラ店(その他)まで880m その他 つくしんぼ保育園(幼稚園・保育園)まで345m | ||
| 建物種別 | マンション | 建物構造 | RC(鉄筋コンクリート) |
この部屋の取扱い不動産会社
| 会社名 | アスモ不動産(株)天満橋店(SUUMO経由) | ||
|---|---|---|---|
| 所在地 | 大阪府大阪市中央区石町1-1-7 | 交通 | - |
| 営業時間 | 9:00~18:00 | 定休日 | 不定休 |
| 免許番号 | 大阪府知事62969 | 取引態様 | 仲介 |
| 不動産会社管理番号 | 100501673821 | 当社管理番号 | 89 |
| 所属団体 | (一社)大阪府宅地建物取引業協会会員 | ||
| 公正取引協議会 | (公社)近畿地区不動産公正取引協議会加盟 | ||
| 取扱い物件情報 | 物件詳細へ | ||
※各種情報と現状に差異がある場合は、現状優先となります。問い合わせをすることで、より詳しい条件、情報を確認する事ができます。
提供:アスモ不動産(株)天満橋店(SUUMO経由)
この物件が気になったら掲載期限まであと10日
プロパレス上町台ヴェラージュに条件(家賃・エリア)が近い物件一覧
| 写真 | 家賃 管理費等 | 敷金 礼金 | 間取り 専有面積 | 築年数 | 最寄り駅 所在地 | キープ | 詳細 |
|---|---|---|---|---|---|---|---|
アパート ソフィアコート鳥飼A棟(2LDK/2階) | |||||||
| 10万円 8,500円 | なし 18万円 | 2LDK 61.41m2 | 築8年 | 大阪モノレール本線 南摂津駅 徒歩29分 大阪府摂津市鳥飼下2丁目29-15 | 詳細を見る | ||
マンション コンフォリア江坂広芝町(1LDK/9階) | |||||||
| 12.8万円 8,000円 | 12.8万円 なし | 1LDK 36.96m2 | 築9年 | 北大阪急行南北線 江坂駅 徒歩7分 大阪市御堂筋線 東三国駅 徒歩19分 おおさか東線 南吹田駅 徒歩22分 大阪府吹田市広芝町19-13 | 詳細を見る | ||
マンション 阪和線 津久野駅 徒歩20分 築29年(3LDK/3階) | |||||||
![]() | 8.8万円 なし | 5万円 8.8万円 | 3LDK 78m2 | 築29年 | 阪和線 津久野駅 徒歩20分 阪和線 鳳駅 徒歩22分 阪和線 上野芝駅 徒歩30分 大阪府堺市西区平岡町 | 詳細を見る | |
マンション コンフォリア江坂(1K/6階) | |||||||
| 8.6万円 6,000円 | 8.6万円 20万円 | 1K 25.01m2 | 築10年 | 北大阪急行南北線 江坂駅 徒歩5分 阪急電鉄千里線 豊津駅(大阪) 徒歩22分 おおさか東線 南吹田駅 徒歩23分 大阪府吹田市広芝町11-21 | 詳細を見る | ||
マンション MCOURT江坂(1DK/8階) | |||||||
| 8.5万円 1万円 | 9.5万円 19万円 | 1DK 25.91m2 | 築10年 | 阪急電鉄千里線 豊津駅(大阪) 徒歩7分 阪急電鉄千里線 関大前駅 徒歩13分 北大阪急行南北線 江坂駅 徒歩15分 大阪府吹田市垂水町3丁目1-32 | 詳細を見る | ||
アパート ユアメゾン エム(2LDK/3階) | |||||||
| 11.5万円 6,000円 | なし 23万円 | 2LDK 54.86m2 | 築5年 | 阪急電鉄京都線 相川駅 徒歩4分 東海道本線 吹田駅(JR) 徒歩11分 阪急電鉄京都線 上新庄駅 徒歩17分 大阪府吹田市南高浜町24-6 | 詳細を見る | ||
マンション LA PECHE KINO(1LDK/2階) | |||||||
| 10.4万円 1.1万円 | なし 20万円 | 1LDK 40.64m2 | 築5年 | 東海道本線 千里丘駅 徒歩10分 東海道本線 岸辺駅 徒歩13分 阪急電鉄京都線 摂津市駅 徒歩14分 大阪府摂津市千里丘4丁目3-46 | 詳細を見る | ||
マンション ライブガーデン江坂9(1DK/2階) | |||||||
| 8.5万円 1万円 | なし 17万円 | 1DK 28.8m2 | 築4年 | 北大阪急行南北線 江坂駅 徒歩14分 おおさか東線 南吹田駅 徒歩16分 阪急電鉄千里線 豊津駅(大阪) 徒歩18分 大阪府吹田市南金田2丁目8-28 | 詳細を見る | ||

