賃貸マンション
アルファステイツ宍道湖の賃貸物件情報(3LDK/2階)
| 家賃 | 管理費等 | 敷金 | 礼金 | 間取り | 専有面積 |
|---|---|---|---|---|---|
| 12.5万円 | なし | 25万円 | 12.5万円 | 3LDK | 73.38m2 |
入居決定でお祝い金最大100,000円
Point
当店ではご自宅にいながら、スマホ等を使った「オンライン内見」、「オンライン重説」でのご契約手続きまで可能です。非対面で現地(物件)にいるスタッフとWebを使ってリアルタイムで内見できます。
提供:いい部屋ネット大東建託リーシング(株)出雲店(SUUMO経由)

詳細情報 アルファステイツ宍道湖
物件紹介
アルファステイツ宍道湖は一畑電車北松江線松江しんじ湖温泉駅から徒歩7分にあり、駅近で通勤通学に便利なマンションです。
このお部屋は2階以上に位置しているので通行人や周囲の住人からの視線が気になりにくく、建物のエントランスはオートロックがついているので防犯性が高くなっています。
人気の角部屋で周囲の居住者の生活音も気になりにくく、また、フローリングのお部屋なのでお掃除もラクラク。キッチンはシステムキッチン仕様になっていますので、お料理好きの方にもぴったり。バス・トイレは別なので、のんびりお風呂タイムも楽しめるでしょう。また、雨の日でも浴室乾燥機を使えば、お洗濯も問題ありません。
通信設備面ではCATVに対応しているので、おうち時間も充実するでしょう(別途工事、契約料が必要な場合あり)。
床暖房があり、冬も足元から暖かく快適に過ごすことができます。建物にはエレベーターがついているので、重い荷物があっても安心。
このお部屋は2階以上に位置しているので通行人や周囲の住人からの視線が気になりにくく、建物のエントランスはオートロックがついているので防犯性が高くなっています。
人気の角部屋で周囲の居住者の生活音も気になりにくく、また、フローリングのお部屋なのでお掃除もラクラク。キッチンはシステムキッチン仕様になっていますので、お料理好きの方にもぴったり。バス・トイレは別なので、のんびりお風呂タイムも楽しめるでしょう。また、雨の日でも浴室乾燥機を使えば、お洗濯も問題ありません。
通信設備面ではCATVに対応しているので、おうち時間も充実するでしょう(別途工事、契約料が必要な場合あり)。
床暖房があり、冬も足元から暖かく快適に過ごすことができます。建物にはエレベーターがついているので、重い荷物があっても安心。
お金・契約の情報
※「-」と表示されているものは、実際は料金が発生するものもございます。詳細はお問い合わせください。
| 家賃 | 12.5万円 | 管理費・共益費 | なし |
|---|---|---|---|
| 敷金 | 25万円 | 礼金 | 12.5万円 |
| 入居決定でお祝い金最大100,000円 | |||
| 保証金 | - | 償却・敷引 | - |
| 住宅保険料 | - | 更新料 | - |
| 契約形態 | - | 契約期間 | - |
| 入居・引渡期間 | 相談 | 現況 | - |
| 契約備考 | 入居時ネームプレート作製費用として3,300円(税込)必要。 ●保証会社加入必要:初回保証料(賃料総額の40%) / 連帯保証人1名必要 1年毎更新料15,000円 / 賃料等振替手数料毎月440円(税込) ●退去時:ハウスクリーニング費用・カーテンクリーニング費用をご負担頂きます。保険加入情報:住宅総合保険加入要 3LDK 損保【要】 バストイレ別、バルコニー、エアコン、ガスコンロ対応、フローリング、浴室乾燥機、オートロック、室内洗濯置、システムキッチン、追焚機能浴室、角住戸、温水洗浄便座、エレベーター、2口コンロ、駐輪場、CATV、24時間有人管理、床暖房、IT重説対応物件、初期費用カード決済可 | ||
部屋の情報
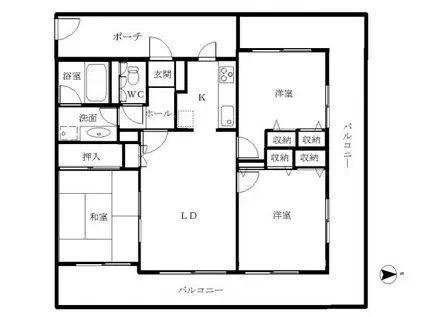
| 間取り | 3LDK | 専有面積 | 73.38m2 |
|---|---|---|---|
| 所在階 / 向き | 2階 / 東 | バルコニー面積 | - |
| 水道 / ガス | - | ||
| 設備 | バス・トイレ別、2階以上、オートロック、浴室乾燥機、追い焚き、システムキッチン、エアコン、エレベーター、温水洗浄便座、角部屋、バルコニー、フローリング、床暖房、2口コンロ、コンロ:ガス、CATV、洗濯機:室内 | ||
| 当社物件ID | 21092094 | ||
建物の情報
| 建物名 | アルファステイツ宍道湖 | ||
|---|---|---|---|
| 所在地 | 島根県松江市西茶町 | ||
| 交通 | 一畑電車北松江線 松江しんじ湖温泉駅 徒歩7分 | ||
| 階数 | 13階建 | 総戸数 | - |
| 築年月 | 2006年04月 / 築20年 | エレベーター | あり |
| 駐車場 | なし | バイク置き場 | - |
| 駐輪場 | あり | 管理人/管理会社 | - |
| 周辺環境 | その他 Verde(ヴェルデ) 中原店(スーパー)まで536m その他 松江市役所(役所)まで322m その他 松江しんじ湖温泉(その他)まで632m | ||
| 建物種別 | マンション | 建物構造 | RC(鉄筋コンクリート) |
この部屋の取扱い不動産会社
| 会社名 | いい部屋ネット大東建託リーシング(株)松江店(SUUMO経由) | ||
|---|---|---|---|
| 所在地 | 島根県松江市西津田2-6-33 西津田テナントB棟1階 | 交通 | - |
| 営業時間 | 10:00~12:30 13:30~18:00 | 定休日 | 火曜日・水曜日 |
| 免許番号 | 国土交通大臣9120 | 取引態様 | 仲介 |
| 不動産会社管理番号 | 100489915878 | 当社管理番号 | 89 |
| 所属団体 | (公財)日本賃貸住宅管理協会会員 | ||
| 公正取引協議会 | (公社)首都圏不動産公正取引協議会加盟 | ||
| 取扱い物件情報 | 物件詳細へ | ||
※各種情報と現状に差異がある場合は、現状優先となります。問い合わせをすることで、より詳しい条件、情報を確認する事ができます。
提供:いい部屋ネット大東建託リーシング(株)松江店(SUUMO経由)
この物件が気になったら掲載期限まであと10日
アルファステイツ宍道湖に条件(家賃・エリア)が近い物件一覧
| 写真 | 家賃 管理費等 | 敷金 礼金 | 間取り 専有面積 | 築年数 | 最寄り駅 所在地 | キープ | 詳細 |
|---|---|---|---|---|---|---|---|
アパート グラティアス A(2LDK/1階) | |||||||
![]() | 7.9万円 3,000円 | なし 7.9万円 | 2LDK 59.61m2 | 築3年 | 島根県松江市黒田町 | 詳細を見る | |
アパート FIRST(1LDK/2階) | |||||||
![]() | 7.5万円 4,000円 | 7.5万円 なし | 1LDK 43.35m2 | 築1年 | JR山陰本線 松江駅 徒歩42分 島根県松江市古志原 | 詳細を見る | |
アパート ルネッサ A・B棟(2LDK/2階) | |||||||
![]() | 7.6万円 2,000円 | なし 7.6万円 | 2LDK 54.07m2 | 築23年 | 島根県出雲市大津朝倉 | 詳細を見る | |
マンション 寺町プラザ(2LDK/3階) | |||||||
![]() | 7.5万円 1万円 | 15万円 7.5万円 | 2LDK 65.32m2 | 築25年 | JR山陰本線 松江駅 徒歩6分 島根県松江市寺町 | 詳細を見る | |
アパート SONNEN GARTEN(2LDK/3階) | |||||||
![]() | 7.6万円 4,500円 | なし 11.4万円 | 2LDK 64.63m2 | 築9年 | 一畑電車北松江線 大津町駅 徒歩20分 島根県出雲市中野美保南 | 詳細を見る | |
マンション ウィステリア天神(2LDK/4階) | |||||||
![]() | 8.3万円 5,000円 | 16.6万円 なし | 2LDK 62.9m2 | 築21年 | JR山陰本線 松江駅 徒歩11分 島根県松江市天神町 | 詳細を見る | |
マンション リベラピエナ(1LDK/3階) | |||||||
![]() | 8.4万円 4,000円 | 8.4万円 8.4万円 | 1LDK 43.2m2 | 築1年 | JR山陰本線 松江駅 徒歩47分 JR山陰本線 乃木駅 徒歩49分 JR山陰本線 東松江駅(島根) 徒歩59分 島根県松江市古志原 | 詳細を見る | |
マンション アルファスマート上乃木II(3LDK/4階) | |||||||
![]() | 13万円 なし | 26万円 13万円 | 3LDK 67.5m2 | 築5年 | JR山陰本線 乃木駅 徒歩33分 島根県松江市上乃木 | 詳細を見る | |








