賃貸マンション
クリオ小田急相模原弐番館の賃貸物件情報(3LDK/2階)
| 家賃 | 管理費等 | 敷金 | 礼金 | 間取り | 専有面積 |
|---|---|---|---|---|---|
| 12.5万円 | 1万円 | 12.5万円 | 12.5万円 | 3LDK | 62.22m2 |
入居決定でお祝い金最大100,000円
- 保証金
- -
- 償却・敷引
- -
- 築年数
- 築28年
- 所在階
- 2階
- 向き
- 南西
Point
嬉しい分譲マンションの高クオリティーマンションです。周辺環境も充実でファミリーの方、新婚さんの方にもおすすめの好立地物件です!1年未満の短期解約の場合、違約金として総賃料1ヶ月分をお支払い頂きます。
提供:YOAKE不動産 合同会社YOAKE(SUUMO経由)

詳細情報 クリオ小田急相模原弐番館
物件紹介
クリオ小田急相模原弐番館は小田急小田原線小田急相模原駅から徒歩7分にあり、駅近で通勤通学に便利なマンションです。
このお部屋は2階以上に位置しているので、通行人や周囲の住人からの視線が気になりにくく、防犯面でも安心。建物のエントランスはオートロックがついており、インターホンにはTVモニタもついているため、相手の顔を確認してから来客対応することができます。
人気の南向きのお部屋。また、フローリングなのでお掃除もラクラク。キッチンはシステムキッチン仕様になっていますので、お料理好きの方にもぴったり。バス・トイレは別なので、のんびりお風呂タイムも楽しめるでしょう。また、雨の日でも浴室乾燥機を使えば、お洗濯も問題ありません。
通信設備面ではBSアンテナ・CSアンテナがあり、CATVにも対応しているので、おうち時間も充実するでしょう(別途工事、契約料が必要な場合あり)。
建物にはエレベーターがついているので、重い荷物があっても安心。共用部には宅配ボックスが設定されているので、不在の時にも荷物を受け取ることができます。
このお部屋は2階以上に位置しているので、通行人や周囲の住人からの視線が気になりにくく、防犯面でも安心。建物のエントランスはオートロックがついており、インターホンにはTVモニタもついているため、相手の顔を確認してから来客対応することができます。
人気の南向きのお部屋。また、フローリングなのでお掃除もラクラク。キッチンはシステムキッチン仕様になっていますので、お料理好きの方にもぴったり。バス・トイレは別なので、のんびりお風呂タイムも楽しめるでしょう。また、雨の日でも浴室乾燥機を使えば、お洗濯も問題ありません。
通信設備面ではBSアンテナ・CSアンテナがあり、CATVにも対応しているので、おうち時間も充実するでしょう(別途工事、契約料が必要な場合あり)。
建物にはエレベーターがついているので、重い荷物があっても安心。共用部には宅配ボックスが設定されているので、不在の時にも荷物を受け取ることができます。
お金・契約の情報
※「-」と表示されているものは、実際は料金が発生するものもございます。詳細はお問い合わせください。
| 家賃 | 12.5万円 | 管理費・共益費 | 1万円 |
|---|---|---|---|
| 敷金 | 12.5万円 | 礼金 | 12.5万円 |
| 入居決定でお祝い金最大100,000円 | |||
| 保証金 | - | 償却・敷引 | - |
| 住宅保険料 | - | 更新料 | - |
| 保証会社利用 | 必須 | 保証会社名 | - |
| 保証会社費用 | - | 保証会社備考 | 保証会社利用必 初回50% 月額1500円 |
| 契約形態 | - | 契約期間 | - |
| 入居・引渡期間 | 即時 | 現況 | - |
| 契約備考 | オートロック、モニター付インターホン、宅配BOX、都市ガス、防犯カメラ、エレベーター、温水洗浄便座、追い焚き、浴室乾燥機、バストイレ別、室内洗濯機置場、エアコン、エアコン2台以上、システムキッチン、南向き、バルコニー【お部屋探しはクチコミ優良店のYOAKE不動産へ】積水ハウスの全国不動産パートナー。強引・しつこい営業はしません。初期費用クレカ決済可能。クレカが無くても分割・後払いが可能です! 合計1.65万円(内訳:アクト安心ライフ241.65万円) 更新料 新賃料1.00ヶ月分 3LDK 二人入居可 普通借家2年 損保【2.2万円2年】 バストイレ別、バルコニー、エアコン、ガスコンロ対応、クロゼット、フローリング、TVインターホン、浴室乾燥機、オートロック、室内洗濯置、シューズボックス、システムキッチン、南向き、追焚機能浴室、温水洗浄便座、脱衣所、エレベーター、洗面所独立、洗面化粧台、駐輪場、宅配ボックス、CATV、外壁タイル張り、即入居可、BS・CS、3口以上コンロ、対面式キッチン、防犯カメラ、独立型キッチン、全居室収納、分譲賃貸、オートバス、グリル付、振分、保証人不要、バイク置場、ガスレンジ付、2沿線利用可、エアコン2台、ディンプルキー、CS、保証金不要、クロゼット2ヶ所、南面2室、南面リビング、一部フローリング、2駅利用可、3駅以上利用可、駅徒歩10分以内、バス停徒歩3分以内、敷地内ごみ置き場、南西向き、LDK12畳以上、和室、都市ガス、洗面所にドア、南面バルコニー、BS、IT重説対応物件、初期費用カード決済可 | ||
部屋の情報
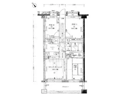
| 間取り | 3LDK | 専有面積 | 62.22m2 |
|---|---|---|---|
| 所在階 / 向き | 2階 / 南西 | バルコニー面積 | - |
| 水道 / ガス | - | ||
| 設備 | バス・トイレ別、2階以上、オートロック、テレビドアホン、宅配ボックス、浴室乾燥機、追い焚き、システムキッチン、エアコン、エレベーター、温水洗浄便座、南向き、バルコニー、フローリング、洗髪洗面化粧台、2口コンロ、コンロ:ガス、CATV、CSアンテナ、BSアンテナ、洗濯機:室内 | ||
| 当社物件ID | 12191680 | ||
建物の情報
| 建物名 | クリオ小田急相模原弐番館 | ||
|---|---|---|---|
| 所在地 | 神奈川県座間市相模が丘 | ||
| 交通 | 小田急小田原線 小田急相模原駅 徒歩7分 小田急小田原線 相武台前駅 徒歩23分 小田急江ノ島線 東林間駅 徒歩29分 | ||
| 階数 | 地下1地上7階建 | 総戸数 | - |
| 築年月 | 1998年09月 / 築28年 | エレベーター | あり |
| 駐車場 | なし | バイク置き場 | あり |
| 駐輪場 | あり | 管理人/管理会社 | - |
| 周辺環境 | その他 デニーズ座間店(飲食店)まで17m その他 マクドナルド 座間相模が丘店(飲食店)まで200m その他 カラオケWAVE小田急相模原店(その他)まで209m その他 セブンイレブン 座間相模が丘1丁目店(コンビニ)まで138m その他 ファミリーマート 座間相模が丘一丁目店(コンビニ)まで310m その他 クリエイト薬局小田急相模原店(ドラッグストア)まで400m | ||
| 建物種別 | マンション | 建物構造 | RC(鉄筋コンクリート) |
この部屋の取扱い不動産会社
| 会社名 | YOAKE不動産 合同会社YOAKE(SUUMO経由) | ||
|---|---|---|---|
| 所在地 | 神奈川県大和市中央林間5-7-25 | 交通 | - |
| 営業時間 | 10時から18時(時間外もご相談ください) | 定休日 | 水曜日 |
| 免許番号 | 神奈川県知事31828 | 取引態様 | 仲介 |
| 不動産会社管理番号 | 100484771743 | 当社管理番号 | 89 |
| 所属団体 | (公社)全日本不動産協会神奈川県本部会員 | ||
| 公正取引協議会 | (公社)首都圏不動産公正取引協議会加盟 | ||
| 取扱い物件情報 | 物件詳細へ | ||
※各種情報と現状に差異がある場合は、現状優先となります。問い合わせをすることで、より詳しい条件、情報を確認する事ができます。
提供:YOAKE不動産 合同会社YOAKE(SUUMO経由)
この物件が気になったら掲載期限まであと10日
クリオ小田急相模原弐番館に条件(家賃・エリア)が近い物件一覧
| 写真 | 家賃 管理費等 | 敷金 礼金 | 間取り 専有面積 | 築年数 | 最寄り駅 所在地 | キープ | 詳細 |
|---|---|---|---|---|---|---|---|
マンション グロリア レジデンス(2LDK/4階) | |||||||
![]() | 8.7万円 5,800円 | なし 8.7万円 | 2LDK 60.18m2 | 築12年 | JR相模線 門沢橋駅 徒歩6分 JR相模線 社家駅 徒歩22分 神奈川県海老名市門沢橋 | 詳細を見る | |
アパート CRESCENT(1LDK/1階) | |||||||
![]() | 9.5万円 6,000円 | 9.5万円 19万円 | 1LDK 44.57m2 | 築1年 | 相鉄本線 かしわ台駅 徒歩9分 相鉄本線 さがみ野駅 徒歩28分 小田急小田原線 座間駅 徒歩39分 神奈川県海老名市柏ケ谷 | 詳細を見る | |
マンション クレイノタウンコート(1K/3階) | |||||||
![]() | 8.6万円 5,000円 | なし なし | 1K 24.84m2 | 築5年 | 小田急電鉄小田原線 相武台前駅 徒歩8分 神奈川県相模原市南区相武台2丁目 | 詳細を見る | |
マンション レオパレスさくら(2DK/2階) | |||||||
![]() | 7.9万円 7,500円 | なし 7.9万円 | 2DK 39.74m2 | 築29年 | 相模鉄道本線 さがみ野駅 徒歩9分 神奈川県座間市東原4丁目 | 詳細を見る | |
マンション BONO相模大野スカイフラッツ(1K/8階) | |||||||
![]() | 8.7万円 6,000円 | 8.7万円 8.7万円 | 1K 25.18m2 | 築13年 | 小田急小田原線 相模大野駅 徒歩3分 JR横浜線 町田駅 徒歩23分 小田急江ノ島線 東林間駅 徒歩28分 神奈川県相模原市南区相模大野 | 詳細を見る | |
マンション ライオンズマンション厚木(4LDK/2階) | |||||||
![]() | 8.8万円 6,000円 | 17.6万円 8.8万円 | 4LDK 74.56m2 | 築45年 | 小田急小田原線 本厚木駅 徒歩11分 JR相模線 厚木駅 徒歩26分 神奈川県厚木市水引 | 詳細を見る | |
アパート ヤマトヴィレッジパーク(1LDK/2階) | |||||||
![]() | 7.8万円 5,000円 | なし 7.8万円 | 1LDK 35.62m2 | 築1年 | 小田急江ノ島線 大和駅(神奈川) 徒歩13分 小田急江ノ島線 桜ケ丘駅 徒歩19分 相鉄本線 瀬谷駅 徒歩30分 神奈川県大和市中央 | 詳細を見る | |
アパート ハイロフト海老名(1K/1階) | |||||||
![]() | 7.5万円 3,000円 | なし なし | 1K 20m2 | 新築 | 小田急小田原線 海老名駅 徒歩11分 相鉄本線 かしわ台駅 徒歩32分 JR相模線 入谷駅(神奈川) 徒歩33分 神奈川県海老名市国分北 | 詳細を見る | |









