賃貸マンション
リブリ・パルテールの賃貸物件情報(1K/3階)
| 家賃 | 管理費等 | 敷金 | 礼金 | 間取り | 専有面積 |
|---|---|---|---|---|---|
| 7.4万円 | 4,000円 | なし | 7.4万円 | 1K | 21.01m2 |
入居決定でお祝い金最大100,000円
- 保証金
- -
- 償却・敷引
- -
- 築年数
- 築14年
- 所在階
- 3階
- 向き
- 南西
Point
セキュリティ面は、オートロック・TVインターホンなどを設置しているので安全面でも優れております。
提供:(株)クレアスレント横浜店(SUUMO経由)

詳細情報 リブリ・パルテール
物件紹介
リブリ・パルテールはブルーライン吉野町駅から徒歩3分にあり、駅近で通勤通学に便利なマンションです。
このお部屋は2階以上に位置しているので、通行人や周囲の住人からの視線が気になりにくく、防犯面でも安心。建物のエントランスはオートロックがついており、インターホンにはTVモニタもついているため、相手の顔を確認してから来客対応することができます。
おしゃれなデザイナーズ物件!人気の南向き・フローリングのお部屋。角部屋でもあるため、周囲の居住者の生活音も気になりにくい場所です。キッチンはシステムキッチン仕様になっていますので、お料理好きの方にもぴったり。バス・トイレは別なので、のんびりお風呂タイムも楽しめるでしょう。また、雨の日でも浴室乾燥機を使えば、お洗濯も問題ありません。
通信設備面では、インターネットが無料で使えるので、月々の出費を抑えられるのも魅力です。また、BSアンテナ・CSアンテナがありCATVにも対応しているので、おうち時間も充実するでしょう(別途工事、BS・CS・CATVの契約料等が必要な場合あり)。
このお部屋は2階以上に位置しているので、通行人や周囲の住人からの視線が気になりにくく、防犯面でも安心。建物のエントランスはオートロックがついており、インターホンにはTVモニタもついているため、相手の顔を確認してから来客対応することができます。
おしゃれなデザイナーズ物件!人気の南向き・フローリングのお部屋。角部屋でもあるため、周囲の居住者の生活音も気になりにくい場所です。キッチンはシステムキッチン仕様になっていますので、お料理好きの方にもぴったり。バス・トイレは別なので、のんびりお風呂タイムも楽しめるでしょう。また、雨の日でも浴室乾燥機を使えば、お洗濯も問題ありません。
通信設備面では、インターネットが無料で使えるので、月々の出費を抑えられるのも魅力です。また、BSアンテナ・CSアンテナがありCATVにも対応しているので、おうち時間も充実するでしょう(別途工事、BS・CS・CATVの契約料等が必要な場合あり)。
お金・契約の情報
※「-」と表示されているものは、実際は料金が発生するものもございます。詳細はお問い合わせください。
| 家賃 | 7.4万円 | 管理費・共益費 | 4,000円 |
|---|---|---|---|
| 敷金 | なし | 礼金 | 7.4万円 |
| 入居決定でお祝い金最大100,000円 | |||
| 保証金 | - | 償却・敷引 | - |
| 住宅保険料 | 1円 | 更新料 | - |
| その他費用 | 退去時ルームクリーニング費用:3.63万円、16500円:、リブリクラブ会員費(2年間):7,700円 | ||
| 保証会社利用 | 必須 | 保証会社名 | - |
| 保証会社費用 | - | 保証会社備考 | 基本料:月額支払合計の100% 、月額料:月額支払合計の1.1%、口振手数料:330円/月 |
| 契約形態 | - | 契約期間 | 2年 |
| 入居・引渡期間 | 2026年03月中旬 | 現況 | - |
| 入居可能条件 | 単身者限定、ペット不可 | ||
| 契約備考 | 1年未満で解約する場合、違約金として賃料総額1ヶ月分相当額 鍵交換費用:24200 室内清掃費用:36300 その他設備/条件:室内洗濯機置き場、独立洗面台、セキュリティ会社有、クローゼット、シューズボックス | ||
部屋の情報
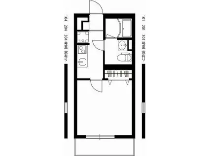
| 間取り | 1K | 専有面積 | 21.01m2 |
|---|---|---|---|
| 間取り詳細 | 洋室(6帖) | ||
| 所在階 / 向き | 3階 / 南西 | バルコニー面積 | - |
| 水道 / ガス | 水道【公営】、ガス【都市】 | ||
| 設備 | バス・トイレ別、オートロック、テレビドアホン、浴室乾燥機、光ファイバー対応、システムキッチン、エアコン、温水洗浄便座、角部屋、バルコニー、フローリング、洗髪洗面化粧台、2口コンロ、コンロ:ガス、CATV、シャワー、給湯 | ||
| 当社物件ID | 12651695 | ||
建物の情報
| 建物名 | リブリ・パルテール | ||
|---|---|---|---|
| 所在地 | 神奈川県横浜市南区新川町2丁目 | ||
| 交通 | 横浜市ブルーライン 吉野町駅 徒歩4分 横浜市ブルーライン 阪東橋駅 徒歩8分 | ||
| 階数 | 3階建 | 総戸数 | - |
| 築年月 | 2012年03月 / 築14年 | エレベーター | - |
| 駐車場 | - | バイク置き場 | - |
| 駐輪場 | - | 管理人/管理会社 | - |
| 周辺環境 | その他 ドラッグストア その他 公園 その他 銀行 その他 * | ||
| 建物種別 | マンション | 建物構造 | 鉄骨造 |
この部屋の取扱い不動産会社
| 会社名 | ハウスコム東神奈川株式会社 横浜店 | ||
|---|---|---|---|
| 所在地 | 神奈川県横浜市西区20-2共栄ビル1階 | 交通 | - |
| 営業時間 | 10:00~18:00 | 定休日 | - |
| 免許番号 | 神奈川県知事(1)第31769号 | 取引態様 | 仲介 |
| 不動産会社管理番号 | HC2-859113-303-0054 | 当社管理番号 | 468 |
| 所属団体 | 、 | ||
| 取扱い物件情報 | 物件詳細へ | ||
※各種情報と現状に差異がある場合は、現状優先となります。問い合わせをすることで、より詳しい条件、情報を確認する事ができます。
提供:ハウスコム東神奈川株式会社 横浜店
この物件が気になったら掲載期限まであと5日
リブリ・パルテールに条件(家賃・エリア)が近い物件一覧
| 写真 | 家賃 管理費等 | 敷金 礼金 | 間取り 専有面積 | 築年数 | 最寄り駅 所在地 | キープ | 詳細 |
|---|---|---|---|---|---|---|---|
マンション クラブハウス(2DK/3階) | |||||||
![]() | 7.4万円 3,000円 | 7.4万円 7.4万円 | 2DK 47.03m2 | 築34年 | JR南武線 武蔵中原駅 徒歩29分 東急東横線 日吉駅(神奈川) 徒歩30分 東急東横線 元住吉駅 徒歩33分 神奈川県川崎市高津区蟹ケ谷 | 詳細を見る | |
マンション レグラス横浜吉野町サウスレグラスヨコハマヨシノチョウサウス(1K/5階) | |||||||
![]() | 6.7万円 1.5万円 | なし 6.7万円 | 1K 25.8m2 | 築19年 | ブルーライン 蒔田駅 徒歩8分 ブルーライン 吉野町駅 徒歩9分 神奈川県横浜市南区堀ノ内町 | 詳細を見る | |
アパート グランシード田中参番館(1DK/2階) | |||||||
![]() | 5.9万円 5,500円 | なし 5.9万円 | 1DK 28m2 | 築23年 | JR根岸線 本郷台駅 徒歩10分 JR東海道本線 大船駅 徒歩23分 JR根岸線 大船駅 徒歩23分 神奈川県鎌倉市岩瀬 | 詳細を見る | |
マンション メインステージ横濱伊勢佐木II(1K/11階) | |||||||
![]() | 8万円 1.5万円 | なし 8万円 | 1K 20.95m2 | 築9年 | ブルーライン 伊勢佐木長者町駅 徒歩6分 JR京浜東北線 関内駅 徒歩15分 京急本線 黄金町駅 徒歩15分 神奈川県横浜市南区永楽町 | 詳細を見る | |
アパート カーサ白子(1DK/2階) | |||||||
![]() | 5.3万円 2,000円 | 5.3万円 なし | 1DK 19m2 | 築58年 | JR南武線 小田栄駅 徒歩9分 神奈川県川崎市川崎区渡田東町 | 詳細を見る | |
アパート トライムパレス(1K/2階) | |||||||
![]() | 5万円 3,000円 | なし なし | 1K 17.01m2 | 築35年 | 京浜急行電鉄本線 追浜駅 徒歩5分 神奈川県横須賀市追浜南町1丁目 | 詳細を見る | |
マンション ルーチェ南生田(2DK/3階) | |||||||
![]() | 7万円 4,000円 | 7万円 なし | 2DK 42.04m2 | 築33年 | 小田急線 生田駅(神奈川) 徒歩25分 小田急線 読売ランド前駅 徒歩26分 神奈川県川崎市多摩区南生田 | 詳細を見る | |
アパート ジュネス向ヶ丘(ワンルーム/1階) | |||||||
![]() | 5万円 なし | 5万円 なし | ワンルーム 19.04m2 | 築34年 | 小田急線 向ケ丘遊園駅 徒歩13分 JR南武線 登戸駅 徒歩15分 JR南武線 中野島駅 徒歩15分 神奈川県川崎市多摩区登戸 | 詳細を見る | |








