賃貸マンション
HARUMI FLAG SUN VILLAGE C棟 晴海フラッグサンの賃貸物件情報(2LDK/7階)
| 家賃 | 管理費等 | 敷金 | 礼金 | 間取り | 専有面積 |
|---|---|---|---|---|---|
| 28万円 | 2万円 | 28万円 | 28万円 | 2LDK | 67.79m2 |
入居決定でお祝い金最大100,000円
- 保証金
- -
- 償却・敷引
- -
- 築年数
- 築3年
- 所在階
- 7階
- 向き
- 南東
Point
◆エリア成約数No.1!Google口コミ数&評価No.1!◆当社グループ引越業者での荷造り5時間無料サービス有◆ご成約者様限定で毎月抽選でディズニーペアチケットプレゼント中◆購入・売却もお任せ!◆
提供:みんなのへや新橋店(株)Lotus Link(SUUMO経由)

詳細情報 HARUMI FLAG SUN VILLAGE C棟 晴海フラッグサン
物件紹介
HARUMI FLAG SUN VILLAGE C棟 晴海フラッグサンは都営大江戸線勝どき駅から徒歩17分にあるマンションです。
このお部屋は2階以上に位置しているので、通行人や周囲の住人からの視線が気になりにくく、防犯面でも安心。建物のエントランスはオートロックがついており、インターホンにはTVモニタもついているため、相手の顔を確認してから来客対応することができます。
人気の南向きのお部屋。また、フローリングなのでお掃除もラクラク。キッチンはシステムキッチン仕様になっていますので、お料理好きの方にもぴったり。バス・トイレは別なので、のんびりお風呂タイムも楽しめるでしょう。また、雨の日でも浴室乾燥機を使えば、お洗濯も問題ありません。
床暖房があり、冬も足元から暖かく快適に過ごすことができます。建物にはエレベーターがついているので、重い荷物があっても安心。共用部には宅配ボックスが設定されているので、不在の時にも荷物を受け取ることができます。また、ペット飼育の相談ができますので、あなたの大切な家族の一員も快適に暮らせるか、ぜひ確認してみてください。
このお部屋は2階以上に位置しているので、通行人や周囲の住人からの視線が気になりにくく、防犯面でも安心。建物のエントランスはオートロックがついており、インターホンにはTVモニタもついているため、相手の顔を確認してから来客対応することができます。
人気の南向きのお部屋。また、フローリングなのでお掃除もラクラク。キッチンはシステムキッチン仕様になっていますので、お料理好きの方にもぴったり。バス・トイレは別なので、のんびりお風呂タイムも楽しめるでしょう。また、雨の日でも浴室乾燥機を使えば、お洗濯も問題ありません。
床暖房があり、冬も足元から暖かく快適に過ごすことができます。建物にはエレベーターがついているので、重い荷物があっても安心。共用部には宅配ボックスが設定されているので、不在の時にも荷物を受け取ることができます。また、ペット飼育の相談ができますので、あなたの大切な家族の一員も快適に暮らせるか、ぜひ確認してみてください。
お金・契約の情報
※「-」と表示されているものは、実際は料金が発生するものもございます。詳細はお問い合わせください。
| 家賃 | 28万円 | 管理費・共益費 | 2万円 |
|---|---|---|---|
| 敷金 | 28万円 | 礼金 | 28万円 |
| 入居決定でお祝い金最大100,000円 | |||
| 保証金 | - | 償却・敷引 | - |
| 住宅保険料 | - | 更新料 | - |
| 保証会社利用 | 必須 | 保証会社名 | - |
| 保証会社費用 | - | 保証会社備考 | 保証会社利用必 契約時総賃料:50% 100% (ジェイリース・新日本保証) 月額継続保証料:1.2% |
| 契約形態 | - | 契約期間 | - |
| 入居・引渡期間 | 即時 | 現況 | - |
| 入居可能条件 | ペット相談 | ||
| 契約備考 | ◆本物件の諸条件、その他ご質問は、迅速対応可能なお電話でのお問い合わせがおすすめです(通話料無料)※メールでのお問い合わせの際は電話番号を記載して頂きますとスムーズなご案内が可能です◆住宅ローンや資金計画の無料相談も承ります! 合計5.28万円(内訳:みんなの安心24/1.98万円事務手数料/1.65万円除菌抗菌サービス/1.65万円) 更新料 新賃料1.00ヶ月分 2LDK 二人入居可/子供可/ペット相談 普通借家2年 損保【2万円2年】 バストイレ別、バルコニー、エアコン、ガスコンロ対応、クロゼット、フローリング、TVインターホン、浴室乾燥機、オートロック、室内洗濯置、シューズボックス、システムキッチン、追焚機能浴室、温水洗浄便座、脱衣所、エレベーター、洗面所独立、駐輪場、宅配ボックス、即入居可、3口以上コンロ、対面式キッチン、防犯カメラ、ペット相談、分譲賃貸、グリル付、全居室洋室、振分、カードキー、全居室フローリング、ガスレンジ付、2沿線利用可、エアコン2台、LDK15畳以上、ディンプルキー、浄水器、床暖房、食器洗乾燥機、トランクルーム、ダブルロックキー、保証金不要、ディスポーザー、24時間換気システム、フロントサービス、クロゼット2ヶ所、ミストサウナ、エレベーター2基、耐震構造、2駅利用可、3駅以上利用可、3沿線以上利用可、ゲストルーム、24時間ゴミ出し可、敷地内ごみ置き場、セキュリティ会社加入済、LDK12畳以上、備付食器棚、都市ガス、タンクレストイレ、初期費用カード決済可 敷金積み増し【ペット飼育の場合敷金2ヶ月(総額)】 | ||
部屋の情報
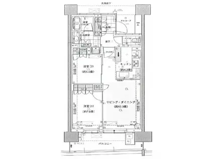
| 間取り | 2LDK | 専有面積 | 67.79m2 |
|---|---|---|---|
| 所在階 / 向き | 7階 / 南東 | バルコニー面積 | - |
| 水道 / ガス | - | ||
| 設備 | バス・トイレ別、2階以上、オートロック、テレビドアホン、宅配ボックス、浴室乾燥機、追い焚き、システムキッチン、エアコン、エレベーター、温水洗浄便座、南向き、バルコニー、フローリング、トランクルーム、洗髪洗面化粧台、床暖房、2口コンロ、コンロ:ガス、洗濯機:室内 | ||
| 当社物件ID | 152583670 | ||
建物の情報
| 建物名 | HARUMI FLAG SUN VILLAGE C棟 晴海フラッグサン | ||
|---|---|---|---|
| 所在地 | 東京都中央区晴海 | ||
| 交通 | 都営大江戸線 勝どき駅 徒歩17分 新交通ゆりかもめ 市場前駅 徒歩20分 東京メトロ有楽町線 月島駅 徒歩23分 | ||
| 階数 | 16階建 | 総戸数 | 686戸 |
| 築年月 | 2023年11月 / 築3年 | エレベーター | あり |
| 駐車場 | なし | バイク置き場 | - |
| 駐輪場 | あり | 管理人/管理会社 | - |
| 周辺環境 | その他 ほっとプラザはるみ(その他)まで184m その他 三井ショッピングパーク ららテラス HARUMI FLAG(スーパー)まで346m その他 サミットストア ららテラス HARUMI FLAG店(スーパー)まで125m その他 ザ東京タワーズクリニック(病院)まで701m その他 マルエツ勝どき六丁目店(スーパー)まで1042m その他 三井のカーシェアーズ ららテラス HARUMI FLAG(ショッピングセンター)まで219m | ||
| 建物種別 | マンション | 建物構造 | RC(鉄筋コンクリート) |
この部屋の取扱い不動産会社
| 会社名 | センチュリー21(株)ロータスアセットパートナーズみんなのへや月島ミッドタワーグランド店(SUUMO経由) | ||
|---|---|---|---|
| 所在地 | 東京都中央区月島1-22-1 MID TOWER GRAND 1階 | 交通 | - |
| 営業時間 | 9:30~18:30※営業時間外もご相談ください | 定休日 | 年中無休 |
| 免許番号 | 東京都知事106029 | 取引態様 | 仲介 |
| 不動産会社管理番号 | 100477570296 | 当社管理番号 | 89 |
| 所属団体 | (公社)全日本不動産協会東京都本部会員 | ||
| 公正取引協議会 | (公社)首都圏不動産公正取引協議会加盟 | ||
| 取扱い物件情報 | 物件詳細へ | ||
※各種情報と現状に差異がある場合は、現状優先となります。問い合わせをすることで、より詳しい条件、情報を確認する事ができます。
提供:センチュリー21(株)ロータスアセットパートナーズみんなのへや月島ミッドタワーグランド店(SUUMO経由)
この物件が気になったら掲載期限まであと10日
HARUMI FLAG SUN VILLAGE C棟 晴海フラッグサンに条件(家賃・エリア)が近い物件一覧
| 写真 | 家賃 管理費等 | 敷金 礼金 | 間取り 専有面積 | 築年数 | 最寄り駅 所在地 | キープ | 詳細 |
|---|---|---|---|---|---|---|---|
マンション FURVAL八丁堀(1LDK/1階) | |||||||
![]() | 26.9万円 1.1万円 | なし 26.9万円 | 1LDK 40.04m2 | 築2年 | 東京地下鉄日比谷線 八丁堀駅(東京) 徒歩4分 京葉線 八丁堀駅(東京) 徒歩4分 東京地下鉄東西線 茅場町駅 徒歩10分 東京都中央区新川2丁目 | 詳細を見る | |
マンション GENOVIA両国ⅥGREEN VEIL(ワンルーム/2階) | |||||||
![]() | 20万円 なし | なし なし | ワンルーム 26.53m2 | 築4年 | 東京都大江戸線 両国駅 徒歩9分 東京都新宿線 菊川駅(東京) 徒歩10分 総武・中央緩行線 錦糸町駅 徒歩11分 東京都墨田区緑3丁目 | 詳細を見る | |
マンション スパシエリーヴァ浅草(1LDK/14階) | |||||||
![]() | 17万円 5,000円 | 17万円 17万円 | 1LDK 44.14m2 | 築19年 | 東武伊勢崎・大師線 浅草駅(東武・都営・メトロ) 徒歩14分 東京地下鉄銀座線 浅草駅(東武・都営・メトロ) 徒歩15分 つくばエクスプレス 浅草駅(つくばEXP) 徒歩19分 東京都台東区今戸1丁目 | 詳細を見る | |
マンション ガリシア森下Ⅴ(1LDK/5階) | |||||||
![]() | 20.8万円 1.5万円 | なし なし | 1LDK 42.56m2 | 築5年 | 東京都大江戸線 森下駅(東京) 徒歩4分 総武・中央緩行線 両国駅 徒歩14分 東京都墨田区千歳3丁目 | 詳細を見る | |
マンション CASSIA上野入谷(1LDK/2階) | |||||||
![]() | 17.3万円 1.5万円 | 17.3万円 17.3万円 | 1LDK 41.39m2 | 築6年 | 東京地下鉄日比谷線 入谷駅(東京) 徒歩6分 東京地下鉄日比谷線 三ノ輪駅 徒歩8分 東京都台東区竜泉1丁目 | 詳細を見る | |
マンション グロース錦糸町ミルーナヒルズ(1LDK/5階) | |||||||
![]() | 18.3万円 1.5万円 | なし 18.3万円 | 1LDK 42.24m2 | 築13年 | 東京都新宿線 菊川駅(東京) 徒歩7分 東京地下鉄半蔵門線 住吉駅(東京) 徒歩12分 総武・中央緩行線 錦糸町駅 徒歩14分 東京都墨田区立川4丁目 | 詳細を見る | |
一戸建て 東京地下鉄東西線 木場駅 徒歩7分 築10年(2LDK) | |||||||
![]() | 24万円 なし | 48万円 24万円 | 2LDK 70.43m2 | 築10年 | 東京地下鉄東西線 木場駅 徒歩7分 東京都大江戸線 門前仲町駅 徒歩17分 京葉線 越中島駅 徒歩19分 東京都江東区木場6丁目 | 詳細を見る | |
マンション ジーグランデ森下(1LDK/9階) | |||||||
![]() | 21万円 1万円 | なし なし | 1LDK 44.03m2 | 築1年 | 東京都新宿線 森下駅(東京) 徒歩5分 東京都大江戸線 両国駅 徒歩9分 総武・中央緩行線 両国駅 徒歩9分 東京都墨田区千歳3丁目 | 詳細を見る | |








