賃貸マンション
アビリティ東本町の賃貸物件情報(3LDK/7階)
| 家賃 | 管理費等 | 敷金 | 礼金 | 間取り | 専有面積 |
|---|---|---|---|---|---|
| 6.9万円 | 2,000円 | 13.8万円 | 6.9万円 | 3LDK | 67.95m2 |
入居決定でお祝い金最大100,000円
- 保証金
- -
- 償却・敷引
- -
- 築年数
- 築24年
- 所在階
- 7階
- 向き
- -
Point
忙しい朝でも鏡を見ながらサッと身支度を整えられる洗面化粧台があります。収納はクロゼット・シューズボックスなど豊富なので、広々と空間を利用することも可能です。目的に応じて選べる2駅利用可能な物件です。こ
提供:(株)和幸不動産(SUUMO経由)

詳細情報 アビリティ東本町
物件紹介
アビリティ東本町はJR宇部線琴芝駅から徒歩11分にあるマンションです。
このお部屋は2階以上に位置しているので、通行人や周囲の住人からの視線が気になりにくく、防犯面でも安心です。
フローリングのお部屋なのでお掃除もラクラク。キッチンはシステムキッチン仕様になっていますので、お料理好きの方にもぴったり。また、バス・トイレは別で、のんびりお風呂タイムも楽しめるでしょう。
建物にはエレベーターがついているので、重い荷物があっても安心。
このお部屋は2階以上に位置しているので、通行人や周囲の住人からの視線が気になりにくく、防犯面でも安心です。
フローリングのお部屋なのでお掃除もラクラク。キッチンはシステムキッチン仕様になっていますので、お料理好きの方にもぴったり。また、バス・トイレは別で、のんびりお風呂タイムも楽しめるでしょう。
建物にはエレベーターがついているので、重い荷物があっても安心。
お金・契約の情報
※「-」と表示されているものは、実際は料金が発生するものもございます。詳細はお問い合わせください。
| 家賃 | 6.9万円 | 管理費・共益費 | 2,000円 |
|---|---|---|---|
| 敷金 | 13.8万円 | 礼金 | 6.9万円 |
| 入居決定でお祝い金最大100,000円 | |||
| 保証金 | - | 償却・敷引 | - |
| 住宅保険料 | - | 更新料 | - |
| 契約形態 | - | 契約期間 | - |
| 入居・引渡期間 | - | 現況 | - |
| 契約備考 | 自治会費 月額500円 3LDK 子供可 普通借家2年 損保【1.2万円2年】 バストイレ別、バルコニー、エアコン、ガスコンロ対応、クロゼット、フローリング、室内洗濯置、陽当り良好、シューズボックス、システムキッチン、温水洗浄便座、脱衣所、エレベーター、洗面化粧台、駐輪場、押入、閑静な住宅地、駐車2台可、駅まで平坦、敷金2ヶ月、眺望良好、ルーフバルコニー、バリアフリー、平坦地、オーシャンビュー、花火大会鑑賞、2駅利用可、3駅以上利用可、和室、都市ガス、洗面所にドア、ワイドバルコニー、年内入居可、礼金1ヶ月、保証会社利用可、高齢者歓迎、通風良好 入居日:'26年4月中旬 | ||
部屋の情報
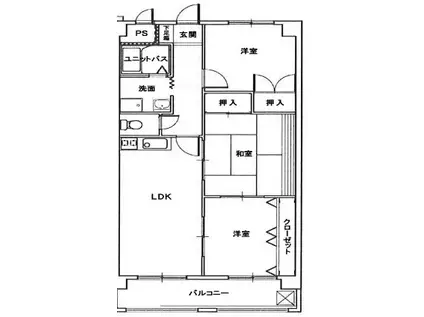
| 間取り | 3LDK | 専有面積 | 67.95m2 |
|---|---|---|---|
| 所在階 / 向き | 7階 / - | バルコニー面積 | - |
| 水道 / ガス | - | ||
| 設備 | バス・トイレ別、2階以上、システムキッチン、エアコン、エレベーター、温水洗浄便座、バルコニー、フローリング、コンロ:ガス、洗濯機:室内 | ||
| 当社物件ID | 119455087 | ||
建物の情報
| 建物名 | アビリティ東本町 | ||
|---|---|---|---|
| 所在地 | 山口県宇部市東本町 | ||
| 交通 | JR宇部線 琴芝駅 徒歩11分 JR宇部線 東新川駅(山口) 徒歩17分 JR宇部線 宇部新川駅 バス乗車時間:5分 最寄りバス停で下車 徒歩5分 | ||
| 階数 | 7階建 | 総戸数 | - |
| 築年月 | 2002年05月 / 築24年 | エレベーター | あり |
| 駐車場 | 空有 5500円 | バイク置き場 | - |
| 駐輪場 | あり | 管理人/管理会社 | - |
| 建物種別 | マンション | 建物構造 | RC(鉄筋コンクリート) |
この部屋の取扱い不動産会社
| 会社名 | (株)和幸不動産(SUUMO経由) | ||
|---|---|---|---|
| 所在地 | 山口県宇部市寿町1-3-13 | 交通 | - |
| 営業時間 | 9:00~17:45 | 定休日 | 水曜日・祝日 |
| 免許番号 | 山口県知事2279 | 取引態様 | 仲介 |
| 不動産会社管理番号 | 100490886761 | 当社管理番号 | 89 |
| 所属団体 | (公社)全日本不動産協会山口県本部会員 | ||
| 公正取引協議会 | 中国地区不動産公正取引協議会加盟 | ||
| 取扱い物件情報 | 物件詳細へ | ||
※各種情報と現状に差異がある場合は、現状優先となります。問い合わせをすることで、より詳しい条件、情報を確認する事ができます。
提供:(株)和幸不動産(SUUMO経由)
この物件が気になったら掲載期限まであと11日
アビリティ東本町に条件(家賃・エリア)が近い物件一覧
| 写真 | 家賃 管理費等 | 敷金 礼金 | 間取り 専有面積 | 築年数 | 最寄り駅 所在地 | キープ | 詳細 |
|---|---|---|---|---|---|---|---|
アパート ウインドワード小羽山(2K/1階) | |||||||
![]() | 5.98万円 6,000円 | なし 5.98万円 | 2K 40.04m2 | 築12年 | 山口県宇部市南小羽山町 | 詳細を見る | |
マンション ヴィレッタ東新川(2LDK/4階) | |||||||
![]() | 4.5万円 2,000円 | なし なし | 2LDK 50m2 | 築49年 | JR宇部線 東新川駅(山口) 徒歩3分 山口県宇部市東新川町 | 詳細を見る | |
アパート リッシハウスB(2LDK/1階) | |||||||
![]() | 7.48万円 5,500円 | なし 14.96万円 | 2LDK 56.17m2 | 築22年 | JR山口線 湯田温泉駅 徒歩23分 JR山口線 矢原駅 徒歩37分 JR山口線 山口駅(山口) 徒歩49分 山口県山口市赤妻町 | 詳細を見る | |
アパート メゾンルシェールA棟(2DK/1階) | |||||||
![]() | 4.5万円 3,000円 | 4.5万円 4.5万円 | 2DK 40m2 | 築25年 | JR山口線 大歳駅 徒歩5分 山口県山口市朝田 | 詳細を見る | |
アパート リーベスフロイライン(1LDK/2階) | |||||||
![]() | 6.45万円 4,500円 | なし なし | 1LDK 50.1m2 | 築19年 | JR山口線 湯田温泉駅 徒歩13分 JR山口線 矢原駅 徒歩26分 JR山口線 大歳駅 徒歩46分 山口県山口市平井 | 詳細を見る | |
アパート サニーホームズ B棟(2LDK/1階) | |||||||
![]() | 6.78万円 6,000円 | なし 10万円 | 2LDK 52.54m2 | 築13年 | JR宇部線 琴芝駅 徒歩19分 JR宇部線 東新川駅(山口) 徒歩24分 JR宇部線 宇部新川駅 徒歩30分 山口県宇部市中村 | 詳細を見る | |
アパート サンライズスクエアA(2LDK/2階) | |||||||
![]() | 7.2万円 4,000円 | なし 5万円 | 2LDK 59.7m2 | 築15年 | JR山口線 山口駅(山口) 徒歩13分 山口県山口市古熊 | 詳細を見る | |
アパート グランド・ソレイユ(1LDK/2階) | |||||||
![]() | 4.78万円 5,500円 | なし 4.78万円 | 1LDK 40.07m2 | 築24年 | JR山口線 山口駅(山口) 徒歩56分 JR山口線 上山口駅 徒歩70分 JR山口線 宮野駅 徒歩71分 山口県山口市大内矢田南 | 詳細を見る | |









