賃貸マンション
カーサ戸越公園の賃貸物件情報(1K/1階)
| 家賃 | 管理費等 | 敷金 | 礼金 | 間取り | 専有面積 |
|---|---|---|---|---|---|
| 7.9万円 | 2,000円 | 7.9万円 | なし | 1K | 23.98m2 |
入居決定でお祝い金最大100,000円
- 保証金
- -
- 償却・敷引
- -
- 築年数
- 築5年
- 所在階
- 1階
- 向き
- -
Point
素敵な1K木造タイプ23.98平米敷地内ゴミ置き場/メゾネット/宅配BOXの使いやすい物件ですよ。ダブルロックセキュリティ対策に配慮したお部屋です。
提供:(株)KMY(SUUMO経由)

詳細情報 カーサ戸越公園
物件紹介
カーサ戸越公園は東急大井町線下神明駅から徒歩5分にあり、駅近で通勤通学に便利なマンションです。
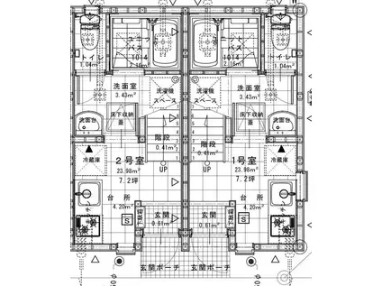
人気のロフト付きのお部屋。多目的に利用でき、お部屋のアレンジも自在です。キッチンはシステムキッチン仕様になっていますので、お料理好きの方にもぴったり。また、バス・トイレは別で、のんびりお風呂タイムも楽しめるでしょう。
通信設備面ではBSアンテナがありますので、おうち時間も充実するでしょう(別途工事、契約料が必要な場合あり)。
共用部には宅配ボックスが設定されているので、不在の時にも荷物を受け取ることができます。
人気のロフト付きのお部屋。多目的に利用でき、お部屋のアレンジも自在です。キッチンはシステムキッチン仕様になっていますので、お料理好きの方にもぴったり。また、バス・トイレは別で、のんびりお風呂タイムも楽しめるでしょう。
通信設備面ではBSアンテナがありますので、おうち時間も充実するでしょう(別途工事、契約料が必要な場合あり)。
共用部には宅配ボックスが設定されているので、不在の時にも荷物を受け取ることができます。
お金・契約の情報
※「-」と表示されているものは、実際は料金が発生するものもございます。詳細はお問い合わせください。
| 家賃 | 7.9万円 | 管理費・共益費 | 2,000円 |
|---|---|---|---|
| 敷金 | 7.9万円 | 礼金 | なし |
| 入居決定でお祝い金最大100,000円 | |||
| 保証金 | - | 償却・敷引 | - |
| 住宅保険料 | - | 更新料 | - |
| 保証会社利用 | 必須 | 保証会社名 | - |
| 保証会社費用 | - | 保証会社備考 | 保証会社利用必 要保証会社加入保証料:契約時賃料総額の50%、1年毎に更新料13,000円】【口座振替手数料:330円】 |
| 契約形態 | - | 契約期間 | - |
| 入居・引渡期間 | 相談 | 現況 | - |
| 契約備考 | 合計3万円(内訳:鍵交換費用30000円) 1K 普通借家2年 損保【1.8万円2年】 バストイレ別、エアコン、ガスコンロ対応、システムキッチン、温水洗浄便座、洗面所独立、2口コンロ、宅配ボックス、礼金不要、ロフト、敷金1ヶ月、ディンプルキー、メゾネット、ダブルロックキー、3駅以上利用可、3沿線以上利用可、駅徒歩5分以内、敷地内ごみ置き場、築5年以内、都市ガス、BS | ||
部屋の情報
| 間取り | 1K | 専有面積 | 23.98m2 |
|---|---|---|---|
| 所在階 / 向き | 1階 / - | バルコニー面積 | - |
| 水道 / ガス | - | ||
| 設備 | バス・トイレ別、宅配ボックス、システムキッチン、エアコン、温水洗浄便座、ロフトあり、洗髪洗面化粧台、2口コンロ、コンロ:ガス、BSアンテナ | ||
| 当社物件ID | 160113745 | ||
建物の情報
| 建物名 | カーサ戸越公園 | ||
|---|---|---|---|
| 所在地 | 東京都品川区豊町 | ||
| 交通 | 東急大井町線 下神明駅 徒歩5分 JR京浜東北線 大井町駅 徒歩15分 JR山手線 大崎駅 徒歩17分 | ||
| 階数 | 3階建 | 総戸数 | 5戸 |
| 築年月 | 2021年09月 / 築5年 | エレベーター | - |
| 駐車場 | なし | バイク置き場 | - |
| 駐輪場 | - | 管理人/管理会社 | - |
| 周辺環境 | その他 ローソン 二葉店(コンビニ)まで434m | ||
| 建物種別 | マンション | 建物構造 | その他 |
この部屋の取扱い不動産会社
| 会社名 | (株)KMY(SUUMO経由) | ||
|---|---|---|---|
| 所在地 | 東京都渋谷区恵比寿南3-1-1 | 交通 | - |
| 営業時間 | 8時-20時(メール受付24時間対応可能) | 定休日 | 不定休 |
| 免許番号 | 東京都知事109611 | 取引態様 | 仲介 |
| 不動産会社管理番号 | 100479963833 | 当社管理番号 | 89 |
| 所属団体 | (公社)全日本不動産協会東京都本部会員 | ||
| 公正取引協議会 | (公社)首都圏不動産公正取引協議会加盟 | ||
| 取扱い物件情報 | 物件詳細へ | ||
※各種情報と現状に差異がある場合は、現状優先となります。問い合わせをすることで、より詳しい条件、情報を確認する事ができます。
提供:(株)KMY(SUUMO経由)
この物件が気になったら掲載期限まであと10日
カーサ戸越公園に条件(家賃・エリア)が近い物件一覧
| 写真 | 家賃 管理費等 | 敷金 礼金 | 間取り 専有面積 | 築年数 | 最寄り駅 所在地 | キープ | 詳細 |
|---|---|---|---|---|---|---|---|
マンション グレイス蒲田(1K/3階) | |||||||
![]() | 6万円 3,000円 | 6万円 6万円 | 1K 18.14m2 | 築34年 | JR京浜東北線 蒲田駅 徒歩8分 京急本線 京急蒲田駅 徒歩14分 京急本線 梅屋敷駅(東京) 徒歩15分 東京都大田区蒲田 | 詳細を見る | |
マンション SEED JUST B-BASE Ⅱ(1LDK/1階) | |||||||
![]() | 10.1万円 1.5万円 | 10.1万円 10.1万円 | 1LDK 29.92m2 | 新築 | 東京モノレール羽田 昭和島駅 徒歩11分 京浜急行電鉄本線 梅屋敷駅(東京) 徒歩19分 東京都大田区大森南4丁目 | 詳細を見る | |
マンション アーバンタニ(1K/4階) | |||||||
![]() | 7.4万円 4,000円 | 7.4万円 7.4万円 | 1K 22.11m2 | 築38年 | 総武・中央緩行線 亀戸駅 徒歩4分 東京都新宿線 西大島駅 徒歩9分 東京地下鉄半蔵門線 錦糸町駅 徒歩14分 東京都江東区亀戸1丁目 | 詳細を見る | |
アパート ハイツO(1K/1階) | |||||||
![]() | 6.2万円 2,000円 | 6.2万円 なし | 1K 24.84m2 | 築41年 | 京急本線 梅屋敷駅(東京) 徒歩4分 京急本線 京急蒲田駅 徒歩11分 JR京浜東北線 蒲田駅 徒歩16分 東京都大田区蒲田 | 詳細を見る | |
マンション LAPOSTA(1K/4階) | |||||||
![]() | 8.3万円 4,000円 | 8.3万円 なし | 1K 23.09m2 | 築29年 | 総武・中央緩行線 亀戸駅 徒歩3分 東武鉄道亀戸線 亀戸水神駅 徒歩10分 東京地下鉄半蔵門線 錦糸町駅 徒歩15分 東京都江東区亀戸5丁目 | 詳細を見る | |
マンション ZOOM東陽町(1K/15階) | |||||||
![]() | 12万円 1万円 | 12万円 12万円 | 1K 30.22m2 | 築10年 | 東京地下鉄東西線 東陽町駅 徒歩5分 東京都江東区東陽3丁目 | 詳細を見る | |
マンション RASICLAS KAMATA(1K/4階) | |||||||
![]() | 9.9万円 1.5万円 | なし なし | 1K 19.9m2 | 築8年 | 京急本線 梅屋敷駅(東京) 徒歩2分 京急空港線 京急蒲田駅 徒歩10分 JR京浜東北線 蒲田駅 徒歩15分 東京都大田区蒲田 | 詳細を見る | |








