賃貸マンション
アバンテリム蒲田の賃貸物件情報(ワンルーム/4階)
| 家賃 | 管理費等 | 敷金 | 礼金 | 間取り | 専有面積 |
|---|---|---|---|---|---|
| 9万円 | 1万円 | なし | なし | ワンルーム | 21.12m2 |
入居決定でお祝い金最大100,000円
Point
セキュリティ面は、TVインターホン・オートロックなど充実しているので安心して生活できます。
提供:(株)クレアスレント五反田店(SUUMO経由)

詳細情報 アバンテリム蒲田
物件紹介
アバンテリム蒲田は東急池上線蓮沼駅から徒歩6分にあり、駅近で通勤通学に便利なマンションです。
このお部屋は2階以上に位置しているので、通行人や周囲の住人からの視線が気になりにくく、防犯面でも安心。建物のエントランスはオートロックがついており、インターホンにはTVモニタもついているため、相手の顔を確認してから来客対応することができます。
おしゃれなデザイナーズ物件!フローリングのお部屋なのでお掃除もラクラク。キッチンはシステムキッチン仕様になっていますので、お料理好きの方にもぴったり。また、バス・トイレは別で、のんびりお風呂タイムも楽しめるでしょう。
通信設備面では、インターネットが無料で使えるので、月々の出費を抑えられるのも魅力です(別途工事等が必要な場合あり)。
共用部には宅配ボックスが設定されているので、不在の時にも荷物を受け取ることができます。
コンビニまで徒歩7分の場所にあり、日用品や食料品のお買い物にも便利です。
このお部屋は2階以上に位置しているので、通行人や周囲の住人からの視線が気になりにくく、防犯面でも安心。建物のエントランスはオートロックがついており、インターホンにはTVモニタもついているため、相手の顔を確認してから来客対応することができます。
おしゃれなデザイナーズ物件!フローリングのお部屋なのでお掃除もラクラク。キッチンはシステムキッチン仕様になっていますので、お料理好きの方にもぴったり。また、バス・トイレは別で、のんびりお風呂タイムも楽しめるでしょう。
通信設備面では、インターネットが無料で使えるので、月々の出費を抑えられるのも魅力です(別途工事等が必要な場合あり)。
共用部には宅配ボックスが設定されているので、不在の時にも荷物を受け取ることができます。
コンビニまで徒歩7分の場所にあり、日用品や食料品のお買い物にも便利です。
お金・契約の情報
※「-」と表示されているものは、実際は料金が発生するものもございます。詳細はお問い合わせください。
| 家賃 | 9万円 | 管理費・共益費 | 1万円 |
|---|---|---|---|
| 敷金 | なし | 礼金 | なし |
| 入居決定でお祝い金最大100,000円 | |||
| 保証金 | - | 償却・敷引 | - |
| 住宅保険料 | 1円 | 更新料 | - |
| その他費用 | プレミアデスク2年(税込):2.2万円、60500円: | ||
| 保証会社利用 | 必須 | 保証会社名 | エポスカード |
| 保証会社費用 | - | 保証会社備考 | 【ルームID】初回保証料:総賃料の50%/月額保証料:総賃料の1.5% ●エポスグローバルプラン利用時 初回保証料:月額総賃料の100%/月額保証料:月額総賃料の2% |
| 契約形態 | - | 契約期間 | 2年 |
| 入居・引渡期間 | 相談 | 現況 | - |
| 入居可能条件 | 事務所不可、楽器不可、ペット不可 | ||
| 契約備考 | インターネット:無料 ファイバーゲート 解約予告:2ヶ月前 プレミアデスク代の中に登録料4400円を含みます。 大手法人契約時礼1で諸条件ご相談可 駐輪場:無料空き要確認 鍵交換費用:38500 その他設備/条件:室内洗濯機置き場、独立洗面台、防犯カメラ、照明器具付き | ||
部屋の情報
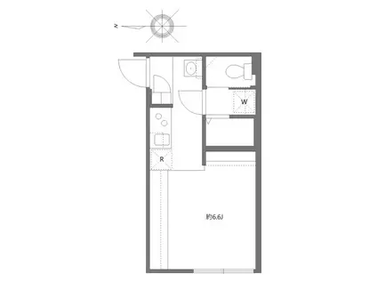
| 間取り | ワンルーム | 専有面積 | 21.12m2 |
|---|---|---|---|
| 間取り詳細 | 洋室(6.6帖) | ||
| 所在階 / 向き | 4階 / 西 | バルコニー面積 | - |
| 水道 / ガス | 水道【公営】、ガス【都市】 | ||
| 設備 | オートロック、テレビドアホン、宅配ボックス、インターネット対応、システムキッチン、エアコン、温水洗浄便座、フローリング、洗髪洗面化粧台、2口コンロ、コンロ:IH、デザイナーズ、インターネット使用料無料、シャワー、給湯 | ||
| 当社物件ID | 157328858 | ||
建物の情報
| 建物名 | アバンテリム蒲田 | ||
|---|---|---|---|
| 所在地 | 東京都大田区東矢口3丁目 | ||
| 交通 | 東急池上線 蓮沼駅 徒歩6分 京浜東北・根岸線 蒲田駅 徒歩11分 | ||
| 階数 | 4階建 | 総戸数 | 14戸 |
| 築年月 | 2023年01月 / 築4年 | エレベーター | - |
| 駐車場 | ご確認ください | バイク置き場 | - |
| 駐輪場 | あり | 管理人/管理会社 | - |
| 周辺環境 | コンビニ 徒歩7分(495m) 販売店 徒歩5分(381m) 病院 徒歩8分(635m) その他 ドラッグストア その他 公園 その他 銀行 その他 * | ||
| 建物種別 | マンション | 建物構造 | RC(鉄筋コンクリート) |
この部屋の取扱い不動産会社
| 会社名 | ハウスコム西東京株式会社 蒲田店 | ||
|---|---|---|---|
| 所在地 | 東京都大田区5-8コパンビル1階 | 交通 | - |
| 営業時間 | 10:00~18:00 | 定休日 | - |
| 免許番号 | 東京都知事(1)第108225号 | 取引態様 | 仲介 |
| 不動産会社管理番号 | HC5-3564605-402-0099 | 当社管理番号 | 468 |
| 所属団体 | 、 | ||
| 取扱い物件情報 | 物件詳細へ | ||
※各種情報と現状に差異がある場合は、現状優先となります。問い合わせをすることで、より詳しい条件、情報を確認する事ができます。
提供:ハウスコム西東京株式会社 蒲田店
この物件が気になったら掲載期限まであと5日
アバンテリム蒲田に条件(家賃・エリア)が近い物件一覧
| 写真 | 家賃 管理費等 | 敷金 礼金 | 間取り 専有面積 | 築年数 | 最寄り駅 所在地 | キープ | 詳細 |
|---|---|---|---|---|---|---|---|
マンション 桜ヒルズ仲六郷(ワンルーム/1階) | |||||||
![]() | 6.4万円 4,000円 | 6.4万円 なし | ワンルーム 15.33m2 | 築5年 | 京浜急行電鉄本線 六郷土手駅 徒歩1分 京浜急行電鉄本線 雑色駅 徒歩17分 東京都大田区仲六郷4丁目 | 詳細を見る | |
マンション カノーレ大森(ワンルーム/3階) | |||||||
![]() | 7.5万円 3,000円 | 7.5万円 7.5万円 | ワンルーム 17.58m2 | 築14年 | 京浜急行電鉄本線 梅屋敷駅(東京) 徒歩2分 京浜急行電鉄本線 京急蒲田駅 徒歩14分 東京都大田区大森中2丁目 | 詳細を見る | |
マンション SEED JUST B-BASE COAST(1LDK/2階) | |||||||
![]() | 10.1万円 1.5万円 | 10.1万円 10.1万円 | 1LDK 27.92m2 | 築1年 | 東京モノレール 昭和島駅 徒歩11分 京急本線 梅屋敷駅(東京) 徒歩19分 東京都大田区大森南 | 詳細を見る | |
マンション エクセルⅤ(1K/4階) | |||||||
![]() | 8.1万円 2,000円 | 8.1万円 8.1万円 | 1K 22.62m2 | 築27年 | 東急池上線 千鳥町駅 徒歩3分 東急多摩川線 下丸子駅 徒歩6分 東京都大田区千鳥3丁目 | 詳細を見る | |
アパート サン ヴィータ(1K/1階) | |||||||
![]() | 9万円 5,000円 | 9万円 18万円 | 1K 21.6m2 | 築6年 | 京浜急行電鉄本線 京急蒲田駅 徒歩6分 京浜急行電鉄本線 梅屋敷駅(東京) 徒歩10分 東京都大田区蒲田3丁目 | 詳細を見る | |
アパート SEED SAVE PETIRASU BREEZE(1LDK/3階) | |||||||
![]() | 10.7万円 1万円 | 21.4万円 10.7万円 | 1LDK 30.55m2 | 新築 | 東京モノレール羽田 昭和島駅 徒歩12分 京浜急行電鉄本線 大森町駅 徒歩18分 東京都大田区大森東5丁目 | 詳細を見る | |
マンション シェモア加瀬(2K/3階) | |||||||
![]() | 9.9万円 4,000円 | 9.9万円 9.9万円 | 2K 34m2 | 築22年 | 京浜急行電鉄本線 梅屋敷駅(東京) 徒歩5分 京浜急行電鉄本線 大森町駅 徒歩10分 東京都大田区大森中2丁目 | 詳細を見る | |







