賃貸マンション
ザ・パークハビオ蕨の賃貸物件情報(ワンルーム/2階)
| 家賃 | 管理費等 | 敷金 | 礼金 | 間取り | 専有面積 |
|---|---|---|---|---|---|
| 8.8万円 | 1.5万円 | 8.8万円 | なし | ワンルーム | 23.15m2 |
入居決定でお祝い金最大100,000円
Point
まずはお問い合わせ!
不動産会社は街のプロ、あなたに合った物件がきっと見つかります。
提供:三菱地所ハウスネット(株)首都圏リーシング部(SUUMO経由)

詳細情報 ザ・パークハビオ蕨
物件紹介
ザ・パークハビオ蕨はJR京浜東北線蕨駅から徒歩3分にあり、駅近で通勤通学に便利なマンションです。
このお部屋は2階以上に位置しているので、通行人や周囲の住人からの視線が気になりにくく、防犯面でも安心。建物のエントランスはオートロックがついており、インターホンにはTVモニタもついているため、相手の顔を確認してから来客対応することができます。
こちらは楽器相談が可能な物件。楽器演奏をお考えの方はぜひ相談してみてください。フローリングのお部屋なのでお掃除もラクラク。バス・トイレ別の仕様で、のんびりお風呂タイムも楽しめます。また、浴室乾燥機を使えば、雨の日でもお洗濯は問題ありません。
通信設備面では、インターネット接続が可能です。また、CATVにも対応しているので、おうち時間も充実するでしょう(別途工事、契約料が必要な場合あり)。
建物にはエレベーターがついているので、重い荷物があっても安心。共用部には宅配ボックスが設定されているので、不在の時にも荷物を受け取ることができます。また、ペット飼育の相談ができますので、あなたの大切な家族の一員も快適に暮らせるか、ぜひ確認してみてください。
このお部屋は2階以上に位置しているので、通行人や周囲の住人からの視線が気になりにくく、防犯面でも安心。建物のエントランスはオートロックがついており、インターホンにはTVモニタもついているため、相手の顔を確認してから来客対応することができます。
こちらは楽器相談が可能な物件。楽器演奏をお考えの方はぜひ相談してみてください。フローリングのお部屋なのでお掃除もラクラク。バス・トイレ別の仕様で、のんびりお風呂タイムも楽しめます。また、浴室乾燥機を使えば、雨の日でもお洗濯は問題ありません。
通信設備面では、インターネット接続が可能です。また、CATVにも対応しているので、おうち時間も充実するでしょう(別途工事、契約料が必要な場合あり)。
建物にはエレベーターがついているので、重い荷物があっても安心。共用部には宅配ボックスが設定されているので、不在の時にも荷物を受け取ることができます。また、ペット飼育の相談ができますので、あなたの大切な家族の一員も快適に暮らせるか、ぜひ確認してみてください。
お金・契約の情報
※「-」と表示されているものは、実際は料金が発生するものもございます。詳細はお問い合わせください。
| 家賃 | 8.8万円 | 管理費・共益費 | 1.5万円 |
|---|---|---|---|
| 敷金 | 8.8万円 | 礼金 | なし |
| 入居決定でお祝い金最大100,000円 | |||
| 保証金 | - | 償却・敷引 | - |
| 住宅保険料 | - | 更新料 | - |
| 保証会社利用 | 必須 | 保証会社名 | - |
| 保証会社費用 | - | 保証会社備考 | 保証会社利用必 ジェイリース・ウェルオンソリューションズ 初年度保証料:賃料等合計額の50% 2年目以降:1年毎1万 |
| 契約形態 | - | 契約期間 | - |
| 入居・引渡期間 | 即時 | 現況 | - |
| 入居可能条件 | 楽器相談、ペット相談 | ||
| 契約備考 | 礼金無(1年未満解約時、賃料1か月分の違約金有) 引越日は引越幹事会社へ要相談 法人契約保証会社要確認 駆付けサポート24借主加入 保証会社未使用時敷金2か月 ペット・楽器相談(諸条件弊社募集図面要確認) SOHO使用応相談(敷金1か月積増/保証料要確認) 民泊不可 退去時:室内清掃・エアコン洗浄費借主負担 付属施設空状況要確認 ワンルーム ペット相談/楽器相談/ルームシェア不可 損保【要】 バストイレ別、バルコニー、エアコン、ガスコンロ対応、フローリング、TVインターホン、浴室乾燥機、オートロック、室内洗濯置、温水洗浄便座、エレベーター、2口コンロ、宅配ボックス、CATV、光ファイバー、即入居可、礼金不要、防犯カメラ、ペット相談、築2年以内、楽器相談、駅徒歩5分以内、敷地内ごみ置き場、LGBTフレンドリー | ||
部屋の情報
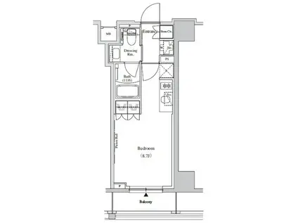
| 間取り | ワンルーム | 専有面積 | 23.15m2 |
|---|---|---|---|
| 所在階 / 向き | 2階 / 北東 | バルコニー面積 | 3m2 |
| 水道 / ガス | - | ||
| 設備 | バス・トイレ別、2階以上、オートロック、テレビドアホン、宅配ボックス、浴室乾燥機、インターネット対応、エアコン、エレベーター、温水洗浄便座、バルコニー、フローリング、2口コンロ、コンロ:ガス、CATV、洗濯機:室内 | ||
| 当社物件ID | 159576532 | ||
建物の情報
| 建物名 | ザ・パークハビオ蕨 | ||
|---|---|---|---|
| 所在地 | 埼玉県蕨市塚越 | ||
| 交通 | JR京浜東北線 蕨駅 徒歩3分 | ||
| 階数 | 10階建 | 総戸数 | 54戸 |
| 築年月 | 2025年10月 / 築1年 | エレベーター | あり |
| 駐車場 | 空有 38500円 | バイク置き場 | - |
| 駐輪場 | - | 管理人/管理会社 | - |
| 周辺環境 | その他 ライフ蕨駅前店(スーパー)まで240m その他 Hanamasa Plus+蕨店(スーパー)まで190m その他 東武ストア蕨店(スーパー)まで310m その他 セブンイレブン蕨東口1番街店(コンビニ)まで150m その他 ローソン蕨駅東口店(コンビニ)まで220m その他 ファミリーマート川口芝新町店(コンビニ)まで250m | ||
| 建物種別 | マンション | 建物構造 | RC(鉄筋コンクリート) |
この部屋の取扱い不動産会社
| 会社名 | 三菱地所ハウスネット(株)首都圏リーシング部(SUUMO経由) | ||
|---|---|---|---|
| 所在地 | 東京都新宿区北新宿2-21-1 新宿フロントタワー32階 | 交通 | - |
| 営業時間 | 午前10時~午後5時 | 定休日 | 毎週水日曜日 |
| 免許番号 | 国土交通大臣6019 | 取引態様 | 貸主 |
| 不動産会社管理番号 | 100476573093 | 当社管理番号 | 89 |
| 所属団体 | (一社)不動産流通経営協会会員 | ||
| 公正取引協議会 | (公社)首都圏不動産公正取引協議会加盟 | ||
| 取扱い物件情報 | 物件詳細へ | ||
※各種情報と現状に差異がある場合は、現状優先となります。問い合わせをすることで、より詳しい条件、情報を確認する事ができます。
提供:三菱地所ハウスネット(株)首都圏リーシング部(SUUMO経由)
この物件が気になったら掲載期限まであと11日
ザ・パークハビオ蕨に条件(家賃・エリア)が近い物件一覧
| 写真 | 家賃 管理費等 | 敷金 礼金 | 間取り 専有面積 | 築年数 | 最寄り駅 所在地 | キープ | 詳細 |
|---|---|---|---|---|---|---|---|
マンション プリムヴェール桜木(2LDK/2階) | |||||||
![]() | 14.2万円 6,000円 | 28.4万円 14.2万円 | 2LDK 63.74m2 | 築37年 | JR京浜東北線 大宮駅(埼玉) 徒歩12分 東武野田線 北大宮駅 徒歩24分 埼玉新都市交通伊奈線 鉄道博物館駅 徒歩25分 埼玉県さいたま市大宮区桜木町 | 詳細を見る | |
アパート メトロノームIII(1LDK/2階) | |||||||
![]() | 7.6万円 2,300円 | なし 7.6万円 | 1LDK 40.09m2 | 築9年 | JR埼京線 戸田駅(埼玉) 徒歩28分 JR武蔵野線 武蔵浦和駅 徒歩53分 JR京浜東北線 西川口駅 徒歩72分 埼玉県戸田市笹目 | 詳細を見る | |
アパート F・Pクレスト クワットロ(1K/2階) | |||||||
![]() | 6.3万円 5,000円 | なし 6.3万円 | 1K 26.8m2 | 築13年 | JR高崎線 宮原駅 徒歩5分 JR川越線 日進駅(埼玉) 徒歩12分 埼玉新都市交通伊奈線 東宮原駅 徒歩19分 埼玉県さいたま市北区日進町 | 詳細を見る | |
マンション アクシーズタワー川口幸町II(1K/3階) | |||||||
![]() | 9.4万円 8,000円 | なし なし | 1K 20.42m2 | 築19年 | JR京浜東北線 川口駅 徒歩7分 埼玉高速鉄道 川口元郷駅 徒歩20分 JR京浜東北線 西川口駅 徒歩20分 埼玉県川口市幸町 | 詳細を見る | |
マンション ミユキハイツ(2K/1階) | |||||||
![]() | 6.2万円 1,000円 | なし なし | 2K 29.7m2 | 築50年 | JR京浜東北線 西川口駅 徒歩8分 JR京浜東北線 川口駅 徒歩17分 埼玉高速鉄道 川口元郷駅 徒歩31分 埼玉県川口市並木 | 詳細を見る | |
マンション プルムドール大宮(ワンルーム/4階) | |||||||
![]() | 7万円 6,000円 | なし なし | ワンルーム 20.21m2 | 築11年 | JR京浜東北線 大宮駅(埼玉) 徒歩5分 東武野田線 大宮駅(埼玉) 徒歩5分 埼玉新都市交通伊奈線 大宮駅(埼玉) 徒歩5分 埼玉県さいたま市大宮区宮町 | 詳細を見る | |
アパート TRINITY 日進町(1K/2階) | |||||||
![]() | 6万円 8,000円 | なし なし | 1K 20.17m2 | 築1年 | JR川越線 日進駅(埼玉) 徒歩5分 JR高崎線 宮原駅 徒歩19分 埼玉新都市交通伊奈線 加茂宮駅 徒歩22分 埼玉県さいたま市北区日進町 | 詳細を見る | |
アパート ハイム・フルス(1LDK/1階) | |||||||
![]() | 8万円 7,000円 | なし 8万円 | 1LDK 42.13m2 | 築19年 | 京浜東北・根岸線 与野駅 徒歩24分 埼玉県さいたま市浦和区木崎2丁目 | 詳細を見る | |









