賃貸アパート
ハイブリッジプラザの賃貸物件情報(2LDK/2階)
| 家賃 | 管理費等 | 敷金 | 礼金 | 間取り | 専有面積 |
|---|---|---|---|---|---|
| 5.8万円 | 3,000円 | なし | なし | 2LDK | 53.28m2 |
入居決定でお祝い金最大100,000円
Point
敷金礼金0円 インターネット無料で使い放題(WiFi) 宅配ボックス完備 角部屋 モニター付きインターホン
提供:大和建設(株)(SUUMO経由)

詳細情報 ハイブリッジプラザ
物件紹介
ハイブリッジプラザはJR仙石線蛇田駅から徒歩17分にあるアパートです。
このお部屋は2階以上に位置しているので、通行人や周囲の住人からの視線が気になりにくく、防犯面でも安心。インターホンにはTVモニタもついているため、相手の顔を確認してから来客対応することができます。
人気の角部屋で周囲の居住者の生活音も気になりにくく、また、フローリングのお部屋なのでお掃除もラクラク。バス・トイレ別の仕様で、のんびりお風呂タイムも楽しめます。
通信設備面では、インターネットが無料で使えるので、月々の出費を抑えられるのも魅力です(別途工事等が必要な場合あり)。
共用部には宅配ボックスが設定されているので、不在の時にも荷物を受け取ることができます。
このお部屋は2階以上に位置しているので、通行人や周囲の住人からの視線が気になりにくく、防犯面でも安心。インターホンにはTVモニタもついているため、相手の顔を確認してから来客対応することができます。
人気の角部屋で周囲の居住者の生活音も気になりにくく、また、フローリングのお部屋なのでお掃除もラクラク。バス・トイレ別の仕様で、のんびりお風呂タイムも楽しめます。
通信設備面では、インターネットが無料で使えるので、月々の出費を抑えられるのも魅力です(別途工事等が必要な場合あり)。
共用部には宅配ボックスが設定されているので、不在の時にも荷物を受け取ることができます。
お金・契約の情報
※「-」と表示されているものは、実際は料金が発生するものもございます。詳細はお問い合わせください。
| 家賃 | 5.8万円 | 管理費・共益費 | 3,000円 |
|---|---|---|---|
| 敷金 | なし | 礼金 | なし |
| 入居決定でお祝い金最大100,000円 | |||
| 保証金 | - | 償却・敷引 | - |
| 住宅保険料 | - | 更新料 | - |
| 契約形態 | - | 契約期間 | - |
| 入居・引渡期間 | 即時 | 現況 | - |
| 契約備考 | 巡回管理 合計6.05万円(内訳:ハスクリーニング費用4.4万円鍵交換代1.65万円) 2LDK 事務所利用不可 普通借家2年 損保【1.8万円2年】 バストイレ別、バルコニー、エアコン、クロゼット、フローリング、シャワー付洗面台、TVインターホン、陽当り良好、追焚機能浴室、角住戸、脱衣所、洗面所独立、宅配ボックス、光ファイバー、外壁タイル張り、即入居可、礼金不要、最上階、敷金不要、対面式キッチン、照明付、全居室洋室、全居室フローリング、ネット使用料不要、トランクルーム、浴室に窓、初期費用15万円以下、クロゼット2ヶ所、平坦地、外壁サイディング、ベタ基礎、間口10m以上、上階無し、タイヤ置き場、平面駐車場、当社管理物件、2階LDK、全居室6畳以上、プロパンガス、玄関収納、保証会社利用可、通風良好 | ||
部屋の情報
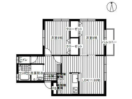
| 間取り | 2LDK | 専有面積 | 53.28m2 |
|---|---|---|---|
| 所在階 / 向き | 2階 / - | バルコニー面積 | - |
| 水道 / ガス | - | ||
| 設備 | バス・トイレ別、2階以上、テレビドアホン、宅配ボックス、追い焚き、インターネット対応、エアコン、角部屋、バルコニー、フローリング、トランクルーム、洗髪洗面化粧台、インターネット使用料無料 | ||
| 当社物件ID | 28004502 | ||
建物の情報
| 建物名 | ハイブリッジプラザ | ||
|---|---|---|---|
| 所在地 | 宮城県石巻市丸井戸 | ||
| 交通 | JR仙石線 蛇田駅 徒歩17分 | ||
| 階数 | 2階建 | 総戸数 | 8戸 |
| 築年月 | 2006年11月 / 築20年 | エレベーター | - |
| 駐車場 | 空有 3000円 | バイク置き場 | - |
| 駐輪場 | - | 管理人/管理会社 | - |
| 周辺環境 | その他 COOP MIYAGI蛇田店(スーパー)まで978m その他 びっくりドンキー石巻店(飲食店)まで463m その他 ケーズデンキ石巻本店(ホームセンター)まで1425m その他 ツルハドラッグ石巻蛇田店(ドラッグストア)まで924m その他 ミニストップ石巻新下沼店(コンビニ)まで560m その他 石巻市立蛇田小学校(小学校)まで423m | ||
| 建物種別 | アパート | 建物構造 | 木造 |
この部屋の取扱い不動産会社
| 会社名 | 大和建設(株)(SUUMO経由) | ||
|---|---|---|---|
| 所在地 | 宮城県石巻市中里2-3-18 | 交通 | - |
| 営業時間 | - | 定休日 | - |
| 免許番号 | 宮城県知事4203 | 取引態様 | 仲介 |
| 不動産会社管理番号 | 100262689754 | 当社管理番号 | 89 |
| 所属団体 | (公社)宮城県宅地建物取引業協会会員 | ||
| 公正取引協議会 | 東北地区不動産公正取引協議会加盟 | ||
| 取扱い物件情報 | 物件詳細へ | ||
※各種情報と現状に差異がある場合は、現状優先となります。問い合わせをすることで、より詳しい条件、情報を確認する事ができます。
提供:大和建設(株)(SUUMO経由)
この物件が気になったら掲載期限まであと5日
ハイブリッジプラザに条件(家賃・エリア)が近い物件一覧
| 写真 | 家賃 管理費等 | 敷金 礼金 | 間取り 専有面積 | 築年数 | 最寄り駅 所在地 | キープ | 詳細 |
|---|---|---|---|---|---|---|---|
アパート レセナ湊東Ⅰ(1K/2階) | |||||||
![]() | 3.8万円 3,000円 | なし なし | 1K 28.25m2 | 築3年 | 石巻線 石巻駅 徒歩34分 宮城県石巻市湊東1丁目 | 詳細を見る | |
アパート ハートランド蛇田Ⅲ(ワンルーム/1階) | |||||||
![]() | 4.2万円 なし | なし なし | ワンルーム 23.5m2 | 築14年 | 仙石線 陸前山下駅 徒歩10分 宮城県石巻市蛇田字新下沼 | 詳細を見る | |
アパート ハートランドながる(ワンルーム/1階) | |||||||
![]() | 3.7万円 なし | なし なし | ワンルーム 18m2 | 築13年 | 石巻線 万石浦駅 徒歩6分 宮城県石巻市流留字一番囲 | 詳細を見る | |
アパート メイプルランドⅡ(1LDK/1階) | |||||||
![]() | 4.9万円 1,800円 | なし なし | 1LDK 45.09m2 | 築11年 | 仙石線 東矢本駅 徒歩17分 宮城県東松島市矢本字蜂谷浦 | 詳細を見る | |
アパート レオパレスKⅡ(1K/1階) | |||||||
![]() | 4.5万円 4,000円 | なし なし | 1K 23.71m2 | 築22年 | 宮城県石巻市美園3丁目 | 詳細を見る | |
アパート クリスタル・ヤモト(2DK/2階) | |||||||
![]() | 5.6万円 2,300円 | 5.6万円 なし | 2DK 56.3m2 | 築15年 | 仙石線 東矢本駅 徒歩15分 宮城県東松島市大曲字堺堀 | 詳細を見る | |
アパート ヴィラクール(1LDK/1階) | |||||||
![]() | 5.6万円 2,000円 | なし なし | 1LDK 42.36m2 | 築13年 | JR石巻線 石巻駅 徒歩12分 宮城県石巻市千石町 | 詳細を見る | |
アパート フォンテーヌ(1K/2階) | |||||||
![]() | 3.6万円 3,000円 | なし なし | 1K 26.08m2 | 築21年 | JR仙石線 石巻駅 徒歩21分 宮城県石巻市元倉 | 詳細を見る | |


/105x80-f1-q70-wp1)
/105x80-f1-q70-wp1)
/105x80-f1-q70-wp1)
/105x80-f1-q70-wp1)
/105x80-f1-q70-wp1)


